| 所在地 | 埼玉県鴻巣市本町6丁目200-15 他 |
|---|---|
| 交通 | |
| 価格 | 3,490万円~3,590万円 月々のお支払い目安
|

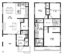
| 間取り | 3SLDK・4SLDK |
|---|---|
| 土地面積 | 137.18m2~137.19m2 |
| 建物面積 | 93.15m2~95.22m2 |
| 建物階 | 木造2階建て |
| 完成時期 |
|


































販売中
| 販売戸数 | 3戸 | 最多価格帯 | - |
|---|---|---|---|
| 販売価格 |
3,490万円~3,590万円 月々のお支払い目安
|
||
| 土地面積 | 137.18m2・137.19m2 | ||
| 建物面積 | 93.15m2~95.22m2 | ||
| 建物状況 | - | 建物現況 | 分譲中 |
| 土地状況 | - | 最適用途 | - |
| 建築条件備考 | - | 構造・工法 | - |
| 間取り | 3SLDK・4SLDK | 建物階 | 木造2階建て |
| 建ぺい率 / 容積率 | 建ぺい率60% 容積率200% | ||
| 接道 |
|
||
| 駐車場・車庫 |
|
完成時期 |
|
| 引渡し可能時期 |
|
||
| その他諸費用 | - | ||
| こだわり条件 |
|
||
| 備考 |
|
||
| 関連サイト | - | ||
※「省エネ性能ラベル」は特定の住戸の性能を示し、全ての住戸の性能を示していない場合があります。
| 所在地 | 埼玉県鴻巣市本町6丁目200-15 他 | ||
|---|---|---|---|
| 交通 |
|
||
| 土地の権利 | 所有権 | ||
| 総戸数 | 9戸 | ||
| 私道負担 | - | 用途地域 | 第一種住居地域 |
| 地目 | 宅地 | 施工会社 | コタエルハウス 山岸工業株式会社 |
| 情報掲載開始日 | 2018年9月17日 | 情報更新日 | 2026年5月26日 |
| 取引条件有効期限 | 2026年6月30日 | 次回更新予定日 | 2026年6月9日 |
頭金、借入期間、金利から毎月の住宅ローンお支払い額の目安を試算します。ご希望の条件に変更してご利用ください。
物件価格の初期値は最低値を設定しております。実際にローン契約をする際は、詳細を不動産会社にご確認ください。
この物件のアピールポイント
【長期優良住宅認定取得物件】住宅を長期にわたって良好な状態で使用するために、必要な基準を満たした住宅として国が認定した住宅。様々な税制優遇や住宅ローンの供給支援を受けることが出来ます。 日当たりも風通しも良好な明るい住まい。閑静な住宅街に佇むデザイン住宅。タイムパフォーマンスに優れたプラン 主な教育施設・生活施設が徒歩15分圏内に充実した暮らしやすいエリア。鴻巣駅まで約1000m(徒歩13分)で通勤・通学にも嬉しい立地。