【飯田の分譲住宅】飯田グループホールディングス リナージュ 我孫子中峠24-2期

新築仲介一戸建て
所在地 千葉県我孫子市中峠
交通
  • JR成田線「湖北」駅 徒歩17分
  • JR成田線「東我孫子」駅 徒歩34分
  • 価格 2590万円~2990万円
    資料請求する無料 見学予約する無料

    ※LIFULL HOME'Sの資料請求ページに移動します

    お気に入りに追加
    • 物件情報
    • 地図・周辺情報
    • 間取り 2LDK~4LDK
      土地面積 148.66m2~176.84m2
      建物面積 65.83m2~108.47m2
      建物階 木造サイディング張スレート葺2階建て(3号棟:平屋建て)
      完成時期
      • 2026年3月予定
    • 【完成予想図(外観)】「リナージュ」~時間を超えて、受け継がれていく住まいを~
安心の住宅性能評価取得物件!地震に強い家!
JR成田線「湖北」駅まで徒歩17分!
    • 【全体区画図】駐車2台可能(車種による)!急な来客時や、ご家族の自転車スペースとしても大活躍♪
    • 【その他】安心の「住宅性能評価」取得物件!
耐震等級3!地震に強い家!
国土交通大臣認定の第三者機関による厳重なチェックを行い、安心・安全な新築一戸建てを提供します。
    • 【現地外観写真】嬉しい仕様がたくさん!
平屋、全洋室、浴室乾燥機、水廻り集中設計、サービスルーム、WIC、SIC、インナーバルコニー、庭、駐車2台可能(車種による)等♪
    • 【前面道路含む現地写真】2026年3月完成予定!
平日・お仕事帰りなど、いつでもご案内致します!
お気軽にお問い合わせ下さい♪
    • 「リナージュ」~時間を超えて、受け継がれていく住まいを~
安心の住宅性能評価取得物件!地震に強い家!
JR成田線「湖北」駅まで徒歩17分!
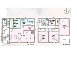
    • 【4LDK】お掃除ラクラク全居室フローリングプラン♪
玄関には、趣味用品やベビーカー等の収納にも便利なSIC付きです!
    • 【2LDK】生活のしやすい平屋住宅!
お掃除ラクラク全居室フローリングプラン♪
ランドリールームには便利な吊り下げ物干しがついています!
    • 【4LDK】家事のしやすい水廻り集中設計、お掃除ラクラク全居室フローリングプラン♪
便利なWIC付き!
    • 【3LDK+S】1階LDKはゆとりの19帖!便利なLDK収納付き!
プライベート空間は2階に配したプランです!
在宅ワークにも便利なサービスルームもあります♪
    • 【【省エネ性能ラベル】】こちらの物件はZEH水準を満たした、省エネ性能に優れた物件です。光熱費を抑えて暮らすことができるだけでなく、「熱の入りにくさ・逃げにくさ」という観点でも影響を受けにくい建物のため、長く快適にお過ごしいただけます♪※本ラベルは特定の住戸の性能を示すものであり、全ての住戸の性能を示すものではありません。
    • 【【平屋建て】】階段が無いため、生活動線がコンパクト!掃除もしやすいです♪また、構造が安定しやすく風の影響も受けにくいため、より安心してお住まいいただけます。
    • 【【浴室換気乾燥機】】雨の日や冬場のお洗濯に嬉しい装備。洗濯物を乾かすだけでなく、入浴後に換気機能で湿気を排出できるためカビの防止にもなります。
    • 【【ウォークインクローゼット】】お子様との思い出もたっぷりしまえるウォークインクローゼット。衣類だけでなく、鞄などの小物からスーツケースやレジャー用品などの大きな物までたっぷり収納出来ます。
    • 【【シューズインクローク】】ロングブーツやトレッキング靴もすっぽり収まる玄関収納。靴はもちろんベビーカーやお子さんの遊び道具なども置いていただけます。
    • 【【サービスルーム(納戸)】】収納目的での使用はもちろん、書斎や作業スペース、趣味の空間として活用するなどさまざまな用途で利用できます。在宅勤務の多いこのご時世には嬉しいスペースです♪
    • 【日本の気候風土に適した「木造軸組工法」】柱、梁などの「軸組み」で構造体を作り上げています。接合部には、金物・筋かいなどで補強を行いより強度を高め、木材はプレカットにより品質のバラツキを防ぎ、安定した品質の住宅を供給しています。
    • 【剛性・耐久性にすぐれた「ベタ基礎」】コンクリートで建物の下一面を支える工法。基礎鉄筋を張り、強度を高めたベタ基礎の耐圧盤を1階の床下全面に施工し、広い耐圧盤の面で建物の荷重を地盤に伝えます。
    • 【腐食に強い「鋼製床束」で床を力強く支持】サビやシロアリを寄せ付けない鋼製の床束を採用。従来品に比べ信頼性が高く、安心の強度で床の荷重を支えます。
    • カスミ湖北店(約1,000m)
    • カワチ薬品湖北店(約1,100m)
    • 我孫子聖仁会病院(約2,400m)
    • 我孫子市立湖北中学校(約2,100m)
    • 我孫子市立湖北小学校(約1,900m)
    • 恵愛こども園(約1,100m)
    • 嬉しい仕様がたくさん!
平屋、全洋室、浴室乾燥機、水廻り集中設計、サービスルーム、WIC、SIC、インナーバルコニー、庭、駐車2台可能(車種による)等♪
    • ZEH水準を満たした、省エネ性能に優れた物件です。光熱費を抑えて暮らすことができるだけでなく、「熱の入りにくさ・逃げにくさ」という観点でも影響を受けにくい建物のため、長く快適にお過ごしいただけます♪
    • JR成田線「湖北」駅まで徒歩17分!
    • ≪全体区画図≫
駐車2台可能(車種による)!急な来客時や、ご家族の自転車スペースとしても大活躍♪
    • (1号棟)、価格2990万円、4LDK、土地面積176.84m2、建物面積108.47m2
    お気に入りに追加 この物件の資料請求無料 見学予約する無料

    ※LIFULL HOME'Sの資料請求ページに移動します

    販売スケジュール

    販売中

    販売概要

    販売戸数 4戸 最多価格帯 2700万円台(2戸)
    販売価格 2590万円~2990万円
    土地面積 148.66m2~176.84m2
    建物面積 65.83m2~108.47m2
    建物状況 - 建物現況 新規分譲
    土地状況 - 最適用途 -
    建築条件備考 - 構造・工法 -
    間取り 2LDK~4LDK 建物階 木造サイディング張スレート葺2階建て(3号棟:平屋建て)
    建ぺい率 / 容積率 建ペい率:60%、容積率:150%
    接道
    道路幅:5m、アスファルト舗装、(北東5m公道)
    駐車場・車庫
    • 2台(車種による)
    完成時期
    • 2026年3月予定
    引渡し可能時期
    • 2026年3月予定
    その他諸費用 -
    こだわり条件
    • 瑕疵担保付き
    • 見学可能
    • 浴室乾燥機
    • カウンターキッチン
    • 床下収納
    • ウォークインクローゼット
    • シューズクローク
    • バリアフリー
    • TVモニタ付インターホン
    • 低層住宅地
    • 長期優良住宅
    • 設計住宅性能評価付き
    • 敷地延長・変形地
    • オンライン相談可
    • 駐車場あり
    備考
    • 物件種目:戸建
    • 主たる設備概要:東京電力、公営水道、個別浄化槽、都市ガス
    • 建築確認番号:第25UDI1W建10920号他
    • 備考欄:【その他制限事項】
      景観法による規制有、宅地造成工事規制区域、高さ最高限度有、日影制限有、1号棟:【法令】宅地造成工事規制区域【その他制限事項】建物面積にインナーバルコニー部分約8.28平米含む 法第22条区域 日影規制:3h-2h/1.5m 絶対高さ制限10m 3号棟:【法令】宅地造成工事規制区域【その他制限事項】法第22条区域 日影規制:3h-2h/1.5m 絶対高さ制限10m 4号棟:【法令】宅地造成工事規制区域【その他制限事項】土地面積に路地状部分約50平米含む 法第22条区域 日影規制:3h-2h/1.5m 絶対高さ制限10m 5号棟:【法令】宅地造成工事規制区域【その他制限事項】法第22条区域 日影規制:3h-2h/1.5m 絶対高さ制限10m


      【イベント情報】
      (事前に必ずお問い合わせください)
      ■ご案内方法
      飯田グループホールディングス唯一の販売専門会社の社員が、当物件をご案内させて頂きます。
      ご自宅へお迎えor最寄り駅等でお待ち合わせ、弊社へのご来社など、ご相談くださいませ。
      小学校、スーパー、公園などご家族でご利用されることが予想される施設や、
      「こんな施設があったら見学したい!」というようなご希望もあればぜひご連絡ください。

      ■ご予約方法
      鍵の手配が必要な場合がありますので、
      お早目にご連絡をいただけるとご案内がスムーズです。

      ◆□【住宅ローンの事ならお任せください】□◆
      弊社提携の金融機関が多数ございます!
      複数の提携ローンの中から、お客様のご希望に合った住宅ローンをご提案いたします。
      「住宅ローンが通るか心配だ・・・」「頭金0円だと購入が難しいの?」「転職して間もないから・・・」など、
      不安やお悩みはまず弊社にご相談ください!
    関連サイト -

    省エネ性能

    この物件の省エネ性能がわかる「省エネ性能ラベル」です。省エネ性能ラベルは2024年4月以降に建築確認申請した物件などで表示しています。

    ※「省エネ性能ラベル」は特定の住戸の性能を示し、全ての住戸の性能を示していない場合があります。

    省エネ性能ラベル
    エネルギー消費性能
    (削減率20%達成)
    エネルギー消費性能とは
    星マークの数が多いほどエネルギー消費性能が高いことを示しています。再エネ設備のない住宅は★0~★4の5段階評価、再エネ設備がある住宅は★0~★6の7段階評価となります。
    断熱性能
    5段階 / 7段階
    断熱性能とは
    数値が高いほど断熱性能が高いことを示しています。「熱の逃げやすさ」と「日射熱の入りやすさ」の2つの点で7段階で評価しています。
    目安光熱費
    約17.9万円 / 年
    目安光熱費とは
    一年間にかかる光熱費の目安額です。住宅の省エネ性能と全国一律の燃料等の単価を用いて、一定の条件下で自動算出したもので、実際にかかる光熱費とは異なります。

    全体概要

    所在地 千葉県我孫子市中峠
    交通
    • JR成田線「湖北」駅 徒歩17分
    • JR成田線「東我孫子」駅 徒歩34分
    • JR常磐線「天王台」駅 徒歩42分
    土地の権利 所有権
    総戸数 5戸
    私道負担 - 用途地域 第一種低層住居専用地域
    地目 宅地 施工会社 -
    情報掲載開始日 2026年2月25日 情報更新日 2026年2月25日
    取引条件有効期限 2026年4月30日 次回更新予定日 2026年3月11日

    ローンシミュレーション

    頭金、借入期間、金利から毎月の住宅ローンお支払い額の目安を試算します。ご希望の条件に変更してご利用ください。

    物件価格の初期値は最低値を設定しております。実際にローン契約をする際は、詳細を不動産会社にご確認ください。

    万円
    万円
    %

    ※頭金や金利、借入期間によって支払う金額は変わります。

    ※物件購入時には、物件価格の他に諸費用がかかります。

    =
    月々のお支払い目安
    元金
    万円/月
    金利
    万円/月
    お支払い目安
    万円/月

    お問い合わせ

    ご覧いただいている物件の住宅ローンや実際にかかる諸費用、資金計画などのご相談ができます。

    不動産会社へのお問い合わせ

    飯田グループホールディングス ホームトレードセンター(株)柏店

    この物件のアピールポイント

    <本日ご見学可能です!> 平屋建てやサービスルーム付き収納充実プランも有!   ○周辺環境  スーパー徒歩13分、コンビニ徒歩10分、ドラッグストア徒歩14分  小学校徒歩24分、中学校徒歩27分、保育園徒歩7分 ■長期優良住宅認定物件 ■住宅性能評価取得物件  安心の第三者機関による検査済み!耐震等級等で最高等級を取得 ■嬉しい仕様がたくさん  浴室乾燥機、水廻り集中設計、サービスルーム、WIC、SIC、庭、駐車2台可(車種による)等

    この物件の価格

    2590万円~2990万円

    • 会社名:ホームトレードセンター株式会社 柏店
    • 住所:千葉県柏市中央町5-16 穂高第2ブラザーズ柏101
    • 電話:04-7180-8588
      ※物件のお問い合わせは047-180-8588
    • 取引態様:飯田グループホールディングス ホームトレードセンター(株)柏店<仲介>
    • 免許番号:国土交通大臣 (3) 第 8044 号
    • 不動産団体名:公益社団法人 全国宅地建物取引業保証協会
    • 売主:-
    • 売主免許番号:-
    • 関連サイト:-
    資料請求する無料 見学予約する無料

    ※LIFULL HOME'Sの資料請求ページに移動します

    他の物件も見てみる

    条件が似た物件
    • 外観
    • 間取り

    最近見た物件
    • 外観
    • 間取り

    • 完成後1年を経過している未入居物件が掲載されている場合があります。
    • 販売住戸が複数の物件は、全ての住戸に該当しない項目もあります。各問い合わせ先にご確認ください。
    • 「建築条件付き土地」とは、一定期間内(概ね3ヶ月程度)に特定の建設会社と建築請負契約を結ぶことを 条件にしている宅地のことです。
    • 建物の内容は、土地購入者の自由意思により決定可能で、土地売買契約後、 建築請負会社と購入した土地に建設する建物について協議することになります。
    • 期間内に建築請負契約が成立しなければ売買契約は白紙となり、支払済みの金銭はすべて返却されます。
    • 「建築条件付き土地」の価格には、建物価格は含まれません。
    • 「建築条件付き土地」の「建物プラン例」は、土地購入者の設計プランの一例であり、プランの採用可否は任意です。
    • 「土地(建築条件なし)」の「建物プラン例」に関して、そのプラン例は特定の建築請負会社によるもので、当該建築請負会社以外で建てた場合、同様のものが同価格で建てられるとは限りません。また、建築請負会社を特定するものではありません。
    • 消費税および地方消費税の対象となる場合は税込み価格が表示されています。
    • 物件の写真やイラスト、CGなどは実際と異なる場合があります。
    • 市区町村の合併などにより、地図が表示されない場合があります。ご了承ください。
    • お客様が入力する個人情報を含むお問い合わせデータは、LIFULL HOME'Sを経由して当該物件情報の取扱会社に転送されます。
    • 不動産購入の検討、契約にあたってはお客様ご自身が情報を確認し、各会社より十分な説明を受け判断してください。
    • 本ページの掲載内容は変更される場合があります。あらかじめご了承ください。
    ページトップへ