ポラスの分譲住宅 ネストリンクス 越谷・大袋

新築分譲一戸建て
所在地 埼玉県越谷市大字大里116番3(地番)他
交通
  • 東武伊勢崎線「大袋」駅 徒歩14分
  • 東武伊勢崎線「せんげん台」駅 徒歩36分
  • 価格 4,940万円
    資料請求する無料 見学予約する無料

    ※LIFULL HOME'Sの資料請求ページに移動します

    お気に入りに追加
    • 物件情報
    • 地図・周辺情報
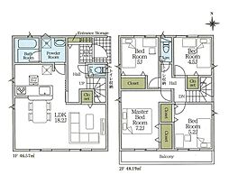
    • 間取り 4LDK(3LDK対応可※有償工事)+吹抜+ファミリーストレージ+2ウォークインクロゼットコーナー+パントリー+土間収納+リネン庫
      土地面積 114.25m2
      建物面積 98.12m2
      建物階 木造2階建(在来工法)
      完成時期
      • 2026年6月中旬予定
    • 【2邸の小路がコミュニティを育む洗練されたモダンな邸宅デザイン】2つの邸宅が生み出すのは、共用街路でつながるひらかれた豊かな風景と、人と人のあたたかなつながり。一歩家の中に入れば、安心してこもれる心地良い空間が日々の暮らしに心地良さを届けます。
    • 【灯かりのいえなみ協定(R)】夜になると各住戸の外部灯が自動点灯して、街を明るくライトアップ。昼間の美しさとは違った美しい街並を演出するとともに、帰宅時の安全性や防犯性を高めてくれます。
    • 【2邸の中心にゆとりを生み出すフットパス。】2邸がアプローチ部分を共有することで共用街路(フットパス)を創出。お互いに敷地を最大限有効活用ができ、ゆとりのプランニングを実現しました。
    • 【カースペース2台標準】全邸に2台分のカースペースを標準で確保。買物や家族の送迎、休日のレジャーに活躍します。※2台目は車種制限あり。
    • 【舗装材と足元彩る下草】舗装材や下草で彩ることで心地良い風景を描きながら、歩車分離により安全性を確保。住民同士が自然と顔を合わせる機会も生まれます。
    • 【ロックガーデン】アイポイントとなるエクステリアには、自然の趣を高める天然石のロックガーデンを効果的に配しています。
    • 2邸の小路がコミュニティを育む洗練されたモダンな邸宅デザイン。
    • 【4LDK(3LDK対応可※有償工事)】4LDK(3LDK対応可※有償工事)+吹抜+ファミリーストレージ+2ウォークインクロゼットコーナー+パントリー+土間収納+リネン庫
    • 【【省エネ給湯器/ECO ONE X5】】ガスと電気のハイブリッドで高い省エネ性を誇るエコワンX5。2つのライフラインで効率よくお湯をつくり給湯光熱費を大幅に抑え、災害時にも活躍。キッチンや洗面・浴室、床暖房まで、温かく快適な暮らしを支えます
    • 【【リビング床暖房】】足元から部屋全体をあたためてくれる床暖房。室温を低く設定しても温風暖房と同じ体感温度を得ることができ、省エネにつながります。
    • 【【PLAN01/L型オープンキッチン】】効率的に動くことができ、料理が捗るL型タイプのキッチンです。毎日使用する場所だからこそ、お手入れしやすく使いやすい仕様に仕上げています。
    • 【【タッチレス蛇口一体型浄水器】】レバーに手を触れなくても吐水・止水ができる、キッチン用タッチレス水栓。手が汚れているときでも、水栓を汚さずに手や食器を洗える便利なアイテムです。
    • 【【食器洗い乾燥機】】水圧で伸びる2段式ノズルで、上部からもシャワーを拡散。庫内の食器すみずみまでしっかり洗い落とします。
    • 【【電動シャッター】】窓を開けずにシャッターを開閉できる防犯性に優れたアイテムです。寒い時期には結露防止や暖房効率の向上も期待できます。
    • 【【リンナイアプリ】】外出先でもご自宅でもアプリを使えば、どこにいてもお風呂を沸かしたり床暖房をつけたり、いつでもワンタップで操作が可能です。※インターネットWi-Fi環境が必要です。
    • 【【土間収納】】スポーツ道具やガーデニング用品などを片付けておける便利な収納を玄関スペースに確保。外使いのものなど取り出しやすく、玄関をスッキリと片付けられます。
    • 【【スマートコントロールキー】】タグキーを近づけたり、リモコンを携帯してボタンを押すだけでカギの開け閉めができます。スマートフォンでも操作可能です。※専用アプリのダウンロードが必要です。
    • 【【PLAN01】プライベートバルコニー】標準よりも高い壁で外部の視線を遮りながらも、風と光を感じられるプライベートバルコニー。タープ用金具を標準採用し、シェードを活用して陽光の下でカフェや読書を楽しむ、家族だけの特別な空間づくりもできます。
    • 【【PLAN01】MULTI ROOM】変化する暮らしも楽しめる自在空間のあるリビング。戸の開閉により続き間と独立空間を切り替えて使えて、ハンギングレールやマルチシェルフを標準採用しており家事室としても便利に使えます。
    • 【ハイシーリング・ハイサッシ】リビングの天井高は2.7m、サッシ高は2.2mに設定。家族が集う空間にやさしい陽光が注ぎ、開放感のある住まいを演出します。
    • 【【PLAN01】ハンギングレール】マルチルームに設置したハンギングレールは、家事のサポートアイテムとして洗濯物を部屋干しでき、雨や花粉の多い日も安心です。また観葉植物を吊るしたりフロアを飾って楽しむこともできます。
    • 【【PLAN01】マルチシェルフ】棚の高さが変えられる便利な可動棚式のマルチシェルフ。
    • 【フレキシブルプラン】2階居室の壁を仕切ったり削除することで、暮らしや家族構成に合わせて部屋数を変えることができるフレキシブルプラン。多様化する暮らしに対応します。※壁追加・削除は有償工事対応となります。
    • 越谷市立大沢北小学校(現地より徒歩8分)
    • アスナロ幼稚園(現地より徒歩7分)
    • ロピア 越谷大里店(現地より徒歩5分)
    • おおさとファミリークリニック(現地より徒歩6分)
    • キャンベルタウン野鳥の森(現地より徒歩22分)
    • 北部図書室、越谷市役所北部出張所(現地より徒歩20分)
    • 【PLAN01】
    • 灯かりのいえなみ協定(R)
    • 2邸の中心にゆとりを生み出すフットパスを計画
    • 案内図
    • 【PLAN01】MULTI ROOM
    • 【PLAN01】プライベートバルコニー

    住みやすさ

    大袋の住みやすさの採点分布

         
    ココが住みやすい!
    • スーパー激戦区でもあり最近も大型スーパーと一体型のホームセンターが出来ました。飲食店も多く 主婦にとってはかなり便利な街で…
    • ご近所付き合いが多く、こどもたちを見守る目があること。シニア世代の方が多いので私自身も教えて貰うことが多いので、とても有り難…
    • カブトムシも取れるような大自然 庭での野菜の収穫体験など都内では簡単には体験できない事を日常茶飯事に体験できる点は子育てには…
    ※住みやすさに関する評点は、単純平均ではなく当社独自の集計方法を加え算出しています。
    お気に入りに追加 この物件の資料請求無料 見学予約する無料

    ※LIFULL HOME'Sの資料請求ページに移動します

    販売スケジュール

    先着順申込受付中

    販売概要

    販売戸数 1戸 最多価格帯 -
    販売価格 4,940万円
    土地面積 114.25m2 / 私道負担なし
    建物面積 98.12m2
    建物状況 - 建物現況 分譲中
    土地状況 - 最適用途 -
    建築条件備考 - 構造・工法 -
    間取り 4LDK(3LDK対応可※有償工事)+吹抜+ファミリーストレージ+2ウォークインクロゼットコーナー+パントリー+土間収納+リネン庫 建物階 木造2階建(在来工法)
    建ぺい率 / 容積率 建ぺい率60% 容積率200%
    接道
    8.8~8.9m道路
    駐車場・車庫
    • 2台
    完成時期
    • 2026年6月中旬予定
    引渡し可能時期
    • 2026年7月13日
    その他諸費用 -
    こだわり条件
    • 仲介手数料不要
    • 見学可能
    • 間取り変更可能
    • 浴室乾燥機
    • 浴室暖房
    • カウンターキッチン
    • 食器洗い乾燥機
    • 床暖房
    • 床下収納
    • ウォークインクローゼット
    • シューズクローク
    • パントリー
    • 吹き抜け
    • TVモニタ付インターホン
    • 南道路
    • オンライン相談可
    • 駐車場あり
    備考
    • 物件種目:戸建
    • 主たる設備概要:公営水道、東京電力・他、都市ガス、本下水、カースペース、外構、植栽その他付帯設備一式
    • 建築確認番号:第SJK-KX255636490号(2025年12月1日/1号棟)
    • 売主:(株)中央住宅 戸建分譲第一事業部
    • 備考欄:※1号棟の土地面積114.25m2うち内共用街路部分7.24m2を含みます。 [設備]公営水道/東京電力・他/都市ガス/本下水/カースペース/外構/植栽その他付帯設備一式
    関連サイト -

    省エネ性能

    この物件の省エネ性能がわかる「省エネ性能ラベル」です。省エネ性能ラベルは2024年4月以降に建築確認申請した物件などで表示しています。

    ※「省エネ性能ラベル」は特定の住戸の性能を示し、全ての住戸の性能を示していない場合があります。

    省エネ性能ラベル
    エネルギー消費性能
    -
    エネルギー消費性能とは
    星マークの数が多いほどエネルギー消費性能が高いことを示しています。再エネ設備のない住宅は★0~★4の5段階評価、再エネ設備がある住宅は★0~★6の7段階評価となります。
    断熱性能
    -
    断熱性能とは
    数値が高いほど断熱性能が高いことを示しています。「熱の逃げやすさ」と「日射熱の入りやすさ」の2つの点で7段階で評価しています。
    目安光熱費
    - /年
    目安光熱費とは
    一年間にかかる光熱費の目安額です。住宅の省エネ性能と全国一律の燃料等の単価を用いて、一定の条件下で自動算出したもので、実際にかかる光熱費とは異なります。

    全体概要

    所在地 埼玉県越谷市大字大里116番3(地番)他
    交通
    • 東武伊勢崎線「大袋」駅 徒歩14分
    • 東武伊勢崎線「せんげん台」駅 徒歩36分
    • 東武伊勢崎線「北越谷」駅 徒歩33分
    土地の権利 所有権
    総戸数 2戸
    私道負担 - 用途地域 第一種中高層住居専用地域
    地目 宅地 施工会社 ポラテック(株)
    情報掲載開始日 2025年12月19日 情報更新日 2026年5月10日
    取引条件有効期限 2026年5月12日 次回更新予定日 随時

    ローンシミュレーション

    頭金、借入期間、金利から毎月の住宅ローンお支払い額の目安を試算します。ご希望の条件に変更してご利用ください。

    物件価格の初期値は最低値を設定しております。実際にローン契約をする際は、詳細を不動産会社にご確認ください。

    万円
    万円
    %

    ※頭金や金利、借入期間によって支払う金額は変わります。

    ※物件購入時には、物件価格の他に諸費用がかかります。

    =
    月々のお支払い目安
    元金
    万円/月
    金利
    万円/月
    お支払い目安
    万円/月

    お問い合わせ

    ご覧いただいている物件の住宅ローンや実際にかかる諸費用、資金計画などのご相談ができます。

    不動産会社へのお問い合わせ

    (株)中央住宅 戸建分譲 第一事業部

    この物件のアピールポイント

    ◆『大袋』駅徒歩14分 ◆駐車2台可※2台目車種制限有 ◆中心にフットパスを設けたコミュニティを育む配棟計画 【利便性豊かな周辺環境】 ◆小学校/徒歩8分◆ドラッグストア徒歩2分◆スーパー徒歩4分 【PLAN01-マルチルーム×プライベートバルコニー】 ◆変化する暮らしも楽しめる自在空間のあるリビング ◆明るさを生む吹抜け天井 ◆陽だまりの特等席となる、プライバシー性の高いバルコニー ◆全居室収納付き/充実の大型収納 ◆適材適所の豊富な収納計画 【下記「ネットで見学予約できる日程」より、見学予約ができます】 ◆内覧以外にも資金計画やライフプランに寄り添ったご提案をいたします♪

    • 会社名:ポラスグループ 株式会社中央住宅 戸建分譲第一事業部
    • 住所:埼玉県越谷市南越谷1-20-9 イーストサンビル3・1F
    • 電話:048-985-6121
      ※物件のお問い合わせは0120-921-988
    • 取引態様:売主
    • 免許番号:国土交通大臣 (13) 第 2401 号
    • 不動産団体名:(公社)首都圏不動産公正取引協議会 (一社)全国住宅産業協会 (公社)埼玉県宅地建物取引業協会
    • 売主:(株)中央住宅 戸建分譲第一事業部
    • 売主免許番号:宅建業:国土交通大臣(13)第2401号
    • 関連サイト:-
    資料請求する無料 見学予約する無料

    ※LIFULL HOME'Sの資料請求ページに移動します

    他の物件も見てみる

    条件が似た物件
    • 外観
    • 間取り

    最近見た物件
    • 外観
    • 間取り

    • 完成後1年を経過している未入居物件が掲載されている場合があります。
    • 販売住戸が複数の物件は、全ての住戸に該当しない項目もあります。各問い合わせ先にご確認ください。
    • 「建築条件付き土地」とは、一定期間内(概ね3ヶ月程度)に特定の建設会社と建築請負契約を結ぶことを 条件にしている宅地のことです。
    • 建物の内容は、土地購入者の自由意思により決定可能で、土地売買契約後、 建築請負会社と購入した土地に建設する建物について協議することになります。
    • 期間内に建築請負契約が成立しなければ売買契約は白紙となり、支払済みの金銭はすべて返却されます。
    • 「建築条件付き土地」の価格には、建物価格は含まれません。
    • 「建築条件付き土地」の「建物プラン例」は、土地購入者の設計プランの一例であり、プランの採用可否は任意です。
    • 「土地(建築条件なし)」の「建物プラン例」に関して、そのプラン例は特定の建築請負会社によるもので、当該建築請負会社以外で建てた場合、同様のものが同価格で建てられるとは限りません。また、建築請負会社を特定するものではありません。
    • 消費税および地方消費税の対象となる場合は税込み価格が表示されています。
    • 物件の写真やイラスト、CGなどは実際と異なる場合があります。
    • 市区町村の合併などにより、地図が表示されない場合があります。ご了承ください。
    • お客様が入力する個人情報を含むお問い合わせデータは、LIFULL HOME'Sを経由して当該物件情報の取扱会社に転送されます。
    • 不動産購入の検討、契約にあたってはお客様ご自身が情報を確認し、各会社より十分な説明を受け判断してください。
    • 本ページの掲載内容は変更される場合があります。あらかじめご了承ください。
    ページトップへ