| 所在地 | 東京都足立区江北4丁目 |
|---|---|
| 交通 | |
| 価格 | 5,330万円 月々のお支払い目安
|

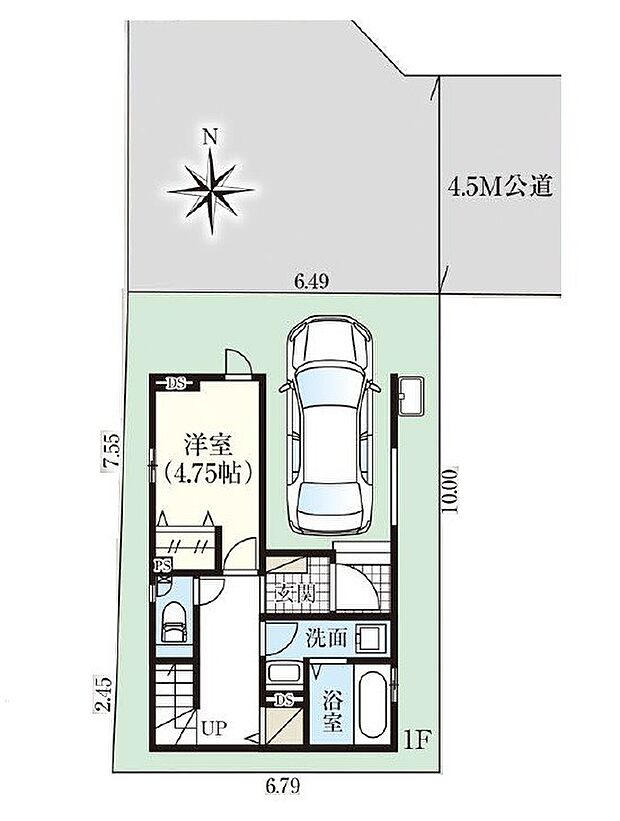
| 間取り | 4LDK |
|---|---|
| 土地面積 | 66.20m2 |
| 建物面積 | 116.13m2 |
| 建物階 | 地上3階 |
| 完成時期 |
|






























| 販売戸数 | 1戸 | 最多価格帯 | - |
|---|---|---|---|
| 販売価格 |
5,330万円 月々のお支払い目安
|
||
| 土地面積 | 66.20m2 | ||
| 建物面積 | 116.13m2 | ||
| 建物状況 | 新築 | 建物現況 | 空家 |
| 土地状況 | - | 最適用途 | - |
| 建築条件備考 | - | 構造・工法 |
|
| 間取り | 4LDK | 建物階 | 地上3階 |
| 建ぺい率 / 容積率 | 60% / 200% | ||
| 接道 |
|
||
| 駐車場・車庫 | - | 完成時期 |
|
| 引渡し可能時期 |
|
||
| その他諸費用 | - | ||
| こだわり条件 |
|
||
| 備考 |
|
||
| 関連サイト | - | ||
| 所在地 | 東京都足立区江北4丁目 | ||
|---|---|---|---|
| 交通 |
|
||
| 土地の権利 | 所有権 | ||
| 総戸数 | 1戸 | ||
| 私道負担 | - | 用途地域 | 準工業地域 |
| 地目 | 宅地 | 施工会社 | - |
| 情報掲載開始日 | 2025年9月26日 | 情報更新日 | 2026年1月20日 |
| 取引条件有効期限 | 2026年2月3日 | 次回更新予定日 | - |
頭金、借入期間、金利から毎月の住宅ローンお支払い額の目安を試算します。ご希望の条件に変更してご利用ください。
物件価格の初期値は最低値を設定しております。実際にローン契約をする際は、詳細を不動産会社にご確認ください。
この物件の価格
5,330万円
1電話番号を入力する
0037-634-67803お問い合わせ先
株式会社ハウスネットパートナー2音声案内に従い、以下の番号を入力
お問い合わせ番号 98469-3192不動産会社のスタッフと
直接電話で話せます
この物件のアピールポイント
◆中国語対応可◎本日見学できます新築戸建専門店だからお得が沢山本日ご見学対応します。 ローンが不安の方ご相談ください