新築一戸建 二宮町二宮 7号棟

新築仲介一戸建て
所在地 神奈川県中郡二宮町二宮
交通
  • JR東海道本線「二宮」駅まで 徒歩 6分
  • 湘南新宿ライン(高崎/東海道)「二宮」駅まで 徒歩 6分
  • 価格 4,480万円
    • 物件情報
    • 地図・周辺情報
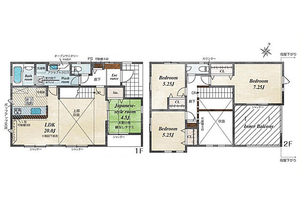
    • 間取り 4LDK
      土地面積 133.77m2(公簿)
      建物面積 104.25m2
      建物階 地上2階
      完成時期
      • 2026年 3月
    • 二宮保育園まで約147m
    • 二宮町立二宮小学校まで約222m
    • 二宮町立二宮中学校まで約997m
    • 医療法人徳洲会湘南大磯病院まで約2283m
    • 二宮町役場まで約202m
    • ラディアン花の丘公園まで約414m
    • 二宮郵便局まで約1032m
    • ミニストップ 二宮駅前店まで約236m
    • パレッテ!二宮店まで約824m

    住みやすさ

    二宮の住みやすさの採点分布

             
    ココが住みやすい!
    • 近隣にショッピングモールがあり、非常に便利です。駅まではバスを利用していましたが、バス停も多く近いため、待ち時間等の不便は感…
    • 自然が多く、静か。スーパーやドラッグストアがたくさんあるので、日用品には困らない。町自体にはショッピングセンターなどの施設が…
    • とてものどかで、近所のおじいちゃんおばあちゃんがとても優しく、困った時にはすぐ助けてくれたり、一緒に遊んでくれたりしました。…
    ※住みやすさに関する評点は、単純平均ではなく当社独自の集計方法を加え算出しています。

    販売概要

    販売戸数 1戸 最多価格帯 -
    販売価格 4,480万円
    土地面積 133.77m2(公簿)
    建物面積 104.25m2
    建物状況 新築 建物現況 未完成
    土地状況 - 最適用途 -
    建築条件備考 - 構造・工法
    • 木造
    間取り 4LDK
    間取り内訳:リビングダイニングキッチン 20帖(1階)・和室 4.5畳(1階)・洋室 7.2帖(2階)・洋室 5.2帖(2階)x2
    建物階 地上2階
    建ぺい率 / 容積率 60% / 200%
    接道
    接道状況:
    二方(角地)
    接道詳細:
    • 北東 (公道 幅員 4.50m 接面 -)
    • 南東 (公道 幅員 4.00m 接面 -)
    駐車場・車庫
    • 駐車場料金:無料
    完成時期
    • 2026年 3月
    引渡し可能時期
    • 相談
    その他諸費用 -
    こだわり条件
    • コンロ三口
    • 床下収納
    • TVモニタ付インターホン
    • カウンターキッチン
    • 浴室乾燥機
    • 全居室収納
    • 設計住宅性能評価付き
    • 長期優良住宅
    • 建設住宅性能評価書(新築時)
    • 角地
    • 駐車場あり
    備考
    • 物件種目:戸建
    • 主たる設備概要:-
    • 上水道:公営
    • 下水道:本下水
    • ガス・オール電化:プロパンガス
    • セットバック:無
    • 国土法:不要
    • 建築確認番号:第R07SHC121952号
    • 都市計画:市街化区域
    • 主要採光面:南
    関連サイト -

    全体概要

    所在地 神奈川県中郡二宮町二宮
    交通
    • JR東海道本線「二宮」駅まで 徒歩 6分
    • 湘南新宿ライン(高崎/東海道)「二宮」駅まで 徒歩 6分
    土地の権利 所有権
    総戸数 7戸
    私道負担 - 用途地域 第一種中高層住居専用地域
    地目 宅地 施工会社 -
    情報掲載開始日 2026年1月19日 情報更新日 2026年4月10日
    取引条件有効期限 2026年4月22日 次回更新予定日 -

    ローンシミュレーション

    頭金、借入期間、金利から毎月の住宅ローンお支払い額の目安を試算します。ご希望の条件に変更してご利用ください。

    物件価格の初期値は最低値を設定しております。実際にローン契約をする際は、詳細を不動産会社にご確認ください。

    万円
    万円
    %

    ※頭金や金利、借入期間によって支払う金額は変わります。

    ※物件購入時には、物件価格の他に諸費用がかかります。

    =
    月々のお支払い目安
    元金
    万円/月
    金利
    万円/月
    お支払い目安
    万円/月

    お問い合わせ

    ご覧いただいている物件の住宅ローンや実際にかかる諸費用、資金計画などのご相談ができます。

    不動産会社へのお問い合わせ

    株式会社フォーシーズンズランド 平塚店

    この物件のアピールポイント

    二宮駅徒歩6分、通勤・通学に便利な好立地に佇む、ゆとりある住まいのご紹介です。 カースペースは2台分確保されており、ご夫婦それぞれのお車や来客時にも安心です。

    この物件の価格

    4,480万円

    • 会社名:株式会社フォーシーズンズランド 平塚店
    • 住所:神奈川県平塚市夕陽ケ丘1-16 三富ビル1階
    • 電話:0463-20-5050
    • 交通:JR東海道本線「平塚」駅まで 徒歩 5分
    • 取引態様:媒介
    • 免許番号:神奈川県知事(05)第024919号
    • 不動産団体名:(公社)首都圏不動産公正取引協議会、(公社)神奈川県宅地建物取引業協会
    • 保証協会:(公社)全国宅地建物取引業保証協会
    • 売主:-
    • 売主免許番号:-
    • 関連サイト:-

    お電話でのお問い合わせはこちら(取り扱い不動産会社に直接つながります)

    電話をかける(携帯電話・PHSでも可)

    1電話番号を入力する

    0037-619-05204

    お問い合わせ先

    株式会社フォーシーズンズランド 平塚店

    2音声案内に従い、以下の番号を入力

    お問い合わせ番号 60098-3191

    不動産会社につながります

    不動産会社のスタッフと
    直接電話で話せます

    店舗スタッフ
    • お客様の電話番号は不動産会社に通知されません。
    • 光IP電話、及びIP電話からはご利用になれません。
    • 定休日や営業時間外にてお電話がつながらない場合は、お問い合わせフォームよりお問い合わせください。
    • 携帯電話からお問合せいただいた方には、ショートメッセージ(SMS)またはLINE通知メッセージによるお問い合わせ内容に関する通知を株式会社LIFULLよりお届けする場合があり、お客様の電話番号は株式会社LIFULLで一定期間保管されます。
    • 株式会社LIFULLの個人情報の取扱い方針に同意のうえ、お電話ください。
    • オーナー様・不動産会社様・現在ご入居中のお客様など、住まい探し以外のご相談はこちらからお問い合わせください。

    他の物件も見てみる

    条件が似た物件
    • 外観
    • 間取り

    最近見た物件
    • 外観
    • 間取り

    • 完成後1年を経過している未入居物件が掲載されている場合があります。
    • 販売住戸が複数の物件は、全ての住戸に該当しない項目もあります。各問い合わせ先にご確認ください。
    • 「建築条件付き土地」とは、一定期間内(概ね3ヶ月程度)に特定の建設会社と建築請負契約を結ぶことを 条件にしている宅地のことです。
    • 建物の内容は、土地購入者の自由意思により決定可能で、土地売買契約後、 建築請負会社と購入した土地に建設する建物について協議することになります。
    • 期間内に建築請負契約が成立しなければ売買契約は白紙となり、支払済みの金銭はすべて返却されます。
    • 「建築条件付き土地」の価格には、建物価格は含まれません。
    • 「建築条件付き土地」の「建物プラン例」は、土地購入者の設計プランの一例であり、プランの採用可否は任意です。
    • 「土地(建築条件なし)」の「建物プラン例」に関して、そのプラン例は特定の建築請負会社によるもので、当該建築請負会社以外で建てた場合、同様のものが同価格で建てられるとは限りません。また、建築請負会社を特定するものではありません。
    • 消費税および地方消費税の対象となる場合は税込み価格が表示されています。
    • 物件の写真やイラスト、CGなどは実際と異なる場合があります。
    • 市区町村の合併などにより、地図が表示されない場合があります。ご了承ください。
    • お客様が入力する個人情報を含むお問い合わせデータは、LIFULL HOME'Sを経由して当該物件情報の取扱会社に転送されます。
    • 不動産購入の検討、契約にあたってはお客様ご自身が情報を確認し、各会社より十分な説明を受け判断してください。
    • 本ページの掲載内容は変更される場合があります。あらかじめご了承ください。
    ページトップへ