【住まいのNATTOKU】Terrechez 交野市松塚 第1期 全1邸

新築仲介一戸建て
所在地 大阪府交野市松塚
交通
  • 京阪交野線「郡津」駅 徒歩2分
  • 京阪交野線「村野」駅 徒歩15分
  • 価格 4,598万円
    資料請求する無料 見学予約する無料

    ※LIFULL HOME'Sの資料請求ページに移動します

    お気に入りに追加
    • 物件情報
    • 地図・周辺情報
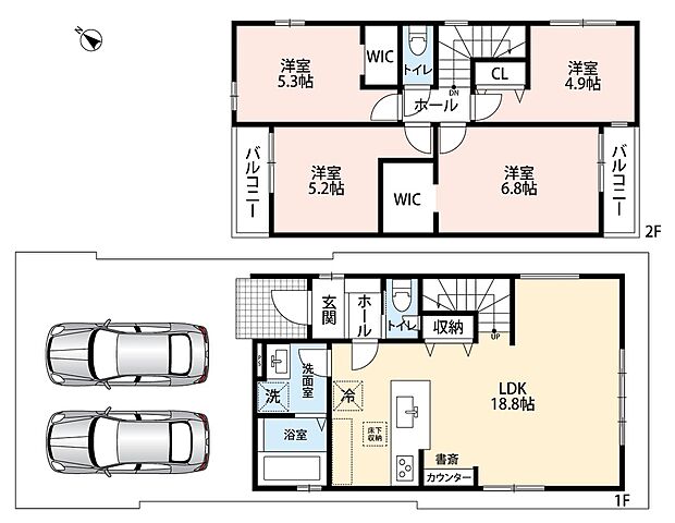
    • 間取り 4LDK
      土地面積 103.83m2
      建物面積 93.63m2
      建物階 木造2階建(軸組工法)
      完成時期
      • 2026年1月
    • 【現地写真(外観)】雨で汚れを落とし、耐久性・耐候性に優れた外壁を使用しています。
    • 【現地写真(外観)】軽くて火災に強い屋根材を採用し、地震時の建物への負担や揺れを軽減しています。
    • 【現地写真(外観)】健康被害に配慮したもっとも安全性の高い建材を採用し、シックハウス対策をしております。
    • 【現地写真(前道含む外観)】断熱性、気密性を高める工夫で一年中ずっと心地よく暮らせる、高気密・高断熱です。
    • 【現地写真(前道含む外観)】お引渡し後も無償の定期点検を行っており、暮らしの安心をお届けしています。
    • 【現地写真(駐車場)】駐車スペースが広く、運転が苦手な方も安心です。
    • 現地写真(外観)
限定1邸
駐車2台可能
    • 【バルコニー】奥行きが広く、洗濯物をゆったりと干せる十分な広さで、家族の洗濯も捗ります。
    • 【洗面台・洗面所】鏡の両サイドは、必要なものを取出しやすく、大きな鏡面で朝の準備も快適。
使いやすいリフトアップ機能付きのシングルレバーシャワー水栓付です。
    • 【トイレ】汚れてもサッとひと拭きでお手入れ簡単、エコ仕様の温水洗浄便座付きのトイレです。
バリアフリーにも配慮しています。
    • 【食器洗い乾燥機】食後の時間にゆとりを与えてくれる食器洗い乾燥機。
操作ボタンも上面にあるので、腰をかがめずに操作ができラクラクです。
    • 【浴室暖房換気乾燥機】入浴後の水滴や湿気を排出し、カビの発生や臭いを抑制します。
雨の日の洗濯物にも効果的です。
    • 【給湯器リモコン】見やすいボタン配置で換気・暖房・乾燥・涼風が簡単操作可能です。
    • 【給湯器リモコン】見やすいボタン配置でお湯はり・追い炊きが簡単操作可能です。
    • 【ビルトインコンロ】フラットな構造で清掃性が高く、過熱防止センサー付3口タイプで日頃の家事も快適です。
    • 【TVモニター付インターホン】来訪者を画像と音声で確認できる、防犯性に優れた安心のシステム。
スッキリしたデザインで、誰でも簡単に操作できます。
    • 【現地写真(リビング)】フローリング材には、木目、色調など木材特有の風合いがあり、ナチュラルな美しさになっています。
    • 【現地写真(キッチン)】収納たっぷりのシステムキッチン、浄水器付水栓を標準装備しています。
    • 【現地写真(浴室)】浴室暖房乾燥機付き。1坪タイプで広々です。
    • 【現地写真(寝室)】木目の美しさを際立たせるシンプルデザインの建具を使用しています。
    • 【現地写真(洋室)】木目の美しさを際立たせるシンプルデザインの建具を使用しています。
    • 【現地写真(玄関)】玄関には、大型のシューズ収納を設置しています。
    • 京阪交野線「郡津駅」(約160m)
    • 万代郡津店(約520m)
    • ラッキー交野店(約1,400m)
    • 認定こども園交野保育園(約190m)
    • 交野市立郡津小学校(約700m)
    • 交野市立第二中学校(約1,300m)
    • 現地写真(リビング)
フローリング材には、木目、色調など木材特有の風合いがあり、ナチュラルな美しさになっています。
    • 現地写真(キッチン)
収納たっぷりのシステムキッチン、浄水器付水栓を標準装備しています。
    • 現地写真(浴室)
浴室暖房乾燥機付き。1坪タイプで広々です。
    • 案内図
    • ■京阪・北河内エリアで355件の新築一戸建情報!■お気軽にお問い合わせ下さい!■ローンのご相談も、当社の住宅ローン診断士にお任せ下さい!
    • 4LDK
    お気に入りに追加 この物件の資料請求無料 見学予約する無料

    ※LIFULL HOME'Sの資料請求ページに移動します

    販売スケジュール

    先着順受付中/販売中

    販売概要

    販売戸数 1戸 最多価格帯 -
    販売価格 4,598万円
    土地面積 103.83m2
    建物面積 93.63m2
    建物状況 - 建物現況 新規分譲
    土地状況 - 最適用途 -
    建築条件備考 - 構造・工法 -
    間取り 4LDK 建物階 木造2階建(軸組工法)
    建ぺい率 / 容積率 建ペい率:50%、容積率:100%
    接道
    北西6.6m幅、南東4.1m幅
    駐車場・車庫
    • 1台 ~ 2台
    完成時期
    • 2026年1月
    引渡し可能時期
    • 即引渡可
    その他諸費用 -
    こだわり条件
    • 瑕疵担保付き
    • 仲介手数料不要
    • 見学可能
    • 浴室乾燥機
    • 浴室暖房
    • 食器洗い乾燥機
    • TVモニタ付インターホン
    • 低層住宅地
    • 即入居可
    • オンライン相談可
    • 駐車場あり
    備考
    • 物件種目:戸建
    • 主たる設備概要:公営水道、都市ガス
    • 建築確認番号:完成済みのため省略
    • 備考欄:■無料送迎サービス実施中!
      車の運転をするのが大変なお客様に無料送迎サービスを実施しております。
      ご希望の方はお気軽にお申し付け下さい。
      ごゆっくり物件をご見学頂けます。

      (支払例)
      価格
      4,598万円、頭金0円、借入額4,598万円
      年利0.595%(変動金利)、返済期間40年
      毎月返済額107,666円、ボーナス時加算額0円

      ■頭金0円で住宅ローン借入可能!
      住宅購入にかかる諸費用・引っ越し費用・家具家電費用等も借入可能!
      住宅ローンにご不安な方は当社の住宅ローンアドバイザーが親身・親切をモットーにご提案致します。ぜひお気軽にお電話下さい。
      ※紹介金融機関多数有!
      ■オプション工事の特別割引有!!
      ご成約頂いたお客様のみオプション工事を特別割引にてご案内しております。
      詳細は営業スタッフまでお問合せ下さい。
    関連サイト -

    全体概要

    所在地 大阪府交野市松塚
    交通
    • 京阪交野線「郡津」駅 徒歩2分
    • 京阪交野線「村野」駅 徒歩15分
    • 京阪交野線「交野市」駅 徒歩15分
    土地の権利 所有権
    総戸数 1戸
    私道負担 - 用途地域 第一種低層住居専用地域
    地目 宅地 施工会社 -
    情報掲載開始日 2026年2月20日 情報更新日 2026年2月24日
    取引条件有効期限 2027年2月20日 次回更新予定日 2026年3月7日

    ローンシミュレーション

    頭金、借入期間、金利から毎月の住宅ローンお支払い額の目安を試算します。ご希望の条件に変更してご利用ください。

    物件価格の初期値は最低値を設定しております。実際にローン契約をする際は、詳細を不動産会社にご確認ください。

    万円
    万円
    %

    ※頭金や金利、借入期間によって支払う金額は変わります。

    ※物件購入時には、物件価格の他に諸費用がかかります。

    =
    月々のお支払い目安
    元金
    万円/月
    金利
    万円/月
    お支払い目安
    万円/月

    お問い合わせ

    ご覧いただいている物件の住宅ローンや実際にかかる諸費用、資金計画などのご相談ができます。

    不動産会社へのお問い合わせ

    住まいのNATTOKU

    この物件のアピールポイント

    ■仲介手数料0円対象物件! ■頭金0円で住宅ローン可能! ■家具家電、車、引越代など他借入もおまとめ可能! ■即日案内可能! 【物件ポイント・周辺環境】 ・前道6mでラクラク駐車2台可能! ・留守時に便利な宅配BOX付で快適! ・ママ目線の最新設備仕様で快適! ・スーパー 徒歩7分 ・コンビニ 徒歩10分 ■掲載されていない物件情報も多数有!地域密着の担当スタッフにお気軽にご相談下さい! ■当社の営業スタッフは住宅ローンアドバイザーの資格があり、お客様に合わせた資金計画をご提案致します!ご安心下さい!

    この物件の価格

    4,598万円

    • 会社名:住まいのNATTOKU(株)NATTOKU 本店
    • 住所:大阪府枚方市山之上2丁目21-9 ビュ-パレ-1階
    • 電話:072-807-6837
      ※物件のお問い合わせは0120-928-750
    • 取引態様:(株)NATTOKU(仲介)
    • 免許番号:国土交通大臣 (1) 第 11007 号
    • 不動産団体名:(公社)全日本不動産協会大阪府本部
    • 売主:-
    • 売主免許番号:-
    • 関連サイト:-
    資料請求する無料 見学予約する無料

    ※LIFULL HOME'Sの資料請求ページに移動します

    他の物件も見てみる

    最近見た物件
    • 外観
    • 間取り

    • 完成後1年を経過している未入居物件が掲載されている場合があります。
    • 販売住戸が複数の物件は、全ての住戸に該当しない項目もあります。各問い合わせ先にご確認ください。
    • 「建築条件付き土地」とは、一定期間内(概ね3ヶ月程度)に特定の建設会社と建築請負契約を結ぶことを 条件にしている宅地のことです。
    • 建物の内容は、土地購入者の自由意思により決定可能で、土地売買契約後、 建築請負会社と購入した土地に建設する建物について協議することになります。
    • 期間内に建築請負契約が成立しなければ売買契約は白紙となり、支払済みの金銭はすべて返却されます。
    • 「建築条件付き土地」の価格には、建物価格は含まれません。
    • 「建築条件付き土地」の「建物プラン例」は、土地購入者の設計プランの一例であり、プランの採用可否は任意です。
    • 「土地(建築条件なし)」の「建物プラン例」に関して、そのプラン例は特定の建築請負会社によるもので、当該建築請負会社以外で建てた場合、同様のものが同価格で建てられるとは限りません。また、建築請負会社を特定するものではありません。
    • 消費税および地方消費税の対象となる場合は税込み価格が表示されています。
    • 物件の写真やイラスト、CGなどは実際と異なる場合があります。
    • 市区町村の合併などにより、地図が表示されない場合があります。ご了承ください。
    • お客様が入力する個人情報を含むお問い合わせデータは、LIFULL HOME'Sを経由して当該物件情報の取扱会社に転送されます。
    • 不動産購入の検討、契約にあたってはお客様ご自身が情報を確認し、各会社より十分な説明を受け判断してください。
    • 本ページの掲載内容は変更される場合があります。あらかじめご了承ください。
    ページトップへ