泉区上飯田町 全2棟2号棟

新築仲介一戸建て
所在地 神奈川県横浜市泉区上飯田町
交通
  • 相鉄いずみ野線「いずみ中央」駅まで 徒歩 14分
  • 小田急江ノ島線「長後」駅まで 徒歩 30分
  • 価格 4,580万円
    • 物件情報
    • 地図・周辺情報
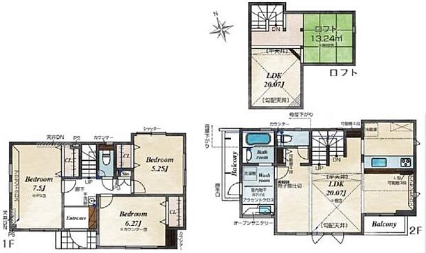
    • 間取り 3LDK
      土地面積 125.02m2(公簿)
      建物面積 92.82m2
      建物階 地上2階
      完成時期
      • 2025年 9月
    • 《外観》 ■家族みんなが落ち着ける場所。明るい空間で心も暖か、朝から爽やかな気分。寝る時も包みこまれるようにふんわりと。家にいることが心と体に優しい暖かな暮らし。
    • 《駐車場》 ■駐車場1台可能(車種による)
    • 《キッチン》 ■家族が集う楽しく親子の会話もはずむキッチン。明るく清潔で使い勝手のいいキッチンには、いつも家族の笑顔があふれています。この大きなキッチンでは、夫婦が仲良く一緒に料理することもできます。
    • 《システムキッチン》 ■会話を楽しみながら食事を味わう。一緒にいる時間が楽しい空間。カフェにいるような気分で毎日を過ごしたい。家族でいる時間を柔らかに包み込むインテリア。
    • 《浴室》 ■ゆったり足を伸ばせる浴槽。お子様と一緒でもゆとりの1坪タイプ。1日の疲れを癒してくれるバスタイム。
    • 《洗面所》 ■広いパウダールームで朝の身支度も気持ちよくできそうです。
    • 《トイレ》 ■快適な使用感が人気の温水洗浄脱臭暖房機能を搭載。しかも汚れがつきにくく落ちやすい、洗浄力に優れた洗浄機能付トイレ。
    • 《寝室》 ■本画像は家具の配置をCGで作成しており、実際に現地に家具は置かれておりません。また、価格に家具は含まれておりません。
    • 《子供部屋》 ■机とべットを入れても十分な広さ、お子様の勉強部屋に。グングンと成績UPの予感が。
    • 《洋室》 ■型にはまらない多才なプライベートルーム。くつろぎの場としてだけでなく、趣味や仕事のパーソナルスペースとしても活躍する、個の時間をたっぷり楽しめる快適空間です。
    • 《収納》 ■洋服を機能的に収納できるハンガーパイプのほか、帽子やバッグを置ける枕棚も設置。ゆとりあふれる収納空間です。
    • 《洗面化粧台》 ■2階にも使いやすいシャープなデザインの洗面化粧台を設置。
    • 《玄関》 ■玄関を開けると、エントランスホールがお出迎え。上がりがまちやシューズボックスがゆったりと構え、心地よさに包まれます。
    • ロピアいずみ中央店まで422m、食生活ロピアをモットーに、ロープライスのユートピアを作ることを目標に生まれた会社です。
    • そうてつローゼンいずみ中央店まで1331m、広い店内は、所狭しと商品が陳列してあります。お目当てのモノもきっと見つかる宝探し。ゆっくりお買い物を楽しめます。
    • 横浜市立上飯田中学校まで1068m
    • 横浜市立上飯田小学校まで430m
    • 上飯田幼稚園まで692m、上飯田幼稚園は横浜市泉区の田んぼ・畑・森のある幼稚園です。
    • 明成幼稚園まで905m、入園前のステップとして、ご利用いただく『チャイルドクラブ』があります
    • 板倉医院まで951m、診療科目:外科・整形外科・皮膚科・泌尿器科
    • 横浜市泉区役所まで1237m
    • いずみ中央駅まで1331m、周辺は商業施設や区役所等の公共施設が揃い、住環境良好。また、駅前には親水広場や春には多くの人で賑わう桜が有名
    • 《バルコニー》 ■「青い空」と「白い雲」、「気分が晴れる場所」がここにあります。
    • 《リビングダイニング》 ■本画像は家具の配置をCGで作成しており、実際に現地に家具は置かれておりません。また、価格に家具は含まれておりません。
    • 《リビングダイニング》 ■開放的で広いリビング。のびのびとくつろげるリビングは、家族のコミュニケーションの場としてみんなが集まる場所に。
    • 《リビングダイニング》 ■豊かな光が照らすこの場所は、たわいもない会話を楽しみ、ゆったりとした時間を過ごす場所。家族の日常が刻まれる大切な空間です。自然光に溢れるこの空間はリフレッシュにピッタリです。
    • 《リビングダイニング》 ■大画面TVも余裕、インテリアプランが考えやすいワイドなリビング。家族がしぜんに集まる広さ、お子様が思わず走り出す大空間。
    • 《リビングダイニング》 ■上質な時間を育む暮らしのメインステージ。寛ぎとご家族とのコミュニケーションを育む居心地のよい場所。家族の笑顔と何気ない会話がいつまでも絶えないそんな素敵な空間の予感がします。
    • 《外観》 ■一戸建ての多いエリア、静かで落ち着いた雰囲気。シンプルで美しいフォルム空気までクリーンになるような佇まい。心地よいライフスタイルが実現できるそんな予感。

    住みやすさ

    いずみ中央の住みやすさの採点分布

         
    ココが住みやすい!
    • 閑静な住宅で、近くにスーパーやコンビニもあって生活がしやすかった。夜も静かで良かった。近所付き合いでも特に問題はなかった。
    • 横浜の中では長閑な雰囲気があり、混み合っていない印象。 子供も多く、公園が沢山あるなど子育て世代にはいいと思う。
    • 緑が豊かでまだ田園風景が残っている。境川沿いにサイクリングコースもあり江ノ島までサイクリングを楽しめる。春には境川でお花見が…
    ※住みやすさに関する評点は、単純平均ではなく当社独自の集計方法を加え算出しています。

    販売概要

    販売戸数 1戸 最多価格帯 -
    販売価格 4,580万円
    土地面積 125.02m2(公簿)
    建物面積 92.82m2
    建物状況 新築 建物現況 空家
    土地状況 - 最適用途 -
    建築条件備考 - 構造・工法
    • 木造
    間取り 3LDK
    間取り内訳:洋室 7.5帖(1階)・洋室 6.2帖(1階)・洋室 5.2帖(1階)・リビングダイニングキッチン 20帖(2階)
    建物階 地上2階
    建ぺい率 / 容積率 40% / 80%
    接道
    接道状況:
    一方
    接道詳細:
    • 西 (公道 幅員 4.50m 接面 -)
    駐車場・車庫
    • 2台
    • 駐車場料金:無料
    完成時期
    • 2025年 9月
    引渡し可能時期
    • 相談
    その他諸費用 -
    こだわり条件
    • 床下収納
    • TVモニタ付インターホン
    • バリアフリー
    • カウンターキッチン
    • 浴室乾燥機
    • 食器洗い乾燥機
    • 全居室収納
    • 照明器具付
    • 駐車場2台以上
    • 低層住宅地
    • 小学校まで1km以内
    備考
    • 物件種目:戸建
    • 主たる設備概要:-
    • 上水道:公営
    • 下水道:本下水
    • ガス・オール電化:都市ガス
    • 国土法:不要
    • 法令上の制限その他:●土間コンクリートでない箇所の駐車は、地中埋設配管等を痛める恐れあり。追加コンクリート施工の場合は買主様負担●
    • 建築確認番号:第R07SHC109330号
    • 都市計画:市街化区域
    • 最寄り小学校名:上飯田小学校
    • 最寄り小学校までの距離:420m
    • 最寄り中学校名:上飯田中学校
    • 最寄り中学校までの距離:992m
    • その他施設名:上飯田幼稚園
    • その他施設までの距離:692m
    • 近隣のスーパーマーケットまでの距離:422m
    • 備考欄:[物件コード]011901-316866-535023、全2棟販売2号棟●土地面積に協定道路19.9平米含む●敷地内に電柱・支線が入る場合有り
    関連サイト -

    全体概要

    所在地 神奈川県横浜市泉区上飯田町
    交通
    • 相鉄いずみ野線「いずみ中央」駅まで 徒歩 14分
    • 小田急江ノ島線「長後」駅まで 徒歩 30分
    土地の権利 所有権
    総戸数 -
    私道負担 - 用途地域 第一種低層住居専用地域
    地目 宅地 施工会社 -
    情報掲載開始日 2025年9月27日 情報更新日 2025年12月4日
    取引条件有効期限 2025年12月18日 次回更新予定日 -

    ローンシミュレーション

    頭金、借入期間、金利から毎月の住宅ローンお支払い額の目安を試算します。ご希望の条件に変更してご利用ください。

    物件価格の初期値は最低値を設定しております。実際にローン契約をする際は、詳細を不動産会社にご確認ください。

    万円
    万円
    %

    ※頭金や金利、借入期間によって支払う金額は変わります。

    ※物件購入時には、物件価格の他に諸費用がかかります。

    =
    月々のお支払い目安
    元金
    万円/月
    金利
    万円/月
    お支払い目安
    万円/月

    お問い合わせ

    ご覧いただいている物件の住宅ローンや実際にかかる諸費用、資金計画などのご相談ができます。

    不動産会社へのお問い合わせ

    (株)日立ホーム

    この物件のアピールポイント

    ●ご家族を近く感じられる対面キッチン●お忙しい家族に嬉しい宅配ボックス●安心のWロック電池錠●

    この物件の価格

    4,580万円

    • 会社名:センチュリー21日立ホーム
    • 住所:神奈川県横浜市西区北幸2丁目15-1東武横浜第2ビル1F
    • 電話:045-316-5825
    • 交通:JR東海道本線「横浜」駅まで 徒歩 8分
    • 取引態様:媒介
    • 免許番号:神奈川県知事(10)第14861号
    • 不動産団体名:(公社)全日本不動産協会、(公社)首都圏不動産公正取引協議会
    • 保証協会:(公社)不動産保証協会
    • 売主:-
    • 売主免許番号:-
    • 関連サイト:-

    お電話でのお問い合わせはこちら(取り扱い不動産会社に直接つながります)

    電話をかける(携帯電話・PHSでも可)

    1電話番号を入力する

    0037-634-00302

    お問い合わせ先

    (株)日立ホーム

    2音声案内に従い、以下の番号を入力

    お問い合わせ番号 98488-3192

    不動産会社につながります

    不動産会社のスタッフと
    直接電話で話せます

    店舗スタッフ
    • お客様の電話番号は不動産会社に通知されません。
    • 光IP電話、及びIP電話からはご利用になれません。
    • 定休日や営業時間外にてお電話がつながらない場合は、お問い合わせフォームよりお問い合わせください。
    • 携帯電話からお問合せいただいた方には、ショートメッセージ(SMS)またはLINE通知メッセージによるお問い合わせ内容に関する通知を株式会社LIFULLよりお届けする場合があり、お客様の電話番号は株式会社LIFULLで一定期間保管されます。
    • 株式会社LIFULLの個人情報の取扱い方針に同意のうえ、お電話ください。
    • オーナー様・不動産会社様・現在ご入居中のお客様など、住まい探し以外のご相談はこちらからお問い合わせください。

    他の物件も見てみる

    条件が似た物件
    • 外観
    • 間取り

    最近見た物件
    • 外観
    • 間取り

    • 完成後1年を経過している未入居物件が掲載されている場合があります。
    • 販売住戸が複数の物件は、全ての住戸に該当しない項目もあります。各問い合わせ先にご確認ください。
    • 「建築条件付き土地」とは、一定期間内(概ね3ヶ月程度)に特定の建設会社と建築請負契約を結ぶことを 条件にしている宅地のことです。
    • 建物の内容は、土地購入者の自由意思により決定可能で、土地売買契約後、 建築請負会社と購入した土地に建設する建物について協議することになります。
    • 期間内に建築請負契約が成立しなければ売買契約は白紙となり、支払済みの金銭はすべて返却されます。
    • 「建築条件付き土地」の価格には、建物価格は含まれません。
    • 「建築条件付き土地」の「建物プラン例」は、土地購入者の設計プランの一例であり、プランの採用可否は任意です。
    • 「土地(建築条件なし)」の「建物プラン例」に関して、そのプラン例は特定の建築請負会社によるもので、当該建築請負会社以外で建てた場合、同様のものが同価格で建てられるとは限りません。また、建築請負会社を特定するものではありません。
    • 消費税および地方消費税の対象となる場合は税込み価格が表示されています。
    • 物件の写真やイラスト、CGなどは実際と異なる場合があります。
    • 市区町村の合併などにより、地図が表示されない場合があります。ご了承ください。
    • お客様が入力する個人情報を含むお問い合わせデータは、LIFULL HOME'Sを経由して当該物件情報の取扱会社に転送されます。
    • 不動産購入の検討、契約にあたってはお客様ご自身が情報を確認し、各会社より十分な説明を受け判断してください。
    • 本ページの掲載内容は変更される場合があります。あらかじめご了承ください。
    ページトップへ