八王子市諏訪町第37 新築戸建 全3棟 1号棟

新築仲介一戸建て
所在地 東京都八王子市諏訪町
交通
  • JR中央線「西八王子」駅まで バス 18分 バス停「諏訪神社」まで 徒歩 4分
  • JR中央線「八王子」駅まで バス 26分 バス停「諏訪神社」まで 徒歩 4分
  • 価格 2,780万円
    • 物件情報
    • 地図・周辺情報
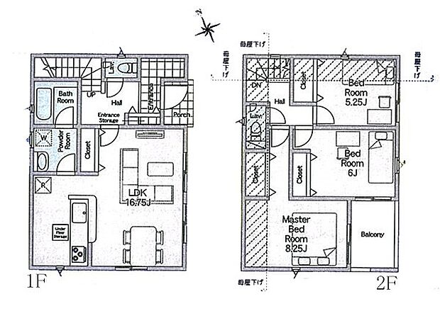
    • 間取り 3LDK
      土地面積 125.01m2
      建物面積 93.14m2
      建物階 地上2階
      完成時期
      • 2025年 11月
    • ■まずは一度ご覧ください
    • ■暮らしを彩る充実した設備仕様が備わった住まい
    • ■家族とのお出かけが楽しくなる環境です
    • ■新しい暮らしが始まる場所で、家族の絆を深める
    • ■一度に多くの料理ができ便利で効率的
    • ■調理時の蒸気や匂いが換気扇に誘導され、効率的に排煙ができます。
    • ■隠れた収納スペースで家全体がスッキリ
    • ■清潔でおいしい水を手軽に供給してくれます
    • ■冬でも温かく、快適乾燥機能で湿気対策もバッチリ
    • ■手元で簡単に止水できるため、水の無駄遣いを減らすことができます。
    • ■快適な駐車スペースで安心
    • ■毎日使う場所だからこそ、清潔感溢れる空間
    • ■明るい洗面所は毎朝の歯磨きも楽しくできちゃいそうです♪
    • ■落ち着いた色合いの壁面、ゆっくり寛げるバスルーム
    • ■シンプルで美しく心地よい時間を生むキッチン空間
    • ■おしゃれで実用的、心ときめくキッチンデザイン
    • ■シンプルで機能的、毎日使いやすいキッチン
    • ■自然と会話が生まれる、心地よいひととき
    • ■お気に入りの場所で、のんびりとした時間を
    • ■家族の笑顔があふれる、くつろぎの空間
    • ■家族の時間を彩る、快適で癒される空間
    • ■静かな洋室で読書や趣味に集中できる場所
    • ■プライベート空間として静かで落ち着いた環境を提供してくれます
    • ■穏やかな空間で自分の時間を大切に
    • ■清潔感あふれるお部屋で毎日を快適に過ごせます
    • ■ 心地よい風と光を感じる、くつろぎのバルコニー
    • ■ 心地よい暮らしへとつながる、温かい玄関
    • ■ シンプルで美しく、快適な暮らしの入り口

    住みやすさ

    西八王子の住みやすさの採点分布

           
    ココが住みやすい!
    • 有名な高尾山に近く、八王子駅に行けば大体何でも揃うので便利でした。 西八王子駅周辺も普段の買い物をする分には不便なかったで…
    • とても静かで自然も多くて家族で住むならのんびりとすごせる場所だと思います。 電車移動の時は都心に行く時もどの時間帯でも座れ…
    • 駅には、飲食店やファミレス、wifi設備のお店、ドラッグストア、スーパーがあり駅に行けば日常生活には困らなかった。夜中まで営…
    ※住みやすさに関する評点は、単純平均ではなく当社独自の集計方法を加え算出しています。

    販売概要

    販売戸数 1戸 最多価格帯 -
    販売価格 2,780万円
    土地面積 125.01m2
    建物面積 93.14m2
    建物状況 新築 建物現況 空家
    土地状況 - 最適用途 -
    建築条件備考 - 構造・工法
    • 木造
    間取り 3LDK 建物階 地上2階
    建ぺい率 / 容積率 40% / 80%
    接道
    接道状況:
    一方
    接道詳細:
    • 南東 (公道 幅員 5.00m 接面 -)
    駐車場・車庫
    • 3台
    • 駐車場料金:無料
    完成時期
    • 2025年 11月
    引渡し可能時期
    • 即時
    その他諸費用 -
    こだわり条件
    • 床下収納
    • TVモニタ付インターホン
    • カウンターキッチン
    • 浴室乾燥機
    • 制震構造
    • 防犯カメラ
    • 全居室収納
    • 設計住宅性能評価付き
    • 建設住宅性能評価書(新築時)
    • 即入居可
    • 駐車場2台以上
    • 低層住宅地
    備考
    • 物件種目:戸建
    • 主たる設備概要:-
    • 上水道:公営
    • 下水道:本下水
    • ガス・オール電化:都市ガス
    • セットバック:無
    • 国土法:不要
    • 法令上の制限その他:建築基準法22条区域 宅地造成工事規制区域内 第一種高度地区 元八王子北部地区地区計画
    • 建築確認番号:第R07SHC113183号
    • 都市計画:市街化区域
    関連サイト -

    全体概要

    所在地 東京都八王子市諏訪町
    交通
    • JR中央線「西八王子」駅まで バス 18分 バス停「諏訪神社」まで 徒歩 4分
    • JR中央線「八王子」駅まで バス 26分 バス停「諏訪神社」まで 徒歩 4分
    土地の権利 所有権
    総戸数 3戸
    私道負担 - 用途地域 第一種低層住居専用地域
    地目 宅地 施工会社 -
    情報掲載開始日 2025年10月23日 情報更新日 2025年12月5日
    取引条件有効期限 2025年12月19日 次回更新予定日 -

    ローンシミュレーション

    頭金、借入期間、金利から毎月の住宅ローンお支払い額の目安を試算します。ご希望の条件に変更してご利用ください。

    物件価格の初期値は最低値を設定しております。実際にローン契約をする際は、詳細を不動産会社にご確認ください。

    万円
    万円
    %

    ※頭金や金利、借入期間によって支払う金額は変わります。

    ※物件購入時には、物件価格の他に諸費用がかかります。

    =
    月々のお支払い目安
    元金
    万円/月
    金利
    万円/月
    お支払い目安
    万円/月

    お問い合わせ

    ご覧いただいている物件の住宅ローンや実際にかかる諸費用、資金計画などのご相談ができます。

    不動産会社へのお問い合わせ

    エムイーPLUS多摩株式会社

    この物件の価格

    2,780万円

    • 会社名:エムイーPLUS多摩株式会社
    • 住所:東京都国分寺市南町2丁目14-3 ユニエトワール国分寺1階
    • 電話:042-312-4722
    • 交通:JR中央線「国分寺」駅まで 徒歩 6分
    • 取引態様:媒介
    • 免許番号:東京都知事(01)第109973号
    • 不動産団体名:(公社)首都圏不動産公正取引協議会、(公社)全日本不動産協会東京都本部
    • 保証協会:(公社)全国宅地建物取引業保証協会
    • 売主:-
    • 売主免許番号:-
    • 関連サイト:-

    お電話でのお問い合わせはこちら(取り扱い不動産会社に直接つながります)

    電話をかける(携帯電話・PHSでも可)

    1電話番号を入力する

    0037-619-87478

    お問い合わせ先

    エムイーPLUS多摩株式会社

    2音声案内に従い、以下の番号を入力

    お問い合わせ番号 38732-3196

    不動産会社につながります

    不動産会社のスタッフと
    直接電話で話せます

    店舗スタッフ
    • お客様の電話番号は不動産会社に通知されません。
    • 光IP電話、及びIP電話からはご利用になれません。
    • 定休日や営業時間外にてお電話がつながらない場合は、お問い合わせフォームよりお問い合わせください。
    • 携帯電話からお問合せいただいた方には、ショートメッセージ(SMS)またはLINE通知メッセージによるお問い合わせ内容に関する通知を株式会社LIFULLよりお届けする場合があり、お客様の電話番号は株式会社LIFULLで一定期間保管されます。
    • 株式会社LIFULLの個人情報の取扱い方針に同意のうえ、お電話ください。
    • オーナー様・不動産会社様・現在ご入居中のお客様など、住まい探し以外のご相談はこちらからお問い合わせください。

    他の物件も見てみる

    • 完成後1年を経過している未入居物件が掲載されている場合があります。
    • 販売住戸が複数の物件は、全ての住戸に該当しない項目もあります。各問い合わせ先にご確認ください。
    • 「建築条件付き土地」とは、一定期間内(概ね3ヶ月程度)に特定の建設会社と建築請負契約を結ぶことを 条件にしている宅地のことです。
    • 建物の内容は、土地購入者の自由意思により決定可能で、土地売買契約後、 建築請負会社と購入した土地に建設する建物について協議することになります。
    • 期間内に建築請負契約が成立しなければ売買契約は白紙となり、支払済みの金銭はすべて返却されます。
    • 「建築条件付き土地」の価格には、建物価格は含まれません。
    • 「建築条件付き土地」の「建物プラン例」は、土地購入者の設計プランの一例であり、プランの採用可否は任意です。
    • 「土地(建築条件なし)」の「建物プラン例」に関して、そのプラン例は特定の建築請負会社によるもので、当該建築請負会社以外で建てた場合、同様のものが同価格で建てられるとは限りません。また、建築請負会社を特定するものではありません。
    • 消費税および地方消費税の対象となる場合は税込み価格が表示されています。
    • 物件の写真やイラスト、CGなどは実際と異なる場合があります。
    • 市区町村の合併などにより、地図が表示されない場合があります。ご了承ください。
    • お客様が入力する個人情報を含むお問い合わせデータは、LIFULL HOME'Sを経由して当該物件情報の取扱会社に転送されます。
    • 不動産購入の検討、契約にあたってはお客様ご自身が情報を確認し、各会社より十分な説明を受け判断してください。
    • 本ページの掲載内容は変更される場合があります。あらかじめご了承ください。
    ページトップへ