| 所在地 | 広島県福山市大門町3丁目398番 |
|---|---|
| 交通 | |
| 価格 | 3,298~3,490万円 月々のお支払い目安
|

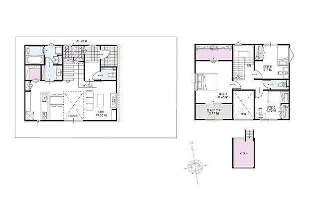
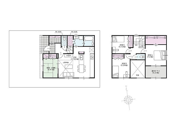
| 間取り | 3LDK+ロフト・4LDK |
|---|---|
| 土地面積 | 139.84m2~140.89m2 |
| 建物面積 | 108.75m2~113.20m2 |
| 建物階 | 木造2階建(特殊金物・軸組工法) |
| 完成時期 |
|







































販売中
| 販売戸数 | 2戸 | 最多価格帯 | - |
|---|---|---|---|
| 販売価格 |
3,298~3,490万円 月々のお支払い目安
|
||
| 土地面積 | 139.84m2~140.89m2 | ||
| 建物面積 | 108.75m2~113.2m2 | ||
| 建物状況 | - | 建物現況 | 新規分譲 |
| 土地状況 | - | 最適用途 | - |
| 建築条件備考 | - | 構造・工法 | - |
| 間取り | 3LDK+ロフト・4LDK | 建物階 | 木造2階建(特殊金物・軸組工法) |
| 建ぺい率 / 容積率 | 建蔽率60% 容積率200% | ||
| 接道 |
|
||
| 駐車場・車庫 |
|
完成時期 |
|
| 引渡し可能時期 |
|
||
| その他諸費用 | - | ||
| こだわり条件 |
|
||
| 備考 |
|
||
| 関連サイト | - | ||
| 所在地 | 広島県福山市大門町3丁目398番 | ||
|---|---|---|---|
| 交通 |
|
||
| 土地の権利 | 所有権 | ||
| 総戸数 | 6戸 | ||
| 私道負担 | - | 用途地域 | 第一種住居地域 |
| 地目 | 宅地 | 施工会社 | ワウハウス株式会社 |
| 情報掲載開始日 | 2025年6月2日 | 情報更新日 | 2025年12月6日 |
| 取引条件有効期限 | 2025年12月31日 | 次回更新予定日 | 2025年12月9日 |
頭金、借入期間、金利から毎月の住宅ローンお支払い額の目安を試算します。ご希望の条件に変更してご利用ください。
物件価格の初期値は最低値を設定しております。実際にローン契約をする際は、詳細を不動産会社にご確認ください。
この物件のアピールポイント
デザイン階段を採用した1号地は、家族の集い場となるような思いを込めて「きざはし」と命名。お子様とお話したり本を読んだり、腰かけたりできる場所になります。 省エネ&創エネのZEH住宅。GX志向型の高性能住宅を月々支払い7万円から。 ■創業27年累計5000棟超のお引渡し実績 ■あかり協定で夜遅くのご帰宅時にも安心安全 ■電気代を気にせず年中快適な暮らし/ZEH基準の断熱等級5 ■ワウハウスの定期訪問・定期点検は安心の15年