【細田工務店】グローイングスクエア宮前平グランデ 第3期2次

新築分譲一戸建て
所在地 神奈川県川崎市宮前区神木1丁目2-1他(地番)
交通
  • 東急田園都市線「宮前平」駅 徒歩13分
  • 価格 未定
    予告広告
    この広告は予告広告です。販売を開始するまでは、契約または予約(仮予約を含む)のお申込みには一切応じられませんのでご了承ください。
    価格または販売方法が未定の場合は、新規分譲広告にて確定情報をお知らせします。
    資料請求する無料 見学予約する無料

    ※LIFULL HOME'Sの資料請求ページに移動します

    お気に入りに追加
    • 物件情報
    • 地図・周辺情報
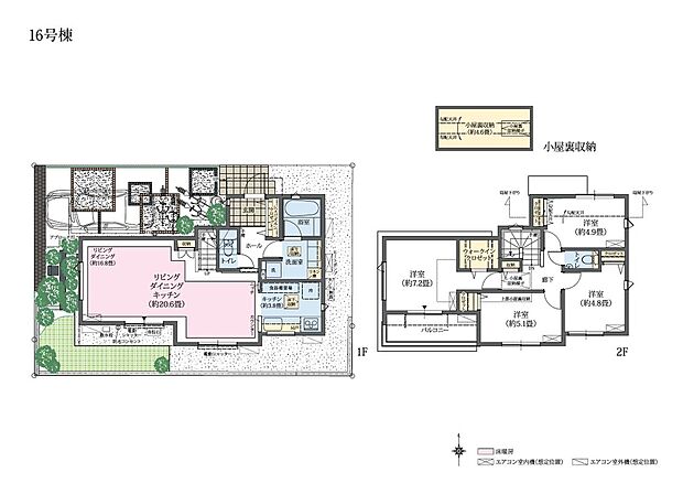
    • 間取り 3LDK・4LDK※3LDKを4LDKに変更可(有償)
      土地面積 125.20m2~125.21m2
      建物面積 99.57m2
      建物階 木造2階建て、軸組(在来)工法、スレート葺
      完成時期
      • 2026年2月竣工済
    • 外観街並みパース
    • 【4LDK 】SIC+WIC+リネン棚+小屋裏収納
    • 【3(4)LDK ※4LDKに変更可(有償)】WTSIC+WIC+パン取りー+リネン棚+小屋裏収納※大型バルコニー
    • 【エコワン】エコワンはガスと電気を組み合わせたハイブリッド給湯・暖房システム。ガスと電気で効率よく給湯するので光熱費を大幅に抑え、毎日のランニングコストも安心。
    • 【太陽光発電システム】環境とエコに貢献できる太陽光パネルを全棟標準装備。光熱費の節約や非常時の電源確保など、快適と安心な生活をバックアップします。
    • 【TES温水式床暖房】「ふく射熱」で足下から室内全体を均一に暖める床暖房システム。風が出ないので、部屋の乾燥やホコリを舞いあげる心配もなくクリーンな暖房です。
    • 【ハイブリッドキューブ工法】制振性能をもつ壁倍率5倍の制振ダンパー耐震壁「延樹・ブランチ」を組み合わせることで、建物の揺れを吸収。繰返し発生する大地震から建物の損壊を軽減し、建物の長寿化にも貢献します。
    • 【長期優良住宅】環境負荷の軽減や良質な社会資産として継承されることを目的に国が定めた「長期優良住宅」の認定基準をクリアした住宅です。認定を受けることで、税制面の優遇や住宅ローンの金利優遇など、金銭的なメリットがあります。
    • 【ZEHレベルの高性能住宅】断熱サッシや天井等の「高断熱」化、LED照明などの高効率設備による「省エネ」、太陽光発電システムによる「創エネ」。これらにより、住宅の一次エネルギー消費量を削減することを目指した次世代の快適住宅です。(一部除く)
    • 【シックハウス対策】シックハウス対策に対応した最も高い水準の健康住宅仕様です。
細田工務店では、建築基準法に対応することはもちろん、つねに清浄な室内空気環境を求めて、内装用建材はホルムアルデヒドの発散量がきわめて少ない最高等級の3を取得しています。
    • 【Low-e複層ガラスサッシ(アルゴンガス入り)】空気の代わりにアルゴンガスを封入したLow-e複層ガラスを採用しています。高断熱・高遮熱、省エネ性にも優れたペアガラスの中で最も断熱性能が高いガラスです。
    • 【耐震等級3】細田工務店の技術は、住宅性能表示制度で最も高い耐震等級「3」の基準を超える量の耐力壁・準耐力壁によって、高い耐震性能を実現しています。これは、建築基準法の1.5倍を上まわる強度です。
    • いなげや
    • クリエイト
    • 宮前区役所
    • 平小学校
    • キッズナーサリー宮前平園
    • 神木公園
    • 全体区画図
    • 案内図

    住みやすさ

    宮前平の住みやすさの採点分布

           
    ココが住みやすい!
    • スーパーやドラッグストアが近くにあったりして住むには困らない。夜も静かで落ち着いている住宅街。乗り換えなしで渋谷まで30分程…
    • 田園都市線沿いで都内へのアクセスも良く、裏通りには個人の飲食店も多く、穏やかな街並みは様々な年齢層に適しています。
    • 宮前平から田園都市線で渋谷まで一本だし、たまプラーザにも近く、買い物には困らない。 ただ坂が多いので電動自転車や車があった…
    ※住みやすさに関する評点は、単純平均ではなく当社独自の集計方法を加え算出しています。
    お気に入りに追加 この物件の資料請求無料 見学予約する無料

    ※LIFULL HOME'Sの資料請求ページに移動します

    販売スケジュール

    2026年5月中旬販売予定

    販売概要

    本販売期以降の総販売戸数 2戸
    販売戸数または販売区画数は未定です。物件の取引内容及び取引条件は、本販売期以降の総販売戸数・本販売期以降の総販売区画数を基に表示しています。確定情報については本広告時に明示します
    予定最多価格帯 -
    販売価格 未定
    土地面積 125.2m2・125.21m2(37.87坪・37.87坪)
    建物面積 99.57m2(約30.11坪)
    建物状況 - 建物現況 分譲予定
    土地状況 - 最適用途 -
    建築条件備考 - 構造・工法 -
    間取り 3LDK・4LDK※3LDKを4LDKに変更可(有償) 建物階 木造2階建て、軸組(在来)工法、スレート葺
    建ぺい率 / 容積率 建ぺい率50% 容積率80%
    接道
    西側:6.5m(公道)、私道4.5m(110.88mを1/7負担)、アスファルト舗装
    駐車場・車庫
    • 1台
    完成時期
    • 2026年2月竣工済
    引渡し可能時期
    • 2026年6月予定
    その他諸費用 -
    こだわり条件
    • 瑕疵担保付き
    • 仲介手数料不要
    • 見学可能
    • マイホーム発電システム
    • スマートハウス
    • 浴室乾燥機
    • 浴室暖房
    • カウンターキッチン
    • 食器洗い乾燥機
    • 床暖房
    • 床下収納
    • ウォークインクローゼット
    • 屋根裏収納
    • シューズクローク
    • パントリー
    • バリアフリー
    • テラス
    • 吹き抜け
    • TVモニタ付インターホン
    • ホームセキュリティ対応
    • 低層住宅地
    • 総戸数・総区画数が10以上〜30未満
    • 長期優良住宅
    • 設計住宅性能評価付き
    • 敷地延長・変形地
    • 駐車場あり
    備考
    • 物件種目:戸建
    • 主たる設備概要:東京電力、都市ガス、公営水道、公共下水道
    • 建築確認番号:第R07SHC115314号(令和7年9月12日付)他
    • 売主:株式会社 細田工務店
    • 備考欄:一部高圧線下となる区画があります。(※17号棟、18号棟、19号棟)
      ゴミ置き場5.00m2(各1/19負担)
      雨水調整池(1)(1~8区画)、雨水調整池(2)(9~15区画)※雨水調整池は管理組合を設立し維持管理予定。
      屋根の一部に板金屋根を採用しています。

      ■お問い合わせ受付時間:午前10時~午後6時(毎週水曜木曜・第二火曜定休※祝日を除く)

      ・9物件合同成約特典キャンペーン:対象物件について、5/1(金)~5/31(日)までにご成約いただいた方に、「星野リゾート宿泊ギフト券10万円分プレゼント!
      ※2026年6月末日までに引渡可能な方。
      ※成約特典は、他の特典・キャンペーンとの併用は不可です。詳細は営業スタッフへご確認ください。
    関連サイト -

    省エネ性能

    この物件の省エネ性能がわかる「省エネ性能ラベル」です。省エネ性能ラベルは2024年4月以降に建築確認申請した物件などで表示しています。

    ※「省エネ性能ラベル」は特定の住戸の性能を示し、全ての住戸の性能を示していない場合があります。

    省エネ性能ラベル
    エネルギー消費性能
    (削減率50%達成)
    エネルギー消費性能とは
    星マークの数が多いほどエネルギー消費性能が高いことを示しています。再エネ設備のない住宅は★0~★4の5段階評価、再エネ設備がある住宅は★0~★6の7段階評価となります。
    断熱性能
    5段階 / 7段階
    断熱性能とは
    数値が高いほど断熱性能が高いことを示しています。「熱の逃げやすさ」と「日射熱の入りやすさ」の2つの点で7段階で評価しています。
    目安光熱費
    約14万円〜約19.3万円 / 年
    目安光熱費とは
    一年間にかかる光熱費の目安額です。住宅の省エネ性能と全国一律の燃料等の単価を用いて、一定の条件下で自動算出したもので、実際にかかる光熱費とは異なります。

    全体概要

    所在地 神奈川県川崎市宮前区神木1丁目2-1他(地番)
    交通
    • 東急田園都市線「宮前平」駅 徒歩13分
    土地の権利 所有権
    総戸数 19戸
    私道負担 - 用途地域 第一種低層住居専用地域
    地目 宅地 施工会社 株式会社 細田工務店
    情報掲載開始日 2024年12月19日 情報更新日 2026年5月7日
    取引条件有効期限 - 次回更新予定日 2026年5月21日

    不動産会社へのお問い合わせ

    現地インフォメーションデスク (毎週水曜木曜・第二火曜定休※祝日を除く)

    この物件のアピールポイント

    【細田工務店】成約キャンペーン開催!モデルハウス公開!最終第3期2次区画ご案内会開催!リビング吹き抜け、4LDK対応プラン、眺望・開放感を高めたプランニング【全19区画】 ■人気の東急田園都市線「宮前平」駅徒歩13分 ■眺望や開放感、機能性を高めたプランニング、全19邸 ■住宅性能表示で6つの最高等級を取得 ■ZEHレベルの高い断熱性能で快適生活 ■全邸、季節ものの収納に便利な「小屋裏収納」完備 ■高耐震&制震性を備えた6面体構造の「ハイブリッドキューブ工法」

    • 会社名:株式会社細田工務店 
    • 住所:東京都杉並区阿佐谷南3-35-21
    • 電話:03-3220-1111
      ※物件のお問い合わせは0120-221-019
    • 取引態様:株式会社 長谷工アーベスト 販売代理
    • 免許番号:建設大臣 (16) 第 483 号
    • 不動産団体名:(公社)首都圏不動産公正取引協議会 (一社)全国住宅産業協会 (一社)日本木造住宅産業協会会員
    • 売主:株式会社 細田工務店
    • 売主免許番号:宅建業免許:国土交通大臣(16) 第483号
    • 関連サイト:-
    資料請求する無料 見学予約する無料

    ※LIFULL HOME'Sの資料請求ページに移動します

    他の物件も見てみる

    条件が似た物件
    • 外観
    • 間取り

    最近見た物件
    • 外観
    • 間取り

    • 完成後1年を経過している未入居物件が掲載されている場合があります。
    • 販売住戸が複数の物件は、全ての住戸に該当しない項目もあります。各問い合わせ先にご確認ください。
    • 「建築条件付き土地」とは、一定期間内(概ね3ヶ月程度)に特定の建設会社と建築請負契約を結ぶことを 条件にしている宅地のことです。
    • 建物の内容は、土地購入者の自由意思により決定可能で、土地売買契約後、 建築請負会社と購入した土地に建設する建物について協議することになります。
    • 期間内に建築請負契約が成立しなければ売買契約は白紙となり、支払済みの金銭はすべて返却されます。
    • 「建築条件付き土地」の価格には、建物価格は含まれません。
    • 「建築条件付き土地」の「建物プラン例」は、土地購入者の設計プランの一例であり、プランの採用可否は任意です。
    • 「土地(建築条件なし)」の「建物プラン例」に関して、そのプラン例は特定の建築請負会社によるもので、当該建築請負会社以外で建てた場合、同様のものが同価格で建てられるとは限りません。また、建築請負会社を特定するものではありません。
    • 消費税および地方消費税の対象となる場合は税込み価格が表示されています。
    • 物件の写真やイラスト、CGなどは実際と異なる場合があります。
    • 市区町村の合併などにより、地図が表示されない場合があります。ご了承ください。
    • お客様が入力する個人情報を含むお問い合わせデータは、LIFULL HOME'Sを経由して当該物件情報の取扱会社に転送されます。
    • 不動産購入の検討、契約にあたってはお客様ご自身が情報を確認し、各会社より十分な説明を受け判断してください。
    • 本ページの掲載内容は変更される場合があります。あらかじめご了承ください。
    ページトップへ