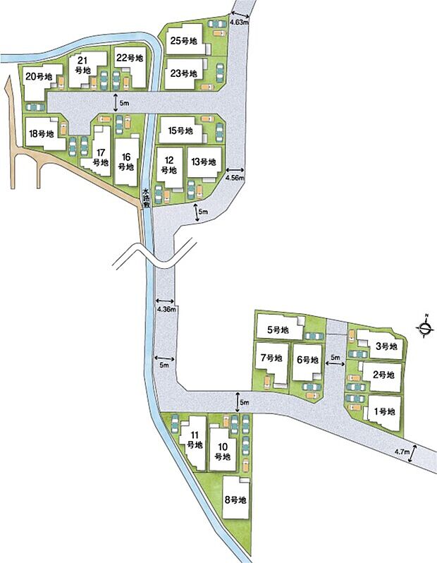
| 所在地 | 大阪府藤井寺市小山2-11番2から分筆、3番1及び14番1から分筆 |
|---|---|
| 交通 | |
| 価格 | 1945万円・1992万円 月々のお支払い目安
|

| 間取り | - |
|---|---|
| 土地面積 | 104.00m2~123.00m2 |
| 建物面積 | - |
| 建物階 | - |
| 完成時期 |
|

































販売中
| 販売区画数 | 2区画 | 最多価格帯 | 1900万円台(2区画) |
|---|---|---|---|
| 販売価格 |
1945万円・1992万円 月々のお支払い目安
|
||
| 土地面積 | 104m2(約31.45坪)・123m2(約37.20坪) | ||
| 建物面積 | - | ||
| 建物状況 | - | 建物現況 | 分譲中 |
| 土地状況 | 更地 | 最適用途 | - |
| 建築条件備考 | 建築条件付き | 構造・工法 | - |
| 間取り | - | 建物階 | - |
| 建ぺい率 / 容積率 | 建ぺい率:60%、容積率:200% | ||
| 接道 |
|
||
| 駐車場・車庫 |
|
完成時期 |
|
| 引渡し可能時期 |
|
||
| その他諸費用 | - | ||
| こだわり条件 |
|
||
| 備考 |
|
||
| 関連サイト | - | ||
| 所在地 | 大阪府藤井寺市小山2-11番2から分筆、3番1及び14番1から分筆 | ||
|---|---|---|---|
| 交通 |
|
||
| 土地の権利 | 所有権 | ||
| 総区画数 | 20区画 | 開発面積 | 2942.36m2 |
| 私道負担 | - | 用途地域 | 第一種住居地域、第一種中高層住居専用地域 |
| 地目 | 宅地 | 施工会社 | - |
| 情報掲載開始日 | 2023年8月31日 | 情報更新日 | 2025年12月4日 |
| 取引条件有効期限 | 2025年12月31日 | 次回更新予定日 | 2025年12月14日 |
頭金、借入期間、金利から毎月の住宅ローンお支払い額の目安を試算します。ご希望の条件に変更してご利用ください。
物件価格の初期値は最低値を設定しております。実際にローン契約をする際は、詳細を不動産会社にご確認ください。
この物件のアピールポイント
【12/4更新】 全20区画の分譲地。自由設計対応で叶える理想の我が家! 藤井寺駅まで徒歩13~14分!準急利用で、「大阪阿倍野橋」駅へ快適アクセス! ■西名阪自動車道・藤井寺ICが近く、お車での遠方へのお出かけにも便利な立地です。 ■教育・医療施設、ショッピングセンターが徒歩10分圏内! ~次世代まで住み継げる家「FWP-ES工法」の大切なポイント~ ■揺れを抑えて建物を守る!オリジナル「耐震&制震工法」を採用! ■ローン金利・税制の優遇もある「長期優良住宅認定仕様」!