【総桧で建築します】 JR龍ケ崎市 城ノ内 2680万円

新築分譲一戸建て
所在地 茨城県龍ケ崎市城ノ内5丁目
交通
  • JR常磐線「龍ケ崎市」駅 7.63Km
  • 価格 2,680万円
    資料請求する無料 見学予約する無料

    ※LIFULL HOME'Sの資料請求ページに移動します

    お気に入りに追加
    • 物件情報
    • 地図・周辺情報
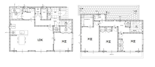
    • 間取り 4LDK
      土地面積 184.60m2
      建物面積 99.36m2
      建物階 木造JAS規格桧構造材瓦葺2階建
      完成時期
      • 2026年11月
    • 完成予想図(外観)
    • JR龍ケ崎市駅(約7,630m)
    • あいゆう園(約100m)
    • 城ノ内小学校(約480m)
    • 城ノ内中学校(約270m)
    • 城ノ内第五街区公園(約90m)
    • たつのこまち龍ヶ崎モール(約1,910m)
    • 住宅保証機構優良事業者に認定されました
    • 間取り図
    • 城ノ内小学校 480m
    • 【総桧住宅】すべての建物を総桧で建築します。日栄商事は高知県と「土佐材パートナー企業」を結んでいます。隅柱、管柱、土台すべてに使用。
    • 茨城エリア安心できる注文住宅メーカー第1位獲得

    住みやすさ

    龍ケ崎市の住みやすさの採点分布

           
    ココが住みやすい!
    • 子育て世代に優しく、車を少し走らせれば大きな公園が多いです。市役所の方々も凄く親身になってくださるので、すごくありがたいです…
    • スーパーやドラッグストア、ファストファッション系のアパレル店などが多く、1つの通り沿いに揃っているので買い物がしやすい。つく…
    • 目の前に自然がたくさんあって結構静か。小学校、中学校ともに距離が近く、行きやすい。近所の人もいい人ばっかり
    ※住みやすさに関する評点は、単純平均ではなく当社独自の集計方法を加え算出しています。
    お気に入りに追加 この物件の資料請求無料 見学予約する無料

    ※LIFULL HOME'Sの資料請求ページに移動します

    販売スケジュール

    販売中

    販売概要

    販売戸数 1戸 最多価格帯 -
    販売価格 2,680万円
    土地面積 184.60m2
    建物面積 99.36m2
    建物状況 - 建物現況 新規分譲
    土地状況 - 最適用途 -
    建築条件備考 - 構造・工法 -
    間取り 4LDK 建物階 木造JAS規格桧構造材瓦葺2階建
    建ぺい率 / 容積率 建ぺい率50%、容積率100%
    接道
    北6m公道
    駐車場・車庫
    • 2台
    完成時期
    • 2026年11月
    引渡し可能時期
    • 2026年11月
    その他諸費用 -
    こだわり条件
    • 瑕疵担保付き
    • 仲介手数料不要
    • 見学可能
    • 間取り変更可能
    • カウンターキッチン
    • バリアフリー
    • TVモニタ付インターホン
    • 低層住宅地
    • 駐車場あり
    備考
    • 物件種目:戸建
    • 主たる設備概要:公営水道、公共下水、都市ガス
    • 建築確認番号:第2023CA-1239S号
    • 売主:日栄商事株式会社
    • 都市計画:市街化区域
    • 備考欄:◎日栄商事の住まい
      ☆全棟総桧で建築します。隅柱、菅柱、土台すべてに桧を使用
      ☆厳選された土佐桧(JAS農林水産省、大臣官房長賞を受賞)
      ☆茨城エリア安心できる住宅メーカー第1位獲得(日本マーケティングリサーチ調べ)

      地域に根ざして創業83年。設計、施工、アフターメンテナンス迄一貫体制で行っております。又TX沿線情報に自信があり、どんな事でもご相談下さい。


      日栄商事 おススメ POINT!!

      日栄商事は高知県と「土佐材パートナー企業」を結んでいます。

      【総桧住宅】
      すべての建物を総桧で建築します。隅柱・管柱・土台すべてに使用。使用する桧(ヒノキ)は、厳選した土佐産材にこだわり、山から製材所まで当社スタッフが現地調査しています。〈出荷証明、産地証明添付〉

      【三州三河の瓦を使用】
      当社の屋根材は三州三河産「鶴弥」で生産された瓦を使用しています。 全国シェア約20%を誇る業界最大の瓦メーカーです。地震や台風など自然災害にも強く、耐久性能は100年以上と言われています。

      【全棟剛床】
      剛床工法とは、根太を設けず床下地合板の厚みを厚くして、直接梁材に留め付ける床組みで、根太工法に比べ地震や台風時に発生する水平力に対して強く、火打ち梁を省く事が出来ます。

      【マイクロガード】
      外壁の汚れ防止、耐久性がUP。親水性の効果で空気中の水分子を取り込んで外壁表面に薄い水分子膜を作り、汚れを浮かせて雨で洗い落します。

      【地盤20年保証】
      地耐力を試験により確認し、必要な場合は柱状改良や表層改良などにより十分な強度を確保してから基礎工事に入ります。

      【耐震等級3仕様】
      耐震等級3とは、消防署や警察署等の防災拠点となる「絶対に倒れてはいけない建物」に採用されている基準です。


      【プラチナシール】
      雨、湿気に負けない接着性!紫外線による色褪せや亀裂劣化に強く、汚れが付着しにくい特性、目地が目立ちにくい特性があるので長期間美しい外観を維持できます。
    関連サイト -

    全体概要

    所在地 茨城県龍ケ崎市城ノ内5丁目
    交通
    • JR常磐線「龍ケ崎市」駅 7.63Km
    土地の権利 所有権
    総戸数 1戸
    私道負担 - 用途地域 第一種低層住居専用地域
    地目 宅地 施工会社 日栄ホーム株式会社
    情報掲載開始日 2024年1月14日 情報更新日 2026年5月9日
    取引条件有効期限 2027年1月7日 次回更新予定日 2026年5月15日

    ローンシミュレーション

    頭金、借入期間、金利から毎月の住宅ローンお支払い額の目安を試算します。ご希望の条件に変更してご利用ください。

    物件価格の初期値は最低値を設定しております。実際にローン契約をする際は、詳細を不動産会社にご確認ください。

    万円
    万円
    %

    ※頭金や金利、借入期間によって支払う金額は変わります。

    ※物件購入時には、物件価格の他に諸費用がかかります。

    =
    月々のお支払い目安
    元金
    万円/月
    金利
    万円/月
    お支払い目安
    万円/月

    お問い合わせ

    ご覧いただいている物件の住宅ローンや実際にかかる諸費用、資金計画などのご相談ができます。

    不動産会社へのお問い合わせ

    日栄商事株式会社

    この物件のアピールポイント

    【総桧住宅】売主物件につき仲介手数料不要 あいゆう園(100m)・城ノ内小学校(480m)・城ノ内中学校(270m)・城ノ内第五街区公園(90m)が近く子育て環境良好!高台で通風、眺望GOOD! 当社桧はすべて、JAS日本農林規格の木材を使用! 【土佐材 桧】 使用する桧(ヒノキ)は、選び抜かれた土佐産材にこだわり、山から製材所まで当社スタッフが現地調査しています。〈出荷証明、産地証明添付〉

    • 会社名:日栄商事株式会社
    • 住所:茨城県常総市水海道山田町4663
    • 電話:0297-22-1511
    • 取引態様:日栄商事株式会社(売主)
    • 免許番号:国土交通大臣 (1) 第 10350 号
    • 不動産団体名:(公社)茨城県宅地建物取引業協会
    • 売主:日栄商事株式会社
    • 売主免許番号:-
    • 関連サイト:-
    資料請求する無料 見学予約する無料

    ※LIFULL HOME'Sの資料請求ページに移動します

    他の物件も見てみる

    条件が似た物件
    • 外観
    • 間取り

    最近見た物件
    • 外観
    • 間取り

    • 完成後1年を経過している未入居物件が掲載されている場合があります。
    • 販売住戸が複数の物件は、全ての住戸に該当しない項目もあります。各問い合わせ先にご確認ください。
    • 「建築条件付き土地」とは、一定期間内(概ね3ヶ月程度)に特定の建設会社と建築請負契約を結ぶことを 条件にしている宅地のことです。
    • 建物の内容は、土地購入者の自由意思により決定可能で、土地売買契約後、 建築請負会社と購入した土地に建設する建物について協議することになります。
    • 期間内に建築請負契約が成立しなければ売買契約は白紙となり、支払済みの金銭はすべて返却されます。
    • 「建築条件付き土地」の価格には、建物価格は含まれません。
    • 「建築条件付き土地」の「建物プラン例」は、土地購入者の設計プランの一例であり、プランの採用可否は任意です。
    • 「土地(建築条件なし)」の「建物プラン例」に関して、そのプラン例は特定の建築請負会社によるもので、当該建築請負会社以外で建てた場合、同様のものが同価格で建てられるとは限りません。また、建築請負会社を特定するものではありません。
    • 消費税および地方消費税の対象となる場合は税込み価格が表示されています。
    • 物件の写真やイラスト、CGなどは実際と異なる場合があります。
    • 市区町村の合併などにより、地図が表示されない場合があります。ご了承ください。
    • お客様が入力する個人情報を含むお問い合わせデータは、LIFULL HOME'Sを経由して当該物件情報の取扱会社に転送されます。
    • 不動産購入の検討、契約にあたってはお客様ご自身が情報を確認し、各会社より十分な説明を受け判断してください。
    • 本ページの掲載内容は変更される場合があります。あらかじめご了承ください。
    ページトップへ