川口市上青木6丁目

新築仲介一戸建て
所在地 埼玉県川口市上青木6丁目
交通
  • 埼玉高速鉄道「鳩ヶ谷」駅まで 徒歩 20分
  • JR京浜東北・根岸線「蕨」駅まで バス 15分 バス停「上青木五丁目」まで 徒歩 4分
  • 価格 4,990万円
    • 物件情報
    • 地図・周辺情報
    • 間取り 4LDK
      土地面積 117.65m2
      建物面積 95.64m2
      建物階 地上2階
      完成時期
      • 2026年 6月
    • 【外観】こちらの物件が少しでも気になるようでしたら、お気軽にお問合せください。人生でいちばん大きなお買い物ですので、ゆっくりご見学ください。ネット上の画像と実際の見学では、リアル感がまるで違…
    • 【前面道路】こちらの物件が少しでも気になるようでしたら、お気軽にお問合せください。人生でいちばん大きなお買い物ですので、ゆっくりご見学ください。ネット上の画像と実際の見学では、リアル感がまる…
    • 【外観】こちらの物件が少しでも気になるようでしたら、お気軽にお問合せください。人生でいちばん大きなお買い物ですので、ゆっくりご見学ください。ネット上の画像と実際の見学では、リアル感がまるで違…
    • 【前面道路】家の前をまっすぐの通りが走っている。クルマは少なく、人々は毎朝、ウォーキング、ジョギング、犬の散歩など、フリーな朝時間を過ごしている。
    • 【外観】家族の温かさと陽光の暖かさ、楽しい毎日と明るい未来を予感させる「空間が織り成すひとつ先の住み心地」を演出します。
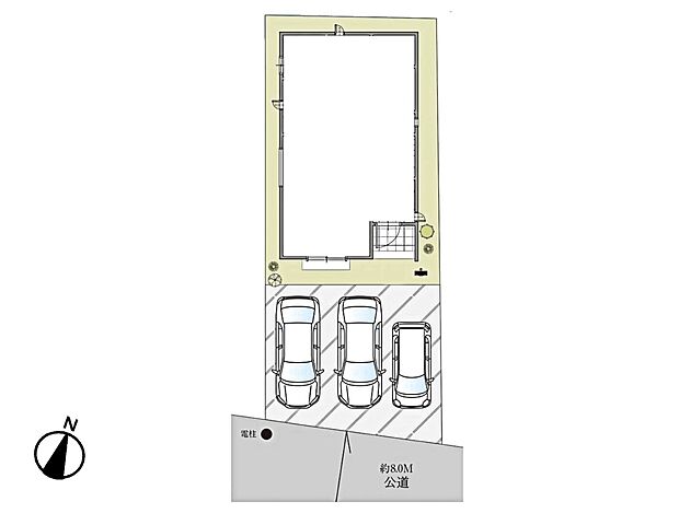
    • 敷地面積/117.65m2 建物面積/95.64m2 
    • 前面道路 約8.0M公道
    • 【駐車場】ゆったりとした駐車スペースを確保。大きめのお車でもOK。
    • 中学校 749m 川口市立前川東小学校
    • 中学校 1041m 川口市立上青木中学校
    • スーパー 665m ヤオコー川口SKIPシティ店
    • その他環境写真 774m マルエツ上青木店
    • コンビニ 533m セブンイレブン川口前川2丁目店(533m 徒歩7分)
    • ドラッグストア≫ドラッグセイムス前川2丁目店
    • 幼稚園・保育園 514m しいのみ保育園
    • その他環境写真 1100m 清泉幼稚園(まで1100m 徒歩14分)
    • 駅 1600m 鳩ヶ谷駅

    住みやすさ

    鳩ヶ谷の住みやすさの採点分布

         
    ココが住みやすい!
    • 交通の便も良く近所に大型複合施設も多数あり不自由無く生活出来ました。 また、役所も夜間や休日に開所している事も便利でした。…
    • 少し移動すればほとんどの施設が揃っていると感じており非常に満足している。 また交通の便が良い。 みんな仲間バスなど低価格…
    • 都心から近距離のわりに非常にのんびりとした空気感がある。不動産や家賃の相場もJR駅と比べお手頃。
    ※住みやすさに関する評点は、単純平均ではなく当社独自の集計方法を加え算出しています。

    販売概要

    販売戸数 1戸 最多価格帯 -
    販売価格 4,990万円
    土地面積 117.65m2
    建物面積 95.64m2
    建物状況 新築 建物現況 未完成
    土地状況 - 最適用途 -
    建築条件備考 - 構造・工法
    • 木造
    間取り 4LDK 建物階 地上2階
    建ぺい率 / 容積率 60% / 200%
    接道
    接道状況:
    一方
    接道詳細:
    • 南東 (公道 幅員 8.00m 接面 -)
    駐車場・車庫
    • 2台
    • 駐車場料金:無料
    完成時期
    • 2026年 6月
    引渡し可能時期
    • 2026年6月下旬 期日指定
    その他諸費用 -
    こだわり条件
    • 床下収納
    • TVモニタ付インターホン
    • バリアフリー
    • 浴室乾燥機
    • 全居室収納
    • 設計住宅性能評価付き
    • フラット35・S適合証明書
    • 建設住宅性能評価書(新築時)
    • 駐車場2台以上
    備考
    • 物件種目:戸建
    • 主たる設備概要:-
    • 上水道:公営
    • 下水道:本下水
    • ガス・オール電化:都市ガス
    • セットバック:無
    • 国土法:不要
    • 建築確認番号:第HPA-26-3561-1号
    • 都市計画:市街化区域
    • 備考欄: 【東宝ハウス浦和の特典】(1)お問合せで「住宅ローン講座」プレゼント(2)ご来店+アンケートでQUOカード最大5000円分プレゼント(3)ライフプランニング:未来カレンダーで将来の収入支出を視える化、不安を安心に(4)かけつけサポート:住まいトラブルに24時間365日対応(入居後3年間無料)(5)ClubOffプレミアム:国内外20万以上の施設を割引で何度でも(入居中無料) 
    関連サイト -

    全体概要

    所在地 埼玉県川口市上青木6丁目
    交通
    • 埼玉高速鉄道「鳩ヶ谷」駅まで 徒歩 20分
    • JR京浜東北・根岸線「蕨」駅まで バス 15分 バス停「上青木五丁目」まで 徒歩 4分
    土地の権利 所有権
    総戸数 1戸
    私道負担 - 用途地域 工業地域
    地目 - 施工会社 -
    情報掲載開始日 2026年4月10日 情報更新日 2026年4月12日
    取引条件有効期限 2026年4月25日 次回更新予定日 -

    ローンシミュレーション

    頭金、借入期間、金利から毎月の住宅ローンお支払い額の目安を試算します。ご希望の条件に変更してご利用ください。

    物件価格の初期値は最低値を設定しております。実際にローン契約をする際は、詳細を不動産会社にご確認ください。

    万円
    万円
    %

    ※頭金や金利、借入期間によって支払う金額は変わります。

    ※物件購入時には、物件価格の他に諸費用がかかります。

    =
    月々のお支払い目安
    元金
    万円/月
    金利
    万円/月
    お支払い目安
    万円/月

    お問い合わせ

    ご覧いただいている物件の住宅ローンや実際にかかる諸費用、資金計画などのご相談ができます。

    不動産会社へのお問い合わせ

    株式会社東宝ハウス浦和

    この物件のアピールポイント

    《当日見学可能な物件です!》〜■■見学予約は【0120-919-113】まで。お気軽にお問合せ下さい

    この物件の価格

    4,990万円

    • 会社名:株式会社東宝ハウス浦和
    • 住所:埼玉県さいたま市浦和区岸町6丁目1-5
    • 電話:0120-919-113
    • 交通:JR京浜東北・根岸線「浦和」駅まで 徒歩 10分
    • 取引態様:媒介
    • 免許番号:埼玉県知事(04)第021060号
    • 不動産団体名:(公社)首都圏不動産公正取引協議会、(公社)全日本不動産協会
    • 保証協会:(公社)不動産保証協会
    • 売主:-
    • 売主免許番号:-
    • 関連サイト:-

    お電話でのお問い合わせはこちら(取り扱い不動産会社に直接つながります)

    電話をかける(携帯電話・PHSでも可)

    1電話番号を入力する

    0037-634-40566

    お問い合わせ先

    株式会社東宝ハウス浦和

    2音声案内に従い、以下の番号を入力

    お問い合わせ番号 41149-3195

    不動産会社につながります

    不動産会社のスタッフと
    直接電話で話せます

    店舗スタッフ
    • お客様の電話番号は不動産会社に通知されません。
    • 光IP電話、及びIP電話からはご利用になれません。
    • 定休日や営業時間外にてお電話がつながらない場合は、お問い合わせフォームよりお問い合わせください。
    • 携帯電話からお問合せいただいた方には、ショートメッセージ(SMS)またはLINE通知メッセージによるお問い合わせ内容に関する通知を株式会社LIFULLよりお届けする場合があり、お客様の電話番号は株式会社LIFULLで一定期間保管されます。
    • 株式会社LIFULLの個人情報の取扱い方針に同意のうえ、お電話ください。
    • オーナー様・不動産会社様・現在ご入居中のお客様など、住まい探し以外のご相談はこちらからお問い合わせください。

    他の物件も見てみる

    条件が似た物件
    • 外観
    • 間取り

    • 完成後1年を経過している未入居物件が掲載されている場合があります。
    • 販売住戸が複数の物件は、全ての住戸に該当しない項目もあります。各問い合わせ先にご確認ください。
    • 「建築条件付き土地」とは、一定期間内(概ね3ヶ月程度)に特定の建設会社と建築請負契約を結ぶことを 条件にしている宅地のことです。
    • 建物の内容は、土地購入者の自由意思により決定可能で、土地売買契約後、 建築請負会社と購入した土地に建設する建物について協議することになります。
    • 期間内に建築請負契約が成立しなければ売買契約は白紙となり、支払済みの金銭はすべて返却されます。
    • 「建築条件付き土地」の価格には、建物価格は含まれません。
    • 「建築条件付き土地」の「建物プラン例」は、土地購入者の設計プランの一例であり、プランの採用可否は任意です。
    • 「土地(建築条件なし)」の「建物プラン例」に関して、そのプラン例は特定の建築請負会社によるもので、当該建築請負会社以外で建てた場合、同様のものが同価格で建てられるとは限りません。また、建築請負会社を特定するものではありません。
    • 消費税および地方消費税の対象となる場合は税込み価格が表示されています。
    • 物件の写真やイラスト、CGなどは実際と異なる場合があります。
    • 市区町村の合併などにより、地図が表示されない場合があります。ご了承ください。
    • お客様が入力する個人情報を含むお問い合わせデータは、LIFULL HOME'Sを経由して当該物件情報の取扱会社に転送されます。
    • 不動産購入の検討、契約にあたってはお客様ご自身が情報を確認し、各会社より十分な説明を受け判断してください。
    • 本ページの掲載内容は変更される場合があります。あらかじめご了承ください。
    ページトップへ