サーラ住宅│フォレストヒルズ高師みなみ

新築分譲一戸建て
所在地 愛知県豊橋市芦原町字芦原53-3,53-6
交通
  • 豊橋鉄道渥美線「芦原」駅 徒歩6分
  • 豊橋鉄道渥美線「高師」駅 徒歩10分
  • 価格 3,590万円
    資料請求する無料 見学予約する無料

    ※LIFULL HOME'Sの資料請求ページに移動します

    お気に入りに追加
    • 物件情報
    • 地図・周辺情報
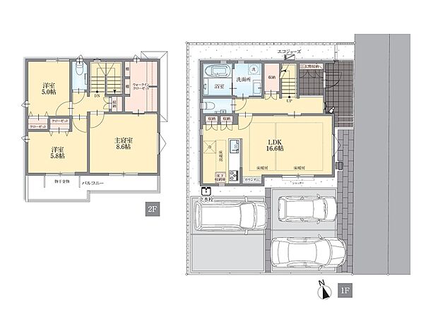
    • 間取り 3LDK
      土地面積 178.49m2
      建物面積 97.75m2
      建物階 木造軸組工法2階建
      完成時期
      • 2023年7月
    • 広々とした前面道路と、並列駐車も安心のカースペース。 2駅利用可・芦原小徒歩約8分の好立地 。太陽光発電や外断熱を完備した、即入居可能な高性能住宅です 。
    • 【3LDK】キッチン横の収納や大容量WIC、さらにLDKに3箇所設置された床暖房など、図面から読み取れる「暮らしの質」を強調します 。
    • 【壁外断熱工法 】(1)断熱性の高い断熱材[ネオマフォーム]でおうちを丸ごと断熱します!
(2)建物の長寿命化と快適な室内の温熱環境を実現する、サーラ住宅のこだわりの「外断熱工法」。その断熱材には、熱伝導率0.020と世界最高水準のネオマフォームを採用しています。
    • 【高性能樹脂窓】(1)樹脂フレームとLow-E複層ガラスを組み合わせることで、国内最高レベルの断熱性能を実現。冬場は、室内の暖気を逃しにくく、夏場は、室内の熱を遮りやすくします。
(2)高性能な樹脂サッシ※を使用することで、光熱費だけでなく、冬のイヤなベタベタ結露も抑制。※Low-E金属膜で被覆されたペアガラスに、アルゴンガスを封入。サッシ枠には熱伝導率がアルミの1/3,000の樹脂を採用しています。
    • 【50年保証・50年点検】業界屈指の50年保証に50年点検をプラスしたアフターサービスを。「構造躯体」、「屋根防水」、「外壁防水」、「基礎」、「防蟻」の5項目を対象に、最長50年にわたって保証。壁外断熱のサーラ住宅だから実現できた長期保証システムです。ご入居から50年間、12回の訪問点検と1回の自己診断による合計13回の無償点検を実施。さらに、10年目、20年目、30年目、40年目には、「耐久診断」(有償)を任意で受けられます。
    • 【太陽光発電システム】日中発電した電気があれば、無料で使用できます。ご利用期間終了後、太陽光発電システム一式が無償で譲渡されます。※ゼロソーラーサービスご利用期間は系統連系開始日から10年間(4kW-10kW未満)です。
    • 【長期優良住宅】長期優良住宅は国が定める認定制度です。いい家を建て、きちんと手入れをして、長く大切に住むことができる、サーラ住宅ではこのような高水準な住まいをご提案しております。長期優良住宅は環境負荷の低減等につながり、地球環境にもやさしい建物です。また、住宅ローン控除等の税制面でも政策的支援も受けることができます。
    • 【陽光が差し込む明るい団らん空間】外からの光をたっぷり取り込む設計で、日中も明るく爽やか。家具のレイアウトもしやすく、家族の理想の暮らしを叶えます。
    • 【PC作業や宿題にぴったりのワークスペース】ダイニング横に便利なカウンターを設置。小物を飾れるニッチも備え、在宅ワークやお子様の学習場所としてマルチに活躍します。
    • 【料理中も家族とつながる開放的な設計】手元が隠れる腰壁付きで、リビング側からはスッキリ見えます。食洗機や広々シンクなど、毎日の家事を支える機能も充実しています。
    • 【16.6帖のLDKをより広く、心地よく】意匠性の高い梁出し天井が、空間に奥行きと温かみをプラス 。家族が自然と集まり、ゆったりと寛げるリビングを実現しました。
    • 【ハンガーパイプと可動棚を備えた大容量クローゼット】主寝室から繋がる広々とした収納スペース 。衣類だけでなく、季節物や小物もスッキリ整理でき、お部屋を広く保てます。
    • 【タイル調のアクセントクロスがお洒落なトイレ】独立した手洗い器や手すりを完備した、ゆとりある設計。小窓からの採光も心地よく、毎日使う場所だからこそデザイン性と利便性にこだわりました。
    • 豊橋鉄道渥美線「高師」駅
    • あしはら保育園
    • 芦原小学校
    • 本郷中学校
    • サンヨネ高師店
    • 高師緑地
    • 案内図
    • 【即入居可】家具配置済でイメージしやすい完成物件。
    お気に入りに追加 この物件の資料請求無料 見学予約する無料

    ※LIFULL HOME'Sの資料請求ページに移動します

    販売スケジュール

    販売中

    販売概要

    販売戸数 1戸 最多価格帯 -
    販売価格 3,590万円
    土地面積 178.49m2(協定道路52.83m2含む)
    建物面積 97.75m2
    建物状況 - 建物現況 分譲中
    土地状況 - 最適用途 -
    建築条件備考 - 構造・工法 -
    間取り 3LDK 建物階 木造軸組工法2階建
    建ぺい率 / 容積率 建ぺい率60% 容積率100%
    接道
    北側幅員約4.4m、アスファルト舗装
    駐車場・車庫 - 完成時期
    • 2023年7月
    引渡し可能時期
    • 即引渡可
    その他諸費用 -
    こだわり条件
    • 瑕疵担保付き
    • 仲介手数料不要
    • 見学可能
    • 浴室乾燥機
    • 浴室暖房
    • カウンターキッチン
    • 食器洗い乾燥機
    • 床暖房
    • 床下収納
    • ウォークインクローゼット
    • パントリー
    • 外断熱
    • 低層住宅地
    • 長期優良住宅
    • 即入居可
    備考
    • 物件種目:戸建
    • 主たる設備概要:都市ガス、電気(サーラeエナジー)、公共上下水道
    • 建築確認番号:確認サービス第KS123-0410-51762号
    • 売主:サーラ住宅株式会社
    • 都市計画:市街化区域
    • 備考欄:◇内覧会をご希望のお客様は必ず事前にご予約をお願いします。
      ◇事前にご予約いただければ、土日祝日にかかわらず、平日のご案内も可能です。
      時間帯もご相談いたしますので、お気軽にお問い合わせください。
      ◇ご予約は、お電話または青色の「資料をもらう」ボタンより、来場ご予約をお願いします。

      担当者より折り返しメールまたはお電話にて、来場日時を確認させていただきます。

      ◇内覧会はお客様のご希望に合わせて2コース設けております。
      当日はデジカメやスマホでの写真撮影ももちろん可能です。
      ご自宅でのご検討の際にお役立てください。

      1)さくっと現地見学コース(所要時間:30分)
      お忙しいお客様向けです。
      物件のご案内(主に間取り)のみさせていただきます。

      2)じっくり見学コース(所要時間:1時間)
      物件の雰囲気だけでなく、設備などもしっかり確認されたいお客様向けです。
      間取りに加え、エコジョーズや外断熱工法など気になる設備もしっかりご案内いたします。

      ※ローン相談など、上記以外のご希望も承りますので、お気軽にご連絡ください。
    関連サイト -

    全体概要

    所在地 愛知県豊橋市芦原町字芦原53-3,53-6
    交通
    • 豊橋鉄道渥美線「芦原」駅 徒歩6分
    • 豊橋鉄道渥美線「高師」駅 徒歩10分
    土地の権利 所有権
    総戸数 3戸
    私道負担 - 用途地域 第一種低層住居専用地域、第一種住居地域
    地目 施工会社 サーラ住宅株式会社
    情報掲載開始日 2026年4月4日 情報更新日 2026年4月4日
    取引条件有効期限 2026年5月31日 次回更新予定日 2026年4月18日

    ローンシミュレーション

    頭金、借入期間、金利から毎月の住宅ローンお支払い額の目安を試算します。ご希望の条件に変更してご利用ください。

    物件価格の初期値は最低値を設定しております。実際にローン契約をする際は、詳細を不動産会社にご確認ください。

    万円
    万円
    %

    ※頭金や金利、借入期間によって支払う金額は変わります。

    ※物件購入時には、物件価格の他に諸費用がかかります。

    =
    月々のお支払い目安
    元金
    万円/月
    金利
    万円/月
    お支払い目安
    万円/月

    お問い合わせ

    ご覧いただいている物件の住宅ローンや実際にかかる諸費用、資金計画などのご相談ができます。

    不動産会社へのお問い合わせ

    サーラ住宅株式会社 豊橋支店 営業グループ

    この物件のアピールポイント

    【2駅利用の好立地】芦原・高師駅が生活圏の安心住居 芦原駅へ徒歩5分、主要の高師駅も利用可能で通勤通学に便利 。地元で長く暮らしてほしいから、安心の「50年保証」と「長期優良住宅」を標準にしました。 【価格改定】太陽光&外断熱のフル装備が3,590万円 高騰する光熱費を抑える「太陽光発電」と「壁外断熱」を標準装備 。注文住宅と同等の高性能スペックを、納得の改定価格でご提供します 。 【防犯・防災も標準】ALSOKカメラ&災害時給電 防犯カメラや宅配BOXに加え、停電時に車から給電できるシステムを完備 。ご家族の安全と、災害時の在宅避難を支える最新仕様の住まいです 。

    • 会社名:サーラ住宅株式会社 豊橋支店 豊橋営業所
    • 住所:愛知県豊橋市柱四番町6-1
    • 電話:0532-38-1511
      ※物件のお問い合わせは0532-38-1520
    • 取引態様:売主/サーラ住宅株式会社
    • 免許番号:国土交通大臣 (12) 第 2744 号
    • 不動産団体名:東海不動産公正取引協議会 (公社)愛知県宅地建物取引業協会 (公社)静岡県宅地建物取引業協会 (一社)中部不動産協会 一般社団法人 日本木造住宅産業協会 一般社団法人 プレハブ建築協会 公益社団法人 全国宅地建物取引業保証協会 公益社団法人 愛知県建築士事務所協会 一般社団法人 静岡県建築士事務所協会 公益財団法人 日本住宅・木材技術センター 愛知県住宅関連産業協議会
    • 売主:サーラ住宅株式会社
    • 売主免許番号:-
    • 関連サイト:-
    資料請求する無料 見学予約する無料

    ※LIFULL HOME'Sの資料請求ページに移動します

    他の物件も見てみる

    条件が似た物件
    • 外観
    • 間取り

    最近見た物件
    • 外観
    • 間取り

    • 完成後1年を経過している未入居物件が掲載されている場合があります。
    • 販売住戸が複数の物件は、全ての住戸に該当しない項目もあります。各問い合わせ先にご確認ください。
    • 「建築条件付き土地」とは、一定期間内(概ね3ヶ月程度)に特定の建設会社と建築請負契約を結ぶことを 条件にしている宅地のことです。
    • 建物の内容は、土地購入者の自由意思により決定可能で、土地売買契約後、 建築請負会社と購入した土地に建設する建物について協議することになります。
    • 期間内に建築請負契約が成立しなければ売買契約は白紙となり、支払済みの金銭はすべて返却されます。
    • 「建築条件付き土地」の価格には、建物価格は含まれません。
    • 「建築条件付き土地」の「建物プラン例」は、土地購入者の設計プランの一例であり、プランの採用可否は任意です。
    • 「土地(建築条件なし)」の「建物プラン例」に関して、そのプラン例は特定の建築請負会社によるもので、当該建築請負会社以外で建てた場合、同様のものが同価格で建てられるとは限りません。また、建築請負会社を特定するものではありません。
    • 消費税および地方消費税の対象となる場合は税込み価格が表示されています。
    • 物件の写真やイラスト、CGなどは実際と異なる場合があります。
    • 市区町村の合併などにより、地図が表示されない場合があります。ご了承ください。
    • お客様が入力する個人情報を含むお問い合わせデータは、LIFULL HOME'Sを経由して当該物件情報の取扱会社に転送されます。
    • 不動産購入の検討、契約にあたってはお客様ご自身が情報を確認し、各会社より十分な説明を受け判断してください。
    • 本ページの掲載内容は変更される場合があります。あらかじめご了承ください。
    ページトップへ