建築家プロデュースのモデルハウス分譲■藤沢市亀井野■

新築仲介一戸建て
所在地 神奈川県藤沢市亀井野
交通
  • 小田急江ノ島線「六会日大前」駅 徒歩7分
  • 小田急江ノ島線「湘南台」駅 徒歩20分
  • 価格 7680万円
    資料請求する無料 見学予約する無料

    ※LIFULL HOME'Sの資料請求ページに移動します

    お気に入りに追加
    • 物件情報
    • 地図・周辺情報
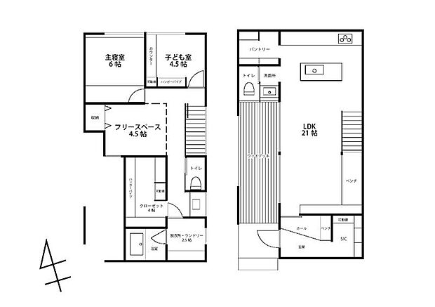
    • 間取り 3LDK 
      土地面積 130.44m2
      建物面積 104.27m2
      建物階 木造 2階建 
      完成時期
      • 2026年03月
    • 【現地外観写真】■暮らしを豊かにする充実した仕様設備で快適に
    • 【その他現地】■天気の良い日はウッドデッキでのんびり日向ぼっこ
    • ■家族みんなが笑顔で過ごせる、安心感のある住まい
    • 【キッチン】■シンプルで機能的、毎日使いやすいキッチン
    • 【リビングダイニング】■シンプルだけど贅沢、大切な人と過ごす心がほどける空間
    • 【リビング】■心落ち着く場所、ゆったり過ごせるリビング
    • 【リビング】■光と風を感じる、リラックスできる空間
    • 【ダイニング】■ふとした瞬間に幸せを感じる、心地よい場所
    • 【洋室】■優雅で穏やかな時間が流れる空間
    • 【子供部屋】■仕事や勉強のスペースに使うことで、集中しやすく静かな環境が整います
    • 小田急江ノ島線「六会日大前」駅(約560m・徒歩7分)
    • 藤沢市立六会小学校(約560m・徒歩7分)
    • 藤沢市立六会中学校(約80m・徒歩1分)
    • 六会保育園(約600m・徒歩8分)
    • 関野内科医院(約800m・徒歩10分)
    • ヨークフーズ藤沢六会店(約1,200m・徒歩15分)
    • 案内図

    住みやすさ

    六会日大前の住みやすさの採点分布

         
    ココが住みやすい!
    • 都会も田舎もアクセスが良い 海が近い 学校が多い コンビニやスーパーなどもそこまで遠くはない 南に行けば海がある
    • 駅前のスーパー2店舗に加え、個人経営の八百屋やパン屋などでの買い物もしやすい雰囲気。また国道沿いにはファミレス、大型古本屋、…
    • ・学生の街であるため、学生である場合、学生が利用しやすい飲食店があるなど住みやすくなっている。 ・治安もよく街も静かであり…
    ※住みやすさに関する評点は、単純平均ではなく当社独自の集計方法を加え算出しています。
    お気に入りに追加 この物件の資料請求無料 見学予約する無料

    ※LIFULL HOME'Sの資料請求ページに移動します

    販売スケジュール

    先着順受付中/販売中

    イベント情報

    ◇◆◇ご希望の場所まで「無料送迎」・「ナイト見学会」実施中!◇◆◇

    イベント概要
    開催日時 2025年12月01日~2026年05月31日
    申込期間 2025年12月01日~2026年05月31日
    開催場所 神奈川県藤沢市亀井野
    交通 小田急江ノ島線「六会日大前」駅 徒歩7分

    □見学はしたいけど、忙しくて・・・見に行く時間がない・・・□気になる物件の夜の環境も見てみたい!□車がない、電車での移動は大変・・・□運転に自信がないので、自分で運転していくのは少し不安・・・□小さな子供がいて、見にいくのが大変・・・

    見学予約する 無料

    ※LIFULL HOME'Sの資料請求ページに移動します

    販売概要

    販売戸数 1戸 最多価格帯 -
    販売価格 7680万円
    土地面積 130.44m2
    建物面積 104.27m2
    建物状況 - 建物現況 新規分譲
    土地状況 - 最適用途 -
    建築条件備考 - 構造・工法 -
    間取り 3LDK  建物階 木造 2階建 
    建ぺい率 / 容積率 建蔽率50% 容積率80%
    接道
    :南西4.5m
    駐車場・車庫
    • 1台
    完成時期
    • 2026年03月
    引渡し可能時期
    • 即入居可
    その他諸費用 -
    こだわり条件
    • 見学可能
    • シューズクローク
    • パントリー
    • 低層住宅地
    • 即入居可
    • オンライン相談可
    • 駐車場あり
    備考
    • 物件種目:戸建
    • 主たる設備概要:都市ガス/公営水道/下水
    • 国土法:届出不要
    • 建築確認番号:完成済のため省略
    • 売主:-
    • 都市計画:市街化区域
    • 備考欄:首都圏18店舗にて展開する ME Group ♪
      2025年ではグループ成約数2271件の実績のME Groupで
      東京・神奈川の成約が多いエムイーPLUS町田です♪

      成約数も多く「取り扱い物件数」「住宅ローン金利優遇」に自信があります♪
      お客様に最良なご提案をさせていただきます。
      ◆住宅ローンアドバイザーによる相談会実施中◆
      カードローンなどの借入のある方、永住権のない方、転職間もない方、
      自己資金を抑えたい方、他社様で住宅ローンを断れてしまった方などなど
      まずはお気軽にご連絡くださいませ♪

      ◆無料送迎お任せください◆
      ご自宅や駅、ご指定いただいた場所に無料でお迎えに参ります。
      小さなお子様も乗れるようにチャイルドシートもご準備致します。
      問い合わせ時に「その他のご要望」からお知らせください。

      ◆ご自宅を売却して住み替えのお客様へ◆
      弊社はお客様が安心できるように簡易インスペクション(無料)を
      行って正確な査定価格をお出し致します。
      AIによる査定書やスムーズに売却できるよう手順をパンフレットでご説明します。
      売却も購入もどちらも一貫してできるエムイーPLUS町田にご依頼ください。

      ◆ぜひお子様と一緒にご来店ください♪
       無料ガチャガチャコインプレゼント
       おもちゃいっぱい!大画面でyoutubeが見れるキッズルーム完備
       キッズ用の椅子・ベビーベッド・授乳室完備!
       無料のお子様ドリンク・無料おむつ完備!
       ご案内時は、チャイルドシートも完備!

      まだまだあります、エムイーPLUS町田のプラスのおもてなし!
      物件の当日予約・当日見学できます!
      首都圏に広がるME Group/マイホーム購入に特化した不動産コンサルタント会社。
      それしかできません。でもそれが『とにかく得意』です。
       
      『接道』一方 南西4.5m公道
      『法令上の制限』その他制限事項:22条区域 現況モデルハウスとして使用中
      設備:都市ガス 公営水道 下水 駐車場1台 小学校徒歩10分以内 中学校徒歩10分以内 システムキッチン 対面キッチン パントリー(食器・食品の収納庫) 脱衣所 トイレ2ヶ所 2階建 玄関ホール LDK15畳以上 LDK18畳以上 LDK20畳以上 室内洗濯機置き場 フローリング 全室フローリング リビング階段 収納 シューズインクローク
    関連サイト -

    全体概要

    所在地 神奈川県藤沢市亀井野
    交通
    • 小田急江ノ島線「六会日大前」駅 徒歩7分
    • 小田急江ノ島線「湘南台」駅 徒歩20分
    • 相鉄いずみ野線「湘南台」駅 徒歩23分
    土地の権利 所有権
    総戸数 1戸
    私道負担 - 用途地域 第一種低層住居専用地域
    地目 宅地 施工会社 -
    情報掲載開始日 2026年4月3日 情報更新日 2026年5月25日
    取引条件有効期限 2026年5月27日 次回更新予定日 2026年6月7日

    ローンシミュレーション

    頭金、借入期間、金利から毎月の住宅ローンお支払い額の目安を試算します。ご希望の条件に変更してご利用ください。

    物件価格の初期値は最低値を設定しております。実際にローン契約をする際は、詳細を不動産会社にご確認ください。

    万円
    万円
    %

    ※頭金や金利、借入期間によって支払う金額は変わります。

    ※物件購入時には、物件価格の他に諸費用がかかります。

    =
    月々のお支払い目安
    元金
    万円/月
    金利
    万円/月
    お支払い目安
    万円/月

    お問い合わせ

    ご覧いただいている物件の住宅ローンや実際にかかる諸費用、資金計画などのご相談ができます。

    不動産会社へのお問い合わせ

    エムイーPLUS町田株式会社

    この物件のアピールポイント

    ■物件の当日予約・当日見学できます◎どうぞお気軽にご連絡ください! ■エムイーPLUS町田はご相談だけでもOKです♪気になることは何でもお尋ねください! ■2025年ではグループ成約数2271件の実績 2003年創業 現在7事業18店舗

    この物件の価格

    7680万円

    • 会社名:エムイーPLUS町田株式会社
    • 住所:東京都町田市旭町1-4-1
    • 電話:042-710-9939
      ※物件のお問い合わせは0120-008-442
    • 取引態様:エムイーPLUS町田株式会社/仲介
    • 免許番号:東京都知事 (3) 第 98324 号
    • 不動産団体名:(公社)全日本不動産協会東京都本部
    • 売主:-
    • 売主免許番号:-
    • 関連サイト:-
    資料請求する無料 見学予約する無料

    ※LIFULL HOME'Sの資料請求ページに移動します

    他の物件も見てみる

    条件が似た物件
    • 外観
    • 間取り

    • 完成後1年を経過している未入居物件が掲載されている場合があります。
    • 販売住戸が複数の物件は、全ての住戸に該当しない項目もあります。各問い合わせ先にご確認ください。
    • 「建築条件付き土地」とは、一定期間内(概ね3ヶ月程度)に特定の建設会社と建築請負契約を結ぶことを 条件にしている宅地のことです。
    • 建物の内容は、土地購入者の自由意思により決定可能で、土地売買契約後、 建築請負会社と購入した土地に建設する建物について協議することになります。
    • 期間内に建築請負契約が成立しなければ売買契約は白紙となり、支払済みの金銭はすべて返却されます。
    • 「建築条件付き土地」の価格には、建物価格は含まれません。
    • 「建築条件付き土地」の「建物プラン例」は、土地購入者の設計プランの一例であり、プランの採用可否は任意です。
    • 「土地(建築条件なし)」の「建物プラン例」に関して、そのプラン例は特定の建築請負会社によるもので、当該建築請負会社以外で建てた場合、同様のものが同価格で建てられるとは限りません。また、建築請負会社を特定するものではありません。
    • 消費税および地方消費税の対象となる場合は税込み価格が表示されています。
    • 物件の写真やイラスト、CGなどは実際と異なる場合があります。
    • 市区町村の合併などにより、地図が表示されない場合があります。ご了承ください。
    • お客様が入力する個人情報を含むお問い合わせデータは、LIFULL HOME'Sを経由して当該物件情報の取扱会社に転送されます。
    • 不動産購入の検討、契約にあたってはお客様ご自身が情報を確認し、各会社より十分な説明を受け判断してください。
    • 本ページの掲載内容は変更される場合があります。あらかじめご了承ください。
    ページトップへ