八王子弐分方町10期

新築仲介一戸建て
所在地 東京都八王子市弐分方町 724-5
交通
  • JR中央本線「西八王子」駅 西東京バス「慈根寺(八王子市)」バス停から徒歩7分 徒歩39分
  • 京王高尾線「高尾」駅 西東京バス「慈根寺(八王子市)」バス停から徒歩7分 徒歩7分
  • 価格 2790~3350万円
    資料請求する無料 見学予約する無料

    ※LIFULL HOME'Sの資料請求ページに移動します

    お気に入りに追加
    • 物件情報
    • 地図・周辺情報
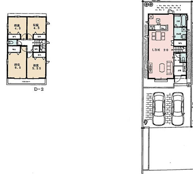
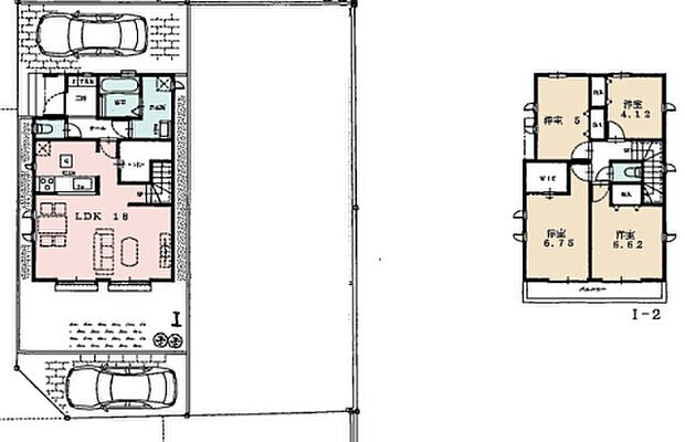
    • 間取り 4LDK~4LDK
      土地面積 124.50m2~126.60m2
      建物面積 96.21m2~98.12m2
      建物階 木造2階建
      完成時期
      • 2026年5月
    • 【前面道路含む現地写真_3】お持ちの車種によっては前面道路が広い方が便利でしょう。しかし、前面道路が広ければその分交通量が多くなるため、騒音などが気になる場合があります。実際に現地を見学し、周辺交通量や騒音などを確認しましょう!
    • 【外観_3】現地に行くなら、物件の周囲の地形がどうなっているかを見ることも大切です。周辺より低くなっている土地では、大雨などで水が集まりやすいため、地盤が弱くなっているということも考えられるため、注意が必要です。
    • 【構造・工法・仕様_2】ベタ基礎とは、柱の位置に関係なく全体に基礎がある事を指し、面積が大きい分建物の重さを全体に分散できます。また、地面からの湿気や害虫を遮断でき、木造住宅で心配されるシロアリ被害を防ぐ効果も期待できます。
    • 【庭_2】庭のある家に住むことのメリットとして、子どもたちの遊び場を確保できること、ガーデニングや家庭菜園を楽しめること、明るさを確保できることがあります。また、配置を工夫することでプライバシーが確保できます。
    • 住宅用の土地では前面道路に2m以上接していなければならないと法律で定められています。しかし、お持ちの車のサイズやライフスタイルなどにより、2mでは利便が悪い場合もございますので、事前に確認しましょう。
    • 【その他設備】敷地内には、散水栓や立水栓があります。水道水を直接利用できるため、水を運ぶ手間を省くことが出来ます。大量の水を必要とする洗車作業や清掃などに役立ちます。その他設備とあわせて、現地でご確認ください。
    • 【駐車場_2】駐車場と明記されていても、最小スペースでつくられた駐車場だと大型車は駐車できなかったり、出入りしにくくなったりする可能性があります。お車のサイズと購入したい物件の駐車場のサイズを現地で確認しましょう。
    • 【物件からの展望_2】眺望を気にして物件を探す場合、前面に建物が建っていないか現地で確認しましょう!前面に建物があると景色はもちろん、日当たりや風通しにも影響が出てきます。住んだ時のことを想像しながら現地見学をしましょう。
    • 【物件からの展望_3】田園風景が味わえる土地に住みたい!海や山の見える自然豊かな土地に住みたい!などご要望に併せて当社営業がご提案させて頂きます。当社が抱えている数ある物件の中からお客様が納得する1件を一緒に探しましょう!
    • 【玄関】玄関は家の顔でもあり、家族以外の目にも止まる場所です。玄関は外との間を仕切る扉、靴などをしまっておく収納スペース、靴脱ぎのたたきスペース、来客とのやり取りをするドアホンなど複数のアイテムからなります。
    • 【玄関_2】玄関は、狭すぎると複数人で使いにくく、広すぎても無駄な空間になりがちです。最低2畳を目安にして、家の広さとの兼ね合いや家族の人数を考慮して決めるとよいでしょう。現地を見学して快適な玄関を選びましょう!
    • 弐分方小学校(約565m)
    • 元八王子中学校(約821m)
    • スーパーオザム大楽寺店(約886m)
    • ファミリーマート 八王子横川町店(約389m)
    • はちせい健友クリニック(約1,367m)
    • 弐分方公園(約395m)
    • 家族でのBBQを行うのであれば3坪程度の広さがあればよいでしょう。ガーデニングや家庭菜園を楽しむ際は、手入れが行き届く範囲にすると安心です。また、庭のある方角や接道が気になる方は事前に確認しましょう。
    • 車一台あたりに必要なスペースは、標準サイズの普通自動車で横幅2m50cm、長さ5mは必要になります。ただし、乗降のことも考慮して横幅3m30cm、長さ5m50cmほどは確保できるところを選びましょう。
    • 桜や紅葉の名所に出かける人は多いと思いますが、家にいながら季節の移ろいを感じる生活を送りませんか?リビングや窓から見える景色が生活を彩るワンポイントに!現地から見える景色を堪能してみては如何でしょう。
    • 案内図
    • 現地をご見学に行く際は、道路の幅や周辺の交通量、施設などをご確認頂くことをおすすめします!ある程度イメージをつけたいという場合は、同売主の施工事例や完成パースもお見せします。
    • 木造住宅とは土台、壁、柱など建築物の強度を支える構造体の材に木が使用されている構造を指します。構造体は建物の自重を支えるだけではなく風圧や水圧、積裁荷重などあらゆる衝撃に耐えるための基礎です。

    住みやすさ

    西八王子の住みやすさの採点分布

           
    ココが住みやすい!
    • 有名な高尾山に近く、八王子駅に行けば大体何でも揃うので便利でした。 西八王子駅周辺も普段の買い物をする分には不便なかったで…
    • とても静かで自然も多くて家族で住むならのんびりとすごせる場所だと思います。 電車移動の時は都心に行く時もどの時間帯でも座れ…
    • 駅には、飲食店やファミレス、wifi設備のお店、ドラッグストア、スーパーがあり駅に行けば日常生活には困らなかった。夜中まで営…
    ※住みやすさに関する評点は、単純平均ではなく当社独自の集計方法を加え算出しています。
    お気に入りに追加 この物件の資料請求無料 見学予約する無料

    ※LIFULL HOME'Sの資料請求ページに移動します

    販売スケジュール

    販売中

    販売概要

    販売戸数 1戸 最多価格帯 -
    販売価格 2790~3350万円
    土地面積 124.5m2~126.60m2
    建物面積 96.21m2~98.12m2
    建物状況 - 建物現況 新規分譲
    土地状況 - 最適用途 -
    建築条件備考 - 構造・工法 -
    間取り 4LDK~4LDK 建物階 木造2階建
    建ぺい率 / 容積率 建ぺい率40% 容積率80%
    接道
    0m
    駐車場・車庫
    • 1台
    完成時期
    • 2026年5月
    引渡し可能時期
    • 応相談
    その他諸費用 -
    こだわり条件
    • 瑕疵担保付き
    • 見学可能
    • 浴室乾燥機
    • 床下収納
    • パントリー
    • TVモニタ付インターホン
    • 低層住宅地
    • オンライン相談可
    • 駐車場あり
    備考
    • 物件種目:戸建
    • 主たる設備概要:電気、公営水道、都市ガス
    • 国土法:届出不要
    • 建築確認番号:HPA-25-15253-1
    • 備考欄:お客様がそれぞれ抱えている、「ローン」「税金」「売却」「リフォーム」「建築」「ライフプラン」「相続」に関しての不安を専門家と一緒に解決致します。一人で考える必要はございません!プロ集団が全面サポート!!



      【年中無休/9:00~21:00】

      人気物件は特にお問い合わせが集中するため、お早めにお電話下さい。



      「室内・現地を見学する」ボタンよりご予約頂くとご見学がスムーズです。



      ■その他、各種ご相談も承っております。

      ○住宅ローンのご相談

      ○ライフプランのシミュレーション



      ■住まいの広場TOWNSからお客様へ

      経験豊富なスタッフが親身になってお客様に合った物件をご紹介させて頂きます!

      未公開物件/他社様掲載物件も併せてご紹介可能ですのでお気軽にお問い合わせ下さい♪

      駐車場もございますので、お車でのお越しも大歓迎です!

      ・駅徒歩5分

      ・無料駐車場あり

      ・送迎サービスあり

      ・夜9時まで営業

      ・キッズルームあり

      ・ドリンクバーあり

      ・WEB接客/WEB案内実施



      フリーダイヤル・資料請求は下のボタンからお問い合わせください。
    関連サイト -

    全体概要

    所在地 東京都八王子市弐分方町 724-5
    交通
    • JR中央本線「西八王子」駅 西東京バス「慈根寺(八王子市)」バス停から徒歩7分 徒歩39分
    • 京王高尾線「高尾」駅 西東京バス「慈根寺(八王子市)」バス停から徒歩7分 徒歩7分
    • JR横浜線「八王子」駅 西東京バス「慈根寺(八王子市)」バス停から徒歩8分 徒歩8分
    土地の権利 所有権
    総戸数 1戸
    私道負担 - 用途地域 第一種低層住居専用地域
    地目 宅地 施工会社 -
    情報掲載開始日 2026年3月30日 情報更新日 2026年4月3日
    取引条件有効期限 2027年3月30日 次回更新予定日 2026年4月13日

    ローンシミュレーション

    頭金、借入期間、金利から毎月の住宅ローンお支払い額の目安を試算します。ご希望の条件に変更してご利用ください。

    物件価格の初期値は最低値を設定しております。実際にローン契約をする際は、詳細を不動産会社にご確認ください。

    万円
    万円
    %

    ※頭金や金利、借入期間によって支払う金額は変わります。

    ※物件購入時には、物件価格の他に諸費用がかかります。

    =
    月々のお支払い目安
    元金
    万円/月
    金利
    万円/月
    お支払い目安
    万円/月

    お問い合わせ

    ご覧いただいている物件の住宅ローンや実際にかかる諸費用、資金計画などのご相談ができます。

    不動産会社へのお問い合わせ

    (株)住まいの広場TOWNS(仲介)

    この物件のアピールポイント

    浴室乾燥機 通風良好 温水洗浄便座 バス・トイレ別 複層ガラス システムキッチン付きの物件です 来訪者をモニターで確認できるTVインターホン付きです。浴室乾燥機付きの物件は、乾燥機で浴室を乾燥させることができるのでカビの繁殖を防ぐことに役立ちます。

    この物件の価格

    2790~3350万円

    • 会社名:株式会社住まいの広場TOWNS
    • 住所:神奈川県相模原市中央区相模原4-6-16
    • 電話:042-769-8099
    • 取引態様:(株)住まいの広場TOWNS(仲介)
    • 免許番号:神奈川県知事 (2) 第 27368 号
    • 不動産団体名:(公社)全日本不動産協会神奈川県本部
    • 売主:-
    • 売主免許番号:-
    • 関連サイト:-
    資料請求する無料 見学予約する無料

    ※LIFULL HOME'Sの資料請求ページに移動します

    • 完成後1年を経過している未入居物件が掲載されている場合があります。
    • 販売住戸が複数の物件は、全ての住戸に該当しない項目もあります。各問い合わせ先にご確認ください。
    • 「建築条件付き土地」とは、一定期間内(概ね3ヶ月程度)に特定の建設会社と建築請負契約を結ぶことを 条件にしている宅地のことです。
    • 建物の内容は、土地購入者の自由意思により決定可能で、土地売買契約後、 建築請負会社と購入した土地に建設する建物について協議することになります。
    • 期間内に建築請負契約が成立しなければ売買契約は白紙となり、支払済みの金銭はすべて返却されます。
    • 「建築条件付き土地」の価格には、建物価格は含まれません。
    • 「建築条件付き土地」の「建物プラン例」は、土地購入者の設計プランの一例であり、プランの採用可否は任意です。
    • 「土地(建築条件なし)」の「建物プラン例」に関して、そのプラン例は特定の建築請負会社によるもので、当該建築請負会社以外で建てた場合、同様のものが同価格で建てられるとは限りません。また、建築請負会社を特定するものではありません。
    • 消費税および地方消費税の対象となる場合は税込み価格が表示されています。
    • 物件の写真やイラスト、CGなどは実際と異なる場合があります。
    • 市区町村の合併などにより、地図が表示されない場合があります。ご了承ください。
    • お客様が入力する個人情報を含むお問い合わせデータは、LIFULL HOME'Sを経由して当該物件情報の取扱会社に転送されます。
    • 不動産購入の検討、契約にあたってはお客様ご自身が情報を確認し、各会社より十分な説明を受け判断してください。
    • 本ページの掲載内容は変更される場合があります。あらかじめご了承ください。
    ページトップへ