クレイドルガーデン中央区豊町第2 1号棟

新築仲介一戸建て
所在地 静岡県浜松市中央区豊町字仙造前3426-4、3426-5、3426-6、3426-7
交通
  • JR東海道本線「浜松」駅まで バス 40分 バス停「笠井上町」まで 徒歩 9分
  • 東海道新幹線「浜松」駅まで バス 40分 バス停「笠井上町」まで 徒歩 9分
  • 価格 2,690万円
    • 物件情報
    • 地図・周辺情報
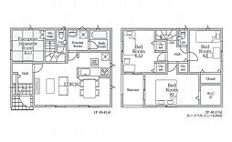
    • 間取り 4LDK
      土地面積 221.64m2(実測)
      建物面積 100.44m2
      建物階 地上2階
      完成時期
      • 2026年 5月
    • 【1号棟】足場解体しました! ・4LDK ・LDK17帖 ・1階独立洋室 ・全居室収納完備 ・ストレージルーム ・防犯カメラ ・駐車場4台可
    • 足場解体しました!現地や周辺環境も一緒にご確認いただけます。お気軽にお問合せください。
    • 地域に密着した不動産販売でお客様のニーズに、経験豊富なスタッフが柔軟にご対応させて頂きます。(右側の建物になります)
    • 前面道路:北側約4m幅
    • 静かな住宅街で、車の出入りもスムーズです。
    • 【新築分譲全4棟】ご成約キャンペーン実施中。詳細はスタッフまでお問合せ下さい。
    • 4LDK※図面と現況に相違ある場合には現況優先とします。
    • 【1号棟】
    • 【施工例】小さなお子様にも目が届く、使い勝手の良い対面キッチンで楽しくお料理ができます!
    • 【施工例】ゆったり入れる浴槽、一日の疲れを癒してくれるくつろぎのバスタイムを…
    • 【施工例】多機能な温水洗浄便座付きでお掃除がしやすい、清潔なトイレです
    • 【施工例】洗髪・洗面・化粧などができる機能と収納スペースを一体化した洗面台です。
    • 【施工例】主寝室です。二面採光で明るく、風通しも良好です。ご夫婦のくつろぎの場所として最適です!
    • 【施工例】お子様の一人部屋に最適な居室です。クローゼット付きで自然とお片付けできる環境に!
    • 【施工例】パイプハンガー付きのクローゼットは服を畳まず収納でき大切な衣類をシワや日焼けから守ります
    • 豊西小学校(960m)
    • 笠井中学校(1640m)
    • 豊西幼稚園(1280m)
    • フードマーケット マム 東美薗店(1960m)
    • セブンイレブン浜松豊町店(990m)
    • Vドラッグ 浜松笠井新田店(1940m)
    • 笠井郵便局(1640m)
    • JAとぴあ浜松 豊西支店(1230m)
    • 友成医院(790m)
    • 豊みずき公園(1190m)
    • 笠井幼稚園(1440m)
    • 遠鉄ストア 笠井店(1980m)
    • セブンイレブン浜松豊西店(1540m)
    • 薬局マツモトキヨシ笠井店(2080m)
    • 【施工例】温かみのあるナチュラルテイストのLDK。ダイニングセットを置いてもゆとりがあります!

    住みやすさ

    浜松の住みやすさの採点分布

           
    ココが住みやすい!
    • 程よく田舎、程よく街という印象です。新幹線が停まるので、東京方面からも来やすい。広い公園や自然豊かな施設などが多くあり、お出…
    • 近場に湖があるため野鳥を見に来たりウォーキングに来る人で賑わっていたり、お花見、花火大会など自然を感じることの出来る季節のイ…
    • 駅周辺エリアですので、家電量販店、百貨店、飲食店などが充実していましたし、クルマで数分走れば海岸ですので、マリンスポーツが盛…
    ※住みやすさに関する評点は、単純平均ではなく当社独自の集計方法を加え算出しています。

    販売概要

    販売戸数 1戸 最多価格帯 -
    販売価格 2,690万円
    土地面積 221.64m2(実測)
    建物面積 100.44m2
    建物状況 新築 建物現況 未完成
    土地状況 - 最適用途 -
    建築条件備考 - 構造・工法
    • 木造
    間取り 4LDK
    間取り内訳:リビングダイニングキッチン 17帖・洋室 5帖・洋室 8帖・洋室 5.7帖・洋室 5.7帖
    建物階 地上2階
    建ぺい率 / 容積率 60% / 200%
    接道
    接道状況:
    一方
    接道詳細:
    • 北 (公道 幅員 4.00m 接面 5.70m)
    駐車場・車庫
    • 3台以上
      駐車場料金:無料
    完成時期
    • 2026年 5月
    引渡し可能時期
    • 2026年5月 期日指定
    その他諸費用 -
    こだわり条件
    • コンロ三口
    • 床下収納
    • TVモニタ付インターホン
    • バリアフリー
    • カウンターキッチン
    • 浴室乾燥機
    • 耐震構造
    • 制震構造
    • 防犯カメラ
    • 全居室収納
    • オートバス
    • 設計住宅性能評価付き
    • 耐震基準適合証明書
    • 建設住宅性能評価書(新築時)
    • 駐車場あり
    備考
    • 物件種目:戸建
    • 主たる設備概要:-
    • 上水道:公営
    • ガス・オール電化:プロパンガス
    • セットバック:無
    • 国土法:不要
    • 法令上の制限その他:建基法22条指定区域、宅地造成及び盛土等規制法
    • 建築確認番号:第R07SHC122970号
    • 都市計画:市街化調整区域
    • 主要採光面:南
    • 最寄り小学校名:豊西小学校
    • 最寄り小学校までの距離:960m
    • 最寄り中学校名:笠井中学校
    • 最寄り中学校までの距離:1,640m
    • 近隣の公園までの距離:1,190m
    • 近隣のスーパーマーケットまでの距離:1,980m
    • 近隣のドラッグストアまでの距離:2,080m
    • 近隣のコンビニまでの距離:1,540m
    • 近隣の銀行までの距離:1,230m
    • 備考欄:接道:北側自主後退1.5米(1・2号棟)、1米(3・4号棟)
    関連サイト -

    全体概要

    所在地 静岡県浜松市中央区豊町字仙造前3426-4、3426-5、3426-6、3426-7
    交通
    • JR東海道本線「浜松」駅まで バス 40分 バス停「笠井上町」まで 徒歩 9分
    • 東海道新幹線「浜松」駅まで バス 40分 バス停「笠井上町」まで 徒歩 9分
    土地の権利 所有権
    総戸数 4戸
    私道負担 - 用途地域 無指定
    地目 宅地 施工会社 -
    情報掲載開始日 2026年3月28日 情報更新日 2026年5月13日
    取引条件有効期限 2026年5月27日 次回更新予定日 -

    ローンシミュレーション

    頭金、借入期間、金利から毎月の住宅ローンお支払い額の目安を試算します。ご希望の条件に変更してご利用ください。

    物件価格の初期値は最低値を設定しております。実際にローン契約をする際は、詳細を不動産会社にご確認ください。

    万円
    万円
    %

    ※頭金や金利、借入期間によって支払う金額は変わります。

    ※物件購入時には、物件価格の他に諸費用がかかります。

    =
    月々のお支払い目安
    元金
    万円/月
    金利
    万円/月
    お支払い目安
    万円/月

    お問い合わせ

    ご覧いただいている物件の住宅ローンや実際にかかる諸費用、資金計画などのご相談ができます。

    不動産会社へのお問い合わせ

    家デパ浜松店 松屋不動産販売株式会社

    この物件のアピールポイント

    ■耐震 + 制震の家、QUIE(クワイエ)■1階独立洋室 ■書斎としても利用可能な寝室内ストレージルーム ■帰宅後すぐの手洗い可能な間取 ■ワイドバルコニー ■来客時にも安心の駐車4台可能 

    この物件の価格

    2,690万円

    • 会社名:家デパ浜松店 松屋不動産販売株式会社
    • 住所:静岡県浜松市中央区中島1丁目35番20
    • 電話:053-401-6610
    • 交通:JR東海道本線「浜松」駅まで 徒歩 17分
    • 取引態様:媒介
    • 免許番号:国土交通大臣免許(02)第9781号
    • 不動産団体名:(公社)中部圏不動産流通機構
    • 保証協会:(公社)全国宅地建物取引業保証協会
    • 売主:-
    • 売主免許番号:-
    • 関連サイト:-

    お電話でのお問い合わせはこちら(取り扱い不動産会社に直接つながります)

    電話をかける(携帯電話・PHSでも可)

    1電話番号を入力する

    0037-634-48957

    お問い合わせ先

    家デパ浜松店 松屋不動産販売株式会社

    2音声案内に従い、以下の番号を入力

    お問い合わせ番号 47485-3190

    不動産会社につながります

    不動産会社のスタッフと
    直接電話で話せます

    店舗スタッフ
    • お客様の電話番号は不動産会社に通知されません。
    • 光IP電話、及びIP電話からはご利用になれません。
    • 定休日や営業時間外にてお電話がつながらない場合は、お問い合わせフォームよりお問い合わせください。
    • 携帯電話からお問合せいただいた方には、ショートメッセージ(SMS)またはLINE通知メッセージによるお問い合わせ内容に関する通知を株式会社LIFULLよりお届けする場合があり、お客様の電話番号は株式会社LIFULLで一定期間保管されます。
    • 株式会社LIFULLの個人情報の取扱い方針に同意のうえ、お電話ください。
    • オーナー様・不動産会社様・現在ご入居中のお客様など、住まい探し以外のご相談はこちらからお問い合わせください。

    他の物件も見てみる

    • 完成後1年を経過している未入居物件が掲載されている場合があります。
    • 販売住戸が複数の物件は、全ての住戸に該当しない項目もあります。各問い合わせ先にご確認ください。
    • 「建築条件付き土地」とは、一定期間内(概ね3ヶ月程度)に特定の建設会社と建築請負契約を結ぶことを 条件にしている宅地のことです。
    • 建物の内容は、土地購入者の自由意思により決定可能で、土地売買契約後、 建築請負会社と購入した土地に建設する建物について協議することになります。
    • 期間内に建築請負契約が成立しなければ売買契約は白紙となり、支払済みの金銭はすべて返却されます。
    • 「建築条件付き土地」の価格には、建物価格は含まれません。
    • 「建築条件付き土地」の「建物プラン例」は、土地購入者の設計プランの一例であり、プランの採用可否は任意です。
    • 「土地(建築条件なし)」の「建物プラン例」に関して、そのプラン例は特定の建築請負会社によるもので、当該建築請負会社以外で建てた場合、同様のものが同価格で建てられるとは限りません。また、建築請負会社を特定するものではありません。
    • 消費税および地方消費税の対象となる場合は税込み価格が表示されています。
    • 物件の写真やイラスト、CGなどは実際と異なる場合があります。
    • 市区町村の合併などにより、地図が表示されない場合があります。ご了承ください。
    • お客様が入力する個人情報を含むお問い合わせデータは、LIFULL HOME'Sを経由して当該物件情報の取扱会社に転送されます。
    • 不動産購入の検討、契約にあたってはお客様ご自身が情報を確認し、各会社より十分な説明を受け判断してください。
    • 本ページの掲載内容は変更される場合があります。あらかじめご了承ください。
    ページトップへ