クレイドルガーデン東九条町 2号棟 /新築一戸建

新築仲介一戸建て
所在地 奈良県奈良市東九条町
交通
  • JR関西本線「奈良」駅まで バス 16分 バス停「辰市農協」まで 徒歩 6分
  • 近鉄橿原線「九条」駅まで 徒歩 33分
  • 価格 3,080万円
    • 物件情報
    • 地図・周辺情報
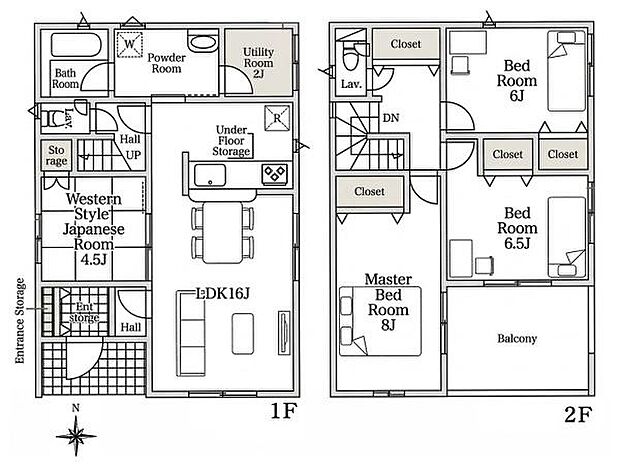
    • 間取り 4SLDK
      土地面積 179.01m2(実測)
      建物面積 109.75m2
      建物階 地上2階
      完成時期
      • 2026年 6月
    • ■≪同仕様写真≫■制震装置(SAFE365)搭載!制震+耐震の地震に強い安心の邸宅!お気軽にお問い合わせ下さい!■■ペアガラス使用で結露の心配もありません!■
    • イオンモール大和郡山まで1252m
    • セブンイレブン奈良東九条町店まで952m
    • ローソン奈良東九条町店まで1251m
    • ■従来品と比べ約70%も節水タイプのトイレです!1階・2階共にウォシュレット付き!■
    • ■TVモニター付きインターホンで防犯対策もバッチリ!来客も一目でわかり安心です!■
    • ■玄関には大容量収納スペースを完備!■
    • ■≪同仕様写真≫■日当たりのよいバルコニー!洗濯物もよく乾きます!■
    • ■こちらの物件は2号棟です!■
    • ■浄水器付きのシステムキッチンです!■
    • ■家族とのコミュニケーションがとりやすい人気のカウンターキッチン!■
    • ■ゆったりしたサイズの浴室です!足を伸ばしての入浴は疲れも癒してくれます!■
    • ■ほっこり落ち着ける和室!客間としてもご利用いただけます!■
    • ■日当たりのよい明るい雰囲気の洋室です!■
    • ■冬物のコートや季節ものなど、たっぷり収納可能!■
    • ■三面鏡タイプのミラーキャビネット!収納スペースも豊富です!■

    住みやすさ

    奈良の住みやすさの採点分布

         
    ココが住みやすい!
    • 近くには奈良の大仏さんもあるしJRも近鉄も近い。車ですぐにイオンモール大和郡山もあるしショッピングとかするのにも便利。
    • 普段の買い物や交通の利便性と、静かさや空気のきれいさなど住環境のバランスがとても良い。 駅の東側は観光客が多いが、西側…
    • 立地条件良しで、コンビニもたくさんあり スーパーも駅前にあります。 鹿に会えるのが良いところです。 春日大社など、古都…
    ※住みやすさに関する評点は、単純平均ではなく当社独自の集計方法を加え算出しています。

    販売概要

    販売戸数 1戸 最多価格帯 -
    販売価格 3,080万円
    土地面積 179.01m2(実測)
    建物面積 109.75m2
    建物状況 新築 建物現況 未完成
    土地状況 - 最適用途 -
    建築条件備考 - 構造・工法
    • 木造
    間取り 4SLDK 建物階 地上2階
    建ぺい率 / 容積率 60% / 160%
    接道
    接道状況:
    一方
    接道詳細:
    • 南 (公道 幅員 4.00m 接面 -)
    駐車場・車庫
    • 2台
    • 駐車場料金:無料
    完成時期
    • 2026年 6月
    引渡し可能時期
    • 2026年6月下旬 期日指定
    その他諸費用 -
    こだわり条件
    • IHコンロ
    • コンロ三口
    • 床下収納
    • TVモニタ付インターホン
    • バリアフリー
    • オール電化
    • カウンターキッチン
    • 浴室乾燥機
    • 防犯カメラ
    • 全居室収納
    • オートバス
    • 設計住宅性能評価付き
    • 駐車場2台以上
    • 小学校まで1km以内
    備考
    • 物件種目:戸建
    • 主たる設備概要:-
    • 上水道:公営
    • 下水道:本下水
    • ガス・オール電化:オール電化
    • セットバック:無
    • セットバック面積:3.9m2
    • 国土法:不要
    • 法令上の制限その他:高度地区、宅地造成工事規制区域
    • 建築確認番号:第R08SHC101587号
    • 都市計画:市街化区域
    • 最寄り小学校名:辰市小学校
    • 最寄り小学校までの距離:500m
    • 最寄り中学校名:都南中学校
    • 最寄り中学校までの距離:2,400m
    • その他施設名:イオンモール大和郡山
    • その他施設までの距離:1,252m
    • 近隣のコンビニまでの距離:952m
    • 備考欄:[物件コード]136201-19632-S
    関連サイト -

    全体概要

    所在地 奈良県奈良市東九条町
    交通
    • JR関西本線「奈良」駅まで バス 16分 バス停「辰市農協」まで 徒歩 6分
    • 近鉄橿原線「九条」駅まで 徒歩 33分
    土地の権利 所有権
    総戸数 -
    私道負担 - 用途地域 第一種住居地域
    地目 宅地 施工会社 -
    情報掲載開始日 2026年3月28日 情報更新日 2026年3月28日
    取引条件有効期限 2026年4月11日 次回更新予定日 -

    ローンシミュレーション

    頭金、借入期間、金利から毎月の住宅ローンお支払い額の目安を試算します。ご希望の条件に変更してご利用ください。

    物件価格の初期値は最低値を設定しております。実際にローン契約をする際は、詳細を不動産会社にご確認ください。

    万円
    万円
    %

    ※頭金や金利、借入期間によって支払う金額は変わります。

    ※物件購入時には、物件価格の他に諸費用がかかります。

    =
    月々のお支払い目安
    元金
    万円/月
    金利
    万円/月
    お支払い目安
    万円/月

    お問い合わせ

    ご覧いただいている物件の住宅ローンや実際にかかる諸費用、資金計画などのご相談ができます。

    不動産会社へのお問い合わせ

    (株)ベース 奈良西大和店

    この物件のアピールポイント

    ■最寄りのバス停まで徒歩6分程!閑静な住宅地内です!

    この物件の価格

    3,080万円

    • 会社名:センチュリー21ベース奈良西大和店
    • 住所:奈良県北葛城郡河合町中山台2丁目12-9
    • 電話:0745-34-0021
    • 交通:近鉄田原本線「大輪田」駅まで 徒歩 10分
    • 取引態様:一般媒介
    • 免許番号:奈良県知事(1)第4482号
    • 不動産団体名:(公社)奈良県宅地建物取引業協会、(公社)近畿地区不動産公正取引協議会
    • 保証協会:(公社)全国宅地建物取引業保証協会
    • 売主:-
    • 売主免許番号:-
    • 関連サイト:-

    お電話でのお問い合わせはこちら(取り扱い不動産会社に直接つながります)

    電話をかける(携帯電話・PHSでも可)

    1電話番号を入力する

    0037-634-75768

    お問い合わせ先

    (株)ベース 奈良西大和店

    2音声案内に従い、以下の番号を入力

    お問い合わせ番号 60845-3190

    不動産会社につながります

    不動産会社のスタッフと
    直接電話で話せます

    店舗スタッフ
    • お客様の電話番号は不動産会社に通知されません。
    • 光IP電話、及びIP電話からはご利用になれません。
    • 定休日や営業時間外にてお電話がつながらない場合は、お問い合わせフォームよりお問い合わせください。
    • 携帯電話からお問合せいただいた方には、ショートメッセージ(SMS)またはLINE通知メッセージによるお問い合わせ内容に関する通知を株式会社LIFULLよりお届けする場合があり、お客様の電話番号は株式会社LIFULLで一定期間保管されます。
    • 株式会社LIFULLの個人情報の取扱い方針に同意のうえ、お電話ください。
    • オーナー様・不動産会社様・現在ご入居中のお客様など、住まい探し以外のご相談はこちらからお問い合わせください。

    他の物件も見てみる

    • 完成後1年を経過している未入居物件が掲載されている場合があります。
    • 販売住戸が複数の物件は、全ての住戸に該当しない項目もあります。各問い合わせ先にご確認ください。
    • 「建築条件付き土地」とは、一定期間内(概ね3ヶ月程度)に特定の建設会社と建築請負契約を結ぶことを 条件にしている宅地のことです。
    • 建物の内容は、土地購入者の自由意思により決定可能で、土地売買契約後、 建築請負会社と購入した土地に建設する建物について協議することになります。
    • 期間内に建築請負契約が成立しなければ売買契約は白紙となり、支払済みの金銭はすべて返却されます。
    • 「建築条件付き土地」の価格には、建物価格は含まれません。
    • 「建築条件付き土地」の「建物プラン例」は、土地購入者の設計プランの一例であり、プランの採用可否は任意です。
    • 「土地(建築条件なし)」の「建物プラン例」に関して、そのプラン例は特定の建築請負会社によるもので、当該建築請負会社以外で建てた場合、同様のものが同価格で建てられるとは限りません。また、建築請負会社を特定するものではありません。
    • 消費税および地方消費税の対象となる場合は税込み価格が表示されています。
    • 物件の写真やイラスト、CGなどは実際と異なる場合があります。
    • 市区町村の合併などにより、地図が表示されない場合があります。ご了承ください。
    • お客様が入力する個人情報を含むお問い合わせデータは、LIFULL HOME'Sを経由して当該物件情報の取扱会社に転送されます。
    • 不動産購入の検討、契約にあたってはお客様ご自身が情報を確認し、各会社より十分な説明を受け判断してください。
    • 本ページの掲載内容は変更される場合があります。あらかじめご了承ください。
    ページトップへ