ブルーミングガーデン 川西市西多田2丁目2期1棟-長期優良住宅-

新築分譲一戸建て
所在地 兵庫県川西市西多田2丁目692番(地番)
交通
  • 阪急宝塚本線「川西能勢口」駅 バス9分「西多田」バス停 徒歩6分~6分
  • JR福知山線「川西池田」駅 バス15分「西多田」バス停 徒歩6分~6分
  • 価格 3,690万円
    資料請求する無料 見学予約する無料

    ※LIFULL HOME'Sの資料請求ページに移動します

    お気に入りに追加
    • 物件情報
    • 地図・周辺情報
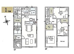
    • 間取り 4LDK~4LDK
      土地面積 125.32m2
      建物面積 101.23m2
      建物階 木造2階建(在来工法)
      完成時期
      • 2026年3月中旬
    • 外観写真 
    • 【【洗面化粧台「スマートサニタリーirodori」】】洗練されたデザインに、使い勝手のよいオープン収納と手入れのしやすさを融合。まるで注文住宅のような洗面空間を実現します。
    • 【【ユニットバス】】高断熱浴槽でいつでも温もりをキープ。乾きやすい床と浴室乾燥暖房機で、お手入れも洗濯も快適です。
    • 【【トイレ】】先進の温水洗浄機能とスタイリッシュなリモコン。手洗いしやすいデザインで、清潔感と利便性を両立しました。
    • 【【玄関ドア・カードキー】】ライフスタイルに合わせて鍵の種類を選べるスマート仕様。ピッキングやこじ開け対策も施された安心の玄関です。
    • 【【窓サッシ】】アルミと樹脂の良さを融合した先進構造で、断熱・防音性能を向上。年間を通して快適な室内環境を保ちます。
    • イオンタウン 川西(約918m)
    • 業務スーパー川西店(約250m)
    • Mandai多田店(約893m)
    • ジャパン川西店(約135m)
    • ホームセンターコーナン 川西西多田店(約94m)
    • ローソン川西矢間二丁目店(約291m)
    • 川西市西多田2丁目2期1棟 区画図
    • リビングダイニング(16.75帖) 
    • 和室(4.5帖) 
    • 外観写真(前面道路) 
    • 【システムキッチン】 スタイリッシュなシステムキッチンには食洗機を標準装備。静音スライド収納や美しいエンボスシンクなど、日々の料理が楽しくなる工夫が満載です。

    住みやすさ

    川西能勢口の住みやすさの採点分布

           
    ココが住みやすい!
    • 駅周辺に店が多く、買い物に困らない。私鉄とJRの乗り換え駅でもあり、往来が盛んで栄えている。天候を気にせず遊べる公園がある。
    • 庭付き一戸建てに住める。 のどかな環境で子育てが出来て、子供ものびのびと育った。 春はウグイスのさえずる声、夏はセミの声…
    • 駅前にスーパーや百貨店があり、食品や日用品など生活に必要なものが揃えやすい。また、猪名川沿いに大きな公園があり、散歩や子供が…
    ※住みやすさに関する評点は、単純平均ではなく当社独自の集計方法を加え算出しています。
    お気に入りに追加 この物件の資料請求無料 見学予約する無料

    ※LIFULL HOME'Sの資料請求ページに移動します

    販売概要

    販売戸数 1戸 最多価格帯 -
    販売価格 3,690万円
    土地面積 125.32m2(約37.90坪)
    建物面積 101.23m2(約30.62坪)
    建物状況 - 建物現況 分譲中
    土地状況 - 最適用途 -
    建築条件備考 - 構造・工法 -
    間取り 4LDK~4LDK 建物階 木造2階建(在来工法)
    建ぺい率 / 容積率 建ぺい率60% 容積率200%
    接道
    東4.0m公道
    駐車場・車庫
    • 2台
    完成時期
    • 2026年3月中旬
    引渡し可能時期
    • 即引渡し可
    その他諸費用 -
    こだわり条件
    • 瑕疵担保付き
    • 仲介手数料不要
    • 見学可能
    • 浴室乾燥機
    • 浴室暖房
    • カウンターキッチン
    • 食器洗い乾燥機
    • 床下収納
    • ウォークインクローゼット
    • 和室
    • TVモニタ付インターホン
    • 長期優良住宅
    • 設計住宅性能評価付き
    • 建設住宅性能評価書(新築時)
    • 南道路
    • 即入居可
    • 駐車場あり
    備考
    • 物件種目:戸建
    • 主たる設備概要:公営水道,関西電力,都市ガス,本下水
    • 建築確認番号:完成済
    • 売主:株式会社東栄住宅
    • 都市計画:市街化区域
    • 備考欄:【接道】東4.0m公道
      【設備】公営水道、都市ガス、本下水、関西電力
      【その他法令】景観法、宅地造成等規制法
    関連サイト -

    省エネ性能

    この物件の省エネ性能がわかる「省エネ性能ラベル」です。省エネ性能ラベルは2024年4月以降に建築確認申請した物件などで表示しています。

    ※「省エネ性能ラベル」は特定の住戸の性能を示し、全ての住戸の性能を示していない場合があります。

    省エネ性能ラベル
    エネルギー消費性能
    (削減率20%達成)
    エネルギー消費性能とは
    星マークの数が多いほどエネルギー消費性能が高いことを示しています。再エネ設備のない住宅は★0~★4の5段階評価、再エネ設備がある住宅は★0~★6の7段階評価となります。
    断熱性能
    5段階 / 7段階
    断熱性能とは
    数値が高いほど断熱性能が高いことを示しています。「熱の逃げやすさ」と「日射熱の入りやすさ」の2つの点で7段階で評価しています。
    目安光熱費
    - /年
    目安光熱費とは
    一年間にかかる光熱費の目安額です。住宅の省エネ性能と全国一律の燃料等の単価を用いて、一定の条件下で自動算出したもので、実際にかかる光熱費とは異なります。

    全体概要

    所在地 兵庫県川西市西多田2丁目692番(地番)
    交通
    • 阪急宝塚本線「川西能勢口」駅 バス9分「西多田」バス停 徒歩6分~6分
    • JR福知山線「川西池田」駅 バス15分「西多田」バス停 徒歩6分~6分
    土地の権利 所有権
    総戸数 1戸
    私道負担 - 用途地域 第二種中高層住居専用地域
    地目 宅地 施工会社 株式会社東栄住宅
    情報掲載開始日 2026年3月12日 情報更新日 2026年5月12日
    取引条件有効期限 2026年5月13日 次回更新予定日 2026年5月26日

    ローンシミュレーション

    頭金、借入期間、金利から毎月の住宅ローンお支払い額の目安を試算します。ご希望の条件に変更してご利用ください。

    物件価格の初期値は最低値を設定しております。実際にローン契約をする際は、詳細を不動産会社にご確認ください。

    万円
    万円
    %

    ※頭金や金利、借入期間によって支払う金額は変わります。

    ※物件購入時には、物件価格の他に諸費用がかかります。

    =
    月々のお支払い目安
    元金
    万円/月
    金利
    万円/月
    お支払い目安
    万円/月

    お問い合わせ

    ご覧いただいている物件の住宅ローンや実際にかかる諸費用、資金計画などのご相談ができます。

    不動産会社へのお問い合わせ

    株式会社東栄住宅 西宮営業所
    • 会社名:株式会社東栄住宅 西宮営業所
    • 住所:兵庫県西宮市中前田町7-32 アルカサル愛希1階
    • 電話:0798-38-1246
    • 取引態様:売主
    • 免許番号:国土交通大臣 (9) 第 3564 号
    • 不動産団体名:(公社)全日本不動産協会兵庫県本部
    • 売主:株式会社東栄住宅
    • 売主免許番号:国土交通大臣(9)第3564号
    • 関連サイト:-
    資料請求する無料 見学予約する無料

    ※LIFULL HOME'Sの資料請求ページに移動します

    他の物件も見てみる

    条件が似た物件
    • 外観
    • 間取り

    • 完成後1年を経過している未入居物件が掲載されている場合があります。
    • 販売住戸が複数の物件は、全ての住戸に該当しない項目もあります。各問い合わせ先にご確認ください。
    • 「建築条件付き土地」とは、一定期間内(概ね3ヶ月程度)に特定の建設会社と建築請負契約を結ぶことを 条件にしている宅地のことです。
    • 建物の内容は、土地購入者の自由意思により決定可能で、土地売買契約後、 建築請負会社と購入した土地に建設する建物について協議することになります。
    • 期間内に建築請負契約が成立しなければ売買契約は白紙となり、支払済みの金銭はすべて返却されます。
    • 「建築条件付き土地」の価格には、建物価格は含まれません。
    • 「建築条件付き土地」の「建物プラン例」は、土地購入者の設計プランの一例であり、プランの採用可否は任意です。
    • 「土地(建築条件なし)」の「建物プラン例」に関して、そのプラン例は特定の建築請負会社によるもので、当該建築請負会社以外で建てた場合、同様のものが同価格で建てられるとは限りません。また、建築請負会社を特定するものではありません。
    • 消費税および地方消費税の対象となる場合は税込み価格が表示されています。
    • 物件の写真やイラスト、CGなどは実際と異なる場合があります。
    • 市区町村の合併などにより、地図が表示されない場合があります。ご了承ください。
    • お客様が入力する個人情報を含むお問い合わせデータは、LIFULL HOME'Sを経由して当該物件情報の取扱会社に転送されます。
    • 不動産購入の検討、契約にあたってはお客様ご自身が情報を確認し、各会社より十分な説明を受け判断してください。
    • 本ページの掲載内容は変更される場合があります。あらかじめご了承ください。
    ページトップへ