川崎市川崎区浜町3丁目 新築戸建 全1棟

新築仲介一戸建て
所在地 神奈川県川崎市川崎区浜町3丁目
交通
  • JR京浜東北・根岸線「川崎」駅まで バス 21分 バス停「四ツ角」まで 徒歩 6分
  • JR南武線「浜川崎」駅まで 徒歩 17分
  • 価格 5,280万円
    • 物件情報
    • 地図・周辺情報
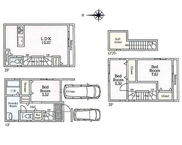
    • 間取り 3LDK
      土地面積 74.85m2
      建物面積 95.42m2
      建物階 地上3階
      完成時期
      • 2026年 3月
    • 暮らしを彩る充実した設備仕様が備わった新築戸建
    • 落ち着いたお洒落な外観
    • 優雅なラインが、毎日を引き立てます
    • 周辺環境も合わせてご覧ください!
    • ■手洗いや顔を洗う時も快適に使える便利なシャワー
    • ■調理時の蒸気や匂いが換気扇に誘導され、効率的に排煙ができます。
    • ■清潔でおいしい水を手軽に供給してくれます
    • ■訪問者を確認できて安心感が増します
    • ■環境に優しくエコなEV車ライフをサポート
    • 我が家専用のカースペース!
    • 広々とゆとりのある洗面所
    • 落ち着いた色合いの壁面、ゆっくり寛げるバスルーム
    • 会話が深まる対面キッチン!家族との会話がはずみます
    • 明るさと開放感たっぷりなキッチン!
    • ■収納力豊富なシステムキッチンです!
    • いつの間にか家族が集まっちゃうそんなリビングいいですよね
    • ここにいる時間が一番長いから やっぱりリビングは明るい方がいいですよね
    • 陽ざしが射し込む明るいLDKは家族でのんびり寛げます
    • 広々とした開放感あふれるリビングです
    • どこになにを置くか楽しみな自分のお部屋
    • ■ここは誰のお部屋にしましょうね
    • 大きな窓は開放感があり、明るさ通風バッチリです
    • どこになにを置くか楽しみな自分のお部屋
    • お洗濯物がよく乾く陽当たり良好のバルコニーです!
    • いつの間にか家族が集まっちゃうそんなリビングいいですよね
    • ■ロフトスペースあり!ぜひ現地でご覧ください
    • ■玄関はお家の顔!おしゃれな玄関アプローチでお客様をお迎え
    • 窮屈さを感じさせない広々玄関!
    • 広々とゆとりのある洗面所

    住みやすさ

    川崎の住みやすさの採点分布

             
    ココが住みやすい!
    • 買い物がすごく便利 ラゾーナの他ルフロン・アトレ・アゼリアなどなどがある 特に食料品が豊富なのと、ラゾーナにホームセンタ…
    • 川崎駅はいろいろな施設があり、とても便利です。 子供を連れて映画も水族館もスポーツも楽しめます。ファミリーレストランやラー…
    • まず交通の便がとても良いです。横浜、東京に近いので、買い物や遊びに行きやすいです。旅行に行く時も新幹線品川駅、羽田空港が近く…
    ※住みやすさに関する評点は、単純平均ではなく当社独自の集計方法を加え算出しています。

    販売概要

    販売戸数 1戸 最多価格帯 -
    販売価格 5,280万円
    土地面積 74.85m2
    建物面積 95.42m2
    建物状況 新築 建物現況 空家
    土地状況 - 最適用途 -
    建築条件備考 - 構造・工法
    • 木造
    間取り 3LDK 建物階 地上3階
    建ぺい率 / 容積率 60% / 160%
    接道
    接道状況:
    一方
    接道詳細:
    • 南 (公道 幅員 2.40m 接面 -)
    駐車場・車庫
    • 2台
    • 駐車場料金:無料
    完成時期
    • 2026年 3月
    引渡し可能時期
    • 即時
    その他諸費用 -
    こだわり条件
    • TVモニタ付インターホン
    • 浴室乾燥機
    • 全居室収納
    • 照明器具付
    • 即入居可
    • 駐車場2台以上
    • 3階建て
    備考
    • 物件種目:戸建
    • 主たる設備概要:-
    • 上水道:公営
    • 下水道:本下水
    • ガス・オール電化:都市ガス
    • セットバック:無
    • 国土法:不要
    • 法令上の制限その他:セットバック約4.18平米 駐車場2台分(1台は軽自動車) 準防火地域 日影規制 隣地斜線制限 北側斜線制限 道路斜線制限 高さ制限20m
    • 建築確認番号:令和7年2月6日確03513H号
    • 都市計画:市街化区域
    • 主要採光面:南
    関連サイト -

    全体概要

    所在地 神奈川県川崎市川崎区浜町3丁目
    交通
    • JR京浜東北・根岸線「川崎」駅まで バス 21分 バス停「四ツ角」まで 徒歩 6分
    • JR南武線「浜川崎」駅まで 徒歩 17分
    土地の権利 所有権
    総戸数 1戸
    私道負担 - 用途地域 第二種住居地域
    地目 宅地 施工会社 -
    情報掲載開始日 2026年3月9日 情報更新日 2026年3月28日
    取引条件有効期限 2026年4月11日 次回更新予定日 -

    ローンシミュレーション

    頭金、借入期間、金利から毎月の住宅ローンお支払い額の目安を試算します。ご希望の条件に変更してご利用ください。

    物件価格の初期値は最低値を設定しております。実際にローン契約をする際は、詳細を不動産会社にご確認ください。

    万円
    万円
    %

    ※頭金や金利、借入期間によって支払う金額は変わります。

    ※物件購入時には、物件価格の他に諸費用がかかります。

    =
    月々のお支払い目安
    元金
    万円/月
    金利
    万円/月
    お支払い目安
    万円/月

    お問い合わせ

    ご覧いただいている物件の住宅ローンや実際にかかる諸費用、資金計画などのご相談ができます。

    不動産会社へのお問い合わせ

    エムイーPLUS横浜株式会社 エムイーPLUS横浜

    この物件のアピールポイント

    暮らしと住まいにPLUSの提案を−エムイーPLUS横浜−

    この物件の価格

    5,280万円

    • 会社名:エムイーPLUS横浜株式会社 エムイーPLUS横浜
    • 住所:神奈川県横浜市瀬谷区三ツ境1-9 ブルーヘンビル2階
    • 電話:045-489-5600
    • 交通:相鉄本線「三ツ境」駅まで 徒歩 3分
    • 取引態様:媒介
    • 免許番号:神奈川県知事(01)第031938号
    • 不動産団体名:(公社)首都圏不動産公正取引協議会、(公社)全日本不動産協会神奈川県本部
    • 保証協会:(公社)不動産保証協会
    • 売主:-
    • 売主免許番号:-
    • 関連サイト:-

    お電話でのお問い合わせはこちら(取り扱い不動産会社に直接つながります)

    電話をかける(携帯電話・PHSでも可)

    1電話番号を入力する

    0037-634-59789

    お問い合わせ先

    エムイーPLUS横浜株式会社 エムイーPLUS横浜

    2音声案内に従い、以下の番号を入力

    お問い合わせ番号 63172-3191

    不動産会社につながります

    不動産会社のスタッフと
    直接電話で話せます

    店舗スタッフ
    • お客様の電話番号は不動産会社に通知されません。
    • 光IP電話、及びIP電話からはご利用になれません。
    • 定休日や営業時間外にてお電話がつながらない場合は、お問い合わせフォームよりお問い合わせください。
    • 携帯電話からお問合せいただいた方には、ショートメッセージ(SMS)またはLINE通知メッセージによるお問い合わせ内容に関する通知を株式会社LIFULLよりお届けする場合があり、お客様の電話番号は株式会社LIFULLで一定期間保管されます。
    • 株式会社LIFULLの個人情報の取扱い方針に同意のうえ、お電話ください。
    • オーナー様・不動産会社様・現在ご入居中のお客様など、住まい探し以外のご相談はこちらからお問い合わせください。

    他の物件も見てみる

    最近見た物件
    • 外観
    • 間取り

    • 完成後1年を経過している未入居物件が掲載されている場合があります。
    • 販売住戸が複数の物件は、全ての住戸に該当しない項目もあります。各問い合わせ先にご確認ください。
    • 「建築条件付き土地」とは、一定期間内(概ね3ヶ月程度)に特定の建設会社と建築請負契約を結ぶことを 条件にしている宅地のことです。
    • 建物の内容は、土地購入者の自由意思により決定可能で、土地売買契約後、 建築請負会社と購入した土地に建設する建物について協議することになります。
    • 期間内に建築請負契約が成立しなければ売買契約は白紙となり、支払済みの金銭はすべて返却されます。
    • 「建築条件付き土地」の価格には、建物価格は含まれません。
    • 「建築条件付き土地」の「建物プラン例」は、土地購入者の設計プランの一例であり、プランの採用可否は任意です。
    • 「土地(建築条件なし)」の「建物プラン例」に関して、そのプラン例は特定の建築請負会社によるもので、当該建築請負会社以外で建てた場合、同様のものが同価格で建てられるとは限りません。また、建築請負会社を特定するものではありません。
    • 消費税および地方消費税の対象となる場合は税込み価格が表示されています。
    • 物件の写真やイラスト、CGなどは実際と異なる場合があります。
    • 市区町村の合併などにより、地図が表示されない場合があります。ご了承ください。
    • お客様が入力する個人情報を含むお問い合わせデータは、LIFULL HOME'Sを経由して当該物件情報の取扱会社に転送されます。
    • 不動産購入の検討、契約にあたってはお客様ご自身が情報を確認し、各会社より十分な説明を受け判断してください。
    • 本ページの掲載内容は変更される場合があります。あらかじめご了承ください。
    ページトップへ