東急田園都市線「あざみ野」駅まで バス 5分 バス停「大場町」まで 徒歩 4分

新築仲介一戸建て
所在地 神奈川県横浜市青葉区大場町
交通
  • 東急田園都市線「あざみ野」駅まで バス 5分 バス停「大場町」まで 徒歩 4分
  • ブルーライン「あざみ野」駅まで 徒歩 22分
  • 価格 7,980万円
    • 物件情報
    • 地図・周辺情報
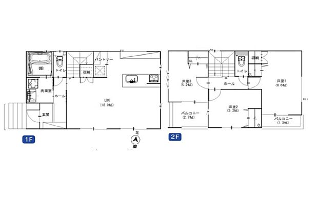
    • 間取り 3LDK
      土地面積 125.07m2
      建物面積 90.25m2
      建物階 地上2階
      完成時期
      • 2026年 4月
    • 時間のゆとりと空間、爽やかな陽光がもたらす光と風を贅沢なまでに感じる暮らしが始まります。
    • 美味しい空気を胸いっぱいに吸い込める快適エリア。
    • 爽やかな青空の下に贅沢なほどに降り注ぐ陽光、豊かな居住性と、クオリティが見事に調和した住空間。
    • 流行に左右されず、将来にわたって価値が継続する「上質」な佇まい。
    • 閑静な住宅街の一角、ひと時のくつろぎが生まれ、ゆっくりと愛着が育まれていきます。
    • 表現された空間は豊かな光と風を纏い、暮らしの時間を豊かにしてくれます。
    • 前面道路含む現地写真『快適』は「家」と「街」と「環境」が調和した時に訪れるだと改めて感じさせてくれます。
    • 住む人を映し出す洗練された佇まいは、いつまでも輝き続けながらいつしか街の風景に溶け込んでいきます。
    • 忙しく過ぎゆく日常を置き去るほど、ゆったりした時間が流れる住環境。
    • 1号棟
    • 手洗いに比べ節水効果が高く、食器の洗浄から乾燥まで、食後の水仕事を軽減します。
    • 換気機能をはじめ、夜間や雨天時の衣類乾燥に便利な乾燥機能、暖房機能も搭載。
    • 内蔵されたカートリッジがカルキ・溶解性鉛・農薬・カビ臭などの不純物を低減します。
    • 湯温の設定から湯船の水量まで設定できる給湯設備。足し湯や足し水で微妙な調整も簡単。
    • トイレは温水洗浄付き。より快適でくつろげる空間に。
    • 「見える安心」をカタチにしました。誰が来てもわかる様にモニター付きインターホンを設置。
    • 複層ガラスは室内の暖房熱を外に逃がさず、同時に外から冷気が伝わるのを防ぎ、暖房効果をぐんと高めます。
    • 換気が気になるときも、24時間室内の空気の入れ替えを行います。
    • 生活の中心となるLDKは対面キッチンタイプのゆったりサイズで家族でくつろげます
    • カースペースもゆとりある空間を保っています。
    • 住む人や訪れる人やさしくエスコートする玄関アプローチ。
    • 18のショップ&レストランとスポーツ施設。のびのびとショッピングやスポーツが楽しめます。
    • 横浜市立黒須田小学校
    • 横浜市立すすき野中学校
    • 東急田園都市線のあざみ野駅にある商業施設です。カフェ、イタリアンレストラン、ドラッグストア東急ストア、保育園など、バラエティー溢れるショップが入っています。
    • いろいろなことを体験し、いろいろな人との触れ合いのなかで心を大切にします。
    • 100円ショップ併設で品揃え充実です。営業時間平日9:05~22:00
    • 爽やかな風を感じて、心躍る素敵な暮らしがはじまります。
    • 【べた基礎】)強度が高く耐震性も優れ、またシロアリ対策としても効果が期待できます。
    • 【フラット35S】)フラット35をお申込みのお客様が長期優良住宅などを取得される場合に金利が一定期間引き下げられます。

    住みやすさ

    あざみ野の住みやすさの採点分布

         
    ココが住みやすい!
    • 駅周辺にはスーパーが3件もあり、またケーキ屋さんや惣菜、ドラッグストア、高級食パン屋もあり、買い物が便利でした。
    • 横浜にも渋谷にも電車一本で行くことができ、色々な場所へのアクセスが良いこと。 歩いていける距離に大型商業施設があること。
    • 典型的な住宅街で、静かである。図書館(山内図書館)が駅の近くにあり、とても便利である。あざみ野駅には急行が止まり、横浜市営地…
    ※住みやすさに関する評点は、単純平均ではなく当社独自の集計方法を加え算出しています。

    販売概要

    販売戸数 1戸 最多価格帯 -
    販売価格 7,980万円
    土地面積 125.07m2
    建物面積 90.25m2
    建物状況 新築 建物現況 未完成
    土地状況 - 最適用途 -
    建築条件備考 - 構造・工法
    • 木造
    間取り 3LDK 建物階 地上2階
    建ぺい率 / 容積率 40% / 80%
    接道
    接道状況:
    一方
    接道詳細:
    • 西 (公道 幅員 4.80m 接面 -)
    駐車場・車庫
    • 2台
    • カースペース
    完成時期
    • 2026年 4月
    引渡し可能時期
    • 2026年5月上旬 期日指定
    その他諸費用 -
    こだわり条件
    • 床下収納
    • TVモニタ付インターホン
    • カウンターキッチン
    • 浴室乾燥機
    • 食器洗い乾燥機
    • 全居室収納
    • オートバス
    • 低層住宅地
    備考
    • 物件種目:戸建
    • 主たる設備概要:-
    • 上水道:公営
    • 下水道:本下水
    • ガス・オール電化:都市ガス
    • セットバック:無
    • 国土法:不要
    • 法令上の制限その他:壁面後退:有 景観法:有 宅地造成工事規制区域:有 高度地区:有 日影制限:有 敷地内段差:有 敷地面積最低限度:有 高さ限度:有
    • 建築確認番号:第25KAK建確00805号
    • 都市計画:市街化区域
    • 敷地全体面積:125.07m2
    • 備考欄:緑化地域 法22条区域 建築物再生可能エネルギー利用促進区域特定都市河川浸水被害対策法 
    関連サイト -

    全体概要

    所在地 神奈川県横浜市青葉区大場町
    交通
    • 東急田園都市線「あざみ野」駅まで バス 5分 バス停「大場町」まで 徒歩 4分
    • ブルーライン「あざみ野」駅まで 徒歩 22分
    土地の権利 所有権
    総戸数 4戸
    私道負担 - 用途地域 第一種低層住居専用地域
    地目 宅地 施工会社 -
    情報掲載開始日 2026年3月7日 情報更新日 2026年3月27日
    取引条件有効期限 2026年4月10日 次回更新予定日 -

    ローンシミュレーション

    頭金、借入期間、金利から毎月の住宅ローンお支払い額の目安を試算します。ご希望の条件に変更してご利用ください。

    物件価格の初期値は最低値を設定しております。実際にローン契約をする際は、詳細を不動産会社にご確認ください。

    万円
    万円
    %

    ※頭金や金利、借入期間によって支払う金額は変わります。

    ※物件購入時には、物件価格の他に諸費用がかかります。

    =
    月々のお支払い目安
    元金
    万円/月
    金利
    万円/月
    お支払い目安
    万円/月

    お問い合わせ

    ご覧いただいている物件の住宅ローンや実際にかかる諸費用、資金計画などのご相談ができます。

    不動産会社へのお問い合わせ

    株式会社東宝ハウス横浜西口

    この物件のアピールポイント

    ― always ON YOUR SIDE ―落ち着いた住環境に佇む寛ぎと機能性を両立したスタイリッシュ邸宅

    この物件の価格

    7,980万円

    • 会社名:株式会社東宝ハウス横浜西口
    • 住所:神奈川県横浜市西区北幸1丁目11-15
    • 電話:0120-821-930
    • 交通:JR東海道本線「横浜」駅まで 徒歩 4分
    • 取引態様:媒介
    • 免許番号:神奈川県知事(01)第030940号
    • 不動産団体名:(公社)首都圏不動産公正取引協議会、(公社)神奈川県宅地建物取引業協会
    • 保証協会:(公社)全国宅地建物取引業保証協会
    • 売主:-
    • 売主免許番号:-
    • 関連サイト:-

    お電話でのお問い合わせはこちら(取り扱い不動産会社に直接つながります)

    電話をかける(携帯電話・PHSでも可)

    1電話番号を入力する

    0037-634-92964

    お問い合わせ先

    株式会社東宝ハウス横浜西口

    2音声案内に従い、以下の番号を入力

    お問い合わせ番号 70145-3190

    不動産会社につながります

    不動産会社のスタッフと
    直接電話で話せます

    店舗スタッフ
    • お客様の電話番号は不動産会社に通知されません。
    • 光IP電話、及びIP電話からはご利用になれません。
    • 定休日や営業時間外にてお電話がつながらない場合は、お問い合わせフォームよりお問い合わせください。
    • 携帯電話からお問合せいただいた方には、ショートメッセージ(SMS)またはLINE通知メッセージによるお問い合わせ内容に関する通知を株式会社LIFULLよりお届けする場合があり、お客様の電話番号は株式会社LIFULLで一定期間保管されます。
    • 株式会社LIFULLの個人情報の取扱い方針に同意のうえ、お電話ください。
    • オーナー様・不動産会社様・現在ご入居中のお客様など、住まい探し以外のご相談はこちらからお問い合わせください。

    他の物件も見てみる

    最近見た物件
    • 外観
    • 間取り

    • 完成後1年を経過している未入居物件が掲載されている場合があります。
    • 販売住戸が複数の物件は、全ての住戸に該当しない項目もあります。各問い合わせ先にご確認ください。
    • 「建築条件付き土地」とは、一定期間内(概ね3ヶ月程度)に特定の建設会社と建築請負契約を結ぶことを 条件にしている宅地のことです。
    • 建物の内容は、土地購入者の自由意思により決定可能で、土地売買契約後、 建築請負会社と購入した土地に建設する建物について協議することになります。
    • 期間内に建築請負契約が成立しなければ売買契約は白紙となり、支払済みの金銭はすべて返却されます。
    • 「建築条件付き土地」の価格には、建物価格は含まれません。
    • 「建築条件付き土地」の「建物プラン例」は、土地購入者の設計プランの一例であり、プランの採用可否は任意です。
    • 「土地(建築条件なし)」の「建物プラン例」に関して、そのプラン例は特定の建築請負会社によるもので、当該建築請負会社以外で建てた場合、同様のものが同価格で建てられるとは限りません。また、建築請負会社を特定するものではありません。
    • 消費税および地方消費税の対象となる場合は税込み価格が表示されています。
    • 物件の写真やイラスト、CGなどは実際と異なる場合があります。
    • 市区町村の合併などにより、地図が表示されない場合があります。ご了承ください。
    • お客様が入力する個人情報を含むお問い合わせデータは、LIFULL HOME'Sを経由して当該物件情報の取扱会社に転送されます。
    • 不動産購入の検討、契約にあたってはお客様ご自身が情報を確認し、各会社より十分な説明を受け判断してください。
    • 本ページの掲載内容は変更される場合があります。あらかじめご了承ください。
    ページトップへ