ふじみ野市川崎 全6棟1号棟

新築仲介一戸建て
所在地 埼玉県ふじみ野市川崎2丁目
交通
  • 東武東上線「上福岡」駅まで 徒歩 21分
  • JR川越線「南古谷」駅まで バス 16分 バス停「城北埼玉中学校・高等学校」まで 徒歩 2分
  • 価格 4,798万円
    • 物件情報
    • 地図・周辺情報
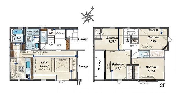
    • 間取り 3LDK
      土地面積 110.17m2
      建物面積 101.64m2
      建物階 地上2階
      完成時期
      • 2026年 4月
    • 堂々たる趣ながら、主張し過ぎずどこか余裕を感じさせるシャープなフォルムで佇む邸宅は、晴天の空と照らし合わせる事で、本来あるべき完成形の姿を見せてくれます。
    • 街に溶け合う美しい景観と、採光や風通しを考えて設計された間取り。近隣の視線を考え調整した窓位置など、外観だけでなく、住まうご家族の心地よさを最優先しました。
    • 家づくりへの想いが設計に表れ、ご家族が快適に過ごす日常を考え工夫された造りです。
    • 豊かで快適な暮らしを。ここから始まる「日常」はご家族にとってかけがえのない時間となります。少しでも豊かに、快適に。そんな想いから本邸宅は生まれました。
    • 前面道路の日当たりの良い明るいお家。
    • 前面道路でお車を駐車するのも楽々。
    • 間取り
    • 区画図
    • シックハウス対策のため24時間換気するシステムを取入れ健康に配慮しています。
    • LOW-Eペアガラスを使用!一般複層ガラスより『もっと節電&もっとエコ』
    • TVモニター付きインターフォンは大画面でお子様のお留守番も安心です。
    • 毎日使うトイレだから、使い勝手の良い機能があるとうれしいですね。
    • 最新設備搭載のシステムキッチン。収納数も多いので、常に纏まりある空間に。
    • 他人事ではなくどこの家庭でも起こり得ることです。万が一の時でも安心です。
    • 同仕様:階段手すり設置
    • 外壁はサイディングボード。耐火性に優れており耐久性も高くなっています。
    • お風呂のお湯がたまったかどうか、浴室へ確認に行かずにすみます。
    • 使う季節が限られる土鍋や重箱など、頻繁に出し入れしないものをしまうのに便利。
    • ゆったりとした駐車スペースを確保いたしましたので、大きめのお車でも駐車可能です。自転車やバイクなど、ゆとりのある敷地で置き場所に困ることはないでしょう。
    • 周辺環境-その他環境写真(9999m)ハウスネットパートナー((他社には無い『サービス』をご提供致します!詳しくは弊社HPをご確認下さい。))
    • 周辺環境-駅(1790m)上福岡駅
    • 周辺環境-幼稚園・保育園(260m)香取第二幼稚園
    • シックハウス対策のため24時間換気するシステムを取入れ健康に配慮しています。
    • LOW-Eペアガラスを使用!一般複層ガラスより『もっと節電&もっとエコ』
    • 構造材をつなぎとめる接合部には「耐震金物」を採用。
    • 自社断熱マイスターが貼ると、断熱効果が違います。
    • 現場での施工前に工場などで原材料に切断、加工を施す「プレカットシステム」を採用。
    • 壁と外壁仕上材の間に通気スペースを設けた「外壁通気工法」を採用しています。
    • 「基礎パッキン工法」を標準で採用し、従来工法の1.5~2倍の床下換気性能を発揮。
    • べた基礎は立ち上がりと底面全体が一体の鉄筋コンクリート造。

    住みやすさ

    上福岡の住みやすさの採点分布

           
    ココが住みやすい!
    • ・徒歩圏内で多ジャンルのお店に行くことが出来ること ・動物病院が駅近くにあること ・閑静な住宅街が多く、駅等にも程よい距…
    • 生活圏内にほぼ全てのお店が存在しています。スーパー、飲食店、ホームセンター、子供店、洋服屋、100円ショップ、ショッピングモ…
    • マンションや一軒家が周りに多く建ち子育て世帯が多いこと。また公園や病院は一通り揃っていて困らないです。
    ※住みやすさに関する評点は、単純平均ではなく当社独自の集計方法を加え算出しています。

    販売概要

    販売戸数 1戸 最多価格帯 -
    販売価格 4,798万円
    土地面積 110.17m2
    建物面積 101.64m2
    建物状況 新築 建物現況 空家
    土地状況 - 最適用途 -
    建築条件備考 - 構造・工法
    • 木造
    間取り 3LDK 建物階 地上2階
    建ぺい率 / 容積率 60% / 100%
    接道
    接道状況:
    一方
    接道詳細:
    • 北東 (公道 幅員 6.00m 接面 -)
    駐車場・車庫
    • 2台
    • ビルトイン車庫 駐車場面積:4.14平米
      駐車場料金:無料
    完成時期
    • 2026年 4月
    引渡し可能時期
    • 2026年5月下旬 期日指定
    その他諸費用 -
    こだわり条件
    • コンロ三口
    • 床下収納
    • TVモニタ付インターホン
    • カウンターキッチン
    • 浴室乾燥機
    • 食器洗い乾燥機
    • 全居室収納
    • シューズインクローゼット
    • オートバス
    • BELS/省エネ基準適合認定建築物
    • 駐車場2台以上
    • 低層住宅地
    備考
    • 物件種目:戸建
    • 主たる設備概要:-
    • 上水道:公営
    • 下水道:本下水
    • ガス・オール電化:都市ガス
    • セットバック:無
    • 国土法:不要
    • 建築確認番号:第25UDI1W建10826号
    • 都市計画:市街化区域
    • 敷地全体面積:110.17m2
    • 備考欄:◆◆仲介手数料0円(無料)◆◆   ハウスネットパートナーの特徴→「新築戸建専門店」 「仲介手数料0円(無料)」 「県内トップクラスの金利優遇(提携銀行多数)」 「川口店・大宮店で営業中」   通常仲介手数料っていくら? 購入物件が4000万円なら約138万円 5000万円なら約171万円  ハウスネットパートナーなら0円(無料)です。 ◆◆仲介手数料0円(無料)◆◆ 
    関連サイト -

    全体概要

    所在地 埼玉県ふじみ野市川崎2丁目
    交通
    • 東武東上線「上福岡」駅まで 徒歩 21分
    • JR川越線「南古谷」駅まで バス 16分 バス停「城北埼玉中学校・高等学校」まで 徒歩 2分
    土地の権利 所有権
    総戸数 6戸
    私道負担 - 用途地域 第一種低層住居専用地域
    地目 宅地 施工会社 -
    情報掲載開始日 2025年12月16日 情報更新日 2026年5月9日
    取引条件有効期限 2026年5月23日 次回更新予定日 -

    ローンシミュレーション

    頭金、借入期間、金利から毎月の住宅ローンお支払い額の目安を試算します。ご希望の条件に変更してご利用ください。

    物件価格の初期値は最低値を設定しております。実際にローン契約をする際は、詳細を不動産会社にご確認ください。

    万円
    万円
    %

    ※頭金や金利、借入期間によって支払う金額は変わります。

    ※物件購入時には、物件価格の他に諸費用がかかります。

    =
    月々のお支払い目安
    元金
    万円/月
    金利
    万円/月
    お支払い目安
    万円/月

    お問い合わせ

    ご覧いただいている物件の住宅ローンや実際にかかる諸費用、資金計画などのご相談ができます。

    不動産会社へのお問い合わせ

    株式会社ハウスネットパートナー 大宮店

    この物件のアピールポイント

    本日見学できます未完成物件の場合、周辺の同仕様物件をご見学いただけます 物件資料はメール又はショートメールでお送りします ローンが不安の方ご相談ください

    この物件の価格

    4,798万円

    • 会社名:株式会社ハウスネットパートナー 大宮店
    • 住所:埼玉県さいたま市大宮区上小町1232-1
    • 電話:0120-09-8170
    • 交通:JR京浜東北・根岸線「大宮」駅まで バス乗車 バス停「上小公園南」まで 徒歩 1分
    • 取引態様:媒介
    • 免許番号:埼玉県知事(02)第023376号
    • 不動産団体名:(公社)首都圏不動産公正取引協議会、(公社)全日本不動産協会埼玉県本部
    • 保証協会:(公社)不動産保証協会
    • 売主:-
    • 売主免許番号:-
    • 関連サイト:-

    お電話でのお問い合わせはこちら(取り扱い不動産会社に直接つながります)

    電話をかける(携帯電話・PHSでも可)

    1電話番号を入力する

    0037-634-12332

    お問い合わせ先

    株式会社ハウスネットパートナー 大宮店

    2音声案内に従い、以下の番号を入力

    お問い合わせ番号 43245-3195

    不動産会社につながります

    不動産会社のスタッフと
    直接電話で話せます

    店舗スタッフ
    • お客様の電話番号は不動産会社に通知されません。
    • 光IP電話、及びIP電話からはご利用になれません。
    • 定休日や営業時間外にてお電話がつながらない場合は、お問い合わせフォームよりお問い合わせください。
    • 携帯電話からお問合せいただいた方には、ショートメッセージ(SMS)またはLINE通知メッセージによるお問い合わせ内容に関する通知を株式会社LIFULLよりお届けする場合があり、お客様の電話番号は株式会社LIFULLで一定期間保管されます。
    • 株式会社LIFULLの個人情報の取扱い方針に同意のうえ、お電話ください。
    • オーナー様・不動産会社様・現在ご入居中のお客様など、住まい探し以外のご相談はこちらからお問い合わせください。

    他の物件も見てみる

    最近見た物件
    • 外観
    • 間取り

    • 完成後1年を経過している未入居物件が掲載されている場合があります。
    • 販売住戸が複数の物件は、全ての住戸に該当しない項目もあります。各問い合わせ先にご確認ください。
    • 「建築条件付き土地」とは、一定期間内(概ね3ヶ月程度)に特定の建設会社と建築請負契約を結ぶことを 条件にしている宅地のことです。
    • 建物の内容は、土地購入者の自由意思により決定可能で、土地売買契約後、 建築請負会社と購入した土地に建設する建物について協議することになります。
    • 期間内に建築請負契約が成立しなければ売買契約は白紙となり、支払済みの金銭はすべて返却されます。
    • 「建築条件付き土地」の価格には、建物価格は含まれません。
    • 「建築条件付き土地」の「建物プラン例」は、土地購入者の設計プランの一例であり、プランの採用可否は任意です。
    • 「土地(建築条件なし)」の「建物プラン例」に関して、そのプラン例は特定の建築請負会社によるもので、当該建築請負会社以外で建てた場合、同様のものが同価格で建てられるとは限りません。また、建築請負会社を特定するものではありません。
    • 消費税および地方消費税の対象となる場合は税込み価格が表示されています。
    • 物件の写真やイラスト、CGなどは実際と異なる場合があります。
    • 市区町村の合併などにより、地図が表示されない場合があります。ご了承ください。
    • お客様が入力する個人情報を含むお問い合わせデータは、LIFULL HOME'Sを経由して当該物件情報の取扱会社に転送されます。
    • 不動産購入の検討、契約にあたってはお客様ご自身が情報を確認し、各会社より十分な説明を受け判断してください。
    • 本ページの掲載内容は変更される場合があります。あらかじめご了承ください。
    ページトップへ