さいたま市南区太田窪

新築仲介一戸建て
所在地 埼玉県さいたま市南区大字太田窪
交通
  • JR武蔵野線「南浦和」駅まで バス 13分 バス停「二十三夜」まで 徒歩 4分
  • JR京浜東北・根岸線「浦和」駅まで バス 17分 バス停「二十三夜」まで 徒歩 4分
  • 価格 4,490万円
    • 物件情報
    • 地図・周辺情報
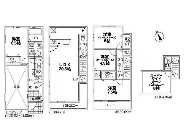
    • 間取り 2SLDK
      土地面積 68.10m2(実測)
      建物面積 125.14m2
      建物階 地上3階
      完成時期
      • 2025年 11月
    • 【外観】こちらの物件が少しでも気になるようでしたら、お気軽にお問合せください。人生でいちばん大きなお買い物ですので、ゆっくりご見学ください。ネット上の画像と実際の見学では、リアル感がまるで違…
    • 【前面道路約4M】車の通行が少ないので、静かな住環境を維持することができます。
    • 1号棟【外観】家族の温かさと陽光の暖かさ、楽しい毎日と明るい未来を予感させる「空間が織り成すひとつ先の住み心地」を演出します。
    • 1号棟【間取り図】
    • 【区画図】
    • 1号棟 図面と異なる場合は現況を優先
    • 1号棟【駐車場】ビルトインガレージなら「野ざらし、雨ざらし、吹きさらし」になりません。汚れやいたみは減り、車の掃除もラクになります。
    • 【浴室暖房乾燥機】  温風で洗濯物を乾燥させる、雨の日に便利な設備。浴室を換気してカビ発生を防ぎ、掃除の手間を減らせます。事前に暖房を入れて入浴することで「ヒートショック現象」を防ぐ効果も。…
    • 1号棟【洗面台】大きく見やすい三面鏡で清潔感ある洗面台は、身だしなみチェックや肌のお手入れに最適です。
    • 1号棟【手すり付階段】手すりがないと階段の昇り降りで危険なことはもちろん、壁に手をつきながら歩くことで壁紙が汚れやすくなります。すべての方に快適に昇り降りしていただくため、手すりを設置しまし…
    • 1号棟【収納 洋室4.5帖】限られたスペースを有効に活用できる壁面クローゼット。
    • 1号棟【収納 寝室7.5帖】各部屋を最大限に広く使って頂ける様、全居住スペースに収納付。プライベートルームはゆったりと快適に。
    • 1号棟【バルコニー】澄み切った青空と、心地良い風を感じるバルコニー。
    • 小学校 140m さいたま市立善前小学校
    • 1号棟【キッチン】カウンターキッチンは広くて収納力もあるので、快適に料理をすることができます。食器や炊事用具を手の届くところに配置しやすいため調理もスピーディーですよ。
    • 1号棟【LDK20.5帖】明るく開放的な空間が広がるLDK。
    • 1号棟【子供部屋6帖】お子様のお部屋にぴったりなクロークを備えたフローリング仕様の洋室です。
    • 1号棟【玄関】玄関はおうちの顔と言われます。玄関アプローチは、外観デザインの印象を左右します。
    • 1号棟【LDK20.5帖】インテリアショップで見掛けた「あの家具」も置ける、ゆったりとした空間。時に広さが上質な寛ぎの時間になる事も。※CGにて家具を配置しています。
    • 1号棟【玄関】スタイリッシュかつ品のある玄関。晴れの日も、雨の日も、風の日も、ご家族やお客さまを安心して迎えます。
    • 1号棟【LDK20.5帖】忙しい朝でも家族揃って食事をしたいゆとりあるダイニングスペース。
    • 1号棟【寝室7.5帖】充実した生活は伸びやかな居室空間から始まります。快適に・伸びやかに。心の潤いを求める方々へ。
    • 1号棟【洋室4.5帖】柔らかな陽光とフローリングの色味が調和した快適な空間。
    • 1号棟【LDK20.5帖】ダイニングテーブルを置いても十分な広さが確保されています。
    • 1号棟【浴室】一日の疲れを癒してくれるお風呂空間。使いやすさと上質な質感を両立して、単なる習慣から特別な時間に変わるはず。
    • 1号棟【ランドリースペース】毎日使う洗濯機。しっかりと奥行きのある置き場が確保されています。
    • 1号棟【眺望】眺望や窓からの景色が良いと、家で過ごす時間も快適です。
    • 1号棟【庭】プランター等をおいてガーデニングが楽しめます。

    住みやすさ

    南浦和の住みやすさの採点分布

           
    ココが住みやすい!
    • 文教都市として県内では有名な浦和の隣で、学習塾が乱立。そのためか治安もよく、落ち着いた子育てしやすい街です。それでいてターミ…
    • ・通勤は都内まで複数路線で通えるため突発の電車運休があっても他の路線へ乗り換えできる為大変便利です。 ・スーパーや病院や子…
    • 街のメインの道には街灯があって、夜でもかなり明るく女性でも家までの道に不安がないかと思います。 駅前には飲み屋も多く、ファ…
    ※住みやすさに関する評点は、単純平均ではなく当社独自の集計方法を加え算出しています。

    販売概要

    販売戸数 1戸 最多価格帯 -
    販売価格 4,490万円
    土地面積 68.10m2(実測)
    建物面積 125.14m2
    建物状況 新築 建物現況 空家
    土地状況 - 最適用途 -
    建築条件備考 - 構造・工法
    • 木造
    間取り 2SLDK 建物階 地上3階
    建ぺい率 / 容積率 60% / 200%
    接道
    接道状況:
    一方
    接道詳細:
    • 南西 (公道 幅員 3.50m 接面 -)
    駐車場・車庫
    • 1台
    • 駐車場料金:無料
    完成時期
    • 2025年 11月
    引渡し可能時期
    • 即時
    その他諸費用 -
    こだわり条件
    • 床下収納
    • TVモニタ付インターホン
    • 即入居可
    • 3階建て
    • 小学校まで1km以内
    • 駐車場あり
    備考
    • 物件種目:戸建
    • 主たる設備概要:-
    • 上水道:公営
    • 下水道:本下水
    • ガス・オール電化:都市ガス
    • セットバック:無
    • 国土法:不要
    • 法令上の制限その他:南西側公道幅員:3.5〜4m
    • 建築確認番号:第SJK-KX255610230号
    • 都市計画:市街化区域
    • 最寄り小学校名:さいたま市立善前小学校
    • 最寄り小学校までの距離:160m
    • 最寄り中学校名:さいたま市立大谷口中学校
    • 最寄り中学校までの距離:1,500m
    • 近隣の病院までの距離:2,200m
    • 地勢:高台
    • 備考欄: うち1F車庫面積:14.58平米/敷地内駐車場面積:14.58平米。
    関連サイト -

    全体概要

    所在地 埼玉県さいたま市南区大字太田窪
    交通
    • JR武蔵野線「南浦和」駅まで バス 13分 バス停「二十三夜」まで 徒歩 4分
    • JR京浜東北・根岸線「浦和」駅まで バス 17分 バス停「二十三夜」まで 徒歩 4分
    土地の権利 所有権
    総戸数 3戸
    私道負担 - 用途地域 第一種中高層住居専用地域
    地目 宅地 施工会社 -
    情報掲載開始日 2025年12月7日 情報更新日 2026年5月10日
    取引条件有効期限 2026年5月23日 次回更新予定日 -

    ローンシミュレーション

    頭金、借入期間、金利から毎月の住宅ローンお支払い額の目安を試算します。ご希望の条件に変更してご利用ください。

    物件価格の初期値は最低値を設定しております。実際にローン契約をする際は、詳細を不動産会社にご確認ください。

    万円
    万円
    %

    ※頭金や金利、借入期間によって支払う金額は変わります。

    ※物件購入時には、物件価格の他に諸費用がかかります。

    =
    月々のお支払い目安
    元金
    万円/月
    金利
    万円/月
    お支払い目安
    万円/月

    お問い合わせ

    ご覧いただいている物件の住宅ローンや実際にかかる諸費用、資金計画などのご相談ができます。

    不動産会社へのお問い合わせ

    株式会社東宝ハウス浦和

    この物件のアピールポイント

    《当日見学可能な物件です!》〜■■見学予約は【0120-919-113】まで。お気軽にお問合せ下さい

    この物件の価格

    4,490万円

    • 会社名:株式会社東宝ハウス浦和
    • 住所:埼玉県さいたま市浦和区岸町6丁目1-5
    • 電話:0120-919-113
    • 交通:JR京浜東北・根岸線「浦和」駅まで 徒歩 10分
    • 取引態様:媒介
    • 免許番号:埼玉県知事(04)第021060号
    • 不動産団体名:(公社)首都圏不動産公正取引協議会、(公社)全日本不動産協会
    • 保証協会:(公社)不動産保証協会
    • 売主:-
    • 売主免許番号:-
    • 関連サイト:-

    お電話でのお問い合わせはこちら(取り扱い不動産会社に直接つながります)

    電話をかける(携帯電話・PHSでも可)

    1電話番号を入力する

    0037-634-40566

    お問い合わせ先

    株式会社東宝ハウス浦和

    2音声案内に従い、以下の番号を入力

    お問い合わせ番号 01018-3193

    不動産会社につながります

    不動産会社のスタッフと
    直接電話で話せます

    店舗スタッフ
    • お客様の電話番号は不動産会社に通知されません。
    • 光IP電話、及びIP電話からはご利用になれません。
    • 定休日や営業時間外にてお電話がつながらない場合は、お問い合わせフォームよりお問い合わせください。
    • 携帯電話からお問合せいただいた方には、ショートメッセージ(SMS)またはLINE通知メッセージによるお問い合わせ内容に関する通知を株式会社LIFULLよりお届けする場合があり、お客様の電話番号は株式会社LIFULLで一定期間保管されます。
    • 株式会社LIFULLの個人情報の取扱い方針に同意のうえ、お電話ください。
    • オーナー様・不動産会社様・現在ご入居中のお客様など、住まい探し以外のご相談はこちらからお問い合わせください。

    他の物件も見てみる

    最近見た物件
    • 外観
    • 間取り

    • 完成後1年を経過している未入居物件が掲載されている場合があります。
    • 販売住戸が複数の物件は、全ての住戸に該当しない項目もあります。各問い合わせ先にご確認ください。
    • 「建築条件付き土地」とは、一定期間内(概ね3ヶ月程度)に特定の建設会社と建築請負契約を結ぶことを 条件にしている宅地のことです。
    • 建物の内容は、土地購入者の自由意思により決定可能で、土地売買契約後、 建築請負会社と購入した土地に建設する建物について協議することになります。
    • 期間内に建築請負契約が成立しなければ売買契約は白紙となり、支払済みの金銭はすべて返却されます。
    • 「建築条件付き土地」の価格には、建物価格は含まれません。
    • 「建築条件付き土地」の「建物プラン例」は、土地購入者の設計プランの一例であり、プランの採用可否は任意です。
    • 「土地(建築条件なし)」の「建物プラン例」に関して、そのプラン例は特定の建築請負会社によるもので、当該建築請負会社以外で建てた場合、同様のものが同価格で建てられるとは限りません。また、建築請負会社を特定するものではありません。
    • 消費税および地方消費税の対象となる場合は税込み価格が表示されています。
    • 物件の写真やイラスト、CGなどは実際と異なる場合があります。
    • 市区町村の合併などにより、地図が表示されない場合があります。ご了承ください。
    • お客様が入力する個人情報を含むお問い合わせデータは、LIFULL HOME'Sを経由して当該物件情報の取扱会社に転送されます。
    • 不動産購入の検討、契約にあたってはお客様ご自身が情報を確認し、各会社より十分な説明を受け判断してください。
    • 本ページの掲載内容は変更される場合があります。あらかじめご了承ください。
    ページトップへ