鎌ケ谷市鎌ケ谷九1期 1号棟

新築仲介一戸建て
所在地 千葉県鎌ケ谷市鎌ケ谷9丁目
交通
  • 京成電鉄松戸線「鎌ヶ谷大仏」駅まで 徒歩 14分
  • 京成電鉄松戸線「二和向台」駅まで 徒歩 23分
  • 価格 2,990万円
    • 物件情報
    • 地図・周辺情報
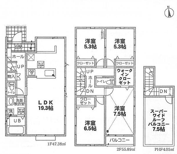
    • 間取り 4LDK
      土地面積 118.18m2(公簿)
      建物面積 107.32m2(内法)
      建物階 地上2階
      完成時期
      • 2025年 11月
    • 鎌ケ谷エリアに誕生した全2棟。右側が1号棟、左側が2号棟です。
    • 1号棟 ブラックが印象的な1号棟。車2台プラス自転車も置けるゆとりの駐車スペース付きです。
    • 1号棟 2階に4部屋付いた使い勝手の良い間取り。広々ルーフバルコニー搭載
    • 前面道路は4.0m。カースペースは2台分。並列駐車可能です。
    • 1号棟 玄関のスペースはベビーカーなどを置いたり、棚を置いてシューズクロークとしても使えます。
    • 1号棟 洗面所は洗濯機を置いてもじゅうぶんな広さがあります。洗面台は人気の三面鏡タイプです。
    • 1号棟 窓から陽が差し込む明るいトイレ。浴室、リビング、玄関からの動線も良好です。
    • 1号棟 夫婦の寝室としても十分な広さのある、7.5帖の洋室。ベランダに出入りできます。
    • 1号棟 主寝室にはWIC付き。季節物の洋服もバッグもすっきり収納できます。
    • 1号棟 分けてもつなげても使える洋室。生活スタイルに合わせてお使いいただけます。
    • 1号棟 約7.5帖もあるルーフバルコニー。青空の下、人目を気にせずプライベートな時間を過ごせそうです。
    • マルエイ 南鎌ヶ谷店まで徒歩11分
    • ヨークマート 東道野辺店まで徒歩15分
    • ドラッグストアセキ 鎌ヶ谷店まで徒歩5分
    • 鎌ケ谷市立東部小学校まで徒歩9分
    • 鎌ヶ谷ひかり幼稚園まで徒歩6分
    • 鎌ケ谷保育園まで徒歩7分
    • 鎌ケ谷市立第二中学校まで徒歩16分
    • 1号棟 19.3帖LDK。キッチン奥に自然光の降り注ぐパントリーがあり、さらに広さを感じられます。
    • 1号棟 食器棚を置いても十分なスペースのあるキッチン。リビングを見ながらお料理できます。
    • 1号棟 足を伸ばしてゆったりと浸かれる浴室です。窓もがあり換気もできます。
    • 1号棟 キッチン裏の広々パントリー。コンセント穴もあり、家電を置くこともできます。
    • 1号棟 玄関を入ると右にシューズボックス、左にフリースペースがございます。

    住みやすさ

    鎌ヶ谷大仏の住みやすさの採点分布

         
    ココが住みやすい!
    • 徒歩圏内にスーパー、ホームセンター、薬局などが揃っており生活しやすいと感じた。また千葉県で1番美味しいと言われているパン屋が…
    • 駅、病院、スーパー、ドラッグストアなど色々なものが近くに揃っているためとても住みやすい。事件、事故なども少なく穏やかな街。市…
    • 東京湾から少し離れた内陸にある街です。こじんまりしていて生活に必要な環境がギュッと詰まっています。一人暮らしで生活するのに必…
    ※住みやすさに関する評点は、単純平均ではなく当社独自の集計方法を加え算出しています。

    販売概要

    販売戸数 1戸 最多価格帯 -
    販売価格 2,990万円
    土地面積 118.18m2(公簿)
    建物面積 107.32m2(内法)
    建物状況 新築 建物現況 空家
    土地状況 - 最適用途 -
    建築条件備考 - 構造・工法
    • 木造
    間取り 4LDK
    間取り内訳:リビングダイニングキッチン 19.3帖(1階)・洋室 7.5帖(2階)・洋室 6.5帖(2階)・洋室 5.3帖(2階)x2
    建物階 地上2階
    建ぺい率 / 容積率 60% / 200%
    接道
    接道状況:
    一方
    接道詳細:
    • 北 (私道 幅員 4.00m 接面 -)
    駐車場・車庫
    • 2台
    • 駐車場料金:無料
    完成時期
    • 2025年 11月
    引渡し可能時期
    • 即時
    その他諸費用 -
    こだわり条件
    • 床下収納
    • ウォークインクローゼット
    • TVモニタ付インターホン
    • バリアフリー
    • カウンターキッチン
    • 浴室乾燥機
    • 食器洗い乾燥機
    • 全居室収納
    • シューズインクローゼット
    • オートバス
    • 即入居可
    • 駐車場2台以上
    • 小学校まで1km以内
    備考
    • 物件種目:戸建
    • 主たる設備概要:-
    • 上水道:公営
    • ガス・オール電化:都市ガス
    • 国土法:不要
    • 都市計画:市街化区域
    • 敷地全体面積:118.18m2
    • 主要採光面:南
    • 最寄り小学校名:鎌ケ谷市立東部小学校
    • 最寄り小学校までの距離:695m
    • 最寄り中学校名:鎌ケ谷市立第二中学校
    • 最寄り中学校までの距離:1,201m
    • その他施設名:鎌ヶ谷ひかり幼稚園
    • その他施設までの距離:475m
    • 近隣の公園までの距離:261m
    • 近隣のスーパーマーケットまでの距離:815m
    • 近隣のドラッグストアまでの距離:331m
    • 近隣のコンビニまでの距離:406m
    関連サイト -

    全体概要

    所在地 千葉県鎌ケ谷市鎌ケ谷9丁目
    交通
    • 京成電鉄松戸線「鎌ヶ谷大仏」駅まで 徒歩 14分
    • 京成電鉄松戸線「二和向台」駅まで 徒歩 23分
    • なし
    土地の権利 所有権
    総戸数 2戸
    私道負担 - 用途地域 第一種住居地域
    地目 山林 施工会社 -
    情報掲載開始日 2025年11月28日 情報更新日 2026年5月10日
    取引条件有効期限 2026年5月24日 次回更新予定日 -

    ローンシミュレーション

    頭金、借入期間、金利から毎月の住宅ローンお支払い額の目安を試算します。ご希望の条件に変更してご利用ください。

    物件価格の初期値は最低値を設定しております。実際にローン契約をする際は、詳細を不動産会社にご確認ください。

    万円
    万円
    %

    ※頭金や金利、借入期間によって支払う金額は変わります。

    ※物件購入時には、物件価格の他に諸費用がかかります。

    =
    月々のお支払い目安
    元金
    万円/月
    金利
    万円/月
    お支払い目安
    万円/月

    お問い合わせ

    ご覧いただいている物件の住宅ローンや実際にかかる諸費用、資金計画などのご相談ができます。

    不動産会社へのお問い合わせ

    株式会社HRE

    この物件のアピールポイント

    広々ルーフバルコニー搭載! WICやパントリーなど収納豊富/カースペース2台並列駐車可能

    この物件の価格

    2,990万円

    • 会社名:株式会社HRE
    • 住所:千葉県習志野市大久保1丁目1-10
    • 電話:047-403-3553
    • 交通:京成本線「京成大久保」駅まで 徒歩 8分
    • 取引態様:媒介
    • 免許番号:千葉県知事(04)第15460号
    • 不動産団体名:(公社)首都圏不動産公正取引協議会、(一社)千葉県宅地建物取引業協会、(公財)東日本不動産流通機構
    • 保証協会:(公社)全国宅地建物取引業保証協会
    • 売主:-
    • 売主免許番号:-
    • 関連サイト:-

    お電話でのお問い合わせはこちら(取り扱い不動産会社に直接つながります)

    電話をかける(携帯電話・PHSでも可)

    1電話番号を入力する

    0037-634-53379

    お問い合わせ先

    株式会社HRE

    2音声案内に従い、以下の番号を入力

    お問い合わせ番号 44189-3192

    不動産会社につながります

    不動産会社のスタッフと
    直接電話で話せます

    店舗スタッフ
    • お客様の電話番号は不動産会社に通知されません。
    • 光IP電話、及びIP電話からはご利用になれません。
    • 定休日や営業時間外にてお電話がつながらない場合は、お問い合わせフォームよりお問い合わせください。
    • 携帯電話からお問合せいただいた方には、ショートメッセージ(SMS)またはLINE通知メッセージによるお問い合わせ内容に関する通知を株式会社LIFULLよりお届けする場合があり、お客様の電話番号は株式会社LIFULLで一定期間保管されます。
    • 株式会社LIFULLの個人情報の取扱い方針に同意のうえ、お電話ください。
    • オーナー様・不動産会社様・現在ご入居中のお客様など、住まい探し以外のご相談はこちらからお問い合わせください。

    他の物件も見てみる

    条件が似た物件
    • 外観
    • 間取り

    • 完成後1年を経過している未入居物件が掲載されている場合があります。
    • 販売住戸が複数の物件は、全ての住戸に該当しない項目もあります。各問い合わせ先にご確認ください。
    • 「建築条件付き土地」とは、一定期間内(概ね3ヶ月程度)に特定の建設会社と建築請負契約を結ぶことを 条件にしている宅地のことです。
    • 建物の内容は、土地購入者の自由意思により決定可能で、土地売買契約後、 建築請負会社と購入した土地に建設する建物について協議することになります。
    • 期間内に建築請負契約が成立しなければ売買契約は白紙となり、支払済みの金銭はすべて返却されます。
    • 「建築条件付き土地」の価格には、建物価格は含まれません。
    • 「建築条件付き土地」の「建物プラン例」は、土地購入者の設計プランの一例であり、プランの採用可否は任意です。
    • 「土地(建築条件なし)」の「建物プラン例」に関して、そのプラン例は特定の建築請負会社によるもので、当該建築請負会社以外で建てた場合、同様のものが同価格で建てられるとは限りません。また、建築請負会社を特定するものではありません。
    • 消費税および地方消費税の対象となる場合は税込み価格が表示されています。
    • 物件の写真やイラスト、CGなどは実際と異なる場合があります。
    • 市区町村の合併などにより、地図が表示されない場合があります。ご了承ください。
    • お客様が入力する個人情報を含むお問い合わせデータは、LIFULL HOME'Sを経由して当該物件情報の取扱会社に転送されます。
    • 不動産購入の検討、契約にあたってはお客様ご自身が情報を確認し、各会社より十分な説明を受け判断してください。
    • 本ページの掲載内容は変更される場合があります。あらかじめご了承ください。
    ページトップへ