浦和区瀬ヶ崎 新築戸建

新築仲介一戸建て
所在地 埼玉県さいたま市浦和区瀬ヶ崎4丁目
交通
  • JR京浜東北・根岸線「北浦和」駅まで 徒歩 27分
  • JR京浜東北・根岸線「浦和」駅まで 徒歩 33分
  • 価格 3,280万円
    • 物件情報
    • 地図・周辺情報
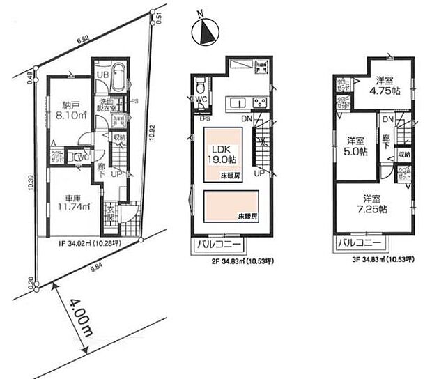
    • 間取り 3SLDK
      土地面積 64.63m2(公簿)
      建物面積 103.68m2
      建物階 地上3階
      完成時期
      • 2025年 7月
    • 最寄り駅はJR京浜東北線「北浦和」駅!閑静な住宅街にありながら利便性も高い暮らしやすい環境です!広々19帖LDK!全居室収納付きの3SLDK!
    • LDKは広々19帖!家族のコミュニケーションがとりやすいリビングイン階段を採用!全居室収納&ホール収納付き!!
    • カースペース1台有ります!自転車も置くことが可能な駐車場です。
    • バルコニーに面した7.25帖の洋室はクローゼットをご用意した快適空間。陽光がたっぷり差し込む明るい室内!
    • クローゼット付きのシンプルな洋室!
    • 約4.4帖の納戸は収納スペースに使ったり、居室として使ってもOKです。クローゼット完備!
    • バルコニーは2か所に設置され、用途に合わせて使い分けを可能にしてくれます。陽当たり良好で洗濯物もタップリ乾かせます!
    • 落ち着いた空間を演出し、ご家族や来客者を気持ちよく出迎えます。収納力の高いシューズボックスも設置され玄関をスッキリと保てます!
    • さいたま市立道祖土小学校まで350m
    • さいたま市立木崎中学校まで880m
    • 椎の実保育園まで390m
    • ドラッグセイムス浦和さいど店まで890m
    • ビバホームプロ浦和さいど店まで690m
    • セブンイレブン浦和瀬ヶ崎店まで620m
    • 駒場運動公園まで375m
    • さいたま市青少年宇宙科学館まで380m
    • 川原小児科内科医院まで530m
    • LDKはゆったり19帖!床暖房完備!コミュニケーションが取りやすい空間設計!お食事を取るダイニングスペース、くつろげるリビングスペースの両方しっかり確保されています。
    • バルコニーへとつながる大きな窓から光が差し込むリビング!2階LDKは外からの視線が気になりにくいのでプライバシーも確保しやすいです。
    • スタイリッシュなシステムキッチンは、収納力と機能性を兼ね備え、料理が楽しくなる空間。
    • ビルトイン食洗機付きのシステムキッチンで家事の負担を軽減、忙しいパパママをサポートします!
    • 広いお風呂スペース!心と身体をリフレッシュさせる癒しの空間でもあるバスルーム!窓がついていて明るく換気もバッチリです!
    • 三面鏡の付いたゆったりとした洗面化粧台。合わせ鏡で後ろのスタイリングも楽ちんです。鏡の後ろは収納になっているので、細々したものを収納でき、スッキリとした洗面周りになります。
    • トイレは1・2階に設置され、シャワートイレが内蔵されているので使用後はスッキリ爽快!
    • リビングには床暖房が設置されています!温風も出ないので肌や空気が乾燥しにくく素早く温まります。
    • 前面道路は南側4mで陽当たり良好。小中学校まで近く、お子さまの通学も安心です。!

    住みやすさ

    北浦和の住みやすさの採点分布

           
    ココが住みやすい!
    • 西口は大きな公園ときれいな並木道があり、ファミリー層も多いので週末の公園内は賑やかですが、街自体は静かな環境。東口は埼玉県屈…
    • 大宮のような大きい駅にも近く、都内も上野東京ラインを使えば通勤時間はさほど苦にならない。大学の通学経路でもあるので、学生達が…
    • 転勤してくる家庭が多く、先生も児童も転校生にも慣れており、スムーズに学校に馴染むことができました。 また近くの美術館や、科…
    ※住みやすさに関する評点は、単純平均ではなく当社独自の集計方法を加え算出しています。

    販売概要

    販売戸数 1戸 最多価格帯 -
    販売価格 3,280万円
    土地面積 64.63m2(公簿)
    建物面積 103.68m2
    建物状況 新築 建物現況 空家
    土地状況 - 最適用途 -
    建築条件備考 - 構造・工法
    • 木造
    間取り 3SLDK 建物階 地上3階
    建ぺい率 / 容積率 60% / 200%
    接道
    接道状況:
    一方
    接道詳細:
    • 南 (私道 幅員 4.00m 接面 -)
    駐車場・車庫
    • 1台
    • 駐車場料金:無料
    完成時期
    • 2025年 7月
    引渡し可能時期
    • 相談
    その他諸費用 -
    こだわり条件
    • コンロ三口
    • 床暖房
    • TVモニタ付インターホン
    • 食器洗い乾燥機
    • 全居室収納
    • 3階建て
    • 小学校まで1km以内
    • 駐車場あり
    備考
    • 物件種目:戸建
    • 主たる設備概要:-
    • 上水道:公営
    • 下水道:本下水
    • ガス・オール電化:都市ガス
    • 国土法:不要
    • 法令上の制限その他:準防火地域・新たな防火規制区域
    • 都市計画:市街化区域
    • 最寄り小学校名:道祖土小学校
    • 最寄り小学校までの距離:350m
    • 最寄り中学校名:木崎中学校
    • 最寄り中学校までの距離:880m
    • その他施設名:椎の実保育園
    • その他施設までの距離:390m
    • 近隣のドラッグストアまでの距離:890m
    • 近隣のコンビニまでの距離:620m
    • 備考欄:[物件コード]122701-41596
    関連サイト -

    全体概要

    所在地 埼玉県さいたま市浦和区瀬ヶ崎4丁目
    交通
    • JR京浜東北・根岸線「北浦和」駅まで 徒歩 27分
    • JR京浜東北・根岸線「浦和」駅まで 徒歩 33分
    土地の権利 所有権
    総戸数 -
    私道負担 - 用途地域 第二種中高層住居専用地域
    地目 宅地 施工会社 -
    情報掲載開始日 2025年9月1日 情報更新日 2025年12月5日
    取引条件有効期限 2025年12月15日 次回更新予定日 -

    ローンシミュレーション

    頭金、借入期間、金利から毎月の住宅ローンお支払い額の目安を試算します。ご希望の条件に変更してご利用ください。

    物件価格の初期値は最低値を設定しております。実際にローン契約をする際は、詳細を不動産会社にご確認ください。

    万円
    万円
    %

    ※頭金や金利、借入期間によって支払う金額は変わります。

    ※物件購入時には、物件価格の他に諸費用がかかります。

    =
    月々のお支払い目安
    元金
    万円/月
    金利
    万円/月
    お支払い目安
    万円/月

    お問い合わせ

    ご覧いただいている物件の住宅ローンや実際にかかる諸費用、資金計画などのご相談ができます。

    不動産会社へのお問い合わせ

    (株)ウインズホーム 川口店

    この物件のアピールポイント

    新築戸建全1棟!LDK広々19帖!リビングに床暖房完備!食洗機、節水型シャワートイレ等設備仕様充実!

    この物件の価格

    3,280万円

    • 会社名:センチュリー21ウインズホーム川口店
    • 住所:埼玉県川口市芝中田2丁目33-3
    • 電話:0120-600-475
    • 交通:JR京浜東北・根岸線「蕨」駅まで 徒歩 14分
    • 取引態様:媒介
    • 免許番号:埼玉県知事(9)第13633号
    • 不動産団体名:(公社)全日本不動産協会、(公社)首都圏不動産公正取引協議会
    • 売主:-
    • 売主免許番号:-
    • 関連サイト:-

    お電話でのお問い合わせはこちら(取り扱い不動産会社に直接つながります)

    電話をかける(携帯電話・PHSでも可)

    1電話番号を入力する

    0037-634-16631

    お問い合わせ先

    (株)ウインズホーム 川口店

    2音声案内に従い、以下の番号を入力

    お問い合わせ番号 05114-3191

    不動産会社につながります

    不動産会社のスタッフと
    直接電話で話せます

    店舗スタッフ
    • お客様の電話番号は不動産会社に通知されません。
    • 光IP電話、及びIP電話からはご利用になれません。
    • 定休日や営業時間外にてお電話がつながらない場合は、お問い合わせフォームよりお問い合わせください。
    • 携帯電話からお問合せいただいた方には、ショートメッセージ(SMS)またはLINE通知メッセージによるお問い合わせ内容に関する通知を株式会社LIFULLよりお届けする場合があり、お客様の電話番号は株式会社LIFULLで一定期間保管されます。
    • 株式会社LIFULLの個人情報の取扱い方針に同意のうえ、お電話ください。
    • オーナー様・不動産会社様・現在ご入居中のお客様など、住まい探し以外のご相談はこちらからお問い合わせください。

    他の物件も見てみる

    最近見た物件
    • 外観
    • 間取り

    • 完成後1年を経過している未入居物件が掲載されている場合があります。
    • 販売住戸が複数の物件は、全ての住戸に該当しない項目もあります。各問い合わせ先にご確認ください。
    • 「建築条件付き土地」とは、一定期間内(概ね3ヶ月程度)に特定の建設会社と建築請負契約を結ぶことを 条件にしている宅地のことです。
    • 建物の内容は、土地購入者の自由意思により決定可能で、土地売買契約後、 建築請負会社と購入した土地に建設する建物について協議することになります。
    • 期間内に建築請負契約が成立しなければ売買契約は白紙となり、支払済みの金銭はすべて返却されます。
    • 「建築条件付き土地」の価格には、建物価格は含まれません。
    • 「建築条件付き土地」の「建物プラン例」は、土地購入者の設計プランの一例であり、プランの採用可否は任意です。
    • 「土地(建築条件なし)」の「建物プラン例」に関して、そのプラン例は特定の建築請負会社によるもので、当該建築請負会社以外で建てた場合、同様のものが同価格で建てられるとは限りません。また、建築請負会社を特定するものではありません。
    • 消費税および地方消費税の対象となる場合は税込み価格が表示されています。
    • 物件の写真やイラスト、CGなどは実際と異なる場合があります。
    • 市区町村の合併などにより、地図が表示されない場合があります。ご了承ください。
    • お客様が入力する個人情報を含むお問い合わせデータは、LIFULL HOME'Sを経由して当該物件情報の取扱会社に転送されます。
    • 不動産購入の検討、契約にあたってはお客様ご自身が情報を確認し、各会社より十分な説明を受け判断してください。
    • 本ページの掲載内容は変更される場合があります。あらかじめご了承ください。
    ページトップへ