間市久保稲荷 新築全3棟1号棟

新築仲介一戸建て
所在地 埼玉県入間市久保稲荷1丁目
交通
  • 西武池袋・豊島線「入間市」駅まで 徒歩 24分
  • 西武池袋・豊島線「武蔵藤沢」駅まで バス 12分 バス停「入間扇町屋団地」まで 徒歩 8分
  • 価格 4,298万円
    • 物件情報
    • 地図・周辺情報
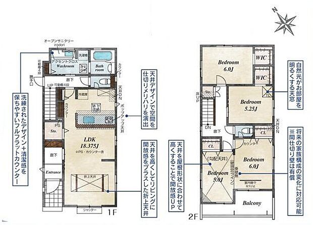
    • 間取り 3LDK
      土地面積 135.54m2
      建物面積 105.04m2
      建物階 地上2階
      完成時期
      • 2025年 11月
    • 外観 並列駐車2台可能!!
    • 外観 リビング広々18帖!!
    • 外観
    • 1号棟 間取図
    • 省エネラベル
    • ゆとりある洗面所!!
    • バスユニットはゆとりの1坪タイプ。仕事や学校、部活動で疲れて帰ってきた家族のリラックスタイムを演出してくれます…お子様と一緒でも余裕の広さです!
    • 1階トイレ冬場でもひやっとしない温水洗浄便座を採用。
    • 玄関
    • 2階洋室11帖 将来の家族構成の変化に対応可能!!
    • 2階洋室11帖 
    • 2階洋室11帖
    • バルコニー
    • 入間市立東町小学校 徒歩11分。 750m
    • 入間市立東町中学校 徒歩12分。 800m
    • いるま幼稚園 徒歩7分。 480m
    • ジャパンミート卸売市場入間店 徒歩 約6分。 480m
    • イオン入間ショッピングセンター 徒歩 約16分。 1160m
    • 富士見公園 657m
    • リビング広々18.375帖
    • キッチンカウンター
    • キッチンカウンター
    • 全体区画図
    • 1階廊下 
    • キッチン横 家事スペースあり

    住みやすさ

    入間市の住みやすさの採点分布

         
    ココが住みやすい!
    • 公園が多く、どこの公園も自然が多く、朝早くからご高齢の方たちがゲートボールをしていたり、 休日には、ご家族やお子様方がスポ…
    • ・緑がとても多く、電車に乗りさえすれば都心にも比較的近い。 ・車があれば色々なジャンルのお店にアクセスできる。
    • ご近所に同じくらいの歳の子が多く、一緒に遊んだりして仲良く出来たり、優しい方がたくさんいたことが良かったです。
    ※住みやすさに関する評点は、単純平均ではなく当社独自の集計方法を加え算出しています。

    販売概要

    販売戸数 1戸 最多価格帯 -
    販売価格 4,298万円
    土地面積 135.54m2
    建物面積 105.04m2
    建物状況 新築 建物現況 空家
    土地状況 - 最適用途 -
    建築条件備考 - 構造・工法
    • 木造
    間取り 3LDK
    間取り内訳:リビングダイニングキッチン 18.3帖(1階)・洋室 11帖(2階)・洋室 6帖(2階)・洋室 5.2帖(2階)
    建物階 地上2階
    建ぺい率 / 容積率 50% / 80%
    接道
    接道状況:
    -
    接道詳細:
    • 南西 (公道 幅員 6.00m 接面 6.00m)
    駐車場・車庫
    • 2台
    • カースペース
      駐車場料金:無料
      駐車場までの距離:0m
    完成時期
    • 2025年 11月
    引渡し可能時期
    • 相談
    その他諸費用 -
    こだわり条件
    • コンロ三口
    • ウォークインクローゼット
    • TVモニタ付インターホン
    • カウンターキッチン
    • 浴室乾燥機
    • 制震構造
    • 食器洗い乾燥機
    • 設計住宅性能評価付き
    • フラット35・S適合証明書
    • 長期優良住宅
    • 建設住宅性能評価書(新築時)
    • 駐車場2台以上
    • 低層住宅地
    • 小学校まで1km以内
    備考
    • 物件種目:戸建
    • 主たる設備概要:-
    • 上水道:公営
    • ガス・オール電化:都市ガス
    • セットバック:無
    • 国土法:不要
    • 法令上の制限その他:/景観法/航空法
    • 都市計画:市街化区域
    • 敷地全体面積:135.54m2
    • 主要採光面:南西
    • 最寄り小学校名:入間市立東町小学校
    • 最寄り小学校までの距離:750m
    • 最寄り中学校名:入間市立東町中学校
    • 最寄り中学校までの距離:800m
    • その他施設名:いるま幼稚園
    • その他施設までの距離:480m
    • 近隣の公園までの距離:657m
    • 近隣のスーパーマーケットまでの距離:480m
    • 備考欄:ii136-1 現地見学のご予約はお電話またはインターネットで受け付けています。お家を建てる土地探しを全力でサポートしますので、ぜひお気軽にお問い合わせください!
    関連サイト -

    全体概要

    所在地 埼玉県入間市久保稲荷1丁目
    交通
    • 西武池袋・豊島線「入間市」駅まで 徒歩 24分
    • 西武池袋・豊島線「武蔵藤沢」駅まで バス 12分 バス停「入間扇町屋団地」まで 徒歩 8分
    土地の権利 所有権
    総戸数 3戸
    私道負担 - 用途地域 第一種低層住居専用地域
    地目 宅地 施工会社 -
    情報掲載開始日 2025年9月13日 情報更新日 2025年12月5日
    取引条件有効期限 2025年12月12日 次回更新予定日 -

    ローンシミュレーション

    頭金、借入期間、金利から毎月の住宅ローンお支払い額の目安を試算します。ご希望の条件に変更してご利用ください。

    物件価格の初期値は最低値を設定しております。実際にローン契約をする際は、詳細を不動産会社にご確認ください。

    万円
    万円
    %

    ※頭金や金利、借入期間によって支払う金額は変わります。

    ※物件購入時には、物件価格の他に諸費用がかかります。

    =
    月々のお支払い目安
    元金
    万円/月
    金利
    万円/月
    お支払い目安
    万円/月

    お問い合わせ

    ご覧いただいている物件の住宅ローンや実際にかかる諸費用、資金計画などのご相談ができます。

    不動産会社へのお問い合わせ

    入間店

    この物件のアピールポイント

    開放的な南西向き 毎日の車通勤でも安心、カースペース並列2台付です。生活利便性の高い環境です。ゆとりある室内空間です。

    この物件の価格

    4,298万円

    • 会社名:狭山不動産株式会社 入間店
    • 住所:埼玉県入間市豊岡1丁目4−30 キャッスルマンション入間駅前1F
    • 電話:0120-944-230
    • 交通:西武池袋・豊島線「入間市」駅まで 徒歩 4分
    • 取引態様:媒介
    • 免許番号:埼玉県知事免許(12)第008534号
    • 不動産団体名:(公社)首都圏不動産公正取引協議会、(公社)埼玉県宅地建物取引業協会、(公財)東日本不動産流通機構
    • 保証協会:(公社)全国宅地建物取引業保証協会
    • 売主:-
    • 売主免許番号:-
    • 関連サイト:-

    お電話でのお問い合わせはこちら(取り扱い不動産会社に直接つながります)

    電話をかける(携帯電話・PHSでも可)

    1電話番号を入力する

    0037-634-13706

    お問い合わせ先

    入間店

    2音声案内に従い、以下の番号を入力

    お問い合わせ番号 23765-3199

    不動産会社につながります

    不動産会社のスタッフと
    直接電話で話せます

    店舗スタッフ
    • お客様の電話番号は不動産会社に通知されません。
    • 光IP電話、及びIP電話からはご利用になれません。
    • 定休日や営業時間外にてお電話がつながらない場合は、お問い合わせフォームよりお問い合わせください。
    • 携帯電話からお問合せいただいた方には、ショートメッセージ(SMS)またはLINE通知メッセージによるお問い合わせ内容に関する通知を株式会社LIFULLよりお届けする場合があり、お客様の電話番号は株式会社LIFULLで一定期間保管されます。
    • 株式会社LIFULLの個人情報の取扱い方針に同意のうえ、お電話ください。
    • オーナー様・不動産会社様・現在ご入居中のお客様など、住まい探し以外のご相談はこちらからお問い合わせください。

    他の物件も見てみる

    最近見た物件
    • 外観
    • 間取り

    • 完成後1年を経過している未入居物件が掲載されている場合があります。
    • 販売住戸が複数の物件は、全ての住戸に該当しない項目もあります。各問い合わせ先にご確認ください。
    • 「建築条件付き土地」とは、一定期間内(概ね3ヶ月程度)に特定の建設会社と建築請負契約を結ぶことを 条件にしている宅地のことです。
    • 建物の内容は、土地購入者の自由意思により決定可能で、土地売買契約後、 建築請負会社と購入した土地に建設する建物について協議することになります。
    • 期間内に建築請負契約が成立しなければ売買契約は白紙となり、支払済みの金銭はすべて返却されます。
    • 「建築条件付き土地」の価格には、建物価格は含まれません。
    • 「建築条件付き土地」の「建物プラン例」は、土地購入者の設計プランの一例であり、プランの採用可否は任意です。
    • 「土地(建築条件なし)」の「建物プラン例」に関して、そのプラン例は特定の建築請負会社によるもので、当該建築請負会社以外で建てた場合、同様のものが同価格で建てられるとは限りません。また、建築請負会社を特定するものではありません。
    • 消費税および地方消費税の対象となる場合は税込み価格が表示されています。
    • 物件の写真やイラスト、CGなどは実際と異なる場合があります。
    • 市区町村の合併などにより、地図が表示されない場合があります。ご了承ください。
    • お客様が入力する個人情報を含むお問い合わせデータは、LIFULL HOME'Sを経由して当該物件情報の取扱会社に転送されます。
    • 不動産購入の検討、契約にあたってはお客様ご自身が情報を確認し、各会社より十分な説明を受け判断してください。
    • 本ページの掲載内容は変更される場合があります。あらかじめご了承ください。
    ページトップへ