| 所在地 | 茨城県かすみがうら市下稲吉3249-2 |
|---|---|
| 交通 | |
| 価格 | 3,450万円 月々のお支払い目安
|

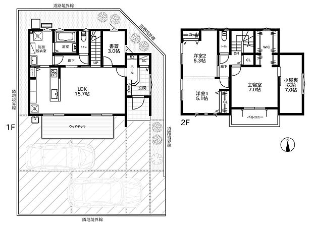
| 間取り | 3LDK |
|---|---|
| 土地面積 | 177.90m2(公簿) |
| 建物面積 | 98.54m2 |
| 建物階 | - |
| 完成時期 |
|































| 販売戸数 | 1戸 | 最多価格帯 | - |
|---|---|---|---|
| 販売価格 |
3,450万円 月々のお支払い目安
|
||
| 土地面積 | 177.90m2(公簿) | ||
| 建物面積 | 98.54m2 | ||
| 建物状況 | 新築 | 建物現況 | - |
| 土地状況 | - | 最適用途 | - |
| 建築条件備考 | - | 構造・工法 |
|
| 間取り | 3LDK | 建物階 | - |
| 建ぺい率 / 容積率 | 60% / 200% | ||
| 接道 |
|
||
| 駐車場・車庫 | - | 完成時期 |
|
| 引渡し可能時期 |
|
||
| その他諸費用 | - | ||
| こだわり条件 |
|
||
| 備考 |
|
||
| 関連サイト | - | ||
※「省エネ性能ラベル」は特定の住戸の性能を示し、全ての住戸の性能を示していない場合があります。
| 所在地 | 茨城県かすみがうら市下稲吉3249-2 | ||
|---|---|---|---|
| 交通 |
|
||
| 土地の権利 | 所有権 | ||
| 総戸数 | - | ||
| 私道負担 | - | 用途地域 | 第一種住居地域 |
| 地目 | 宅地 | 施工会社 | - |
| 情報掲載開始日 | 2025年3月27日 | 情報更新日 | 2025年12月2日 |
| 取引条件有効期限 | 2025年12月16日 | 次回更新予定日 | - |
頭金、借入期間、金利から毎月の住宅ローンお支払い額の目安を試算します。ご希望の条件に変更してご利用ください。
物件価格の初期値は最低値を設定しております。実際にローン契約をする際は、詳細を不動産会社にご確認ください。
この物件のアピールポイント
かすみがうら市下稲吉の場所でも人気のある場所にて新築住宅が完成しました。南面ウッドデッキも付。室内にある家具、カーテン、リビングエアコンはそのままのお引渡しになります。
1電話番号を入力する
0037-634-05990お問い合わせ先
株式会社クラフト 土浦店2音声案内に従い、以下の番号を入力
お問い合わせ番号 08297-3190不動産会社のスタッフと
直接電話で話せます