久世郡久御山町佐山双置 新築一戸建て 24−1期 1号棟

新築仲介一戸建て
所在地 京都府久世郡久御山町佐山双置
交通
  • 近鉄京都線「大久保」駅まで バス 7分 バス停「佐山」まで 徒歩 2分
  • 近鉄京都線「久津川」駅まで 3.1km
  • 価格 2,980万円
    • 物件情報
    • 地図・周辺情報
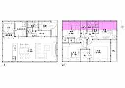
    • 間取り 3LDK
      土地面積 111.31m2(公簿)
      建物面積 93.98m2
      建物階 地上2階
      完成時期
      • 2025年 11月
    • 外壁にサイディング材を使用したおしゃれな外観。色柄バリエーションが豊富なため、住まいの表情を豊かに表現してくれます。また、雨で汚れを落としてくれます!
    • 現地写真更新!現地ご案内とともに住宅ローンのご相談も承ります!実際の道路幅や雰囲気は、ぜひ一緒に現地で確認いたしましょう
    • 全居室6帖以上+収納付きのゆとりある間取りです
    • 現地写真更新!現地の説明はもちろん、モデルハウスご見学も可能!同社施工物件をご見学していただきますので、実際に使用される設備やお家の雰囲気などをご確認ください
    • ハンズフリー機能を備えたカラーモニターインターホンを採用!お料理中などで手が塞がっていても便利に応答可能です!夜間の映像確認機能もついていて、安心ですね!
    • 使い勝手のよい三つ口コンロ!火やガスを使わないIHクッキングヒーターなので、安全性が高くお年寄りや子供にも安心!
    • ワイドシンクなので家族が増えても洗い物楽々です
    • お手入れ簡単でいつも清潔なレンジフード
    • 便利な浴室乾燥機を完備しています。雨の日でも洗濯物を乾かせるので、天候を気にせずに快適な生活を送れます!
    • 使いやすい給湯器リモコンで、温度調整も簡単に行えます。お風呂やキッチンで快適な温度をすぐに設定できるので、毎日の生活がより便利になります!
    • 収納たっぷりのキャビネットは、使いやすく清潔感のある洗面室に!
    • 1階、2階どちらにも節水省エネ仕様のシャワートイレを採用しています。
    • 日当たりの良いバルコニーは、お洗濯が多いときも安心!たくさん干してもカラっと乾きそうです!
    • 子ども部屋や寝室に用途多彩な明るい洋室
    • 季節の物などたくさん収納しておける便利なスペースです!
    • 玄関は防犯性の優れたダブルロックドアです!
    • 大久保駅(近鉄 京都線) 徒歩34分。 2680m
    • 久御山町立佐山小学校 徒歩8分。 600m
    • 久御山町立久御山中学校 徒歩32分。 2510m
    • スーパーイワキ久御山店 徒歩10分。 760m
    • セブンイレブン久御山佐山店 徒歩5分。 350m
    • 火を使わないIHコンロは、安全でお掃除も楽々です!奥様の強い味方ですね!
    • ゆったり入れる1坪サイズのゆとり空間。バリアフリー設計に手すり付きなので、お子様が小さい時も、老後も安心できる浴室です。収納棚も取り外しができ、お手入れ楽々
    • LDKには大きな窓からたくさんの光が入り、明るく、開放的な空間を演出してくれます。お友達が遊びに来た時も自慢のリビングになりますね!
    • シンプルで美しいデザインのリビングは、お好みのインテリアにコーディネイトしやすく、家族がやすらぐ癒しの空間が作れますね。
    • こちらのお部屋はバルコニーに面しており、日当たり、通風ともに良好です!お布団などもサッと干せて便利ですね
    • 充実した収納スペースなので、お子様が大きくなって、荷物が増えてもたっぷり収納しておけますね
    • 全2区画、好評分譲中! 1号棟!

    住みやすさ

    大久保の住みやすさの採点分布

       
    ココが住みやすい!
    • 2WAYで近鉄・JRが利用できる。駅前には大型店舗のマクドナルドがあり、喫茶店代わりに利用できる。また、駅前の平和堂には百均…
    • 急行が停まる駅で、駅の中にスーパー・付近に商店街があるため、利便性が高く満足です。 飲食店や居酒屋がたくさんあるので、仕事…
    • JR、近鉄の2路線が利用可能で、近鉄については急行の停車駅であった。駅の近くには小さな商店街もあり、店の人が顔見知りで、気軽…
    ※住みやすさに関する評点は、単純平均ではなく当社独自の集計方法を加え算出しています。

    販売概要

    販売戸数 1戸 最多価格帯 -
    販売価格 2,980万円
    土地面積 111.31m2(公簿)
    建物面積 93.98m2
    建物状況 新築 建物現況 空家
    土地状況 - 最適用途 -
    建築条件備考 - 構造・工法
    • 木造
    間取り 3LDK 建物階 地上2階
    建ぺい率 / 容積率 60% / 200%
    接道
    接道状況:
    一方
    接道詳細:
    • 北東 ( 幅員 2.90m 接面 -)
    駐車場・車庫
    • 2台
    • カースペース
      駐車場料金:無料
      駐車場までの距離:0m
    完成時期
    • 2025年 11月
    引渡し可能時期
    • 即時
    その他諸費用 -
    こだわり条件
    • IHコンロ
    • コンロ三口
    • 床下収納
    • ウォークインクローゼット
    • TVモニタ付インターホン
    • オール電化
    • カウンターキッチン
    • 全居室収納
    • シューズインクローゼット
    • オートバス
    • 設計住宅性能評価付き
    • 建設住宅性能評価書(新築時)
    • 即入居可
    • 駐車場2台以上
    • 小学校まで1km以内
    備考
    • 物件種目:戸建
    • 主たる設備概要:-
    • 上水道:公営
    • ガス・オール電化:オール電化
    • セットバック:有
    • セットバック面積:9.49m2
    • 国土法:不要
    • 都市計画:市街化区域
    • 敷地全体面積:111.31m2
    • 主要採光面:南
    • 最寄り小学校名:久御山町立佐山小学校
    • 最寄り小学校までの距離:600m
    • 最寄り中学校名:久御山町立久御山中学校
    • 最寄り中学校までの距離:2,510m
    • その他施設名:大久保駅(近鉄 京都線)
    • その他施設までの距離:2,680m
    • 近隣のスーパーマーケットまでの距離:760m
    • 近隣のドラッグストアまでの距離:320m
    • 近隣のコンビニまでの距離:350m
    • 近隣の銀行までの距離:560m
    • 備考欄:300134768639 ◇立地・近鉄京都線「大久保駅」バス7分、バス停「佐山」歩2分・佐山小学校歩7分(550m)・久御山中学校歩33分(2600m)◇特徴・国が定める住宅性能評価で耐震等級3級を取得!また、設計性能評価+建設性能評価をW取得しております・駐車2台/LDK18帖以上/断熱等級6◆お金の扱い方のプロ、ファイナンシャルプランナーが資金計画をサポート!◆買い替えなどにも対応できる売却専門チームあり!
    関連サイト -

    全体概要

    所在地 京都府久世郡久御山町佐山双置
    交通
    • 近鉄京都線「大久保」駅まで バス 7分 バス停「佐山」まで 徒歩 2分
    • 近鉄京都線「久津川」駅まで 3.1km
    土地の権利 所有権
    総戸数 1戸
    私道負担 - 用途地域 第一種住居地域
    地目 宅地 施工会社 -
    情報掲載開始日 2025年6月16日 情報更新日 2026年5月21日
    取引条件有効期限 2026年5月28日 次回更新予定日 -

    ローンシミュレーション

    頭金、借入期間、金利から毎月の住宅ローンお支払い額の目安を試算します。ご希望の条件に変更してご利用ください。

    物件価格の初期値は最低値を設定しております。実際にローン契約をする際は、詳細を不動産会社にご確認ください。

    万円
    万円
    %

    ※頭金や金利、借入期間によって支払う金額は変わります。

    ※物件購入時には、物件価格の他に諸費用がかかります。

    =
    月々のお支払い目安
    元金
    万円/月
    金利
    万円/月
    お支払い目安
    万円/月

    お問い合わせ

    ご覧いただいている物件の住宅ローンや実際にかかる諸費用、資金計画などのご相談ができます。

    不動産会社へのお問い合わせ

    センチュリー21 株式会社フロンティアホーム

    この物件のアピールポイント

    ◆今週末土曜日・日曜日のご案内可能◆頭金0円で夢のマイホーム◆当日はお電話でのご予約がスムーズです◆設計性能評価+建設性能評価をW取得!

    この物件の価格

    2,980万円

    • 会社名:センチュリー21 株式会社フロンティアホーム
    • 住所:京都府京都市伏見区横大路下三栖辻堂町13
    • 電話:0120-927-498
    • 交通:京阪本線「中書島」駅まで 徒歩 17分
    • 取引態様:媒介
    • 免許番号:国土交通大臣免許(1)第10103号
    • 不動産団体名:(公社)近畿地区不動産公正取引協議会、(公社)京都府宅地建物取引業協会、(公社)近畿圏不動産流通機構
    • 売主:-
    • 売主免許番号:-
    • 関連サイト:-

    お電話でのお問い合わせはこちら(取り扱い不動産会社に直接つながります)

    電話をかける(携帯電話・PHSでも可)

    1電話番号を入力する

    0037-634-46175

    お問い合わせ先

    センチュリー21 株式会社フロンティアホーム

    2音声案内に従い、以下の番号を入力

    お問い合わせ番号 62652-3195

    不動産会社につながります

    不動産会社のスタッフと
    直接電話で話せます

    店舗スタッフ
    • お客様の電話番号は不動産会社に通知されません。
    • 光IP電話、及びIP電話からはご利用になれません。
    • 定休日や営業時間外にてお電話がつながらない場合は、お問い合わせフォームよりお問い合わせください。
    • 携帯電話からお問合せいただいた方には、ショートメッセージ(SMS)またはLINE通知メッセージによるお問い合わせ内容に関する通知を株式会社LIFULLよりお届けする場合があり、お客様の電話番号は株式会社LIFULLで一定期間保管されます。
    • 株式会社LIFULLの個人情報の取扱い方針に同意のうえ、お電話ください。
    • オーナー様・不動産会社様・現在ご入居中のお客様など、住まい探し以外のご相談はこちらからお問い合わせください。
    • 完成後1年を経過している未入居物件が掲載されている場合があります。
    • 販売住戸が複数の物件は、全ての住戸に該当しない項目もあります。各問い合わせ先にご確認ください。
    • 「建築条件付き土地」とは、一定期間内(概ね3ヶ月程度)に特定の建設会社と建築請負契約を結ぶことを 条件にしている宅地のことです。
    • 建物の内容は、土地購入者の自由意思により決定可能で、土地売買契約後、 建築請負会社と購入した土地に建設する建物について協議することになります。
    • 期間内に建築請負契約が成立しなければ売買契約は白紙となり、支払済みの金銭はすべて返却されます。
    • 「建築条件付き土地」の価格には、建物価格は含まれません。
    • 「建築条件付き土地」の「建物プラン例」は、土地購入者の設計プランの一例であり、プランの採用可否は任意です。
    • 「土地(建築条件なし)」の「建物プラン例」に関して、そのプラン例は特定の建築請負会社によるもので、当該建築請負会社以外で建てた場合、同様のものが同価格で建てられるとは限りません。また、建築請負会社を特定するものではありません。
    • 消費税および地方消費税の対象となる場合は税込み価格が表示されています。
    • 物件の写真やイラスト、CGなどは実際と異なる場合があります。
    • 市区町村の合併などにより、地図が表示されない場合があります。ご了承ください。
    • お客様が入力する個人情報を含むお問い合わせデータは、LIFULL HOME'Sを経由して当該物件情報の取扱会社に転送されます。
    • 不動産購入の検討、契約にあたってはお客様ご自身が情報を確認し、各会社より十分な説明を受け判断してください。
    • 本ページの掲載内容は変更される場合があります。あらかじめご了承ください。
    ページトップへ