E's garden 日進市竹の山五丁目

新築分譲一戸建て
所在地 愛知県日進市竹の山五丁目1112-1他
交通
  • 名鉄バス「岩崎御岳口」停 徒歩9分
  • 名鉄豊田線「日進」駅 徒歩46分 自転車約15分
  • 価格 4,980万円(税込)
    資料請求する無料 見学予約する無料

    ※LIFULL HOME'Sの資料請求ページに移動します

    お気に入りに追加
    • 物件情報
    • 地図・周辺情報
    • 間取り 4LDK・5LDK
      土地面積 160.00m2
      建物面積 140.52m2~143.60m2
      建物階 A・D棟:木造瓦及びガルバリウム鋼板葺2階建、B棟:木造瓦葺2階建
      完成時期
      • 2025年9月
    • 【【A棟 外観】】外壁が周囲の街並みに映えるお洒落な仕上がり!周囲には高い建物のないエリアです。開放感をご体感いただけます。
    • 【【B棟 外観】】流行に左右されず、将来にわたって価値が継続する凛とした佇まい。おしゃれな雰囲気や自然の潤い、親しみやすさといった暮らしを豊かにしてくれる住空間です。
    • 【【D棟 外観】】周辺の街並みと調和する、お洒落な外観デザイン。アースカラーの優しい色合いが青空に映えます。全棟長期優良住宅認定物件です。
    • 名鉄バス「岩崎御岳口」停まで徒歩約9分(約650m)。公共交通機関が利用しやすい立地。旬楽膳まで徒歩約14分、自転車約5分(約1090m)。自転車でもアクセスしやすく、日常の買い出しに便利です。
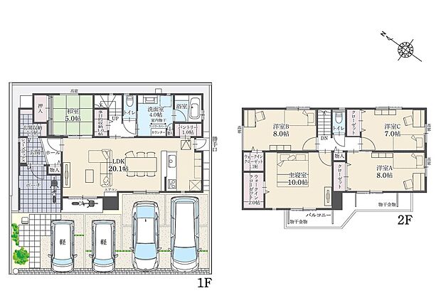
    • 【4LDK】4LDK+畳コーナー+多目的収納+ウォークインクローゼット+玄関収納+パントリー+ランドリールーム
駐車3台分

お洒落なアイランドキッチンを採用した間取り。開放感があります。
    • 【5LDK】5LDK+多目的収納+Wウォークインクローゼット+玄関収納+パントリー
駐車3台分
※建物面積にバルコニー面積の一部(0.53m2)含む

回遊性のあるキッチンで家事動線良好です。お子さまがお手伝いをする際もゆとりがあります。
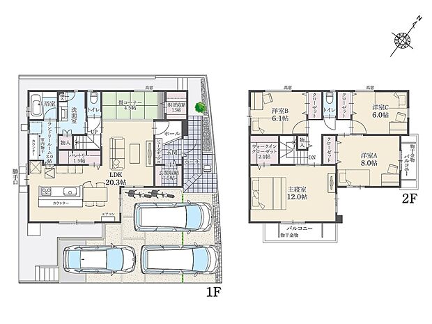
    • 【5LDK】5LDK+多目的収納+Wウォークインクローゼット+玄関収納+パントリー+ランドリースペース
駐車3台分
※建物面積にポーチ面積の一部(3.19m2)含む

広々とした4.0帖の洗面室にはランドリースペースを備えており、洗う・干す・乾かす・畳むが一箇所で完結できます。
    • 【【宅配ボックス】】外出時も荷物の受け取りが可能な宅配ボックスを標準設置。毎日の暮らしにゆとりをもたらすプラスワン設備です(物件により仕様は異なります)。
    • 【【ポケットkey】】専用アプリをインストールすれば、スマートフォンが専用キーに早変わり。スマートフォンを取り出さずにカギを施錠解錠したり、アプリ操作で施錠解錠したりできます。
    • 【【人感センサーLEDポーチ灯】】暗くなると自動点灯でお出迎えしてくれます。深夜は人が近づいた時だけ点灯し、防犯対策にも役立ちます。
    • 【【浴室暖房乾燥機】】花粉・梅雨時にはありがたい浴室暖房乾燥機。浴室に標準装備で夏の暑い日・冬の寒い日に重宝します。1台で暖房・乾燥・涼風・換気の4役をこなします。
    • 【【ホスクリーン】】ポールがワンタッチで着脱可能なスポット型物干し。非使用時はフックに収納でお部屋スッキリ。急な雨の時にもパッと室内に取り込めて便利です。
    • 【【高性能エアコン】】熱交換器加熱除菌でお部屋もエアコン内部も清潔。AIでオーダーメイドの快適を実現。
    • 【【ウォークインクローゼット】】主寝室の収納には、ウォークインクローゼットを標準としています(形状は各邸異なります)。皺を避けたい衣類や、重ね置きをしたくない物、嵩張る物などの収納に便利です。
    • 【【パントリー】】パントリーは全邸標準仕様(形状は各邸異なります)。箱買いした食品のストックや調理家電などを収納でき、いつもキッチンをスッキリとした空間に保てます。
    • 【【玄関収納】】玄関収納は全邸標準仕様(形状は各邸異なります)。三輪車やゴルフバッグなど屋外で使用するものを室内に持ち込むことなくすっきり収納できます。
    • 【【A棟 LDK】】キッチン前にカウンターがあり、お子様の学習スペースや在宅ワークスペースにおすすめ。キッチン背面からランドリールームへと繋がり、スムーズな家事動線です。
    • 【【A棟 キッチン】】火を使わないので安全&お手入れが楽なIHクッキングヒーターを搭載。カウンタ―側面にコンセントがあり、調理家電などの使用時に活用できます。
    • 【【B棟 LDK】】リビング・ダイニングを区分けして家具を配置できるレイアウト。食事時間と団らん時間のメリハリが付き、ご家族と会話する時間を大切にすることができます。
    • 【【B棟 主寝室】】洋室の中で一番広い11.0帖の主寝室で快適な睡眠をご体感ください。ウォークインクローゼットを設けており、住空間を広く有効活用できます。
    • 【【D棟 キッチン】】お手入れ簡単、収納力、使いやすさにこだわったシステムキッチンです。キッチンでの作業が楽しくなる嬉しい設備を標準装備しています。
    • 【【D棟 洗面室】】毎日の洗濯が楽になる便利なカウンター付きランドリースペース。洗う・干す・乾かす・畳むが1つの空間で行え、家事動線がラクラクです♪
    • 名鉄豊田線「日進」駅
    • 日進ベタニヤ幼稚園まで1370m
    • 北部保育園
    • 北小学校
    • 日進中学校
    • ドラッグスギヤマ 竹の山店
    • 設計・施工段階において住宅性能評価書を取得。安心して長く住み続けていただくために自社検査だけでなく第三者による4回の検査体制により、性能と品質を確保しています。
    • 国が定めた長期優良住宅に対応。長期にわたり良好な状態で住まうことができる優良な住宅です。また、耐震等級は最高ランクの等級3を取得。安心の耐震構造設計です。税制面での優遇も受けられます。
    • 案内図
    • 前面道路は幅員約16.0mとゆとりがあります。緑豊かな住宅街、自然を身近に感じながらのびのび子育てが叶います。様々な間取りのご用意がありますので、是非現地にてご体感ください。
    • ご入居後も安心の暮らしをサポート。メンテナンスや点検なども、スタッフが責任を持って対応。アフター受付は24時間365日対応しております。ご入居後のリフォーム相談も承っています。

    住みやすさ

    日進市の住みやすさの採点分布

             
    ココが住みやすい!
    • 赤池プライムツリーがあり、映画や飲食店、ユニクロ、GU、無印など生活に必要なものを簡単に揃えることができ非常に便利
    • ショッピングモールも近くにいくつかあり、休日の時間潰しに困らないほか、スーパーも充実しているため日々の買い物も楽。
    • 子供がいるファミリー層が多く住んでいる地域で、夜はとても静か。治安がとても安定しているように思う。また、公園や塾などもたくさ…
    ※住みやすさに関する評点は、単純平均ではなく当社独自の集計方法を加え算出しています。
    お気に入りに追加 この物件の資料請求無料 見学予約する無料

    ※LIFULL HOME'Sの資料請求ページに移動します

    販売スケジュール

    販売中

    イベント情報

    初夏の生活応援キャンペーン

    イベント参加特典

    ご成約特典

    2026年4月22日(水)から2026年6月21日(日)までにご契約いただき、6月30日(火)までにお引き渡し可能な方 ■ご成約特典:A.カーテン、B.LED照明、C.主寝室エアコンのうち3点全てプレゼント

    イベント概要
    開催日時 2026年04月22日~2026年06月21日
    申込期間 2026年04月22日~2026年06月21日
    開催場所 愛知県日進市竹の山五丁目1112-1他
    交通 名鉄バス「岩崎御岳口」停 徒歩約9分
    名鉄豊田線「日進」駅 自転車約15分

    ◆初夏の生活応援キャンペーン◆新生活を迎えるお客様に感謝を込めて、エサキホームからのプレゼント■期間:2026年4月22日(水)~2026年6月21日(日)■対象:2026年4月22日(水)から2026年6月21日(日)までにご契約いただき、6月30日(火)までにお引き渡し可能な方に最大3つのご成約プレゼント※ご成約物件により点数は異なります ■ご成約特典:A.カーテン、B.LED照明、C.主寝室エアコンのうち3点全てプレゼント

    見学予約する 無料

    ※LIFULL HOME'Sの資料請求ページに移動します

    備考:※当社指定品に限ります。詳しくは係員までお尋ねください。 商品は都合により予告なく変更になる場合がございます。予めご了承ください。

    販売概要

    販売戸数 3戸 最多価格帯 -
    販売価格 4,980万円(税込)
    土地面積 160.00m2(48.40坪)
    建物面積 140.52m2(42.50坪)~143.60m2(43.43坪)
    建物状況 - 建物現況 分譲中
    土地状況 - 最適用途 -
    建築条件備考 - 構造・工法 -
    間取り 4LDK・5LDK 建物階 A・D棟:木造瓦及びガルバリウム鋼板葺2階建、B棟:木造瓦葺2階建
    建ぺい率 / 容積率 建ぺい率60% 容積率200%
    接道
    東側約16.0m公道
    駐車場・車庫
    • 3台
    完成時期
    • 2025年9月
    引渡し可能時期
    • 即引渡可
    その他諸費用 -
    こだわり条件
    • 瑕疵担保付き
    • 仲介手数料不要
    • 見学可能
    • オール電化
    • 浴室乾燥機
    • 浴室暖房
    • IHコンロ
    • カウンターキッチン
    • 食器洗い乾燥機
    • 床下収納
    • ウォークインクローゼット
    • シューズクローク
    • パントリー
    • バリアフリー
    • テラス
    • 和室
    • TVモニタ付インターホン
    • 長期優良住宅
    • 設計住宅性能評価付き
    • 建設住宅性能評価書(新築時)
    • 即入居可
    • オンライン相談可
    • 駐車場あり
    備考
    • 物件種目:戸建
    • 主たる設備概要:公営上下水道、中部電力(オール電化)
    • 建築確認番号:完成済みのため省略
    • 売主:株式会社エサキホーム
    • 都市計画:市街化区域
    • 備考欄:・その他制限事項:宅地造成工事規制区域、高さ最高限度有、敷地面積最低限度有、日影制限有、壁面後退有
      ・諸経費が別途必要となります。詳細については係員までお問合せ下さい。
      ・掲載の間取り図・区画図は計画段階のものを基に描き起こしたもので、実際とは異なる場合がございます。
      ・所要時間は地図上の概測距離を80m=徒歩1分、250m=自転車1分、車は時速40kmで計算したものです。
      ・駐車台数は、区画図または各間取り図に表示の自動車サイズを想定しております。車種によっては駐車台数が異なる場合があります。
      ・内観写真内の家具はモデル用又はCG加工によるものであり、実際の物件には付属していません。
    関連サイト -

    省エネ性能

    この物件の省エネ性能がわかる「省エネ性能ラベル」です。省エネ性能ラベルは2024年4月以降に建築確認申請した物件などで表示しています。

    ※「省エネ性能ラベル」は特定の住戸の性能を示し、全ての住戸の性能を示していない場合があります。

    省エネ性能ラベル
    エネルギー消費性能
    (削減率20%達成)〜
    (削減率30%達成)
    エネルギー消費性能とは
    星マークの数が多いほどエネルギー消費性能が高いことを示しています。再エネ設備のない住宅は★0~★4の5段階評価、再エネ設備がある住宅は★0~★6の7段階評価となります。
    断熱性能
    5段階 / 7段階
    断熱性能とは
    数値が高いほど断熱性能が高いことを示しています。「熱の逃げやすさ」と「日射熱の入りやすさ」の2つの点で7段階で評価しています。
    目安光熱費
    - /年
    目安光熱費とは
    一年間にかかる光熱費の目安額です。住宅の省エネ性能と全国一律の燃料等の単価を用いて、一定の条件下で自動算出したもので、実際にかかる光熱費とは異なります。

    全体概要

    所在地 愛知県日進市竹の山五丁目1112-1他
    交通
    • 名鉄バス「岩崎御岳口」停 徒歩9分
    • 名鉄豊田線「日進」駅 徒歩46分 自転車約15分
    • 愛知高速東部丘陵線「長久手古戦場」駅 車で約3.3km
    土地の権利 所有権
    総戸数 8戸
    私道負担 - 用途地域 第一種住居地域
    地目 宅地 施工会社 株式会社エサキホーム
    情報掲載開始日 2025年5月26日 情報更新日 2026年5月12日
    取引条件有効期限 2026年6月28日 次回更新予定日 2026年5月26日

    ローンシミュレーション

    頭金、借入期間、金利から毎月の住宅ローンお支払い額の目安を試算します。ご希望の条件に変更してご利用ください。

    物件価格の初期値は最低値を設定しております。実際にローン契約をする際は、詳細を不動産会社にご確認ください。

    万円
    万円
    %

    ※頭金や金利、借入期間によって支払う金額は変わります。

    ※物件購入時には、物件価格の他に諸費用がかかります。

    =
    月々のお支払い目安
    元金
    万円/月
    金利
    万円/月
    お支払い目安
    万円/月

    お問い合わせ

    ご覧いただいている物件の住宅ローンや実際にかかる諸費用、資金計画などのご相談ができます。

    不動産会社へのお問い合わせ

    株式会社エサキホーム 名古屋南支店

    この物件のアピールポイント

    【子育てグリーン住宅支援事業:80万円】 耐震等級3×長期優良住宅/前面道路幅員約16.0m/土地面積48坪以上 ■充実した周辺環境 ・名鉄バス「岩崎御岳口」停・・・徒歩約9分(約650m) ・北小学校・・・徒歩約12分(約920m) ・旬楽膳・・・徒歩約14分、自転車約5分(約1090m) ■~ゆとりの広さ&豊富な収納&充実の設備~ ・LDKは広さ20帖以上!ゆとりある空間でご家族団らんのひとときを過ごせます。 ・料理中も会話が弾む、対面式キッチンを採用しています。

    • 会社名:株式会社エサキホーム 名古屋南支店
    • 住所:愛知県名古屋市天白区大根町46番地
    • 電話:052-800-0802
    • 取引態様:売主/株式会社エサキホーム
    • 免許番号:国土交通大臣 (4) 第 7260 号
    • 不動産団体名:東海不動産公正取引協議会 (公社)愛知県宅地建物取引業協会
    • 売主:株式会社エサキホーム
    • 売主免許番号:-
    • 関連サイト:-
    資料請求する無料 見学予約する無料

    ※LIFULL HOME'Sの資料請求ページに移動します

    他の物件も見てみる

    最近見た物件
    • 外観
    • 間取り

    • 完成後1年を経過している未入居物件が掲載されている場合があります。
    • 販売住戸が複数の物件は、全ての住戸に該当しない項目もあります。各問い合わせ先にご確認ください。
    • 「建築条件付き土地」とは、一定期間内(概ね3ヶ月程度)に特定の建設会社と建築請負契約を結ぶことを 条件にしている宅地のことです。
    • 建物の内容は、土地購入者の自由意思により決定可能で、土地売買契約後、 建築請負会社と購入した土地に建設する建物について協議することになります。
    • 期間内に建築請負契約が成立しなければ売買契約は白紙となり、支払済みの金銭はすべて返却されます。
    • 「建築条件付き土地」の価格には、建物価格は含まれません。
    • 「建築条件付き土地」の「建物プラン例」は、土地購入者の設計プランの一例であり、プランの採用可否は任意です。
    • 「土地(建築条件なし)」の「建物プラン例」に関して、そのプラン例は特定の建築請負会社によるもので、当該建築請負会社以外で建てた場合、同様のものが同価格で建てられるとは限りません。また、建築請負会社を特定するものではありません。
    • 消費税および地方消費税の対象となる場合は税込み価格が表示されています。
    • 物件の写真やイラスト、CGなどは実際と異なる場合があります。
    • 市区町村の合併などにより、地図が表示されない場合があります。ご了承ください。
    • お客様が入力する個人情報を含むお問い合わせデータは、LIFULL HOME'Sを経由して当該物件情報の取扱会社に転送されます。
    • 不動産購入の検討、契約にあたってはお客様ご自身が情報を確認し、各会社より十分な説明を受け判断してください。
    • 本ページの掲載内容は変更される場合があります。あらかじめご了承ください。
    ページトップへ