| 所在地 | 滋賀県湖南市菩提寺字広野330-162他 |
|---|---|
| 交通 | |
| 価格 | 999万円~1099万円・建売住宅もございます 15号地:3490万円 月々のお支払い目安
|

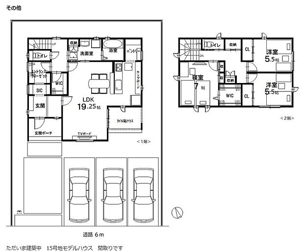
| 間取り | - |
|---|---|
| 土地面積 | 200.71m2~201.56m2 |
| 建物面積 | - |
| 建物階 | - |
| 完成時期 |
|





























販売中
| 販売区画数 | 4区画 | 最多価格帯 | 900万円台(2区画) |
|---|---|---|---|
| 販売価格 |
999万円~1099万円・建売住宅もございます 15号地:3490万円 月々のお支払い目安
|
||
| 土地面積 | 200.71m2~201.56m2(60.71坪~60.97坪)(登記) | ||
| 建物面積 | - | ||
| 建物状況 | - | 建物現況 | 新規分譲 |
| 土地状況 | 更地 | 最適用途 | - |
| 建築条件備考 | 建築条件付き | 構造・工法 | - |
| 間取り | - | 建物階 | - |
| 建ぺい率 / 容積率 | 建ぺい率:60%、容積率:100% | ||
| 接道 |
|
||
| 駐車場・車庫 | - | 完成時期 |
|
| 引渡し可能時期 |
|
||
| その他諸費用 | - | ||
| こだわり条件 |
|
||
| 備考 |
|
||
| 関連サイト | - | ||
| 所在地 | 滋賀県湖南市菩提寺字広野330-162他 | ||
|---|---|---|---|
| 交通 |
|
||
| 土地の権利 | 所有権 | ||
| 総区画数 | 29区画 | 開発面積 | 9633.29m2 |
| 私道負担 | - | 用途地域 | 指定なし |
| 地目 | 宅地 | 施工会社 | - |
| 情報掲載開始日 | 2023年4月11日 | 情報更新日 | 2025年12月5日 |
| 取引条件有効期限 | 2025年12月31日 | 次回更新予定日 | 2025年12月10日 |
頭金、借入期間、金利から毎月の住宅ローンお支払い額の目安を試算します。ご希望の条件に変更してご利用ください。
物件価格の初期値は最低値を設定しております。実際にローン契約をする際は、詳細を不動産会社にご確認ください。
この物件のアピールポイント
全区画60坪以上! 総29区画の街 好評分譲中!!■□近江富士を眺めながら豊かに暮らす街■□緑豊かな住宅地です■□ ■□JR草津線「石部」バス23分イワタニ東口停歩3分~4分■□最寄りには保育園・こども園が3つあります。■□ファミリーマート湖南菩提寺店まで徒歩4分(約290m)■□ ■□マコトホーム株式会社 現地モデルハウスご覧いただけます【予約制】 まずはお気軽にお問合せ下さい 詳しい資料お届けします■□