【ダイワハウス】セキュレア大分羽田II (分譲住宅)

新築分譲一戸建て
所在地 大分県大分市大字羽田字竹ケ下438番4
交通
  • JR豊肥本線「滝尾」駅 徒歩19分
  • 価格 4,340万円
    資料請求する無料 見学予約する無料

    ※LIFULL HOME'Sの資料請求ページに移動します

    お気に入りに追加
    • 物件情報
    • 地図・周辺情報
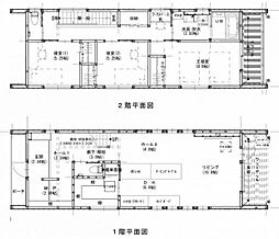
    • 間取り 3LDK(1号地)
      土地面積 145.44m2
      建物面積 97.72m2
      建物階 軽量鉄骨2階建(1戸)
      完成時期
      • 令和6年11月完成済 1戸
    • 【1号地 外観】1号地
    • 1号地
    • 【3LDK】間取・外構植栽図は設計図書を基に描き起こしたもので実際とは多少異なる場合があります。 家具・家電・備品・車・自転車等は価格に含まれません。
    • 【1号地 キッチン】1号地
    • 【1号地 洗面室】1号地
    • 【1号地 浴室】1号地
    • 【1号地 リビング】1号地
    • 【1号地 リビング】1号地
    • 【1号地 ダイニング】1号地
    • 【1号地 主寝室】1号地
    • 【1号地 家事室】1号地
    • 滝尾小学校
    • 滝尾中学校
    • 滝尾保育園
    • セブンイレブン 大分滝尾店
    • JR豊肥本線「滝尾」駅
    • ※区画図
    • 間取・外構植栽図は設計図書を基に描き起こしたもので実際とは多少異なる場合があります。 家具・家電・備品・車・自転車等は価格に含まれません。
    • 1号地
    • ※付近案内図
    お気に入りに追加 この物件の資料請求無料 見学予約する無料

    ※LIFULL HOME'Sの資料請求ページに移動します

    販売スケジュール

    先着順申込受付中

    販売概要

    販売戸数 1戸 最多価格帯 -
    販売価格 4,340万円
    土地面積 145.44m2(1号地) 私道負担なし
    建物面積 97.72m2(1号地)
    建物状況 - 建物現況 分譲中
    土地状況 - 最適用途 -
    建築条件備考 - 構造・工法 -
    間取り 3LDK(1号地) 建物階 軽量鉄骨2階建(1戸)
    建ぺい率 / 容積率 -
    接道
    5m・8m(アスファルト舗装)
    駐車場・車庫
    • 3台
    完成時期
    • 令和6年11月完成済 1戸
    引渡し可能時期
    • 即引渡可 1戸
    その他諸費用
    • -
    こだわり条件
    • 見学可能
    • オール電化
    • マイホーム発電システム
    • スマートハウス
    • 浴室暖房
    • IHコンロ
    • ウォークインクローゼット
    • 駐車場2台以上
    • 低層住宅地
    • 長期優良住宅
    • 設計住宅性能評価付き
    • 即入居可
    • 小学校まで1km以内
    • 小学校 800m以内
    • 中学校 800m以内
    備考
    • 物件種目:戸建
    • 主たる設備概要:電気:大和ハウス工業(他の小売電気事業者の選択も可能です)、ガス:オール電化の為なし、水道:市営水道、下水:合併浄化槽
    • 国土法:届出不要
    • 建築確認番号:第R060376号
    • 売主:大和ハウス工業株式会社
    • 都市計画:市街化区域
    関連サイト -

    省エネ性能

    この物件の省エネ性能がわかる「省エネ性能ラベル」です。省エネ性能ラベルは2024年4月以降に建築確認申請した物件などで表示しています。

    ※「省エネ性能ラベル」は特定の住戸の性能を示し、全ての住戸の性能を示していない場合があります。

    省エネ性能ラベル
    エネルギー消費性能
    -
    エネルギー消費性能とは
    星マークの数が多いほどエネルギー消費性能が高いことを示しています。再エネ設備のない住宅は★0~★4の5段階評価、再エネ設備がある住宅は★0~★6の7段階評価となります。
    断熱性能
    -
    断熱性能とは
    数値が高いほど断熱性能が高いことを示しています。「熱の逃げやすさ」と「日射熱の入りやすさ」の2つの点で7段階で評価しています。
    目安光熱費
    - /年
    目安光熱費とは
    一年間にかかる光熱費の目安額です。住宅の省エネ性能と全国一律の燃料等の単価を用いて、一定の条件下で自動算出したもので、実際にかかる光熱費とは異なります。

    全体概要

    所在地 大分県大分市大字羽田字竹ケ下438番4
    交通
    • JR豊肥本線「滝尾」駅 徒歩19分
    土地の権利 所有権
    総戸数 2戸
    私道負担 - 用途地域 第一種低層住居専用地域
    地目 - 施工会社 -
    情報掲載開始日 2024年10月17日 情報更新日 2025年12月5日
    取引条件有効期限 2025年12月17日 次回更新予定日 2025年12月10日

    ローンシミュレーション

    頭金、借入期間、金利から毎月の住宅ローンお支払い額の目安を試算します。ご希望の条件に変更してご利用ください。

    物件価格の初期値は最低値を設定しております。実際にローン契約をする際は、詳細を不動産会社にご確認ください。

    万円
    万円
    %

    ※頭金や金利、借入期間によって支払う金額は変わります。

    ※物件購入時には、物件価格の他に諸費用がかかります。

    =
    月々のお支払い目安
    元金
    万円/月
    金利
    万円/月
    お支払い目安
    万円/月

    お問い合わせ

    ご覧いただいている物件の住宅ローンや実際にかかる諸費用、資金計画などのご相談ができます。

    不動産会社へのお問い合わせ

    大分支店 住宅営業所

    この物件のアピールポイント

    JR豊肥本線「滝尾」駅 徒歩19分 小中学校が徒歩圏内にあり、豊かな自然に囲まれた落ち着きのある閑静な住宅地。 この場所でダイワハウスがご提案する、家族の笑顔あふれる未来の大分生活

    • 会社名:大和ハウス工業株式会社
    • 住所:大阪府大阪市北区梅田3丁目3番5号
    • 電話:0120-590-956
      ※物件のお問い合わせは0120-010-262
    • 取引態様:売主
    • 免許番号:国土交通大臣 (16) 第 245 号
    • 不動産団体名:(一社)不動産協会 (公社)近畿地区不動産公正取引協議会 (一社)大阪府宅地建物取引業協会
    • 売主:大和ハウス工業株式会社
    • 売主免許番号:国土交通大臣(16)第245号 国土交通大臣許可(特-2)第5279号
    • 関連サイト:-
    資料請求する無料 見学予約する無料

    ※LIFULL HOME'Sの資料請求ページに移動します

    他の物件も見てみる

    最近見た物件
    • 外観
    • 間取り

    • 完成後1年を経過している未入居物件が掲載されている場合があります。
    • 販売住戸が複数の物件は、全ての住戸に該当しない項目もあります。各問い合わせ先にご確認ください。
    • 「建築条件付き土地」とは、一定期間内(概ね3ヶ月程度)に特定の建設会社と建築請負契約を結ぶことを 条件にしている宅地のことです。
    • 建物の内容は、土地購入者の自由意思により決定可能で、土地売買契約後、 建築請負会社と購入した土地に建設する建物について協議することになります。
    • 期間内に建築請負契約が成立しなければ売買契約は白紙となり、支払済みの金銭はすべて返却されます。
    • 「建築条件付き土地」の価格には、建物価格は含まれません。
    • 「建築条件付き土地」の「建物プラン例」は、土地購入者の設計プランの一例であり、プランの採用可否は任意です。
    • 「土地(建築条件なし)」の「建物プラン例」に関して、そのプラン例は特定の建築請負会社によるもので、当該建築請負会社以外で建てた場合、同様のものが同価格で建てられるとは限りません。また、建築請負会社を特定するものではありません。
    • 消費税および地方消費税の対象となる場合は税込み価格が表示されています。
    • 物件の写真やイラスト、CGなどは実際と異なる場合があります。
    • 市区町村の合併などにより、地図が表示されない場合があります。ご了承ください。
    • お客様が入力する個人情報を含むお問い合わせデータは、LIFULL HOME'Sを経由して当該物件情報の取扱会社に転送されます。
    • 不動産購入の検討、契約にあたってはお客様ご自身が情報を確認し、各会社より十分な説明を受け判断してください。
    • 本ページの掲載内容は変更される場合があります。あらかじめご了承ください。
    ページトップへ