| 所在地 | 愛知県高浜市論地町3丁目2番156、2番160、2番162、117番5 |
|---|---|
| 交通 | |
| 価格 | 3,790~4,090万円 月々のお支払い目安
|

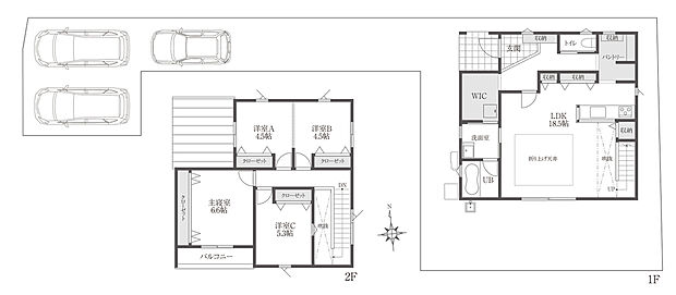
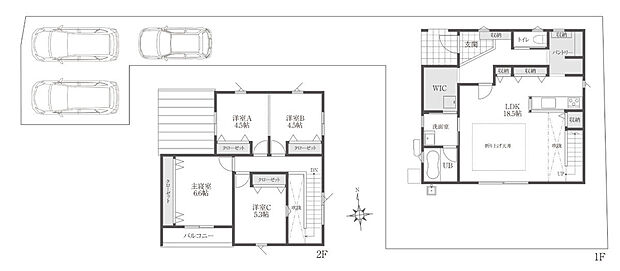
| 間取り | 4LDK+2S(No.3)、3LDK+S(No.4) |
|---|---|
| 土地面積 | 155.68m2~192.31m2 |
| 建物面積 | 77.84m2~111.37m2 |
| 建物階 | 木造2階建(No.3)、木造平屋(No.4) |
| 完成時期 |
|



































販売中
| 販売戸数 | 2戸 | 最多価格帯 | - |
|---|---|---|---|
| 販売価格 |
3,790~4,090万円 月々のお支払い目安
|
||
| 土地面積 | 155.68m2(No.4)~192.31m2(No.3) | ||
| 建物面積 | 77.84m2(No.4)~111.37m2(No.3) | ||
| 建物状況 | - | 建物現況 | 新規分譲 |
| 土地状況 | - | 最適用途 | - |
| 建築条件備考 | - | 構造・工法 | - |
| 間取り | 4LDK+2S(No.3)、3LDK+S(No.4) | 建物階 | 木造2階建(No.3)、木造平屋(No.4) |
| 建ぺい率 / 容積率 | 建ぺい率60% 容積率200% | ||
| 接道 |
|
||
| 駐車場・車庫 |
|
完成時期 |
|
| 引渡し可能時期 |
|
||
| その他諸費用 | - | ||
| こだわり条件 |
|
||
| 備考 |
|
||
| 関連サイト | - | ||
※「省エネ性能ラベル」は特定の住戸の性能を示し、全ての住戸の性能を示していない場合があります。
| 所在地 | 愛知県高浜市論地町3丁目2番156、2番160、2番162、117番5 | ||
|---|---|---|---|
| 交通 |
|
||
| 土地の権利 | 所有権 | ||
| 総戸数 | 4戸 | ||
| 私道負担 | - | 用途地域 | 準工業地域 |
| 地目 | 田(宅地) | 施工会社 | 株式会社ハウスジャパン |
| 情報掲載開始日 | 2024年12月24日 | 情報更新日 | 2026年2月4日 |
| 取引条件有効期限 | 2026年3月31日 | 次回更新予定日 | 2026年2月18日 |
頭金、借入期間、金利から毎月の住宅ローンお支払い額の目安を試算します。ご希望の条件に変更してご利用ください。
物件価格の初期値は最低値を設定しております。実際にローン契約をする際は、詳細を不動産会社にご確認ください。
この物件のアピールポイント
【No.3】家具付き/太陽光パネル標準装備/駐車3台/動線効率/ファミクロ/吹き抜け/4LDK 【No.4】家具付き/太陽光パネル標準装備/駐車2台/造作洗面/収納 【環境ポイント】 ・交通量が少なく、子育てにも安心な敷地 ・公園が徒歩約5分 ・ゆとりのある約58坪の敷地 ・幼稚園、公園まで徒歩約13分 ・こども園、小学校、中学校 徒歩約13分 【No.3ポイント】 ・おかえり動線上のWIC×洗面室 ・食品の収納もラクラク。玄関から最短距離でアクセスできるパントリー ・間仕切り可能な2階の洋室 ・自由なアレンジが可能な庭スペース