| 所在地 | 三重県四日市市羽津町2958番1他 |
|---|---|
| 交通 | |
| 価格 | 4,180万円~4,480万円 月々のお支払い目安
|

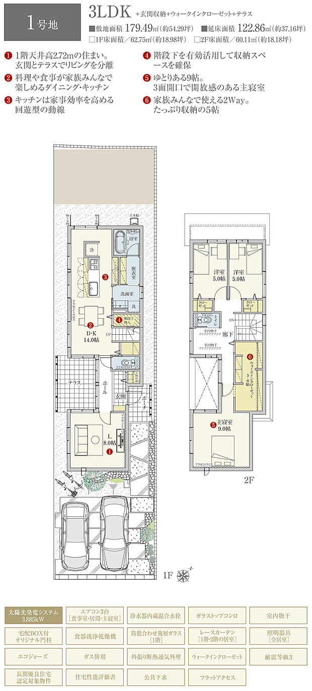
| 間取り | 3LDK(1号地、2号地) |
|---|---|
| 土地面積 | 179.49m2~180.84m2 |
| 建物面積 | 122.86m2 |
| 建物階 | 軽量鉄骨2階建(2戸) |
| 完成時期 |
|






























先着順申込受付中
| 販売戸数 | 2戸 | 最多価格帯 | 4,000万円台 2戸 ※1,000万円単位 |
|---|---|---|---|
| 販売価格 |
4,180万円~4,480万円 月々のお支払い目安
|
||
| 土地面積 | 179.49m2(1号地)、180.84m2(2号地) 全て私道負担なし | ||
| 建物面積 | 122.86m2(1号地)、122.86m2(2号地) | ||
| 建物状況 | - | 建物現況 | 分譲中 |
| 土地状況 | - | 最適用途 | - |
| 建築条件備考 | - | 構造・工法 | - |
| 間取り | 3LDK(1号地、2号地) | 建物階 | 軽量鉄骨2階建(2戸) |
| 建ぺい率 / 容積率 | - | ||
| 接道 |
|
||
| 駐車場・車庫 |
|
完成時期 |
|
| 引渡し可能時期 |
|
||
| その他諸費用 |
|
||
| こだわり条件 |
|
||
| 備考 |
|
||
| 関連サイト | - | ||
| 所在地 | 三重県四日市市羽津町2958番1他 | ||
|---|---|---|---|
| 交通 |
|
||
| 土地の権利 | 所有権 | ||
| 総戸数 | 2戸 | ||
| 私道負担 | - | 用途地域 | 第一種住居地域 |
| 地目 | - | 施工会社 | - |
| 情報掲載開始日 | 2024年3月6日 | 情報更新日 | 2025年12月6日 |
| 取引条件有効期限 | 2025年12月17日 | 次回更新予定日 | 2025年12月10日 |
頭金、借入期間、金利から毎月の住宅ローンお支払い額の目安を試算します。ご希望の条件に変更してご利用ください。
物件価格の初期値は最低値を設定しております。実際にローン契約をする際は、詳細を不動産会社にご確認ください。
この物件のアピールポイント
近鉄名古屋線「阿倉川」駅、「霞ヶ浦」駅までともに徒歩11分圏内の便利な住環境 【高耐震】×【高耐久】×【省エネ】×【長期サポート】で安心の暮らしを叶えるダイワハウスの分譲住宅 花粉の季節や梅雨時に活躍する室内物干しを設置しました。