| 所在地 | 和歌山県和歌山市西高松2丁目147番18 |
|---|---|
| 交通 | |
| 価格 | 5,980万円 月々のお支払い目安
|

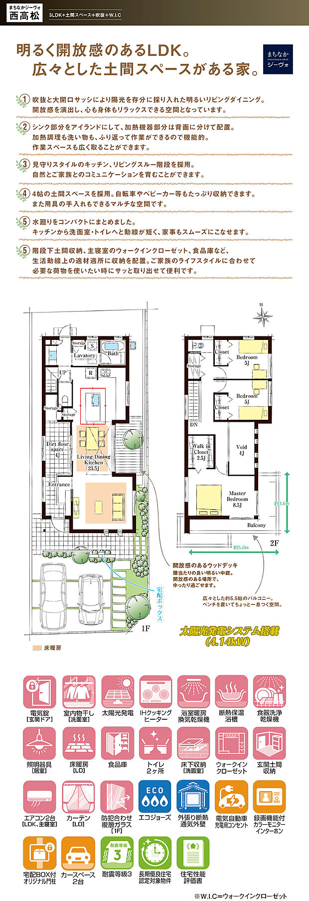
| 間取り | 3LDK(1号地) |
|---|---|
| 土地面積 | 185.17m2 |
| 建物面積 | 132.71m2 |
| 建物階 | 軽量鉄骨2階建(1戸) |
| 完成時期 |
|






















先着順申込受付中
| 販売戸数 | 1戸 | 最多価格帯 | - |
|---|---|---|---|
| 販売価格 |
5,980万円 月々のお支払い目安
|
||
| 土地面積 | 185.17m2(1号地) 私道負担なし | ||
| 建物面積 | 132.71m2(1号地) | ||
| 建物状況 | - | 建物現況 | 分譲中 |
| 土地状況 | - | 最適用途 | - |
| 建築条件備考 | - | 構造・工法 | - |
| 間取り | 3LDK(1号地) | 建物階 | 軽量鉄骨2階建(1戸) |
| 建ぺい率 / 容積率 | - | ||
| 接道 |
|
||
| 駐車場・車庫 |
|
完成時期 |
|
| 引渡し可能時期 |
|
||
| その他諸費用 |
|
||
| こだわり条件 |
|
||
| 備考 |
|
||
| 関連サイト | - | ||
| 所在地 | 和歌山県和歌山市西高松2丁目147番18 | ||
|---|---|---|---|
| 交通 |
|
||
| 土地の権利 | 所有権 | ||
| 総戸数 | 1戸 | ||
| 私道負担 | - | 用途地域 | 第一種低層住居専用地域 |
| 地目 | - | 施工会社 | - |
| 情報掲載開始日 | 2023年11月11日 | 情報更新日 | 2025年12月6日 |
| 取引条件有効期限 | 2025年12月17日 | 次回更新予定日 | 2025年12月10日 |
頭金、借入期間、金利から毎月の住宅ローンお支払い額の目安を試算します。ご希望の条件に変更してご利用ください。
物件価格の初期値は最低値を設定しております。実際にローン契約をする際は、詳細を不動産会社にご確認ください。
この物件のアピールポイント
大きな開口と天井高の大空間で快適生活 柱が少なくても地震に強いので安心 「外張り断熱通気外壁」で快適な室内温度を維持