| 所在地 | 埼玉県ふじみ野市清見4丁目1番50 |
|---|---|
| 交通 | |
| 価格 | 2,780万円 月々のお支払い目安
|

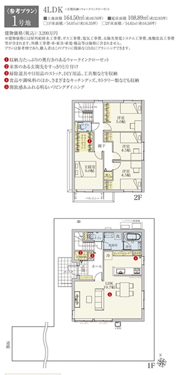
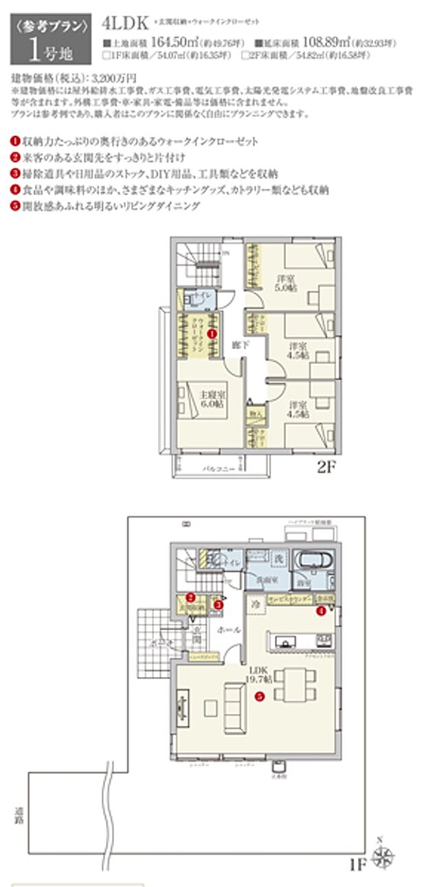
| 間取り | - |
|---|---|
| 土地面積 | 164.50m2 |
| 建物面積 | - |
| 建物階 | - |
| 完成時期 |
|















先着順申込受付中
| 販売区画数 | 1区画 | 最多価格帯 | - |
|---|---|---|---|
| 販売価格 |
2,780万円 月々のお支払い目安
|
||
| 土地面積 | 164.50m2(1号地) 私道負担なし | ||
| 建物面積 | - | ||
| 建物状況 | - | 建物現況 | 分譲中 |
| 土地状況 | - | 最適用途 | - |
| 建築条件備考 | 建築条件付き | 構造・工法 | - |
| 間取り | - | 建物階 | - |
| 建ぺい率 / 容積率 | 60%・200% | ||
| 接道 |
|
||
| 駐車場・車庫 | - | 完成時期 |
|
| 引渡し可能時期 |
|
||
| その他諸費用 |
|
||
| こだわり条件 |
|
||
| 備考 |
|
||
| 関連サイト | - | ||
| 所在地 | 埼玉県ふじみ野市清見4丁目1番50 | ||
|---|---|---|---|
| 交通 |
|
||
| 土地の権利 | 所有権 | ||
| 総区画数 | 2区画 | 開発面積 | - |
| 私道負担 | - | 用途地域 | 第一種住居地域 |
| 地目 | 宅地 | 施工会社 | - |
| 情報掲載開始日 | 2024年8月31日 | 情報更新日 | 2026年3月30日 |
| 取引条件有効期限 | 2026年4月8日 | 次回更新予定日 | 2026年4月1日 |
頭金、借入期間、金利から毎月の住宅ローンお支払い額の目安を試算します。ご希望の条件に変更してご利用ください。
物件価格の初期値は最低値を設定しております。実際にローン契約をする際は、詳細を不動産会社にご確認ください。
この物件のアピールポイント
東武東上線「上福岡」駅まで徒歩20分。広々としたゆとりのある敷地です! イオンタウンふじみ野まで徒歩7分。毎日のお買い物や休日のお出かけにも便利な立地です♪ 小中学校まで徒歩9分、幼稚園まで徒歩3分。子育て世帯にも嬉しい立地です