相模原市千代田17期 新築戸建て

新築仲介一戸建て
所在地 神奈川県相模原市中央区千代田7丁目3-4
交通
  • JR横浜線「矢部」駅まで バス 13分 バス停「袋橋」まで 徒歩 22分
  • JR相模線「上溝」駅まで 徒歩 23分
  • 価格 3,990万円
    • 物件情報
    • 地図・周辺情報
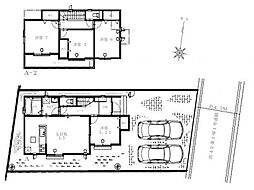
    • 間取り 3SLDK
      土地面積 137.78m2
      建物面積 95.22m2
      建物階 地上2階
      完成時期
      • 2026年 3月
    • 立地周辺に商業施設数多く点在!子育て世帯にも優しい立地♪駐車場1台分完備♪(車種による)家族皆で寛げる広々ゆとりのあるリビング♪全居室収納完備♪暮らしを彩る設備・仕様が充実した快適住まい!
    • 配置図
    • 相模原市立光が丘小学校
    • 相模原市立弥栄中学校
    • ローソンストア100相模原千代田店
    • オーケー相模原店
    • sanwa並木店
    • サンドラッグ相模原千代田店
    • 千代田保育園
    • 東日本銀行相模原支店

    住みやすさ

    矢部の住みやすさの採点分布

           
    ココが住みやすい!
    • 近所にスーパー等は多く、原付以上の移動手段を持っていれば便利です。またカレー屋やとんかつ屋など隠れめいてんもありました。
    • 静かな街で、スーパーやコンビニが近くにあったから生活は便利だった。飲食店も多少あったので、食事の負担もそんなになかった。
    • ほどよく自然があり、ほどよく都会で、23区への通勤もまあ可能です。病院もスーパーもコンビニもあり特に不便は感じません。
    ※住みやすさに関する評点は、単純平均ではなく当社独自の集計方法を加え算出しています。

    販売概要

    販売戸数 1戸 最多価格帯 -
    販売価格 3,990万円
    土地面積 137.78m2
    建物面積 95.22m2
    建物状況 新築 建物現況 -
    土地状況 - 最適用途 -
    建築条件備考 - 構造・工法
    • 木造
    間取り 3SLDK 建物階 地上2階
    建ぺい率 / 容積率 -
    接道
    接道状況:
    -
    接道詳細:
    • 幅員 - 接面 -
    駐車場・車庫
    • 駐車場料金:無料
    完成時期
    • 2026年 3月
    引渡し可能時期
    • 相談
    その他諸費用 -
    こだわり条件
    • コンロ三口
    • 床下収納
    • ウォークインクローゼット
    • TVモニタ付インターホン
    • 浴室乾燥機
    • 耐震構造
    • 全居室収納
    • フラット35・S適合証明書
    • 駐車場あり
    備考
    • 物件種目:戸建
    • その他の物件概要:3号棟
    • 主たる設備概要:-
    • 上水道:公営
    • 下水道:本下水
    • ガス・オール電化:都市ガス
    • 建築確認番号:第HPA-25-08867-1号
    • 最寄り小学校名:相模原市立星が丘小学校
    • 最寄り小学校までの距離:950m
    • 最寄り中学校名:相模原市立弥栄中学校
    • 最寄り中学校までの距離:1,070m
    • その他施設名:千代田保育園
    • その他施設までの距離:200m
    • 近隣のスーパーマーケットまでの距離:550m
    • 近隣のドラッグストアまでの距離:330m
    • 近隣のコンビニまでの距離:280m
    • 近隣の銀行までの距離:660m
    • 備考欄:■当社ではFPによる住宅ローン・税金★仲介手数料0円対象物件★★是非、T&AHomeまでお問合せください・年金などの住宅購入以外の生涯ライフプランのご相談・ご提案や建築士による建物間取り、建物診断など建物全般のご相談も承っております。また住宅購入時に必要な各諸経費を他社様より削減できるよう努めております。詳細についてはHPよりお気軽にお問合せください。
    関連サイト -

    全体概要

    所在地 神奈川県相模原市中央区千代田7丁目3-4
    交通
    • JR横浜線「矢部」駅まで バス 13分 バス停「袋橋」まで 徒歩 22分
    • JR相模線「上溝」駅まで 徒歩 23分
    土地の権利 所有権
    総戸数 -
    私道負担 - 用途地域 -
    地目 - 施工会社 -
    情報掲載開始日 2025年12月4日 情報更新日 2026年4月6日
    取引条件有効期限 2026年4月20日 次回更新予定日 -

    ローンシミュレーション

    頭金、借入期間、金利から毎月の住宅ローンお支払い額の目安を試算します。ご希望の条件に変更してご利用ください。

    物件価格の初期値は最低値を設定しております。実際にローン契約をする際は、詳細を不動産会社にご確認ください。

    万円
    万円
    %

    ※頭金や金利、借入期間によって支払う金額は変わります。

    ※物件購入時には、物件価格の他に諸費用がかかります。

    =
    月々のお支払い目安
    元金
    万円/月
    金利
    万円/月
    お支払い目安
    万円/月

    お問い合わせ

    ご覧いただいている物件の住宅ローンや実際にかかる諸費用、資金計画などのご相談ができます。

    不動産会社へのお問い合わせ

    株式会社T&A Home

    この物件のアピールポイント

    ■新築戸建てをご検討のお客様は、ぜひT&AHomeにお問合せ下さい。様々なご要望にお応えし、お客様の住まい探しを全力でサポート致します!

    この物件の価格

    3,990万円

    • 会社名:株式会社T&A Home
    • 住所:神奈川県平塚市菫平9番9号 西海岸ハイツ1F
    • 電話:0120-015-716
    • 交通:JR東海道本線「平塚」駅まで 徒歩 18分
    • 取引態様:媒介
    • 免許番号:神奈川県知事(01)第030900号
    • 不動産団体名:(公社)首都圏不動産公正取引協議会、(公社)全日本不動産協会、(公財)東日本不動産流通機構
    • 保証協会:(公社)不動産保証協会
    • 売主:-
    • 売主免許番号:-
    • 関連サイト:-

    お電話でのお問い合わせはこちら(取り扱い不動産会社に直接つながります)

    電話をかける(携帯電話・PHSでも可)

    1電話番号を入力する

    0037-634-13525

    お問い合わせ先

    株式会社T&A Home

    2音声案内に従い、以下の番号を入力

    お問い合わせ番号 23465-3193

    不動産会社につながります

    不動産会社のスタッフと
    直接電話で話せます

    店舗スタッフ
    • お客様の電話番号は不動産会社に通知されません。
    • 光IP電話、及びIP電話からはご利用になれません。
    • 定休日や営業時間外にてお電話がつながらない場合は、お問い合わせフォームよりお問い合わせください。
    • 携帯電話からお問合せいただいた方には、ショートメッセージ(SMS)またはLINE通知メッセージによるお問い合わせ内容に関する通知を株式会社LIFULLよりお届けする場合があり、お客様の電話番号は株式会社LIFULLで一定期間保管されます。
    • 株式会社LIFULLの個人情報の取扱い方針に同意のうえ、お電話ください。
    • オーナー様・不動産会社様・現在ご入居中のお客様など、住まい探し以外のご相談はこちらからお問い合わせください。

    他の物件も見てみる

    条件が似た物件
    • 外観
    • 間取り

    • 完成後1年を経過している未入居物件が掲載されている場合があります。
    • 販売住戸が複数の物件は、全ての住戸に該当しない項目もあります。各問い合わせ先にご確認ください。
    • 「建築条件付き土地」とは、一定期間内(概ね3ヶ月程度)に特定の建設会社と建築請負契約を結ぶことを 条件にしている宅地のことです。
    • 建物の内容は、土地購入者の自由意思により決定可能で、土地売買契約後、 建築請負会社と購入した土地に建設する建物について協議することになります。
    • 期間内に建築請負契約が成立しなければ売買契約は白紙となり、支払済みの金銭はすべて返却されます。
    • 「建築条件付き土地」の価格には、建物価格は含まれません。
    • 「建築条件付き土地」の「建物プラン例」は、土地購入者の設計プランの一例であり、プランの採用可否は任意です。
    • 「土地(建築条件なし)」の「建物プラン例」に関して、そのプラン例は特定の建築請負会社によるもので、当該建築請負会社以外で建てた場合、同様のものが同価格で建てられるとは限りません。また、建築請負会社を特定するものではありません。
    • 消費税および地方消費税の対象となる場合は税込み価格が表示されています。
    • 物件の写真やイラスト、CGなどは実際と異なる場合があります。
    • 市区町村の合併などにより、地図が表示されない場合があります。ご了承ください。
    • お客様が入力する個人情報を含むお問い合わせデータは、LIFULL HOME'Sを経由して当該物件情報の取扱会社に転送されます。
    • 不動産購入の検討、契約にあたってはお客様ご自身が情報を確認し、各会社より十分な説明を受け判断してください。
    • 本ページの掲載内容は変更される場合があります。あらかじめご了承ください。
    ページトップへ