【ハウスジャパン】スマイルガーデン碧南市笹山町1 No.8

新築分譲一戸建て
所在地 愛知県碧南市笹山町1丁目31番12
交通
  • 名鉄三河線「北新川」駅 徒歩23分
  • 価格 3,590万円
    資料請求する無料 見学予約する無料

    ※LIFULL HOME'Sの資料請求ページに移動します

    お気に入りに追加
    • 物件情報
    • 地図・周辺情報
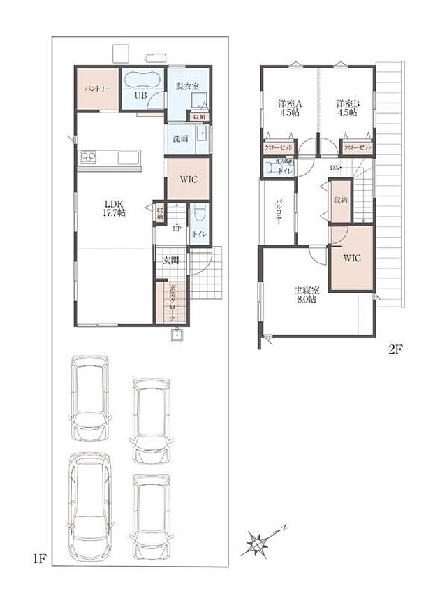
    • 間取り 3LDK+4S(玄関クローク/パントリー/WIC×2)
      土地面積 152.00m2
      建物面積 100.19m2
      建物階 木造2階建
      完成時期
      • 2026年7月
    • 【3LDK+4S(玄関クローク/パントリー/WIC×2)】月々の支払い例
頭金0円 変動金利1.03%・40年返済・ボーナス払い(年2回)

例1:ボーナス払い
約 149,773円
月々66,366円

例2:ボーナス払い
約 99,339円
月々74,757円
    • 【キッチン/カップボード】(IHコンロ【オール電化】/深型食洗機 /タッチレス水栓)
    • 【エコカラットが施工されたLDK】LDK の壁にはエコカラットが施工されており、高級感のある空間に。エコカラットとは、無数の孔が空いたタイルのことで、調湿性や消臭効果があるため、快適な空間を作り出します。
    • 【パントリーで収納たっぷり。家事室としてのアレンジも可能!】キッチンの後ろには約2帖のパントリーを設置。食料品や生活用品のストックなどを収納できます。自分好みにアレンジして、料理の合間に一息つけるワークスペースや趣味用の書斎にすることも可能です。
    • 【1F ファミクロで ワンフロア完結の収納】LDK には階段下を有効活用したWIC を用意。ワンフロアで収納が完結するため、家事動線もスムーズです。家族構成やライフスタイルに合わせてフレキシブルに活用できます◎
    • 【2.5 帖( 収納含む) の広々脱衣室】脱衣室には収納付きで、家族のパジャマやタオル、洗剤のストックなどをその場にまとめて管理できます。「洗う→干す→しまう」の動作がワンフロアで完結し、毎日の家事負担を大幅に軽減◎
    • 【ゆとりのある8帖主寝室】8 帖の広々とした主寝室は、ダブルベッドを配置しても十分に余裕が残る、心からくつろげるゆとりある空間です。壁に設えられた書斎カウンターは、リモートワークや読書に没頭できる自分だけの特等席に。
    • 【2階の洋室】下地入りで、間仕切り可能な洋室。間を区切って個室にしたり、広いままお子様のプレイルームにしたりと、フレキシブルに活躍します。
暮らしに寄り添う柔軟な間取りで、ご家族の将来も楽しく設計しませんか
    • 名鉄三河線「北新川」駅
    • 荒子保育園
    • 碧南市立鷲塚小学校
    • 碧南市立東中学校
    • 荒子児童遊園
    • バロー碧南城山店
    • 案内図

    住みやすさ

    北新川の住みやすさの採点分布

         
    ココが住みやすい!
    • 周囲に飲食店、コインランドリー、買い物できるお店が多く環境がよかったため、行きつけの飲食店ができました。
    • 市街地に行くと、飲食店や様々な商業施設が揃っていること。 閑静な住宅街が比較的多いため、住環境として適していること。
    • 海の近くなので、海の幸が美味しいです、野菜もこだわって作ってくれる方が沢山います、甘くて美味しいので、満足しています。
    ※住みやすさに関する評点は、単純平均ではなく当社独自の集計方法を加え算出しています。
    お気に入りに追加 この物件の資料請求無料 見学予約する無料

    ※LIFULL HOME'Sの資料請求ページに移動します

    販売スケジュール

    販売中

    販売概要

    販売戸数 1戸 最多価格帯 -
    販売価格 3,590万円
    土地面積 152.00m2
    建物面積 100.19m2
    建物状況 - 建物現況 新規分譲
    土地状況 - 最適用途 -
    建築条件備考 - 構造・工法 -
    間取り 3LDK+4S(玄関クローク/パントリー/WIC×2) 建物階 木造2階建
    建ぺい率 / 容積率 建ぺい率60% 容積率100%
    接道
    南東側公道幅員 約4.00m
    駐車場・車庫
    • 4台
    完成時期
    • 2026年7月
    引渡し可能時期
    • 相談
    その他諸費用 -
    こだわり条件
    • 瑕疵担保付き
    • 仲介手数料不要
    • 見学可能
    • オール電化
    • マイホーム発電システム
    • 浴室乾燥機
    • 浴室暖房
    • IHコンロ
    • 食器洗い乾燥機
    • 床下収納
    • ウォークインクローゼット
    • シューズクローク
    • パントリー
    • TVモニタ付インターホン
    • 低層住宅地
    • 総戸数・総区画数が10以上〜30未満
    • 長期優良住宅
    • オンライン相談可
    • 駐車場あり
    備考
    • 物件種目:戸建
    • 主たる設備概要:公営水道、公共下水、オール電化、中部電力
    • 建築確認番号:第愛建2026建築確認00394号
    関連サイト -

    全体概要

    所在地 愛知県碧南市笹山町1丁目31番12
    交通
    • 名鉄三河線「北新川」駅 徒歩23分
    土地の権利 所有権
    総戸数 11戸
    私道負担 - 用途地域 第一種低層住居専用地域
    地目 田(宅地) 施工会社 株式会社ハウスジャパン
    情報掲載開始日 2026年4月3日 情報更新日 2026年4月6日
    取引条件有効期限 2026年7月31日 次回更新予定日 2026年4月20日

    ローンシミュレーション

    頭金、借入期間、金利から毎月の住宅ローンお支払い額の目安を試算します。ご希望の条件に変更してご利用ください。

    物件価格の初期値は最低値を設定しております。実際にローン契約をする際は、詳細を不動産会社にご確認ください。

    万円
    万円
    %

    ※頭金や金利、借入期間によって支払う金額は変わります。

    ※物件購入時には、物件価格の他に諸費用がかかります。

    =
    月々のお支払い目安
    元金
    万円/月
    金利
    万円/月
    お支払い目安
    万円/月

    お問い合わせ

    ご覧いただいている物件の住宅ローンや実際にかかる諸費用、資金計画などのご相談ができます。

    不動産会社へのお問い合わせ

    株式会社ハウスジャパン

    この物件のアピールポイント

    【家具付&太陽光標準】駐車4台/WIC×2/遊び心のあるシンプルモダンな家 【建物ポイント】 ・造作カウンター付きの書斎スペース(主寝室) ・シンプルモダンテイストのインテリア 【環境ポイント】 ・閑静な住宅地 ・市街地が近い ・保育園、コンビニ、スーパー、病院が徒歩圏内 ・約45坪の敷地 【間取り設計】 ・使い勝手抜群!パントリー付きのキッチン ・玄関クローク&各階のWIC ・2部屋続きの洋室 ・駐車4台可能

    • 会社名:株式会社ハウスジャパン
    • 住所:愛知県高浜市新明町7丁目13番地38 (Tポート南)
    • 電話:0566-53-7700
      ※物件のお問い合わせは0120-92-0086
    • 取引態様:株式会社ハウスジャパン(売主)
    • 免許番号:愛知県知事 (11) 第 12458 号
    • 不動産団体名:(公社)愛知県宅地建物取引業協会
    • 売主:-
    • 売主免許番号:-
    • 関連サイト:-
    資料請求する無料 見学予約する無料

    ※LIFULL HOME'Sの資料請求ページに移動します

    他の物件も見てみる

    • 完成後1年を経過している未入居物件が掲載されている場合があります。
    • 販売住戸が複数の物件は、全ての住戸に該当しない項目もあります。各問い合わせ先にご確認ください。
    • 「建築条件付き土地」とは、一定期間内(概ね3ヶ月程度)に特定の建設会社と建築請負契約を結ぶことを 条件にしている宅地のことです。
    • 建物の内容は、土地購入者の自由意思により決定可能で、土地売買契約後、 建築請負会社と購入した土地に建設する建物について協議することになります。
    • 期間内に建築請負契約が成立しなければ売買契約は白紙となり、支払済みの金銭はすべて返却されます。
    • 「建築条件付き土地」の価格には、建物価格は含まれません。
    • 「建築条件付き土地」の「建物プラン例」は、土地購入者の設計プランの一例であり、プランの採用可否は任意です。
    • 「土地(建築条件なし)」の「建物プラン例」に関して、そのプラン例は特定の建築請負会社によるもので、当該建築請負会社以外で建てた場合、同様のものが同価格で建てられるとは限りません。また、建築請負会社を特定するものではありません。
    • 消費税および地方消費税の対象となる場合は税込み価格が表示されています。
    • 物件の写真やイラスト、CGなどは実際と異なる場合があります。
    • 市区町村の合併などにより、地図が表示されない場合があります。ご了承ください。
    • お客様が入力する個人情報を含むお問い合わせデータは、LIFULL HOME'Sを経由して当該物件情報の取扱会社に転送されます。
    • 不動産購入の検討、契約にあたってはお客様ご自身が情報を確認し、各会社より十分な説明を受け判断してください。
    • 本ページの掲載内容は変更される場合があります。あらかじめご了承ください。
    ページトップへ