大和市西鶴間 第24 新築戸建て 全2棟

新築仲介一戸建て
所在地 神奈川県大和市西鶴間2丁目
交通
  • 小田急江ノ島線「鶴間」駅 徒歩9分
  • 小田急江ノ島線「南林間」駅 徒歩12分
  • 価格 4,380万円~4,480万円
    資料請求する無料 見学予約する無料

    ※LIFULL HOME'Sの資料請求ページに移動します

    お気に入りに追加
    • 物件情報
    • 地図・周辺情報
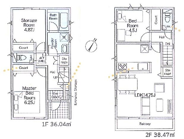
    • 間取り 2SLDK
      土地面積 93.59m2~94.17m2
      建物面積 74.51m2~75.32m2
      建物階 木造2階建て
      完成時期
      • 2026年6月
    • 【販売現地】全2棟の新築戸建て、ご案内可能です
    • 【販売現地】駅まで平坦です
    • 【販売現地】一種低層の住宅地です。
    • 【販売現地】1号棟
    • 【販売現地】2号棟
    • 【販売現地】前面道路
    • 販売現地、全2棟の新築戸建て
    • 【2SLDK】LDK14.75帖、カウンターキッチン、南向きバルコニー、カースペース2台可能
    • 【2SLDK】LDK13.5帖、カウンターキッチン、南向きバルコニー、カースペース2台可能
    • ローソン大和西鶴間2丁目店
    • ユーコープミアクチーナ南林間店
    • サンドラック西鶴間店
    • 西鶴間小学校
    • やまと防災パーク
    • やまとオークシティ
    • 1号棟、2SLDK、LDK14.75帖
    • 2号棟、2SLDK+WIC、LDK13.5帖
    • 前面道路
    • 販売現地、駅まで平坦です
    • 区画図、整形地

    住みやすさ

    鶴間の住みやすさの採点分布

         
    ココが住みやすい!
    • 住む分にはまったく困らないくらい買い物できるところがある。 またコンビニも多く、歩いていける距離に点在している。 新宿・…
    • 徒歩圏内に大型商業施設・ディスカウントストア・業務用スーパー・地元店舗等があること。 駅までの10分程度で、江の島や箱根、…
    • 駅にも近いし、大型スーパーもすぐ近くにあるし、とても便利です。病院も近くにあって何かあったときはかけつけることができます。
    ※住みやすさに関する評点は、単純平均ではなく当社独自の集計方法を加え算出しています。
    お気に入りに追加 この物件の資料請求無料 見学予約する無料

    ※LIFULL HOME'Sの資料請求ページに移動します

    販売スケジュール

    先着順受付中

    販売概要

    販売戸数 2戸 最多価格帯 -
    販売価格 4,380万円~4,480万円
    土地面積 1号棟・93.59m2、2号棟・94.17m2
    建物面積 1号棟・74.51m2、2号棟・75.32m2
    建物状況 - 建物現況 新規分譲
    土地状況 - 最適用途 -
    建築条件備考 - 構造・工法 -
    間取り 2SLDK 建物階 木造2階建て
    建ぺい率 / 容積率 建ぺい率50%、容積率80%
    接道
    南側約4.0m
    駐車場・車庫
    • 2台(カースペース2台可能)
    完成時期
    • 2026年6月
    引渡し可能時期
    • 2026年6月
    その他諸費用 -
    こだわり条件
    • 瑕疵担保付き
    • 見学可能
    • 浴室乾燥機
    • 浴室暖房
    • カウンターキッチン
    • 床下収納
    • ウォークインクローゼット
    • TVモニタ付インターホン
    • 低層住宅地
    • 南道路
    • 駐車場あり
    備考
    • 物件種目:戸建
    • 主たる設備概要:電気、公営水道、公共下水、都市ガス
    • 国土法:届出不要
    • 建築確認番号:1号棟・第KBI-SGM26-10-0055号、2号棟・第KBI-SGM26-10-0056号
    • 都市計画:市街化区域
    • 備考欄:全2棟販売

      ■現地ご案内会(事前に必ずお問い合わせください)
        ・日程/弊社営業日(火・水は定休)
        ・時間9:00~18:00

      ■ご案内方法
      ・弊社へのご来社、ご自宅へお迎え、最寄駅・施設等でお待ち合わせ等ご相談下さい。
       ご希望があれば周辺環境やお客様のご希望に合わせた物件なども一緒にご案内可能です。

      ■創業53年、大和駅徒歩4分の富士住宅は、売買専門の不動産会社です。
      ・お客様担当者は全員経験20年以上の宅地建物取引士資格保有者です。何なりとご相談下さい。

      ・複数物件のご案内や住宅ローンのご相談等がある場合には、弊社にご来社がおすすめです。
       住宅ローンのご説明や弊社車両にて物件のご案内いずれも可能です!

      ■はじめて購入される方の住宅ローン相談会実施中です!
      ・住宅探しは何からすればいいのか?
      ・自己資金はないけど家は買えるの? 
      ・諸費用っていくらくらいかかるの? 諸費用も借りられるの?
      ・転職したばかりだけどローンは組めるの?
      ・家族の収入も合算できるの?
      ・どこの銀行で借りるとお得なの?
      ・変動金と固定金利? フラット35と都市銀行どっちがいいの?
      ・確定申告をしてるけど・・・
      ・他社できびしいと言われたけど・・・
      ・住宅ローン控除って何?
      ・買うといつから住めるの?

      ※弊社、住宅ローンアドバイザー資格保有者が丁寧にご説明いたします。
       ご収入のある方(合算者も含む)の源泉徴収票や確定申告書等をご持参いただけますと、より詳細なご説明が可能です。
       無料の事前審査ご希望の方は、運転免許証又はマイナンバーカード、健康保険証、ご印鑑等もご持参下さい。
       
      ■創業53年、小田急線・相鉄線:大和駅徒歩4分
       株式会社富士住宅
       神奈川県大和市中央4-3-8 富士住宅ビル
       TEL:046-263-4355

      ・会社の裏にお客様駐車場有ります
    関連サイト -

    全体概要

    所在地 神奈川県大和市西鶴間2丁目
    交通
    • 小田急江ノ島線「鶴間」駅 徒歩9分
    • 小田急江ノ島線「南林間」駅 徒歩12分
    土地の権利 所有権
    総戸数 2戸
    私道負担 - 用途地域 第一種低層住居専用地域
    地目 宅地 施工会社 -
    情報掲載開始日 2026年4月4日 情報更新日 2026年4月9日
    取引条件有効期限 2026年5月30日 次回更新予定日 2026年4月23日

    ローンシミュレーション

    頭金、借入期間、金利から毎月の住宅ローンお支払い額の目安を試算します。ご希望の条件に変更してご利用ください。

    物件価格の初期値は最低値を設定しております。実際にローン契約をする際は、詳細を不動産会社にご確認ください。

    万円
    万円
    %

    ※頭金や金利、借入期間によって支払う金額は変わります。

    ※物件購入時には、物件価格の他に諸費用がかかります。

    =
    月々のお支払い目安
    元金
    万円/月
    金利
    万円/月
    お支払い目安
    万円/月

    お問い合わせ

    ご覧いただいている物件の住宅ローンや実際にかかる諸費用、資金計画などのご相談ができます。

    不動産会社へのお問い合わせ

    株式会社富士住宅

    この物件のアピールポイント

    【ご案内可能】鶴間駅徒歩9分、南林間駅徒歩12分、2駅利用可。全2棟販売。2SLDK、カウンターキッチン、南向きバルコニー、カースペース2台可能、南道路、都市ガス。 ●ローソン大和西鶴間2丁目店まで約330m、●ユーコープミアクチーナ南林間店まで約590m、●サンドラック西鶴間店まで約545m、●西鶴間小学校まで約300m、●やまと防災パークまで約645m ●はじめて購入される方の住宅ローン相談会実施中です

    この物件の価格

    4,380万円~4,480万円

    • 会社名:株式会社富士住宅
    • 住所:神奈川県大和市中央4-3-8 富士住宅ビル
    • 電話:046-263-4355
    • 取引態様:仲介/株式会社富士住宅
    • 免許番号:神奈川県知事 (14) 第 5936 号
    • 不動産団体名:(公社)首都圏不動産公正取引協議会 (公社)神奈川県宅地建物取引業協会 (公社)全国宅地建物取引業保証協会会員
    • 売主:-
    • 売主免許番号:-
    • 関連サイト:-
    資料請求する無料 見学予約する無料

    ※LIFULL HOME'Sの資料請求ページに移動します

    他の物件も見てみる

    条件が似た物件
    • 外観
    • 間取り

    最近見た物件
    • 外観
    • 間取り

    • 完成後1年を経過している未入居物件が掲載されている場合があります。
    • 販売住戸が複数の物件は、全ての住戸に該当しない項目もあります。各問い合わせ先にご確認ください。
    • 「建築条件付き土地」とは、一定期間内(概ね3ヶ月程度)に特定の建設会社と建築請負契約を結ぶことを 条件にしている宅地のことです。
    • 建物の内容は、土地購入者の自由意思により決定可能で、土地売買契約後、 建築請負会社と購入した土地に建設する建物について協議することになります。
    • 期間内に建築請負契約が成立しなければ売買契約は白紙となり、支払済みの金銭はすべて返却されます。
    • 「建築条件付き土地」の価格には、建物価格は含まれません。
    • 「建築条件付き土地」の「建物プラン例」は、土地購入者の設計プランの一例であり、プランの採用可否は任意です。
    • 「土地(建築条件なし)」の「建物プラン例」に関して、そのプラン例は特定の建築請負会社によるもので、当該建築請負会社以外で建てた場合、同様のものが同価格で建てられるとは限りません。また、建築請負会社を特定するものではありません。
    • 消費税および地方消費税の対象となる場合は税込み価格が表示されています。
    • 物件の写真やイラスト、CGなどは実際と異なる場合があります。
    • 市区町村の合併などにより、地図が表示されない場合があります。ご了承ください。
    • お客様が入力する個人情報を含むお問い合わせデータは、LIFULL HOME'Sを経由して当該物件情報の取扱会社に転送されます。
    • 不動産購入の検討、契約にあたってはお客様ご自身が情報を確認し、各会社より十分な説明を受け判断してください。
    • 本ページの掲載内容は変更される場合があります。あらかじめご了承ください。
    ページトップへ