| 所在地 | 神奈川県鎌倉市浄明寺4丁目 |
|---|---|
| 交通 | |
| 価格 | 6280万円~6380万円 月々のお支払い目安
|

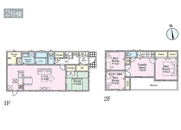
| 間取り | 4LDK |
|---|---|
| 土地面積 | 231.79m2~260.18m2 |
| 建物面積 | 106.40m2~107.74m2 |
| 建物階 | 木造 2階建 |
| 完成時期 |
|





































先着順受付中/販売中
住宅ローン相談会
| 開催日時 | 2026年03月01日~2026年05月31日 |
|---|---|
| 申込期間 | 2026年03月01日~2026年05月31日 |
| 開催場所 | 神奈川県鎌倉市浄明寺4丁目 |
| 交通 | JR横須賀線「鎌倉」駅 バス乗車9分、青砥橋バス停下車 徒歩7分 |
住宅ローンについてご検討の際には、将来を見据えた資金計画を立てることをおすすめしております。当社では、住宅ローンやライフプランに関するご相談を承っており、有資格者を含むスタッフが、お客様一人ひとりに合わせたご提案をさせていただきます。予算づくりから無理のないローン設計、将来の家計見通しまで丁寧にサポート。お気軽にご相談ください。
| 販売戸数 | 1戸 | 最多価格帯 | 6200万円台1戸 6300万円台1戸 他 |
|---|---|---|---|
| 販売価格 |
6280万円~6380万円 月々のお支払い目安
|
||
| 土地面積 | 231.79m2~260.18m2<私道負担面積124m2 私道負担割合1/2> | ||
| 建物面積 | 106.40m2~107.74m2 | ||
| 建物状況 | - | 建物現況 | 新規分譲 |
| 土地状況 | - | 最適用途 | - |
| 建築条件備考 | - | 構造・工法 | - |
| 間取り | 4LDK | 建物階 | 木造 2階建 |
| 建ぺい率 / 容積率 | 建蔽率40% 容積率80% | ||
| 接道 |
|
||
| 駐車場・車庫 |
|
完成時期 |
|
| 引渡し可能時期 |
|
||
| その他諸費用 | - | ||
| こだわり条件 |
|
||
| 備考 |
|
||
| 関連サイト | - | ||
| 所在地 | 神奈川県鎌倉市浄明寺4丁目 | ||
|---|---|---|---|
| 交通 |
|
||
| 土地の権利 | 所有権 | ||
| 総戸数 | 2戸 | ||
| 私道負担 | - | 用途地域 | 第一種低層住居専用地域 |
| 地目 | 宅地 | 施工会社 | - |
| 情報掲載開始日 | 2026年4月3日 | 情報更新日 | 2026年4月9日 |
| 取引条件有効期限 | 2026年4月12日 | 次回更新予定日 | 2026年4月23日 |
頭金、借入期間、金利から毎月の住宅ローンお支払い額の目安を試算します。ご希望の条件に変更してご利用ください。
物件価格の初期値は最低値を設定しております。実際にローン契約をする際は、詳細を不動産会社にご確認ください。
この物件のアピールポイント
■物件の当日予約・当日見学できます! ■住宅ローンのご不安もおまかせ下さい!! くらしを楽しむ世の中を、もっと。 首都圏に広がるME Group 2024年グループ成約2416件の実績 他に建設・住宅設備・保険・IT等「くらし」をテーマに事業を展開
この物件の価格
6280万円~6380万円