横浜市戸塚区上倉田町 新築戸建 全5棟 3号棟

新築仲介一戸建て
所在地 神奈川県横浜市戸塚区上倉田町
交通
  • JR東海道本線「戸塚」駅まで 徒歩 16分
  • JR横須賀線「戸塚」駅まで バス 4分 バス停「上倉田南」まで 徒歩 5分
  • 価格 4,780万円
    • 物件情報
    • 地図・周辺情報
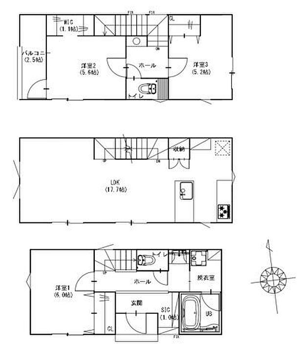
    • 間取り 3LDK
      土地面積 73.13m2(公簿)
      建物面積 94.39m2(壁芯)
      建物階 地上3階
      完成時期
      • 2026年 6月

    住みやすさ

    戸塚の住みやすさの採点分布

             
    ココが住みやすい!
    • 横浜までJRで一駅であり、短時間で到着するため便利。また、ある程度の有名な店が駅にあるため、特段困りはしない。
    • 土地代は安かったです。駅前は、入り組んでわかりづらいものの、ビルや店はそれなりに多く、最低限事足ります。駅前直結で区役所があ…
    • 横浜駅まで近く、その他も都心まで1本で行ける電車が通っているので、住みやすかったです。 駅ビルになんでも揃っているので、便…
    ※住みやすさに関する評点は、単純平均ではなく当社独自の集計方法を加え算出しています。

    販売概要

    販売戸数 1戸 最多価格帯 -
    販売価格 4,780万円
    土地面積 73.13m2(公簿)
    建物面積 94.39m2(壁芯)
    建物状況 新築 建物現況 未完成
    土地状況 - 最適用途 -
    建築条件備考 - 構造・工法
    • 木造
    間取り 3LDK 建物階 地上3階
    建ぺい率 / 容積率 60% / 200%
    接道
    接道状況:
    一方
    接道詳細:
    • 西 (公道 幅員 10.80m 接面 -)
    駐車場・車庫
    • 1台
    • 駐車場料金:無料
    完成時期
    • 2026年 6月
    引渡し可能時期
    • 相談
    その他諸費用 -
    こだわり条件
    • コンロ三口
    • 床下収納
    • ウォークインクローゼット
    • TVモニタ付インターホン
    • カウンターキッチン
    • 浴室乾燥機
    • 食器洗い乾燥機
    • 全居室収納
    • シューズインクローゼット
    • オートバス
    • フラット35・S適合証明書
    • 3階建て
    • 小学校まで1km以内
    • 駐車場あり
    備考
    • 物件種目:戸建
    • 主たる設備概要:-
    • 上水道:公営
    • 下水道:本下水
    • ガス・オール電化:プロパンガス
    • セットバック:無
    • 国土法:不要
    • 建築確認番号:第2025SBC-確01641H号
    • 都市計画:市街化区域
    • 最寄り小学校名:横浜市立倉田小学校
    • 最寄り小学校までの距離:750m
    • 最寄り中学校名:横浜市立豊田中学校
    • 最寄り中学校までの距離:1,300m
    • 近隣の公園までの距離:752m
    • 近隣のスーパーマーケットまでの距離:414m
    • 近隣のドラッグストアまでの距離:450m
    • 近隣のコンビニまでの距離:280m
    • 備考欄:2階リビングにつき陽当たり良好 幹太くんや食洗機、浴室乾燥機など家事ラク設備が豊富なお住まいです。前面道路は10.8m以上あり、お車の出し入れもしやすいです。宅配ボックス完備でご不在時でも安心。「戸塚」駅は通勤通学にも便利。
    関連サイト -

    全体概要

    所在地 神奈川県横浜市戸塚区上倉田町
    交通
    • JR東海道本線「戸塚」駅まで 徒歩 16分
    • JR横須賀線「戸塚」駅まで バス 4分 バス停「上倉田南」まで 徒歩 5分
    土地の権利 所有権
    総戸数 5戸
    私道負担 - 用途地域 第一種住居地域
    地目 宅地 施工会社 -
    情報掲載開始日 2025年10月3日 情報更新日 2026年4月9日
    取引条件有効期限 2026年4月23日 次回更新予定日 -

    ローンシミュレーション

    頭金、借入期間、金利から毎月の住宅ローンお支払い額の目安を試算します。ご希望の条件に変更してご利用ください。

    物件価格の初期値は最低値を設定しております。実際にローン契約をする際は、詳細を不動産会社にご確認ください。

    万円
    万円
    %

    ※頭金や金利、借入期間によって支払う金額は変わります。

    ※物件購入時には、物件価格の他に諸費用がかかります。

    =
    月々のお支払い目安
    元金
    万円/月
    金利
    万円/月
    お支払い目安
    万円/月

    お問い合わせ

    ご覧いただいている物件の住宅ローンや実際にかかる諸費用、資金計画などのご相談ができます。

    不動産会社へのお問い合わせ

    センチュリー21 株式会社ファステストホーム

    この物件のアピールポイント

    2階リビングにつき陽当たり良好 幹太くんや食洗機、浴室乾燥機など家事ラク設備。宅配ボックス完備。

    この物件の価格

    4,780万円

    • 会社名:センチュリー21 株式会社ファステストホーム
    • 住所:神奈川県横浜市泉区中田西1丁目1-26
    • 電話:045-800-1015
    • 交通:ブルーライン「立場」駅
    • 取引態様:媒介
    • 免許番号:神奈川県知事(02)第030210号
    • 不動産団体名:(公社)首都圏不動産公正取引協議会、(公社)全日本不動産協会神奈川県本部
    • 保証協会:(公社)不動産保証協会
    • 売主:-
    • 売主免許番号:-
    • 関連サイト:-

    お電話でのお問い合わせはこちら(取り扱い不動産会社に直接つながります)

    電話をかける(携帯電話・PHSでも可)

    1電話番号を入力する

    0037-634-59121

    お問い合わせ先

    センチュリー21 株式会社ファステストホーム

    2音声案内に従い、以下の番号を入力

    お問い合わせ番号 78677-3194

    不動産会社につながります

    不動産会社のスタッフと
    直接電話で話せます

    店舗スタッフ
    • お客様の電話番号は不動産会社に通知されません。
    • 光IP電話、及びIP電話からはご利用になれません。
    • 定休日や営業時間外にてお電話がつながらない場合は、お問い合わせフォームよりお問い合わせください。
    • 携帯電話からお問合せいただいた方には、ショートメッセージ(SMS)またはLINE通知メッセージによるお問い合わせ内容に関する通知を株式会社LIFULLよりお届けする場合があり、お客様の電話番号は株式会社LIFULLで一定期間保管されます。
    • 株式会社LIFULLの個人情報の取扱い方針に同意のうえ、お電話ください。
    • オーナー様・不動産会社様・現在ご入居中のお客様など、住まい探し以外のご相談はこちらからお問い合わせください。

    他の物件も見てみる

    最近見た物件
    • 外観
    • 間取り

    • 完成後1年を経過している未入居物件が掲載されている場合があります。
    • 販売住戸が複数の物件は、全ての住戸に該当しない項目もあります。各問い合わせ先にご確認ください。
    • 「建築条件付き土地」とは、一定期間内(概ね3ヶ月程度)に特定の建設会社と建築請負契約を結ぶことを 条件にしている宅地のことです。
    • 建物の内容は、土地購入者の自由意思により決定可能で、土地売買契約後、 建築請負会社と購入した土地に建設する建物について協議することになります。
    • 期間内に建築請負契約が成立しなければ売買契約は白紙となり、支払済みの金銭はすべて返却されます。
    • 「建築条件付き土地」の価格には、建物価格は含まれません。
    • 「建築条件付き土地」の「建物プラン例」は、土地購入者の設計プランの一例であり、プランの採用可否は任意です。
    • 「土地(建築条件なし)」の「建物プラン例」に関して、そのプラン例は特定の建築請負会社によるもので、当該建築請負会社以外で建てた場合、同様のものが同価格で建てられるとは限りません。また、建築請負会社を特定するものではありません。
    • 消費税および地方消費税の対象となる場合は税込み価格が表示されています。
    • 物件の写真やイラスト、CGなどは実際と異なる場合があります。
    • 市区町村の合併などにより、地図が表示されない場合があります。ご了承ください。
    • お客様が入力する個人情報を含むお問い合わせデータは、LIFULL HOME'Sを経由して当該物件情報の取扱会社に転送されます。
    • 不動産購入の検討、契約にあたってはお客様ご自身が情報を確認し、各会社より十分な説明を受け判断してください。
    • 本ページの掲載内容は変更される場合があります。あらかじめご了承ください。
    ページトップへ