富士市増川(第3)~飯田の分譲住宅~ クレイドルガーデン【飯田グループホールディングス】
新築仲介一戸建て
| 所在地 |
静岡県富士市増川11-40 |
| 交通 |
岳南電車「岳南江尾」駅 徒歩11分
|
| 価格 |
1,949万円~2,249万円
|
-
※この物件の省エネ性能がわかる「省エネ性能ラベル」です。省エネ性能ラベルは2024年4月以降に建築確認申請した物件などで表示しています。
-
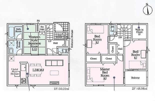
| 間取り |
4LDK・4SLDK |
| 土地面積 |
166.01m2~244.77m2 |
| 建物面積 |
96.38m2~100.03m2 |
| 建物階 |
木造2階建て |
| 完成時期 |
|
販売スケジュール
販売概要
| 販売戸数 |
5戸 | 最多価格帯 |
- |
| 販売価格 |
1,949万円~2,249万円 月々のお支払い目安
|
| 土地面積 |
166.01m2~244.77m2 |
| 建物面積 |
96.38m2~100.03m2 |
| 建物状況 |
- |
建物現況 |
新規分譲
|
| 土地状況 |
- |
最適用途 |
- |
| 建築条件備考 |
- |
構造・工法 |
- |
| 間取り |
4LDK・4SLDK |
建物階 |
木造2階建て |
| 建ぺい率 / 容積率 |
建ぺい率60%・70% 容積率160% |
| 接道 |
北側4~4.4m 西側4m
|
| 駐車場・車庫 |
|
完成時期 |
|
| 引渡し可能時期 |
|
| その他諸費用 |
- |
| こだわり条件 |
- 瑕疵担保付き
- 見学可能
- 浴室乾燥機
- カウンターキッチン
- 床下収納
- 和室
- TVモニタ付インターホン
- 設計住宅性能評価付き
- 建設住宅性能評価書(新築時)
- 角地
- 即入居可
- 駐車場あり
|
| 関連サイト |
- |
省エネ性能
この物件の省エネ性能がわかる「省エネ性能ラベル」です。省エネ性能ラベルは2024年4月以降に建築確認申請した物件などで表示しています。
※「省エネ性能ラベル」は特定の住戸の性能を示し、全ての住戸の性能を示していない場合があります。
- エネルギー消費性能
-
(削減率30%達成)
-
- エネルギー消費性能とは
- 星マークの数が多いほどエネルギー消費性能が高いことを示しています。再エネ設備のない住宅は★0~★4の5段階評価、再エネ設備がある住宅は★0~★6の7段階評価となります。
- 断熱性能
-
5段階 / 7段階
-
- 断熱性能とは
- 数値が高いほど断熱性能が高いことを示しています。「熱の逃げやすさ」と「日射熱の入りやすさ」の2つの点で7段階で評価しています。
- 目安光熱費
-
- /年
-
- 目安光熱費とは
- 一年間にかかる光熱費の目安額です。住宅の省エネ性能と全国一律の燃料等の単価を用いて、一定の条件下で自動算出したもので、実際にかかる光熱費とは異なります。
全体概要
| 所在地 |
静岡県富士市増川11-40 |
| 交通 |
|
| 土地の権利 |
所有権 |
| 総戸数 |
5戸 |
| 私道負担 |
- |
用途地域 |
第一種住居地域 |
| 地目 |
宅地
|
施工会社 |
- |
| 情報掲載開始日 |
2026年3月31日 |
情報更新日 |
2026年5月19日 |
| 取引条件有効期限 |
2027年3月31日 |
次回更新予定日 |
2026年6月2日 |
ローンシミュレーション
頭金、借入期間、金利から毎月の住宅ローンお支払い額の目安を試算します。ご希望の条件に変更してご利用ください。
物件価格の初期値は最低値を設定しております。実際にローン契約をする際は、詳細を不動産会社にご確認ください。
お問い合わせ
ご覧いただいている物件の住宅ローンや実際にかかる諸費用、資金計画などのご相談ができます。
不動産会社へのお問い合わせ
-
ホームトレードセンター(株)静岡営業所【飯田グループホールディングス】
-
- 会社名:飯田グループホールディングス ホームトレードセンター株式会社 静岡営業所
- 住所:静岡県静岡市葵区南安倍1-6-10 JSオフィスビル1階
- 電話:054-685-8858
※物件のお問い合わせは0800-170-8808 - 取引態様:ホームトレードセンター(株)静岡営業所/仲介
- 免許番号:建設大臣 (3) 第 8044 号
- 不動産団体名:(公社)静岡県宅地建物取引業協会
- 売主:-
- 売主免許番号:-
- 関連サイト:-
他の物件も見てみる
- 完成後1年を経過している未入居物件が掲載されている場合があります。
- 販売住戸が複数の物件は、全ての住戸に該当しない項目もあります。各問い合わせ先にご確認ください。
- 「建築条件付き土地」とは、一定期間内(概ね3ヶ月程度)に特定の建設会社と建築請負契約を結ぶことを 条件にしている宅地のことです。
- 建物の内容は、土地購入者の自由意思により決定可能で、土地売買契約後、 建築請負会社と購入した土地に建設する建物について協議することになります。
- 期間内に建築請負契約が成立しなければ売買契約は白紙となり、支払済みの金銭はすべて返却されます。
- 「建築条件付き土地」の価格には、建物価格は含まれません。
- 「建築条件付き土地」の「建物プラン例」は、土地購入者の設計プランの一例であり、プランの採用可否は任意です。
- 「土地(建築条件なし)」の「建物プラン例」に関して、そのプラン例は特定の建築請負会社によるもので、当該建築請負会社以外で建てた場合、同様のものが同価格で建てられるとは限りません。また、建築請負会社を特定するものではありません。
- 消費税および地方消費税の対象となる場合は税込み価格が表示されています。
- 物件の写真やイラスト、CGなどは実際と異なる場合があります。
- 市区町村の合併などにより、地図が表示されない場合があります。ご了承ください。
- お客様が入力する個人情報を含むお問い合わせデータは、LIFULL HOME'Sを経由して当該物件情報の取扱会社に転送されます。
- 不動産購入の検討、契約にあたってはお客様ご自身が情報を確認し、各会社より十分な説明を受け判断してください。
- 本ページの掲載内容は変更される場合があります。あらかじめご了承ください。
この物件のアピールポイント
■各棟2~4台の駐車場を完備した50~74坪のゆとりある敷地面積です ■岳南鉄道「岳南江尾」駅徒歩10分の立地です ■嬉しい仕様・設備がたくさん! 省エネ基準の設備、TVモニター付きインターホン、広々LDK、浴室暖房乾燥機、使い勝手の良いシステムキッチン etc. ■安心・安全のおすみつき! 「設計」「建設」の【住宅性能評価】において耐震・劣化他 4分野で最高等級を全棟取得しています。 住宅ローンや地震保険の優遇も受けられます!