町田市玉川学園5丁目6期 新築戸建 全2棟 2号棟

新築仲介一戸建て
所在地 東京都町田市玉川学園5丁目
交通
  • 小田急小田原線「玉川学園前」駅まで 徒歩 12分
  • 小田急線鶴川駅から車で3km
  • 価格 5,599万円
    • 物件情報
    • 地図・周辺情報
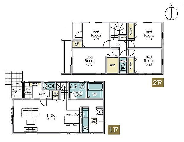
    • 間取り 4LDK
      土地面積 125.67m2
      建物面積 100.48m2
      建物階 地上2階
      完成時期
      • 2026年 6月
    • ■新しい暮らしが始まる場所で、家族の絆を深める
    • ■まずは一度ご覧ください
    • ■優雅なラインが、毎日を引き立てます
    • 病院 550m 加藤医院
    • スーパー 1000m スーパー三和 玉川学園店
    • 駅 960m 小田急線「玉川学園前」駅
    • 小学校 1100m 町田市立町田第五小学校
    • 中学校 2400m 町田市立南大谷中学校
    • 幼稚園・保育園 1300m 玉川中央幼稚園

    住みやすさ

    玉川学園前の住みやすさの採点分布

           
    ココが住みやすい!
    • 緑も多く、住宅の街並みも揃っており、スーパーやドラックストア飲食店なども近隣にあり、便利で環境の良い住みやすい街です。電動自…
    • 閑静な住宅街が広がっており小学校から大学まである大型の総合学園が隣接し他にも大学があり学生は多いです。お年寄りも多いですがフ…
    • 駅前にはスーパーの他に商店街もあり、飲食店が多くあります。夏には駅の北口・南口それぞれの商店街主催のお祭りがあり、そこで知っ…
    ※住みやすさに関する評点は、単純平均ではなく当社独自の集計方法を加え算出しています。

    販売概要

    販売戸数 1戸 最多価格帯 -
    販売価格 5,599万円
    土地面積 125.67m2
    建物面積 100.48m2
    建物状況 新築 建物現況 未完成
    土地状況 - 最適用途 -
    建築条件備考 - 構造・工法
    • 木造
    間取り 4LDK 建物階 地上2階
    建ぺい率 / 容積率 40% / 80%
    接道
    接道状況:
    一方
    接道詳細:
    • 西 (公道 幅員 4.00m 接面 -)
    駐車場・車庫
    • 2台
    • 駐車場料金:無料
    完成時期
    • 2026年 6月
    引渡し可能時期
    • 2026年6月下旬 期日指定
    その他諸費用 -
    こだわり条件
    • 床下収納
    • ウォークインクローゼット
    • TVモニタ付インターホン
    • 浴室乾燥機
    • 食器洗い乾燥機
    • 全居室収納
    • BELS/省エネ基準適合認定建築物
    • 駐車場2台以上
    • 低層住宅地
    備考
    • 物件種目:戸建
    • 主たる設備概要:-
    • 上水道:公営
    • 下水道:本下水
    • ガス・オール電化:都市ガス
    • セットバック:無
    • 国土法:不要
    • 法令上の制限その他:法第22条区域 宅地造成法 景観法 都市再生特別措置法 特定都市河川浸水被害対策法 敷地面積120平米以上 道路斜線制限 高さ10メートル以下 日影による中高層の建物制限3h-2h1.5メートル
    • 建築確認番号:第25UDI1W建11273号
    • 都市計画:市街化区域
    関連サイト -

    全体概要

    所在地 東京都町田市玉川学園5丁目
    交通
    • 小田急小田原線「玉川学園前」駅まで 徒歩 12分
    • 小田急線鶴川駅から車で3km
    土地の権利 所有権
    総戸数 2戸
    私道負担 - 用途地域 第一種低層住居専用地域
    地目 宅地 施工会社 -
    情報掲載開始日 2026年3月30日 情報更新日 2026年4月12日
    取引条件有効期限 2026年4月26日 次回更新予定日 -

    ローンシミュレーション

    頭金、借入期間、金利から毎月の住宅ローンお支払い額の目安を試算します。ご希望の条件に変更してご利用ください。

    物件価格の初期値は最低値を設定しております。実際にローン契約をする際は、詳細を不動産会社にご確認ください。

    万円
    万円
    %

    ※頭金や金利、借入期間によって支払う金額は変わります。

    ※物件購入時には、物件価格の他に諸費用がかかります。

    =
    月々のお支払い目安
    元金
    万円/月
    金利
    万円/月
    お支払い目安
    万円/月

    お問い合わせ

    ご覧いただいている物件の住宅ローンや実際にかかる諸費用、資金計画などのご相談ができます。

    不動産会社へのお問い合わせ

    エムイーPLUS多摩株式会社

    この物件の価格

    5,599万円

    • 会社名:エムイーPLUS多摩株式会社
    • 住所:東京都国分寺市南町2丁目14-3 ユニエトワール国分寺1階
    • 電話:042-312-4722
    • 交通:JR中央線「国分寺」駅まで 徒歩 6分
    • 取引態様:媒介
    • 免許番号:東京都知事(01)第109973号
    • 不動産団体名:(公社)首都圏不動産公正取引協議会、(公社)全日本不動産協会東京都本部
    • 保証協会:(公社)全国宅地建物取引業保証協会
    • 売主:-
    • 売主免許番号:-
    • 関連サイト:-

    お電話でのお問い合わせはこちら(取り扱い不動産会社に直接つながります)

    電話をかける(携帯電話・PHSでも可)

    1電話番号を入力する

    0037-619-87478

    お問い合わせ先

    エムイーPLUS多摩株式会社

    2音声案内に従い、以下の番号を入力

    お問い合わせ番号 49456-3191

    不動産会社につながります

    不動産会社のスタッフと
    直接電話で話せます

    店舗スタッフ
    • お客様の電話番号は不動産会社に通知されません。
    • 光IP電話、及びIP電話からはご利用になれません。
    • 定休日や営業時間外にてお電話がつながらない場合は、お問い合わせフォームよりお問い合わせください。
    • 携帯電話からお問合せいただいた方には、ショートメッセージ(SMS)またはLINE通知メッセージによるお問い合わせ内容に関する通知を株式会社LIFULLよりお届けする場合があり、お客様の電話番号は株式会社LIFULLで一定期間保管されます。
    • 株式会社LIFULLの個人情報の取扱い方針に同意のうえ、お電話ください。
    • オーナー様・不動産会社様・現在ご入居中のお客様など、住まい探し以外のご相談はこちらからお問い合わせください。

    他の物件も見てみる

    条件が似た物件
    • 外観
    • 間取り

    • 完成後1年を経過している未入居物件が掲載されている場合があります。
    • 販売住戸が複数の物件は、全ての住戸に該当しない項目もあります。各問い合わせ先にご確認ください。
    • 「建築条件付き土地」とは、一定期間内(概ね3ヶ月程度)に特定の建設会社と建築請負契約を結ぶことを 条件にしている宅地のことです。
    • 建物の内容は、土地購入者の自由意思により決定可能で、土地売買契約後、 建築請負会社と購入した土地に建設する建物について協議することになります。
    • 期間内に建築請負契約が成立しなければ売買契約は白紙となり、支払済みの金銭はすべて返却されます。
    • 「建築条件付き土地」の価格には、建物価格は含まれません。
    • 「建築条件付き土地」の「建物プラン例」は、土地購入者の設計プランの一例であり、プランの採用可否は任意です。
    • 「土地(建築条件なし)」の「建物プラン例」に関して、そのプラン例は特定の建築請負会社によるもので、当該建築請負会社以外で建てた場合、同様のものが同価格で建てられるとは限りません。また、建築請負会社を特定するものではありません。
    • 消費税および地方消費税の対象となる場合は税込み価格が表示されています。
    • 物件の写真やイラスト、CGなどは実際と異なる場合があります。
    • 市区町村の合併などにより、地図が表示されない場合があります。ご了承ください。
    • お客様が入力する個人情報を含むお問い合わせデータは、LIFULL HOME'Sを経由して当該物件情報の取扱会社に転送されます。
    • 不動産購入の検討、契約にあたってはお客様ご自身が情報を確認し、各会社より十分な説明を受け判断してください。
    • 本ページの掲載内容は変更される場合があります。あらかじめご了承ください。
    ページトップへ