KEIAI LIGARE  佐倉市王子台11期

新築仲介一戸建て
所在地 千葉県佐倉市王子台1
交通
  • 京成本線「京成臼井」駅 徒歩8分
  • 山万ユーカリが丘線「地区センター」駅 徒歩44分
  • 価格 4298万円
    資料請求する無料 見学予約する無料

    ※LIFULL HOME'Sの資料請求ページに移動します

    お気に入りに追加
    • 物件情報
    • 地図・周辺情報
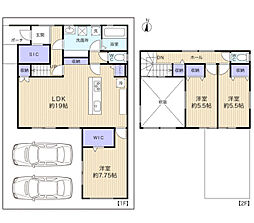
    • 間取り 4LDK
      土地面積 126.90m2
      建物面積 104.76m2
      建物階 木造アスファルトシングル材葺2階建て
      完成時期
      • 2026年3月予定
    • 【現地外観写真】当物件のご案内につきましては、営業スタッフが丁寧に御対応します♪休日、お仕事帰りなど、ご都合に合わせていつでもご案内いたします♪周辺環境と併せて、実際に現地をご確認ください♪
    • 【現地外観写真】この風景が暮らしの一部に。毎日がイキイキと笑顔溢れる暮らしの始まりです♪ぜひ一度この見晴らしを体感してみませんか♪ご都合の良い時 自由に外観ご覧になれます。ご内見ご希望の際はぜひお気軽にご連絡下さい♪
    • 【前面道路含む現地写真】閑静な住宅地で子育て家族にピッタリ。毎日のお散歩も快適な緑に恵まれたエリアで、自然に包まれた穏やかな暮らしを実現するための、ゆとりある住環境が整っています。緑の潤いを感じながらホッと生活できそう。
    • 【区画図】◎駐車スペース2台分のゆとりあるスペース♪
◎角地につき陽当たり・風通し抜群♪
    • 当物件のご案内につきましては、営業スタッフが丁寧に御対応します♪休日、お仕事帰りなど、ご都合に合わせていつでもご案内いたします♪周辺環境と併せて、実際に現地をご確認ください♪
    • 【【ウォークインクローゼット】】お子様との思い出もたっぷりしまえるウォークインクローゼット。衣類だけでなく、鞄などの小物からスーツケースやレジャー用品などの大きな物までたっぷり収納出来ます。
    • 【【カースペース2台以上】】カースペース2台分ございますので、家族分の自転車を駐輪したり、急な来客用の駐車スペースとしてもお使いいただけます。
    • 【【システムキッチン】】見栄えもよくお手入れもスムーズに出来ます。豊富な収納力もございますので、キッチンスペースをスッキリとお使い頂けそうです。
    • 【【角地】】それぞれの方角から光が入ってくるため日当たりがよく開放感が得られます。また、人目に付きやすいため、家を開けることが多い家族にとって防犯対策にも有効です。
    • 【【全居室フローリング】】カーペットや畳のようにほこりや汚れが繊維に入り込むことがないので、とても掃除やお手入れがしやすいです。子供たちの食べこぼしなどで床が汚れてしまった場合も手間がかかりません!
    • 【【TVモニター付きインターホン】】録画機能もあり、どのような人が何時に来訪されたのかが分かります。防犯上はもちろん、お届け物などの把握にも便利です。ライトが付いているので、夜間でも安心です。
    • 【玄関】散らかりがちな玄関もスッキリと保てる玄関収納は、家の中に入る時一番最初に目に付く場所だからこだわりたいですよね!木目調の落ち着いた雰囲気の色目が、お部屋の雰囲気をそのまま表している家の顔です。
    • 【リビング】南向きのLDKは採光も明るく風通し共に良好です。対面キッチンからはLDが見渡せるのでお子様が遊んでいる様子を見守りながら料理できます。また会話をしながらの調理も可能ですので家族との交流も深まりますね♪
    • 【キッチン】キッチンで作ったお料理もカウンター越しで受け渡しが可能なので、ママの家事の負担も軽減されますね♪キッチンとダイニングが1つの空間のようになりますので、部屋が広々とした感じを受けます。
    • 【リビング以外の居室】お子様の自立性を与えてあげられる子供部屋はお子様にとって大変重な役割があります。子供一人で過ごす空間を与えることで、宿題や勉強時間も自然と増えまた自ら部屋の片付けや掃除なども促すことに繋がります。
    • 【その他】階段などに手すりを取り付けると、転倒・転落の防止はもちろん移動もラクになります。もしものことが起こる前に、日常生活がよりラクになりますので早めに備えておきたいものですね♪
    • 【浴室】お子様と一緒に入ってもゆったり寛げる1坪タイプのシステムバス。水をはじくのが早く乾きやすくカビの発生を防ぐドライ床&標準仕様簡単ヘアキャッチャーも付いていますので一番最初に味わう【綺麗】を長く保てます
    • 佐倉市立間野台小学校(約750m)
    • 佐倉市立臼井中学校(約700m)
    • 京成本線「京成臼井」駅(約600m)
    • 佐倉市立臼井保育園(約700m)
    • 京成本線「京成臼井」駅徒歩8分
    • 南向きのLDKは採光も明るく風通し共に良好です。対面キッチンからはLDが見渡せるのでお子様が遊んでいる様子を見守りながら料理できます。また会話をしながらの調理も可能ですので家族との交流も深まりますね♪
    • キッチンで作ったお料理もカウンター越しで受け渡しが可能なので、ママの家事の負担も軽減されますね♪キッチンとダイニングが1つの空間のようになりますので、部屋が広々とした感じを受けます。
    • 閑静な住宅地で子育て家族にピッタリ。毎日のお散歩も快適な緑に恵まれたエリアで、自然に包まれた穏やかな暮らしを実現するための、ゆとりある住環境が整っています。緑の潤いを感じながらホッと生活できそう。
    • 各居室に収納を完備しております。収納が豊富な住宅は居室空間がしっかりと使えるので暮らしやすさが断然に上がります。荷物を気にすることなく家具の配置をお好み通りにできるのも大きな魅力です。

    住みやすさ

    京成臼井の住みやすさの採点分布

         
    ココが住みやすい!
    • 駅からも徒歩15分程度で周りには飲食店やスーパーや病院などあり不便ではありません。車を少し走らせると色んな地域へ行けるので飽…
    • 3世代同居ですが、子供の学校も近くにあり、親世代は介護施設などが充実していて、住みやすい町だと思います。
    • 駅から徒歩圏内で土地も安い。分譲していた場所なので親の世代が同世代で子供の友達も多かった。子どもを育てるには良い。また学校や…
    ※住みやすさに関する評点は、単純平均ではなく当社独自の集計方法を加え算出しています。
    お気に入りに追加 この物件の資料請求無料 見学予約する無料

    ※LIFULL HOME'Sの資料請求ページに移動します

    販売スケジュール

    販売中

    販売概要

    販売戸数 1戸 最多価格帯 -
    販売価格 4298万円
    土地面積 126.9m2
    建物面積 104.76m2
    建物状況 - 建物現況 新規分譲
    土地状況 - 最適用途 -
    建築条件備考 - 構造・工法 -
    間取り 4LDK 建物階 木造アスファルトシングル材葺2階建て
    建ぺい率 / 容積率 建ぺい率60%、容積率200%
    接道
    道路幅:4m~5.9m、アスファルト舗装
    駐車場・車庫
    • 2台
    完成時期
    • 2026年3月予定
    引渡し可能時期
    • 2026年4月予定
    その他諸費用 -
    こだわり条件
    • 瑕疵担保付き
    • 見学可能
    • 浴室乾燥機
    • カウンターキッチン
    • 床下収納
    • ウォークインクローゼット
    • バリアフリー
    • TVモニタ付インターホン
    • 角地
    • 駐車場あり
    備考
    • 物件種目:戸建
    • 主たる設備概要:東京電力、都市ガス、公営水道、公共下水
    • 建築確認番号:第25UDI1W建04625号
    • 備考欄:【その他制限事項】
      景観法による規制有、航空法による規制有、宅地造成工事規制区域、日影制限有

      【イベント情報】
      (事前に必ずお問い合わせください)
      ■完成物件はいつでも内観可能☆
        『お仕事帰りに見学したい!』
        『本日物件を見学したい!』など…
       ご希望がございましたらご要望に沿った
       スケジュールでご案内させて頂きます。

       未完成物件は現地の状況確認、
       似たような近隣の完成物件をご案内可能です。
       設備・仕様などをご確認ください♪

      ■ご予約方法
       鍵の手配が必要な場合がありますので、
       お早目にご連絡をいただけるとご案内がスムーズです。

      ■住宅ローンの事ならお任せください!☆提携の金融機関多数☆
       複数の提携ローンの中から、お客様のご希望に合った
      住宅ローンをご提案いたします♪
        『住宅ローンが通るか心配・・・ 』
        『頭金0円だと購入が難しいの?』
        『転職して間もないから・・・』など、
       不安やお悩みはまず弊社にご相談ください!

      ■未公開情報や新規公開予定の物件も
       併せてご見学の際に資料を用意致します。
       お探しのご希望をお聞かせ下さい!

       見学・相談無料!お気軽にお問い合わせください♪

      ┏━━┓       
      ┃田田┣━┓
      ┃田田┃田┃ホームトレードセンター八千代営業所
      ┃田田┃田┃

      ▽▲▽▲▽▲▽▲▽▲▽▲▽▲▽▲▽▲▽▲▽▲▽▲
    関連サイト -

    全体概要

    所在地 千葉県佐倉市王子台1
    交通
    • 京成本線「京成臼井」駅 徒歩8分
    • 山万ユーカリが丘線「地区センター」駅 徒歩44分
    • 山万ユーカリが丘線「女子大」駅 徒歩50分
    土地の権利 所有権
    総戸数 2戸
    私道負担 - 用途地域 第一種住居地域
    地目 宅地 施工会社 -
    情報掲載開始日 2026年3月25日 情報更新日 2026年3月25日
    取引条件有効期限 2029年11月1日 次回更新予定日 随時

    ローンシミュレーション

    頭金、借入期間、金利から毎月の住宅ローンお支払い額の目安を試算します。ご希望の条件に変更してご利用ください。

    物件価格の初期値は最低値を設定しております。実際にローン契約をする際は、詳細を不動産会社にご確認ください。

    万円
    万円
    %

    ※頭金や金利、借入期間によって支払う金額は変わります。

    ※物件購入時には、物件価格の他に諸費用がかかります。

    =
    月々のお支払い目安
    元金
    万円/月
    金利
    万円/月
    お支払い目安
    万円/月

    お問い合わせ

    ご覧いただいている物件の住宅ローンや実際にかかる諸費用、資金計画などのご相談ができます。

    不動産会社へのお問い合わせ

    ホームトレードセンター(株)八千代営業所

    この物件のアピールポイント

    ■□本日ご案内可能□■ 家族みんなが集まるLDKは広々とした18帖超え! ~京成松本線「京成臼井」駅徒歩8分~ ■間野台小学校徒歩10分 臼井中学校徒歩9分 ■臼井保育園徒歩9分 臼井たんぽぽ幼稚園徒歩1分 ■イオン徒歩9分 セブンイレブン徒歩3分 ○たっぷりの衣類を収納可能!WIC付 ○駐車スペース並列で2台可能 ○角地につき陽当たり・風通し良好 ○主寝室10帖!多目的に利用できるフリースペース有

    この物件の価格

    4298万円

    • 会社名:ホームトレードセンター株式会社 八千代営業所
    • 住所:千葉県八千代市村上南3-5-3 ネクサス村上1階102
    • 電話:047-411-8844
    • 取引態様:ホームトレードセンター(株)八千代営業所<仲介>
    • 免許番号:国土交通大臣 (4) 第 8044 号
    • 不動産団体名:(一社)千葉県宅地建物取引業協会
    • 売主:-
    • 売主免許番号:-
    • 関連サイト:-
    資料請求する無料 見学予約する無料

    ※LIFULL HOME'Sの資料請求ページに移動します

    他の物件も見てみる

    条件が似た物件
    • 外観
    • 間取り

    • 完成後1年を経過している未入居物件が掲載されている場合があります。
    • 販売住戸が複数の物件は、全ての住戸に該当しない項目もあります。各問い合わせ先にご確認ください。
    • 「建築条件付き土地」とは、一定期間内(概ね3ヶ月程度)に特定の建設会社と建築請負契約を結ぶことを 条件にしている宅地のことです。
    • 建物の内容は、土地購入者の自由意思により決定可能で、土地売買契約後、 建築請負会社と購入した土地に建設する建物について協議することになります。
    • 期間内に建築請負契約が成立しなければ売買契約は白紙となり、支払済みの金銭はすべて返却されます。
    • 「建築条件付き土地」の価格には、建物価格は含まれません。
    • 「建築条件付き土地」の「建物プラン例」は、土地購入者の設計プランの一例であり、プランの採用可否は任意です。
    • 「土地(建築条件なし)」の「建物プラン例」に関して、そのプラン例は特定の建築請負会社によるもので、当該建築請負会社以外で建てた場合、同様のものが同価格で建てられるとは限りません。また、建築請負会社を特定するものではありません。
    • 消費税および地方消費税の対象となる場合は税込み価格が表示されています。
    • 物件の写真やイラスト、CGなどは実際と異なる場合があります。
    • 市区町村の合併などにより、地図が表示されない場合があります。ご了承ください。
    • お客様が入力する個人情報を含むお問い合わせデータは、LIFULL HOME'Sを経由して当該物件情報の取扱会社に転送されます。
    • 不動産購入の検討、契約にあたってはお客様ご自身が情報を確認し、各会社より十分な説明を受け判断してください。
    • 本ページの掲載内容は変更される場合があります。あらかじめご了承ください。
    ページトップへ