溝の口駅 徒歩17分 ◆4/27(月)~5/10(日)は見学会♪ ◆現地見学予約はフリーダイヤルまで!

新築仲介一戸建て
所在地 神奈川県川崎市高津区溝口6丁目
交通
  • 東急田園都市線「高津」駅 徒歩14分
  • JR南武線「武蔵溝ノ口」駅 徒歩17分
  • 価格 6490万円~7190万円
    資料請求する無料 見学予約する無料

    ※LIFULL HOME'Sの資料請求ページに移動します

    お気に入りに追加
    • 物件情報
    • 地図・周辺情報
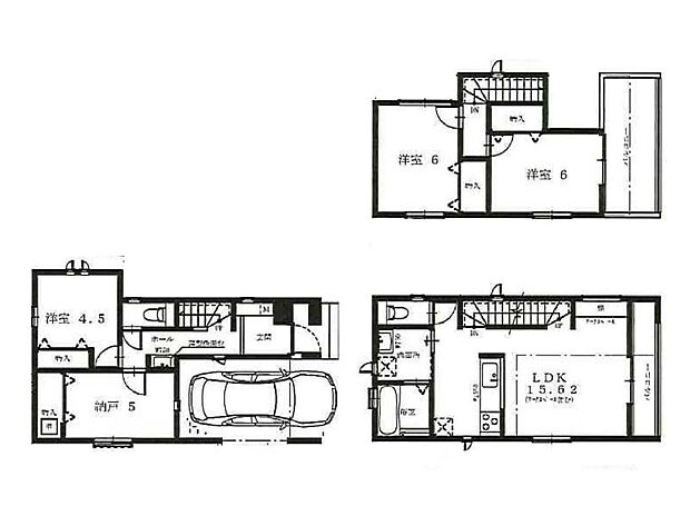
    • 間取り 2LDK+2S~3LDK+S
      土地面積 65.53m2~79.78m2
      建物面積 86.10m2~104.12m2
      建物階 木造 3階建 
      完成時期
      • 2026年08月
    • 【前面道路含む現地写真】ターミナル駅「溝の口」駅も利用可能な好立地!都会の中で静かな日常を送る事が出来る住環境です。
    • 【前面道路含む現地写真】全10棟の大型分譲地!同世代の方も多く、生活しやすい住環境です。
    • 【前面道路含む現地写真】大通りから1本入った住宅地。敷地と道路に高低差も無く、お車の駐車もしやすい住宅です。
    • 【その他】【類似外観同仕様】施工例のため分譲中の建物とは外壁、屋根開口部等の形状・仕様が異なります
    • 【その他】【類似外観同仕様】施工例のため分譲中の建物とは外壁、屋根開口部等の形状・仕様が異なります
    • 完成予想イメージ:今回6棟分譲、4部屋完備の大型3階建て住宅!デザインだけでなくZEH水準の性能を兼ね備えた新築住宅です。
    • 【地盤調査・改良 】建築工事を行う前に地盤調査を行います。地質や強度、安定性、水分状態などを調査・分析して、必要に応じて適切な地盤改良を施し、構造物の安定性を確保します
    • 【ベタ基礎 】大きな面で家の重みを支え地震に強いのが特徴です。また床下の地面をすべてコンクリートで覆うので、湿気が建物に伝わりにくく住宅の木材の腐食等の心配も減ります。
    • 【基礎パッキン 】基礎と土台の間に基礎パッキンを入れることにより分離させ、土台からの湿気を基礎へ浸透するのを防ぎます。また、床下換気が可能です。
    • 【その他内観】床暖房 足元をじんわり温めてくれる床暖房.空気や肌を乾燥させることが少なく、ホコリや花粉などを舞い上げることもないので空気をクリーンに保ちます。
    • 【その他内観】食洗機 利用者が増えているのはメリットが多いから。時間の節約、手が荒れない、水道代の節約、高温度で洗うので油汚れもしっかり落とせる。まさに理想家電。
    • 【その他内観】3口以上コンロ 同時並行で調理しやすい3口コンロです。お料理を同時にすすめることができ、料理時間の短縮にもなります。
    • 【その他内観】TVモニター付インターホン モニター付インターホンが標準仕様です。不安になりがちな防犯面。目で確認できるからあんしんです。
    • 【その他内観】浴室乾燥機 お風呂場そのものを乾燥機にしてしまう便利な機能。梅雨時期や花粉の時期に助かる。冬の時期には暖房機能がヒートショックを防ぐ
    • 【その他内観】オートバス ワンタッチでお湯張りや保温が可能なフルオートバス。保温機能でいつでも快適に入浴が可能です。
    • 溝の口駅北口ロータリー(約1,300m・徒歩17分)
    • ノクティ1・2(約1,400m・徒歩18分)
    • ライフ 溝口店(約550m・徒歩7分)
    • ドン・キホーテ溝ノ口駅前店(約1,400m・徒歩18分)
    • 高津図書館(約1,000m・徒歩13分)
    • ファミリーマートMG溝口六丁目店(約190m・徒歩3分)
    • B号棟 間取図
    • D号棟 間取図
    • E号棟 間取図
    • 案内図
    • 全10棟 今回6棟分譲!敷地と道路に高低差の無い大型分譲地です。
    • A号棟 間取図

    住みやすさ

    高津の住みやすさの採点分布

         
    ココが住みやすい!
    • 東急田園都市線・大井町線・南武線が利用でき、渋谷・二子玉川・自由が丘・川崎などの主要エリアへ30分以内でアクセス可能です。都…
    • 図書館が近くにあり 買い物の物価が手頃で スーパーが近くに何軒もあり 都心にも近いのが良いです
    • 渋谷まで20分程度で出られますし、周辺駅の溝の口や二子玉川も、大変栄えていて便利です。駅の目の前に東急ストアもあるので、買い…
    ※住みやすさに関する評点は、単純平均ではなく当社独自の集計方法を加え算出しています。
    お気に入りに追加 この物件の資料請求無料 見学予約する無料

    ※LIFULL HOME'Sの資料請求ページに移動します

    販売スケジュール

    販売中

    販売概要

    販売戸数 5戸 最多価格帯 6400万円台1戸 7100万円台3戸 6600万円台1戸 他
    販売価格 6490万円~7190万円
    土地面積 65.53m2~79.78m2
    建物面積 86.1m2~104.12m2
    建物状況 - 建物現況 新規分譲
    土地状況 - 最適用途 -
    建築条件備考 - 構造・工法 -
    間取り 2LDK+2S~3LDK+S 建物階 木造 3階建 
    建ぺい率 / 容積率 建蔽率60% 容積率160%
    接道
    A号棟:東2.6m/D号棟:東4m/B号棟:東4m 北2.6m/F号棟:東4m/E号棟:東4m
    駐車場・車庫
    • 1台
    完成時期
    • 2026年08月
    引渡し可能時期
    • 202609上旬
    その他諸費用 -
    こだわり条件
    • 見学可能
    • 浴室乾燥機
    • 浴室暖房
    • カウンターキッチン
    • 食器洗い乾燥機
    • 床暖房
    • 床下収納
    • TVモニタ付インターホン
    • 3階建て
    • 総戸数・総区画数が10以上〜30未満
    • 設計住宅性能評価付き
    • 建設住宅性能評価書(新築時)
    • 角地
    • 最寄り駅が始発駅
    • オンライン相談可
    • 駐車場あり
    備考
    • 物件種目:戸建
    • 主たる設備概要:都市ガス/公営水道/公共下水
    • 国土法:届出不要
    • 建築確認番号:第HPA-26-01575-1
    • 売主:-
    • 都市計画:市街化区域
    • 備考欄:景観法による規制有、宅地造成工事規制区域、高度地区、準防火地域、高さ最高限度有、日影制限有、B号棟:建物面積のうち車庫部分面積9.93m2含む、C号棟:建物面積のうち車庫部分面積9.93m2含む、E号棟:建物面積のうち車庫部分面積15.73m2含む、F号棟:建物面積のうち車庫部分面積11.59m2含む、C号棟・D号棟・E号棟:敷地面積のうち協定地部分含む、D号棟:敷地面積のうち路地状敷地面積含む


      ●現地見学時のタイムスケジュール
      お客様のご希望に合わせた所要時間でご対応いたします。なお、弊社で対応できる無料サービスは下記の通りです。
      問合せ時に「時間がないので現地見学のみで」や「現地見学とライフプランのみ希望」など、お気軽に申し付け下さい。
      (1)問合せ物件の見学:所要時間は30分程度
      (2)周辺販売中物件の見学:所要時間は1物件ごとに20~30分程度
      (3)周辺環境(スーパー、駅までの道のり)のご案内:所要時間20分程度
      (4)住宅ローン12銀行比較パッケージ(弊社窓口で、各銀行の審査を一括で行います)所要時間:30分程度
      (5)ライフプランシュミレーション(一生涯のお金の計算書を無料で作成します)所要時間:1時間程度

      ●FP住宅相談ネットワークとは:ファイナンシャルプランナーが経営する住宅販売会社です。あんしんマイホームはそのグループの川崎相談窓口です。いずれも地元密着体制で未公開物件を数多く取扱いしているのが特徴です。

      ●その他、無料サポートキャンペーン中!
      (1)はじめの一歩セミナー:「探し始めの方」や「今すぐではないけど、いずれ探そうと思っている方」向けの、住宅購入初心者セミナーです。毎月1回開催しています。

      (2)契約前の物件調査(気に入った物件が見つかったら申し付け下さい)
      不動産は契約後に返品はできません。住んでから後悔しないように、購入予定物件の周辺住民に聞き込み調査を行ってご報告致します。「近所トラブルが起きていないか」「変わった住人はいないか」「以前には何があったか」「水害やがけ崩れの履歴がないか」など、気になることは何でも無料で調査致します。プロフェッショナルとして後悔させない不動産取引をお約束いたします。
    関連サイト -

    全体概要

    所在地 神奈川県川崎市高津区溝口6丁目
    交通
    • 東急田園都市線「高津」駅 徒歩14分
    • JR南武線「武蔵溝ノ口」駅 徒歩17分
    • 東急大井町線「溝の口」駅 徒歩17分
    土地の権利 所有権
    総戸数 10戸
    私道負担 - 用途地域 第一種住居地域
    地目 宅地 施工会社 -
    情報掲載開始日 2026年3月24日 情報更新日 2026年5月9日
    取引条件有効期限 2026年5月12日 次回更新予定日 2026年5月23日

    ローンシミュレーション

    頭金、借入期間、金利から毎月の住宅ローンお支払い額の目安を試算します。ご希望の条件に変更してご利用ください。

    物件価格の初期値は最低値を設定しております。実際にローン契約をする際は、詳細を不動産会社にご確認ください。

    万円
    万円
    %

    ※頭金や金利、借入期間によって支払う金額は変わります。

    ※物件購入時には、物件価格の他に諸費用がかかります。

    =
    月々のお支払い目安
    元金
    万円/月
    金利
    万円/月
    お支払い目安
    万円/月

    お問い合わせ

    ご覧いただいている物件の住宅ローンや実際にかかる諸費用、資金計画などのご相談ができます。

    不動産会社へのお問い合わせ

    あんしんマイホーム

    この物件のアピールポイント

    ◆商業施設が整う人気の「溝の口」駅まで徒歩圏内!豊かな自然と利便性を兼ね備えた住宅です。 ◆周辺にはお買物施設なども充実しており、日常の生活にも困らない便利な立地です。 ◆(株)あんしんマイホームでは当日の現地見学、モデルハウスのご案内も可能です!お気軽にお問合せください!

    この物件の価格

    6490万円~7190万円

    • 会社名:株式会社あんしんマイホーム 営業3課
    • 住所:神奈川県川崎市高津区久本3丁目13番10号
    • 電話:044-820-2318
    • 取引態様:FP住宅相談ネットワーク(株)あんしんマイホーム / 仲介
    • 免許番号:神奈川県知事 (2) 第 27909 号
    • 不動産団体名:(公社)神奈川県宅地建物取引業協会
    • 売主:-
    • 売主免許番号:-
    • 関連サイト:-
    資料請求する無料 見学予約する無料

    ※LIFULL HOME'Sの資料請求ページに移動します

    他の物件も見てみる

    最近見た物件
    • 外観
    • 間取り

    • 完成後1年を経過している未入居物件が掲載されている場合があります。
    • 販売住戸が複数の物件は、全ての住戸に該当しない項目もあります。各問い合わせ先にご確認ください。
    • 「建築条件付き土地」とは、一定期間内(概ね3ヶ月程度)に特定の建設会社と建築請負契約を結ぶことを 条件にしている宅地のことです。
    • 建物の内容は、土地購入者の自由意思により決定可能で、土地売買契約後、 建築請負会社と購入した土地に建設する建物について協議することになります。
    • 期間内に建築請負契約が成立しなければ売買契約は白紙となり、支払済みの金銭はすべて返却されます。
    • 「建築条件付き土地」の価格には、建物価格は含まれません。
    • 「建築条件付き土地」の「建物プラン例」は、土地購入者の設計プランの一例であり、プランの採用可否は任意です。
    • 「土地(建築条件なし)」の「建物プラン例」に関して、そのプラン例は特定の建築請負会社によるもので、当該建築請負会社以外で建てた場合、同様のものが同価格で建てられるとは限りません。また、建築請負会社を特定するものではありません。
    • 消費税および地方消費税の対象となる場合は税込み価格が表示されています。
    • 物件の写真やイラスト、CGなどは実際と異なる場合があります。
    • 市区町村の合併などにより、地図が表示されない場合があります。ご了承ください。
    • お客様が入力する個人情報を含むお問い合わせデータは、LIFULL HOME'Sを経由して当該物件情報の取扱会社に転送されます。
    • 不動産購入の検討、契約にあたってはお客様ご自身が情報を確認し、各会社より十分な説明を受け判断してください。
    • 本ページの掲載内容は変更される場合があります。あらかじめご了承ください。
    ページトップへ