ジーステージ 中村区横井第3 全3邸

新築仲介一戸建て
所在地 愛知県名古屋市中村区横井2
交通
  • 近鉄名古屋線「近鉄八田」駅 徒歩21分
  • 近鉄名古屋線「伏屋」駅 徒歩21分
  • 価格 3680万円
    資料請求する無料 見学予約する無料

    ※LIFULL HOME'Sの資料請求ページに移動します

    お気に入りに追加
    • 物件情報
    • 地図・周辺情報
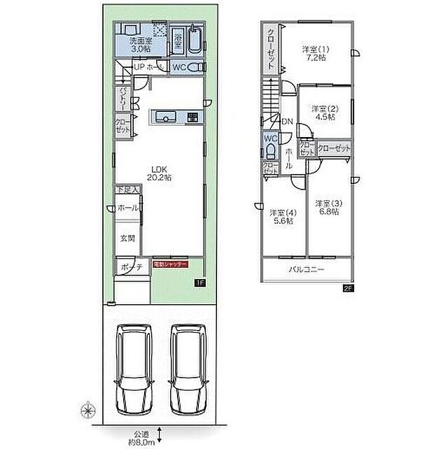
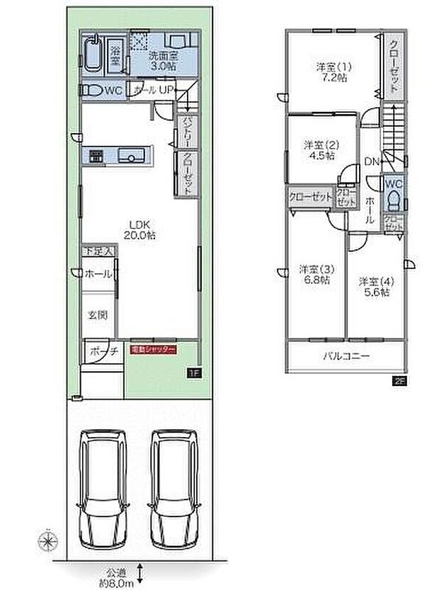
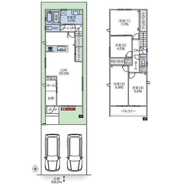
    • 間取り 4LDK
      土地面積 115.17m2~118.29m2
      建物面積 105.30m2
      建物階 木造2階建てガルバリウム鋼板葺
      完成時期
      • 2026年6月予定
    • 【現地外観写真】1号棟
今なら壁の裏側の構造や、こだわりの設備をまるごとチェックできちゃいます♪家づくりのギモン、専門スタッフに何でも聞いてくださいね。ご連絡をお待ちしております!
    • 【現地外観写真】左1号棟
建物完成前しか見られない「安心の裏側」を公開します。耐震性や断熱性能、住宅設備の最新スペックを徹底解説!見学のお申し込みはお気軽にどうぞ。
    • 【現地外観写真】左2号棟・右3号棟
現在、建築工事が進んでいる現地にて、モデルハウスを活用した「構造見学会」を実施中です!お気軽にお問い合わせ下さい☆
    • 【現地外観写真】3号棟
現在、建築中のモデルハウスにて構造見学会を実施しております。完成後には隠れてしまう基礎や骨組み、最新設備の性能を詳しくご説明いたします。強さの秘密を、ぜひご自身の目でお確かめください。
    • 【前面道路含む現地写真】前面道路は、道路幅も広く、駐車もゆとりをもって行える環境になっています。お車の出し入れが苦手なママや小さなお子様にも安心ですね。舗装もされていて、ベビーカーや自転車で通っても快適に通行できます。
    • 【前面道路含む現地写真】前面道路は交通量の少ない道路です。ゆとりがあり、駐車時もゆっくりと落ち着いて行える立地環境になっています♪       
    • 全3棟☆
各棟並列2台駐車可能♪
完成に向けて現在建築工事中です☆住宅の構造や設備仕様・完成イメージなどの資料もお送りいたします♪お気軽にお問い合わせ下さい☆
    • 【4LDK】対面式キッチン仕様の南向き約20帖リビング♪
食品や食器、調理器具の収納に便利なパントリー付き♪
居室4部屋あり、使用用途多数♪
2部屋から出入りできる日当たり良好な南側バルコニー♪
    • 【4LDK】対面式キッチン仕様の南向き約20.2帖リビング♪
食品や食器、調理器具の収納に便利なパントリー付き♪
居室4部屋あり、使用用途多数♪
2部屋から出入りできる日当たり良好な南側バルコニー♪
    • 【4LDK】対面式キッチン仕様の南向き約20.2帖リビング♪
食品や食器、調理器具の収納に便利なパントリー付き♪
居室4部屋あり、使用用途多数♪
2部屋から出入りできる日当たり良好な南側バルコニー♪
    • 【省エネ性能ラベル】こちらの物件はZEH水準を満たした、省エネ性能に優れた物件です。光熱費を抑えて暮らすことができるだけでなく、「熱の入りにくさ・逃げにくさ」という
観点でも影響を受けにくい建物のため、長く快適にお過ごしいただけます♪
※本ラベルは特定の住戸の性能を示すものであり、全ての住戸の性能を示すものではありません。
    • 【洗面台】ムダをそぎ落とした、シンプルで美しいインテリアに溶け込む洗練されたデザイン。
    • 【浴室】お風呂の使いやすさ・お掃除のしやすさはもちろん、気持ちよさ・美しさを追求したシステムバスルーム。
    • 【フローリング】上質な天然木の素材感にこだわった意匠。ナチュラルテイストで高耐久なフローリングです。
    • 【リモコンキー】毎日使う玄関ドアをもっと便利に、もっと快適に。カンタン操作なのに、安心も備えた便利な機能です。
    • 【キッチン】キッチンに居るときも、リビングに居るときもその存在価値が感じられる美しく、そして、使いやすいシステムキッチン。
    • 【外壁材・サイディング】水になじみやすく、雨で汚れを洗い流す、親水コート仕様。日本の環境や気候にあわせて改良を続けてきた外壁材。美しさだけでなく、安心・安全へのこだわりを満たす品質です。
    • 【吹付断熱】高断熱・高気密を実現し、さらにカビ・ダニから守り経年劣化が少ない。強力な自己接着力で、複雑な形状にも断熱材を隙間なく充填。隙間からの熱損失が大幅に減少します。
    • 【Low-Eガラス】夏は太陽エネルギーの侵入をカットして、冷房がよく効く涼しいお部屋に。冬は暖房の熱が逃げにくく、外の冷気も伝わりにくいので暖かく過ごせます。
    • 名古屋市立八社小学校(約560m)
    • 八田駅(約1,660m)
    • 1号棟 3,680万円
2号棟 3,680万円
3号棟 3,680万円
    • (1号棟)、価格3680万円、4LDK、土地面積117.31m2、建物面積105.3m2
    • 1号棟
建築中のためモデルハウスで構造説明会を開催しております☆設備や構造などご説明いたします!お気軽にお問い合わせください♪
    • (2号棟)、価格3680万円、4LDK、土地面積115.17m2、建物面積105.3m2
    • 中央2号棟・右3号棟
建築中のためモデルハウスで構造説明会を開催しております☆設備や構造などご説明いたします!お気軽にお問い合わせください♪
    お気に入りに追加 この物件の資料請求無料 見学予約する無料

    ※LIFULL HOME'Sの資料請求ページに移動します

    販売スケジュール

    販売中

    販売概要

    販売戸数 3戸 最多価格帯 3600万円台(3戸)
    販売価格 3680万円
    土地面積 115.17m2~118.29m2(34.83坪~35.78坪)
    建物面積 105.3m2(31.85坪)
    建物状況 - 建物現況 新規分譲
    土地状況 - 最適用途 -
    建築条件備考 - 構造・工法 -
    間取り 4LDK 建物階 木造2階建てガルバリウム鋼板葺
    建ぺい率 / 容積率 建ペい率:60%、容積率:200%
    接道
    道路幅:8m、アスファルト舗装、南側 約8.0m 公道接道
    駐車場・車庫
    • 2台(並列駐車)
    完成時期
    • 2026年6月予定
    引渡し可能時期
    • 相談
    その他諸費用 -
    こだわり条件
    • 瑕疵担保付き
    • 見学可能
    • 浴室乾燥機
    • カウンターキッチン
    • 床下収納
    • パントリー
    • バリアフリー
    • TVモニタ付インターホン
    • 長期優良住宅
    • 設計住宅性能評価付き
    • 建設住宅性能評価書(新築時)
    • 南道路
    • 駐車場あり
    備考
    • 物件種目:戸建
    • 主たる設備概要:中部電力、都市ガス、公営水道、公共下水
    • 建築確認番号:第KS125-0420-57604号他
    • 備考欄:【イベント情報】
      現地見学会(事前に必ずお問い合わせください)
      日程/公開中
      時間/10:00~18:00
      ◎貴重なお時間の中で、ご希望の情報をご案内致します!
       お客様のご都合に合わせて「知りたい情報だけ」という短時間のご案内も可能です。
      事前にお申し付けください。

      ◎見学の際はお客様のご希望に合わせて3コース設けております。
       当日はデジカメやスマホでの写真撮影ももちろん可能です。ご自宅でのご検討の際にお役立てください。

      1)さくっと現地見学コース(所要時間:30分)
      お忙しいお客様向けです。物件のご案内(主に間取り)のみさせていただきます。
      2)じっくり見学コース(所要時間:1時間)
      物件の雰囲気だけではなく、設備などもしっかり確認されたいお客様向けです。
      間取りに加え、システムキッチンなど気になる設備もしっかりご案内いたします。
      3)納得見学コース(所要時間:2時間)
      「見学予約」の際は、上記希望の番号をご入力ください。
      「お電話やメール」の際も、番号をお伝えただけると、ご案内がスムーズです。

      ◎物件の間取り、設備に加え、周辺環境もご案内いたします。
       現時点では、小学校、スーパー、図書館などご家族でご利用されることが予想される施設を車で回る予定です。「こんな施設があったら見学したい!」というようなご希望があればぜひご連絡ください。

      ◎初めての住宅購入で、何から始めればいいか分からない!
       そんなお客様に、経験豊富なスタッフがわかりやすく丁寧にご案内致します!
      小さなお子様連れでもゆったりと見学いただけますので、まずはお気軽にお問い合わせください。

      ◎案内員が常駐しておりませんので、見学の際は必ず事前にお問い合わせいただけますと幸いです。
    関連サイト -

    全体概要

    所在地 愛知県名古屋市中村区横井2
    交通
    • 近鉄名古屋線「近鉄八田」駅 徒歩21分
    • 近鉄名古屋線「伏屋」駅 徒歩21分
    • 名古屋市営東山線「高畑」駅 徒歩29分
    土地の権利 所有権
    総戸数 3戸
    私道負担 - 用途地域 第一種住居地域
    地目 宅地 施工会社 -
    情報掲載開始日 2026年3月17日 情報更新日 2026年3月17日
    取引条件有効期限 2026年12月31日 次回更新予定日 2026年3月31日

    ローンシミュレーション

    頭金、借入期間、金利から毎月の住宅ローンお支払い額の目安を試算します。ご希望の条件に変更してご利用ください。

    物件価格の初期値は最低値を設定しております。実際にローン契約をする際は、詳細を不動産会社にご確認ください。

    万円
    万円
    %

    ※頭金や金利、借入期間によって支払う金額は変わります。

    ※物件購入時には、物件価格の他に諸費用がかかります。

    =
    月々のお支払い目安
    元金
    万円/月
    金利
    万円/月
    お支払い目安
    万円/月

    お問い合わせ

    ご覧いただいている物件の住宅ローンや実際にかかる諸費用、資金計画などのご相談ができます。

    不動産会社へのお問い合わせ

    飯田グループホールディングス ホームトレードセンター(株)名古屋中川営業所

    この物件のアピールポイント

    【本日モデルルーム内覧可能!】長期優良住宅・地震に強い家! ■便利な周辺環境 □近鉄名古屋線・地下鉄東山線「八田」駅まで徒歩21分 □アオキスーパー八田店まで徒歩8分、ファミリーマートまで徒歩4分 □八社小学校まで徒歩7分、たかなしの森保育園まで徒歩3分 ■充実の設備・仕様 □長期優良住宅!耐震等級3等級! □浴室乾燥機、床下収納、三面化粧台、(宅配BOX)など、暮らしを豊かにする設が整っています!

    この物件の価格

    3680万円

    • 会社名:ホームトレードセンター株式会社 名古屋中川営業所
    • 住所:愛知県名古屋市中川区中郷1-36 グランスイート高畑西1F
    • 電話:052-387-8578
    • 取引態様:飯田グループホールディングス ホームトレードセンター(株)名古屋中川営業所<仲介>
    • 免許番号:国土交通大臣 (3) 第 8044 号
    • 不動産団体名:(公社)全日本不動産協会東京都本部
    • 売主:-
    • 売主免許番号:-
    • 関連サイト:-
    資料請求する無料 見学予約する無料

    ※LIFULL HOME'Sの資料請求ページに移動します

    他の物件も見てみる

    • 完成後1年を経過している未入居物件が掲載されている場合があります。
    • 販売住戸が複数の物件は、全ての住戸に該当しない項目もあります。各問い合わせ先にご確認ください。
    • 「建築条件付き土地」とは、一定期間内(概ね3ヶ月程度)に特定の建設会社と建築請負契約を結ぶことを 条件にしている宅地のことです。
    • 建物の内容は、土地購入者の自由意思により決定可能で、土地売買契約後、 建築請負会社と購入した土地に建設する建物について協議することになります。
    • 期間内に建築請負契約が成立しなければ売買契約は白紙となり、支払済みの金銭はすべて返却されます。
    • 「建築条件付き土地」の価格には、建物価格は含まれません。
    • 「建築条件付き土地」の「建物プラン例」は、土地購入者の設計プランの一例であり、プランの採用可否は任意です。
    • 「土地(建築条件なし)」の「建物プラン例」に関して、そのプラン例は特定の建築請負会社によるもので、当該建築請負会社以外で建てた場合、同様のものが同価格で建てられるとは限りません。また、建築請負会社を特定するものではありません。
    • 消費税および地方消費税の対象となる場合は税込み価格が表示されています。
    • 物件の写真やイラスト、CGなどは実際と異なる場合があります。
    • 市区町村の合併などにより、地図が表示されない場合があります。ご了承ください。
    • お客様が入力する個人情報を含むお問い合わせデータは、LIFULL HOME'Sを経由して当該物件情報の取扱会社に転送されます。
    • 不動産購入の検討、契約にあたってはお客様ご自身が情報を確認し、各会社より十分な説明を受け判断してください。
    • 本ページの掲載内容は変更される場合があります。あらかじめご了承ください。
    ページトップへ