パパもママも、来客も。並列3台OK!「富水」駅まで徒歩8分!■小田原市堀之内第8■

新築仲介一戸建て
所在地 神奈川県小田原市堀之内
交通
  • 小田急小田原線「富水」駅 徒歩8分
  • 小田急小田原線「栢山」駅 徒歩17分
  • 価格 2980万円
    資料請求する無料 見学予約する無料

    ※LIFULL HOME'Sの資料請求ページに移動します

    お気に入りに追加
    • 物件情報
    • 地図・周辺情報
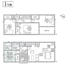
    • 間取り 4LDK 
      土地面積 177.75m2
      建物面積 97.20m2
      建物階 木造 2階建 
      完成時期
      • 2026年06月
    • 【現地外観写真】■まずは一度ご覧ください
    • 【現地外観写真】■家族みんなが笑顔で過ごせる、安心感のある住まい
    • 【前面道路含む現地写真】■新しい時代の息吹を感じる、心地よい環境
    • ■暮らしを彩る充実した設備仕様が備わった住まい
    • 【システムキッチン】■家族の絆を深める、温もりのあるキッチン
    • 【カウンタキッチン】■美味しい時間が生まれる、笑顔あふれるキッチン
    • 【浴室乾燥機】■冬でも温かく、快適乾燥機能で湿気対策もバッチリ
    • 【ウォシュレット】■温水洗浄で快適、清潔感が保たれるシャワートイレ
    • 【シャンプドレッサー付き】■手洗いや顔を洗う時も快適に使える便利なシャワー
    • 【バルコニー】■ 心地よい風と光を感じる、くつろぎのバルコニー
    • 【ルーフバルコニー】■ 季節の移ろいを感じられる開放的な空間です
    • 小田急小田原線「富水」駅(約640m・徒歩8分)
    • 小田原市立東富水小学校(約1,400m・徒歩18分)
    • 小田原市立泉中学校(約1,671m・徒歩21分)
    • 富水保育園(約200m・徒歩3分)
    • 小田原市立病院(約4,400m・徒歩55分)
    • ヤオマサ螢田店(約1,400m・徒歩18分)
    • 案内図

    住みやすさ

    富水の住みやすさの採点分布

         
    ココが住みやすい!
    • 子連れのファミリーが多く、子供の声や足音はお互い様といった感じ。 線路や大きい道路からも離れているので周辺も静かで過ごしや…
    • 都会すぎないのでゆっくり過ごせて治安も良い。小田原城などの観光名所があり、更には箱根の温泉にも日帰りで行くことができる。
    • 周りには二世帯住居が多く、マンションやアパートが少なく一軒家が多いので静かです。夜は周りが明かりが少なくなるので静か
    ※住みやすさに関する評点は、単純平均ではなく当社独自の集計方法を加え算出しています。
    お気に入りに追加 この物件の資料請求無料 見学予約する無料

    ※LIFULL HOME'Sの資料請求ページに移動します

    販売スケジュール

    先着順受付中/販売中

    イベント情報

    住宅ローン相談会

    イベント概要
    開催日時 2026年03月01日~2026年05月31日
    申込期間 2026年03月01日~2026年05月31日
    開催場所 神奈川県小田原市堀之内
    交通 小田急小田原線「富水」駅 徒歩8分

    住宅ローンについてご検討の際には、将来を見据えた資金計画を立てることをおすすめしております。当社では、住宅ローンやライフプランに関するご相談を承っており、有資格者を含むスタッフが、お客様一人ひとりに合わせたご提案をさせていただきます。予算づくりから無理のないローン設計、将来の家計見通しまで丁寧にサポート。お気軽にご相談ください。

    見学予約する 無料

    ※LIFULL HOME'Sの資料請求ページに移動します

    販売概要

    販売戸数 1戸 最多価格帯 -
    販売価格 2980万円
    土地面積 177.75m2
    建物面積 97.20m2
    建物状況 - 建物現況 新規分譲
    土地状況 - 最適用途 -
    建築条件備考 - 構造・工法 -
    間取り 4LDK  建物階 木造 2階建 
    建ぺい率 / 容積率 建蔽率60% 容積率200%
    接道
    1号棟:西7.1m
    駐車場・車庫
    • 3台
    完成時期
    • 2026年06月
    引渡し可能時期
    • 2026年06月下旬
    その他諸費用 -
    こだわり条件
    • 見学可能
    • 浴室乾燥機
    • 浴室暖房
    • カウンターキッチン
    • 床下収納
    • 和室
    • TVモニタ付インターホン
    • オンライン相談可
    • 駐車場あり
    備考
    • 物件種目:戸建
    • 主たる設備概要:個別LPG/公営水道/下水
    • 国土法:届出不要
    • 建築確認番号:第KBI-SGM25-10-5331号
    • 売主:-
    • 都市計画:市街化区域
    • 備考欄:■首都圏に広がるME Group 物件の当日予約・当日見学できます!■

      ●お子様がいても安心のご来店!!●
       大型キッズコーナー!
       お子様用 任天堂 switchyoutubeタブレット 完備!
       キッズ用の椅子・ベビーベッド・授乳室!
       ご見学時は、チャイルドシートも完備!

      ●住宅ローンのご不安もおまかせ下さい!!●
       自己資金が無い
       転職して間もない
       他社で住宅ローンが通らなかった
       金利条件を良くしたいなど

      ●感染防止への取り組み!!●
       店内換気・飛沫防止アクリルパーテーション設置
       手消毒・マスク着用・検温チェックの徹底
       机と椅子の除菌消毒 
      『接道』一方 西7.1m公道
      『法令上の制限』準防火地域:有その他制限事項:3台駐車可能※車種による ルーフバルコニー面積:6.48平米
      設備:個別LPG 公営水道 下水 防犯カメラ 制震構造 シックハウス対策 駐車場2台以上 土地50坪以上 前道6m以上 コンビニ5分以内 システムキッチン カウンタキッチン 対面キッチン バス・トイレ別 浴室乾燥機 ウォシュレット トイレ2ヶ所 浴室に窓 浴室暖房 バルコニー ルーフバルコニー 2階建 LDK15畳以上 和室 人感照明センサー 採光2面 室内洗濯機置き場 フローリング 全室フローリング リビング階段 収納 床下収納 全居室収納 シャンプドレッサー付き 洗面所独立 モニタ付きインターフォン インターフォン 複層ガラス 全居室複層ガラスか複層サッシ
    関連サイト -

    全体概要

    所在地 神奈川県小田原市堀之内
    交通
    • 小田急小田原線「富水」駅 徒歩8分
    • 小田急小田原線「栢山」駅 徒歩17分
    • 伊豆箱根鉄道大雄山線「飯田岡」駅 徒歩24分
    土地の権利 所有権
    総戸数 1戸
    私道負担 - 用途地域 第一種住居地域
    地目 宅地 施工会社 -
    情報掲載開始日 2026年3月13日 情報更新日 2026年3月25日
    取引条件有効期限 2026年3月28日 次回更新予定日 2026年4月8日

    ローンシミュレーション

    頭金、借入期間、金利から毎月の住宅ローンお支払い額の目安を試算します。ご希望の条件に変更してご利用ください。

    物件価格の初期値は最低値を設定しております。実際にローン契約をする際は、詳細を不動産会社にご確認ください。

    万円
    万円
    %

    ※頭金や金利、借入期間によって支払う金額は変わります。

    ※物件購入時には、物件価格の他に諸費用がかかります。

    =
    月々のお支払い目安
    元金
    万円/月
    金利
    万円/月
    お支払い目安
    万円/月

    お問い合わせ

    ご覧いただいている物件の住宅ローンや実際にかかる諸費用、資金計画などのご相談ができます。

    不動産会社へのお問い合わせ

    ME不動産神奈川株式会社

    この物件のアピールポイント

    ■物件の当日予約・当日見学できます! ■住宅ローンのご不安もおまかせ下さい!! くらしを楽しむ世の中を、もっと。 首都圏に広がるME Group 2024年グループ成約2416件の実績 他に建設・住宅設備・保険・IT等「くらし」をテーマに事業を展開

    この物件の価格

    2980万円

    • 会社名:ME不動産神奈川株式会社
    • 住所:神奈川県厚木市中町4-9-18 本厚木トーセイビルII302
    • 電話:046-294-0866
    • 取引態様:ME不動産神奈川株式会社/仲介
    • 免許番号:神奈川県知事 (1) 第 31372 号
    • 不動産団体名:(公社)全日本不動産協会神奈川県本部
    • 売主:-
    • 売主免許番号:-
    • 関連サイト:-
    資料請求する無料 見学予約する無料

    ※LIFULL HOME'Sの資料請求ページに移動します

    他の物件も見てみる

    条件が似た物件
    • 外観
    • 間取り

    最近見た物件
    • 外観
    • 間取り

    • 完成後1年を経過している未入居物件が掲載されている場合があります。
    • 販売住戸が複数の物件は、全ての住戸に該当しない項目もあります。各問い合わせ先にご確認ください。
    • 「建築条件付き土地」とは、一定期間内(概ね3ヶ月程度)に特定の建設会社と建築請負契約を結ぶことを 条件にしている宅地のことです。
    • 建物の内容は、土地購入者の自由意思により決定可能で、土地売買契約後、 建築請負会社と購入した土地に建設する建物について協議することになります。
    • 期間内に建築請負契約が成立しなければ売買契約は白紙となり、支払済みの金銭はすべて返却されます。
    • 「建築条件付き土地」の価格には、建物価格は含まれません。
    • 「建築条件付き土地」の「建物プラン例」は、土地購入者の設計プランの一例であり、プランの採用可否は任意です。
    • 「土地(建築条件なし)」の「建物プラン例」に関して、そのプラン例は特定の建築請負会社によるもので、当該建築請負会社以外で建てた場合、同様のものが同価格で建てられるとは限りません。また、建築請負会社を特定するものではありません。
    • 消費税および地方消費税の対象となる場合は税込み価格が表示されています。
    • 物件の写真やイラスト、CGなどは実際と異なる場合があります。
    • 市区町村の合併などにより、地図が表示されない場合があります。ご了承ください。
    • お客様が入力する個人情報を含むお問い合わせデータは、LIFULL HOME'Sを経由して当該物件情報の取扱会社に転送されます。
    • 不動産購入の検討、契約にあたってはお客様ご自身が情報を確認し、各会社より十分な説明を受け判断してください。
    • 本ページの掲載内容は変更される場合があります。あらかじめご了承ください。
    ページトップへ