【飯田の分譲住宅】飯田グループホールディングス クレイドルガーデン 柏市戸張第8

新築仲介一戸建て
所在地 千葉県柏市戸張
交通
  • JR常磐線「柏」駅 徒歩26分
  • 東武野田線「柏」駅 バス12分「柏学園前」バス停 徒歩9分
  • 価格 2888万円
    資料請求する無料 見学予約する無料

    ※LIFULL HOME'Sの資料請求ページに移動します

    お気に入りに追加
    • 物件情報
    • 地図・周辺情報
    • 間取り 3LDK+S(納戸)・4LDK
      土地面積 100.04m2~100.05m2
      建物面積 95.58m2
      建物階 木造2階建て
      完成時期
      • 2026年4月予定
    • 【前面道路含む現地写真】2026年4月完成予定!
平日・お仕事帰りなど、いつでもご案内致します!
お気軽にお問い合わせ下さい。
    • 【現地外観写真】嬉しい仕様がたくさん!
浴室乾燥機、水廻り集中設計、全洋室、テレワークルーム、リビングイン階段、リビング収納、防犯カメラ、カースペース1台分等!
    • 【現地外観写真】「耐震+制震」を兼ね備えた家、QUIE(クワイエ)。
安心の「住宅性能評価」取得物件!
    • 【全体区画図】カースペース1台分♪
    • 2026年4月完成予定!
平日・お仕事帰りなど、いつでもご案内致します!
お気軽にお問い合わせ下さい。
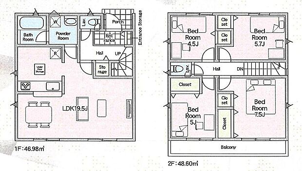
    • 【4LDK】1階は家族でゆったりお過ごしいただける19.5帖のLDK、プライベート空間は2階に配したプランです♪
家事のしやすい水廻り集中設計!
    • 【3LDK+S】家事のしやすい水廻り集中設計、お掃除ラクラク全居室フローリングプラン♪
在宅ワークに便利なテレワークルームのつあるプランです!
    • 【【省エネ性能ラベル】】こちらの物件はZEH水準を満たした、省エネ性能に優れた物件です。光熱費を抑えて暮らすことができるだけでなく、「熱の入りにくさ・逃げにくさ」という観点でも影響を受けにくい建物のため、長く快適にお過ごしいただけます♪※本ラベルは特定の住戸の性能を示すものであり、全ての住戸の性能を示すものではありません。
    • 【【浴室換気乾燥機】】雨の日や冬場のお洗濯に嬉しい装備。洗濯物を乾かすだけでなく、入浴後に換気機能で湿気を排出できるためカビの防止にもなります。
    • 【【テレワークルーム】】デスクを置いて書斎のように使えるテレワークスペースをご用意しております。プライベートと仕事の時間を分けたい方必見です。
    • 【【リビングイン階段】】帰宅時・外出時の自然なコミュニケーションを育むリビングイン階段を採用。家族が必ず顔を合わせて欲しい。そんな思いをこめています。
    • 【【リビング収納】】掃除用具や文房具等が収納できるためリビングをスッキリ見せることが出来ます♪また、収納用に家具などを購入する必要がないので、地震が起きても家具が倒れてくる心配もありません。
    • 【耐震+制震の家、「QUIE(クワイエ)」】地震の揺れに耐える「耐震性能」と、揺れを抑えて住宅へのダメージを軽減する「制震性能」を兼ね備えた建売住宅ブランド「QUIE」 。ふたつの備えで、お客様の家を守ります。
    • 【共同開発により完成した制震装置『SAFE365』】住宅の持っている、もともとの耐震性能を維持していくために重要な役割を果たす制振装置『SAFE365』。高層ビルの制震装置にも使われている粘弾性素材を活用したもので、優れた地震エネルギーの吸収を実現します。
    • 【制震性能比較実験】震度6強を最大67%低減できることが証明されました。さらに、最大震度6強クラスとなる120秒間続く地震を、約200回受けても制震性能は衰えないと実証実験で分かっています。
    • 【ベタ基礎へのこだわり】基礎の立ち上がり部分の幅を、建築基準法より30mm大きく取る(外周・内部とも)ことで、基礎にかかる上下の力(せん断力)に対抗する力が増し、強い基礎ができます。
    • 柏市立柏第二中学校(約660m)
    • 柏市立柏第五小学校(約990m)
    • 柏市立東町保育園(約850m)
    • マツモトキヨシ柏千代田店(約1,400m)
    • DCM名戸ヶ谷店(約2,200m)
    • ビックカメラ柏店(約2,000m)
    • 嬉しい仕様がたくさん!
浴室乾燥機、水廻り集中設計、全洋室、テレワークルーム、リビングイン階段、リビング収納、防犯カメラ、カースペース1台分等!
    • 「柏学園前」バス停まで徒歩9分、JR常磐線「柏」駅までバス乗車12分!(自転車で約12分)
    • 地震の揺れに耐える「耐震性能」と、揺れを抑えて住宅へのダメージを軽減する「制震性能」を兼ね備えた建売住宅ブランド「QUIE」 。ふたつの備えで、お客様の家を守ります。
    • ≪全体区画図≫
カースペース1台分♪
    • (1号棟)、価格2888万円、4LDK、土地面積100.05m2、建物面積95.58m2

    住みやすさ

    柏の住みやすさの採点分布

           
    ココが住みやすい!
    • 国道16号線(東京環状)が市内を経由しており、車両での移動が至便であること。都心部とは異なり自然環境に恵まれている。
    • 柏駅周辺で買い物はだいたい事足りるところ。また病院も多く、休日に急に体調を崩しても受診できる病院があるところ。
    • 複数路線が乗り入れていること。都心までのアクセスがよく助かる。 柏駅の周辺には病院や子どもの遊び場、一時預かりの託児施設、…
    ※住みやすさに関する評点は、単純平均ではなく当社独自の集計方法を加え算出しています。
    お気に入りに追加 この物件の資料請求無料 見学予約する無料

    ※LIFULL HOME'Sの資料請求ページに移動します

    販売スケジュール

    販売中

    販売概要

    販売戸数 2戸 最多価格帯 2800万円台(2戸)
    販売価格 2888万円
    土地面積 100.04m2・100.05m2
    建物面積 95.58m2
    建物状況 - 建物現況 新規分譲
    土地状況 - 最適用途 -
    建築条件備考 - 構造・工法 -
    間取り 3LDK+S(納戸)・4LDK 建物階 木造2階建て
    建ぺい率 / 容積率 建ペい率:50%、容積率:100%
    接道
    道路幅:5m、アスファルト舗装
    駐車場・車庫
    • 1台
    完成時期
    • 2026年4月予定
    引渡し可能時期
    • 2026年4月予定
    その他諸費用 -
    こだわり条件
    • 瑕疵担保付き
    • 見学可能
    • 浴室乾燥機
    • カウンターキッチン
    • 床下収納
    • バリアフリー
    • TVモニタ付インターホン
    • 低層住宅地
    • 設計住宅性能評価付き
    • 最寄り駅が始発駅
    • オンライン相談可
    • 駐車場あり
    備考
    • 物件種目:戸建
    • 主たる設備概要:都市ガス、公営水道、公共下水
    • 建築確認番号:第25UDI1W建10937号他
    • 備考欄:【その他制限事項】
      景観法による規制有、宅地造成工事規制区域、高さ最高限度有、法第22条区域


      【イベント情報】
      (事前に必ずお問い合わせください)
      ■ご案内方法
      飯田グループホールディングス唯一の販売専門会社の社員が、当物件をご案内させて頂きます。
      ご自宅へお迎えor最寄り駅等でお待ち合わせ、弊社へのご来社など、ご相談くださいませ。
      小学校、スーパー、公園などご家族でご利用されることが予想される施設や、
      「こんな施設があったら見学したい!」というようなご希望もあればぜひご連絡ください。

      ■ご予約方法
      鍵の手配が必要な場合がありますので、
      お早目にご連絡をいただけるとご案内がスムーズです。

      ◆□【住宅ローンの事ならお任せください】□◆
      弊社提携の金融機関が多数ございます!
      複数の提携ローンの中から、お客様のご希望に合った住宅ローンをご提案いたします。
      「住宅ローンが通るか心配だ・・・」「頭金0円だと購入が難しいの?」「転職して間もないから・・・」など、
      不安やお悩みはまず弊社にご相談ください!
    関連サイト -

    省エネ性能

    この物件の省エネ性能がわかる「省エネ性能ラベル」です。省エネ性能ラベルは2024年4月以降に建築確認申請した物件などで表示しています。

    ※「省エネ性能ラベル」は特定の住戸の性能を示し、全ての住戸の性能を示していない場合があります。

    省エネ性能ラベル
    エネルギー消費性能
    (削減率20%達成)
    エネルギー消費性能とは
    星マークの数が多いほどエネルギー消費性能が高いことを示しています。再エネ設備のない住宅は★0~★4の5段階評価、再エネ設備がある住宅は★0~★6の7段階評価となります。
    断熱性能
    5段階 / 7段階
    断熱性能とは
    数値が高いほど断熱性能が高いことを示しています。「熱の逃げやすさ」と「日射熱の入りやすさ」の2つの点で7段階で評価しています。
    目安光熱費
    - /年
    目安光熱費とは
    一年間にかかる光熱費の目安額です。住宅の省エネ性能と全国一律の燃料等の単価を用いて、一定の条件下で自動算出したもので、実際にかかる光熱費とは異なります。

    全体概要

    所在地 千葉県柏市戸張
    交通
    • JR常磐線「柏」駅 徒歩26分
    • 東武野田線「柏」駅 バス12分「柏学園前」バス停 徒歩9分
    • JR常磐線「北柏」駅 徒歩36分
    土地の権利 所有権
    総戸数 2戸
    私道負担 - 用途地域 第一種低層住居専用地域
    地目 宅地 施工会社 -
    情報掲載開始日 2026年3月10日 情報更新日 2026年3月16日
    取引条件有効期限 2026年4月30日 次回更新予定日 随時

    ローンシミュレーション

    頭金、借入期間、金利から毎月の住宅ローンお支払い額の目安を試算します。ご希望の条件に変更してご利用ください。

    物件価格の初期値は最低値を設定しております。実際にローン契約をする際は、詳細を不動産会社にご確認ください。

    万円
    万円
    %

    ※頭金や金利、借入期間によって支払う金額は変わります。

    ※物件購入時には、物件価格の他に諸費用がかかります。

    =
    月々のお支払い目安
    元金
    万円/月
    金利
    万円/月
    お支払い目安
    万円/月

    お問い合わせ

    ご覧いただいている物件の住宅ローンや実際にかかる諸費用、資金計画などのご相談ができます。

    不動産会社へのお問い合わせ

    飯田グループホールディングス ホームトレードセンター(株)柏店

    この物件のアピールポイント

    【本日、見学出来ます!】 在宅ワークに便利なテレワークルーム付きプラン有 ○JR常磐線「柏」歩26分  小学校 徒歩13分、中学校 徒歩9分、幼稚園 徒歩9分  スーパー 徒歩15分、コンビニ 徒歩10分、ドラッグストア 徒歩18分 ■雨の日や夜間の洗濯に便利な浴室乾燥機 ■生活動線をスッキリ整え、心にゆとりを生む水廻り集中設計 ■仕事や趣味のお部屋として多目的に使えるテレワークルーム ■こちらの物件はZEH水準を満たした、省エネ性能に優れた物件です ■住宅性能評価取得物件!耐震性など主要4分野で最高等級を取得

    この物件の価格

    2888万円

    • 会社名:ホームトレードセンター株式会社 柏店
    • 住所:千葉県柏市中央町5-16 穂高第2ブラザーズ柏101
    • 電話:04-7180-8588
      ※物件のお問い合わせは047-180-8588
    • 取引態様:飯田グループホールディングス ホームトレードセンター(株)柏店<仲介>
    • 免許番号:国土交通大臣 (3) 第 8044 号
    • 不動産団体名:公益社団法人 全国宅地建物取引業保証協会
    • 売主:-
    • 売主免許番号:-
    • 関連サイト:-
    資料請求する無料 見学予約する無料

    ※LIFULL HOME'Sの資料請求ページに移動します

    他の物件も見てみる

    最近見た物件
    • 外観
    • 間取り

    • 完成後1年を経過している未入居物件が掲載されている場合があります。
    • 販売住戸が複数の物件は、全ての住戸に該当しない項目もあります。各問い合わせ先にご確認ください。
    • 「建築条件付き土地」とは、一定期間内(概ね3ヶ月程度)に特定の建設会社と建築請負契約を結ぶことを 条件にしている宅地のことです。
    • 建物の内容は、土地購入者の自由意思により決定可能で、土地売買契約後、 建築請負会社と購入した土地に建設する建物について協議することになります。
    • 期間内に建築請負契約が成立しなければ売買契約は白紙となり、支払済みの金銭はすべて返却されます。
    • 「建築条件付き土地」の価格には、建物価格は含まれません。
    • 「建築条件付き土地」の「建物プラン例」は、土地購入者の設計プランの一例であり、プランの採用可否は任意です。
    • 「土地(建築条件なし)」の「建物プラン例」に関して、そのプラン例は特定の建築請負会社によるもので、当該建築請負会社以外で建てた場合、同様のものが同価格で建てられるとは限りません。また、建築請負会社を特定するものではありません。
    • 消費税および地方消費税の対象となる場合は税込み価格が表示されています。
    • 物件の写真やイラスト、CGなどは実際と異なる場合があります。
    • 市区町村の合併などにより、地図が表示されない場合があります。ご了承ください。
    • お客様が入力する個人情報を含むお問い合わせデータは、LIFULL HOME'Sを経由して当該物件情報の取扱会社に転送されます。
    • 不動産購入の検討、契約にあたってはお客様ご自身が情報を確認し、各会社より十分な説明を受け判断してください。
    • 本ページの掲載内容は変更される場合があります。あらかじめご了承ください。
    ページトップへ