| 所在地 | 神奈川県相模原市中央区由野台 1丁目 12-11 |
|---|---|
| 交通 | |
| 価格 | 4699~5099万円 月々のお支払い目安
|

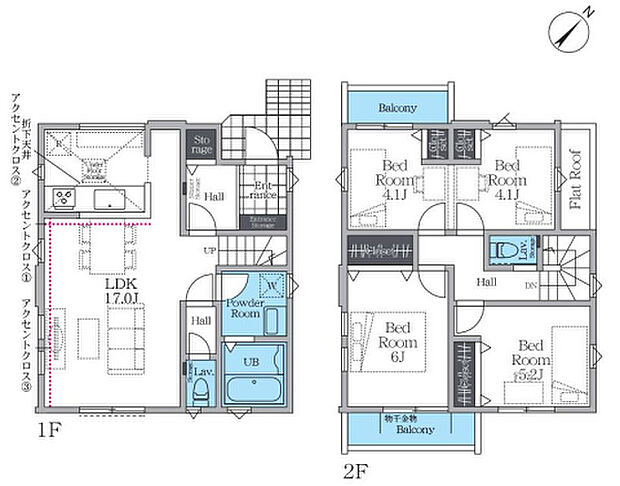
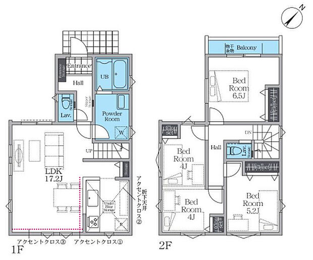
| 間取り | 3LDK~3LDK |
|---|---|
| 土地面積 | 88.93m2~89.00m2 |
| 建物面積 | 88.59m2~88.86m2 |
| 建物階 | 木造2階建 |
| 完成時期 |
|




































販売中
| 販売戸数 | 2戸 | 最多価格帯 | - |
|---|---|---|---|
| 販売価格 |
4699~5099万円 月々のお支払い目安
|
||
| 土地面積 | 88.93m2~89m2 | ||
| 建物面積 | 88.59m2~88.86m2 | ||
| 建物状況 | - | 建物現況 | 新規分譲 |
| 土地状況 | - | 最適用途 | - |
| 建築条件備考 | - | 構造・工法 | - |
| 間取り | 3LDK~3LDK | 建物階 | 木造2階建 |
| 建ぺい率 / 容積率 | 建ぺい率50% 容積率100% | ||
| 接道 |
|
||
| 駐車場・車庫 |
|
完成時期 |
|
| 引渡し可能時期 |
|
||
| その他諸費用 | - | ||
| こだわり条件 |
|
||
| 備考 |
|
||
| 関連サイト | - | ||
| 所在地 | 神奈川県相模原市中央区由野台 1丁目 12-11 | ||
|---|---|---|---|
| 交通 |
|
||
| 土地の権利 | 所有権 | ||
| 総戸数 | 2戸 | ||
| 私道負担 | - | 用途地域 | 第一種低層住居専用地域 |
| 地目 | 宅地 | 施工会社 | - |
| 情報掲載開始日 | 2026年3月8日 | 情報更新日 | 2026年4月17日 |
| 取引条件有効期限 | 2027年3月8日 | 次回更新予定日 | 随時 |
頭金、借入期間、金利から毎月の住宅ローンお支払い額の目安を試算します。ご希望の条件に変更してご利用ください。
物件価格の初期値は最低値を設定しております。実際にローン契約をする際は、詳細を不動産会社にご確認ください。
この物件のアピールポイント
複層ガラス 庭 TVモニタ付インターホン 浴室に窓 省エネルギー対策 システムキッチンは使いやすく汚れにくいのでご好評です デザイン性のあるシステムキッチン付きなので、キッチンがお洒落なスペースになっています。来客が一目でわかるTVインターホン付き。駅から徒歩14分に位置する物件です。
この物件の価格
4699~5099万円