3号棟横浜市神奈川区新築戸建 カースぺ 乾太くん

新築仲介一戸建て
所在地 神奈川県横浜市神奈川区菅田町
交通
  • JR横浜線「鴨居」駅まで 徒歩 16分
  • JR横浜線「小机」駅まで 3km
  • 価格 4,480万円
    • 物件情報
    • 地図・周辺情報
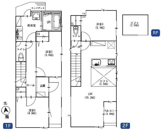
    • 間取り 3LDK
      土地面積 99.03m2(公簿)
      建物面積 84.20m2
      建物階 地上2階
      完成時期
      • 2026年 2月
    • 大野屋菅田店まで1103m
    • イオンフードスタイル鴨居店まで1201m、鴨居駅南口近くにあるスーパー。夜23時まで営業しています。
    • フィットケアデポ西菅田店まで216m、西菅田団地近くの菅田道路沿いにあるドラッグストア。広めの駐車場を備え夜23時まで営業しています。
    • 横浜市立東鴨居中学校まで392m
    • 横浜市立東本郷小学校まで1097m
    • 黒滝幼稚園まで341m
    • 牧野記念病院まで847m
    • 横浜市菅田地区センターまで1124m、地域住民が気軽に利用できる公共施設です。各種イベントを開催したり、自主的な活動や地域交流の援助を行っています
    • 菅田日向根第二公園まで359m

    住みやすさ

    鴨居の住みやすさの採点分布

           
    ココが住みやすい!
    • 静閑な住宅街で、電車や車を使って 横浜や町田に出やすく、ららぽーと横浜も近隣にあり買い物や生活に困らない。
    • 鴨居在住の中でも、ららぽーと横浜にアクセスがしやすいかしにくいで、住み心地は随分かなり変わるのかな、と思います。普段の食品や…
    • 横浜線で横浜や新宿、渋谷までのアクセスもよく、近くにららぽーとや港北ニュータウン等車で足を伸ばせばショッピングに困ることはあ…
    ※住みやすさに関する評点は、単純平均ではなく当社独自の集計方法を加え算出しています。

    販売概要

    販売戸数 1戸 最多価格帯 -
    販売価格 4,480万円
    土地面積 99.03m2(公簿)
    建物面積 84.20m2
    建物状況 新築 建物現況 空家
    土地状況 - 最適用途 -
    建築条件備考 - 構造・工法
    • 木造
    間取り 3LDK 建物階 地上2階
    建ぺい率 / 容積率 60% / 200%
    接道
    接道状況:
    一方
    接道詳細:
    • 南 (公道 幅員 11.00m 接面 2.60m)
    駐車場・車庫
    • 駐車場料金:無料
    完成時期
    • 2026年 2月
    引渡し可能時期
    • 相談
    その他諸費用 -
    こだわり条件
    • 床下収納
    • TVモニタ付インターホン
    • カウンターキッチン
    • 浴室乾燥機
    • 食器洗い乾燥機
    • 全居室収納
    • 照明器具付
    • オートバス
    • フラット35・S適合証明書
    • 駐車場あり
    備考
    • 物件種目:戸建
    • 主たる設備概要:-
    • 上水道:公営
    • 下水道:本下水
    • ガス・オール電化:都市ガス
    • 国土法:不要
    • 都市計画:市街化区域
    • 最寄り小学校名:東本郷小学校
    • 最寄り小学校までの距離:1,000m
    • 最寄り中学校名:東鴨居中学校
    • 最寄り中学校までの距離:550m
    • その他施設名:黒滝幼稚園
    • その他施設までの距離:341m
    • 近隣の公園までの距離:359m
    • 近隣のスーパーマーケットまでの距離:1,103m
    • 近隣のドラッグストアまでの距離:216m
    • 備考欄:[物件コード]033301-137231-121044、カースペース有。3棟販売。敷地面積に路地状部分約32平米含む(協定地約3.2平米含む。)。
    関連サイト -

    全体概要

    所在地 神奈川県横浜市神奈川区菅田町
    交通
    • JR横浜線「鴨居」駅まで 徒歩 16分
    • JR横浜線「小机」駅まで 3km
    土地の権利 所有権
    総戸数 -
    私道負担 - 用途地域 第一種住居地域
    地目 宅地 施工会社 -
    情報掲載開始日 2026年2月19日 情報更新日 2026年3月20日
    取引条件有効期限 2026年4月3日 次回更新予定日 -

    ローンシミュレーション

    頭金、借入期間、金利から毎月の住宅ローンお支払い額の目安を試算します。ご希望の条件に変更してご利用ください。

    物件価格の初期値は最低値を設定しております。実際にローン契約をする際は、詳細を不動産会社にご確認ください。

    万円
    万円
    %

    ※頭金や金利、借入期間によって支払う金額は変わります。

    ※物件購入時には、物件価格の他に諸費用がかかります。

    =
    月々のお支払い目安
    元金
    万円/月
    金利
    万円/月
    お支払い目安
    万円/月

    お問い合わせ

    ご覧いただいている物件の住宅ローンや実際にかかる諸費用、資金計画などのご相談ができます。

    不動産会社へのお問い合わせ

    (株)マイホーム

    この物件のアピールポイント

    ナチュラルモダンでおしゃれな内装!食洗機・浴室乾燥・ガス式衣類乾燥機etc...人気の設備も充実!

    この物件の価格

    4,480万円

    • 会社名:センチュリー21マイホーム
    • 住所:神奈川県横浜市西区北幸2丁目8-4横浜西口KNビル1F
    • 電話:045-320-3521
    • 交通:JR東海道本線「横浜」駅まで 徒歩 8分
    • 取引態様:媒介
    • 免許番号:神奈川県知事(7)第20560号
    • 不動産団体名:(公社)全日本不動産協会、(公社)首都圏不動産公正取引協議会
    • 売主:-
    • 売主免許番号:-
    • 関連サイト:-

    お電話でのお問い合わせはこちら(取り扱い不動産会社に直接つながります)

    電話をかける(携帯電話・PHSでも可)

    1電話番号を入力する

    0037-634-12970

    お問い合わせ先

    (株)マイホーム

    2音声案内に従い、以下の番号を入力

    お問い合わせ番号 62806-3197

    不動産会社につながります

    不動産会社のスタッフと
    直接電話で話せます

    店舗スタッフ
    • お客様の電話番号は不動産会社に通知されません。
    • 光IP電話、及びIP電話からはご利用になれません。
    • 定休日や営業時間外にてお電話がつながらない場合は、お問い合わせフォームよりお問い合わせください。
    • 携帯電話からお問合せいただいた方には、ショートメッセージ(SMS)またはLINE通知メッセージによるお問い合わせ内容に関する通知を株式会社LIFULLよりお届けする場合があり、お客様の電話番号は株式会社LIFULLで一定期間保管されます。
    • 株式会社LIFULLの個人情報の取扱い方針に同意のうえ、お電話ください。
    • オーナー様・不動産会社様・現在ご入居中のお客様など、住まい探し以外のご相談はこちらからお問い合わせください。

    他の物件も見てみる

    最近見た物件
    • 外観
    • 間取り

    • 完成後1年を経過している未入居物件が掲載されている場合があります。
    • 販売住戸が複数の物件は、全ての住戸に該当しない項目もあります。各問い合わせ先にご確認ください。
    • 「建築条件付き土地」とは、一定期間内(概ね3ヶ月程度)に特定の建設会社と建築請負契約を結ぶことを 条件にしている宅地のことです。
    • 建物の内容は、土地購入者の自由意思により決定可能で、土地売買契約後、 建築請負会社と購入した土地に建設する建物について協議することになります。
    • 期間内に建築請負契約が成立しなければ売買契約は白紙となり、支払済みの金銭はすべて返却されます。
    • 「建築条件付き土地」の価格には、建物価格は含まれません。
    • 「建築条件付き土地」の「建物プラン例」は、土地購入者の設計プランの一例であり、プランの採用可否は任意です。
    • 「土地(建築条件なし)」の「建物プラン例」に関して、そのプラン例は特定の建築請負会社によるもので、当該建築請負会社以外で建てた場合、同様のものが同価格で建てられるとは限りません。また、建築請負会社を特定するものではありません。
    • 消費税および地方消費税の対象となる場合は税込み価格が表示されています。
    • 物件の写真やイラスト、CGなどは実際と異なる場合があります。
    • 市区町村の合併などにより、地図が表示されない場合があります。ご了承ください。
    • お客様が入力する個人情報を含むお問い合わせデータは、LIFULL HOME'Sを経由して当該物件情報の取扱会社に転送されます。
    • 不動産購入の検討、契約にあたってはお客様ご自身が情報を確認し、各会社より十分な説明を受け判断してください。
    • 本ページの掲載内容は変更される場合があります。あらかじめご了承ください。
    ページトップへ