「クラスコ建売住宅」能美市福島町A棟 新築戸建

新築仲介一戸建て
所在地 石川県能美市福島町オ27-4
交通
  • IRいしかわ鉄道「能美根上」駅 徒歩9分
  • 価格 2990万円
    資料請求する無料 見学予約する無料

    ※LIFULL HOME'Sの資料請求ページに移動します

    お気に入りに追加
    • 物件情報
    • 地図・周辺情報
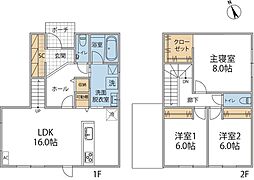
    • 間取り 3LDK
      土地面積 182.64m2
      建物面積 114.27m2
      建物階 木造ガルバリウム鋼板立平葺2階建
      完成時期
      • 2026年8月
    • グレーの外壁のシックで落ち着いた雰囲気の外観※画像はイメージです
    • 【屋根】耐食性、耐候性、遮熱性に優れた次世代ガルバリウム鋼板「エスジーエル」を採用
    • 【外壁】美しさ長持ち「Fuge」色あせに強い超高耐候塗料「プラチナコート」を採用、環境にも優しいオフセットサイディング。
    • 【基礎】鉄筋コンクリート造のベタ基礎、基礎下には防湿フィルムを施工、通気性がよくシロアリを寄せ付けにくい。
    • 【窓】YKK APの高性能樹脂窓「APW 330」フル樹脂サッシ&複層ガラス、国内最高基準の断熱性で省エネ効果を発揮。結露も防止。
    • 【断熱材】高性能グラスウール使用。断熱性能だけでなく、シックハウス症候群のなりにくさや、吸音性にも優れた素材。
    • 【アフターメンテナンス 】1年、2年、5年、10年の間隔で定期点検を実施。お住まい中の気になる点も、お気軽に相談できます。
    • 【リビング】対面キッチンのあるLDKは18帖あり、ゆとりをもって家具の配置ができます※画像はイメージです
    • 能美市立 浜小学校(約1,298m)
    • 能美市立 根上中学校(約1,537m)
    • ファミリーマート能美大成南店(約920m)
    • マルエー根上店(約1,023m)
    • はくさん信用金庫根上支店(約835m)
    • 根上郵便局(約837m)
    • リビングと水回りは回遊性を意識し、1階にはファミリークローゼットもあり、毎日の身支度にも役立つ間取です!
    お気に入りに追加 この物件の資料請求無料 見学予約する無料

    ※LIFULL HOME'Sの資料請求ページに移動します

    販売スケジュール

    販売中

    販売概要

    販売戸数 1戸 最多価格帯 -
    販売価格 2990万円
    土地面積 182.64m2
    建物面積 114.27m2
    建物状況 - 建物現況 新規分譲
    土地状況 - 最適用途 -
    建築条件備考 - 構造・工法 -
    間取り 3LDK 建物階 木造ガルバリウム鋼板立平葺2階建
    建ぺい率 / 容積率 建ぺい率60% 容積率200%
    接道
    北東側4m、公道、間口10.72m
    駐車場・車庫
    • 1台 ~ 4台
    完成時期
    • 2026年8月
    引渡し可能時期
    • 2026年8月
    その他諸費用 -
    こだわり条件
    • 瑕疵担保付き
    • 見学可能
    • IHコンロ
    • 食器洗い乾燥機
    • ウォークインクローゼット
    • TVモニタ付インターホン
    • 駐車場あり
    備考
    • 物件種目:戸建
    • 主たる設備概要:電気、公営水道、プロパンガス
    • 建築確認番号:R07確認建築能美市060号
    • 都市計画:非線引区域
    関連サイト -

    全体概要

    所在地 石川県能美市福島町オ27-4
    交通
    • IRいしかわ鉄道「能美根上」駅 徒歩9分
    土地の権利 所有権
    総戸数 1戸
    私道負担 - 用途地域 第一種住居地域
    地目 宅地 施工会社 株式会社クラスコデザインスタジオ
    情報掲載開始日 2026年3月6日 情報更新日 2026年4月28日
    取引条件有効期限 2027年3月6日 次回更新予定日 随時

    ローンシミュレーション

    頭金、借入期間、金利から毎月の住宅ローンお支払い額の目安を試算します。ご希望の条件に変更してご利用ください。

    物件価格の初期値は最低値を設定しております。実際にローン契約をする際は、詳細を不動産会社にご確認ください。

    万円
    万円
    %

    ※頭金や金利、借入期間によって支払う金額は変わります。

    ※物件購入時には、物件価格の他に諸費用がかかります。

    =
    月々のお支払い目安
    元金
    万円/月
    金利
    万円/月
    お支払い目安
    万円/月

    お問い合わせ

    ご覧いただいている物件の住宅ローンや実際にかかる諸費用、資金計画などのご相談ができます。

    不動産会社へのお問い合わせ

    株式会社クラスコ 売買の窓口 GO売買・県庁前店

    この物件のアピールポイント

    能美市福島町にクラスコの建売誕生! 1階はリビングと水廻りに回遊性を持たせており、部活動などで汚れて帰宅してもリビングを汚すことなくお風呂に行くことが出来ます。ファミリークローも備え付けてあります。 SICも広くとっておりゴルフ等、外での趣味のものやタイヤ、バーベキュー道具等を収納することが出来ます。 2階のお部屋は全て6帖以上あるため、お子様が小さいうちは寝室で家族全員で寝ることもできます。 小学校のお子様がいるご家庭には特におススメです。

    この物件の価格

    2990万円

    • 会社名:株式会社クラスコ
    • 住所:石川県金沢市藤江北4-274
    • 電話:076-233-6006
      ※物件のお問い合わせは076-222-1100
    • 取引態様:専任媒介 株式会社クラスコ 売買の窓口 GO売買・県庁前店
    • 免許番号:国土交通大臣 (3) 第 8818 号
    • 不動産団体名:北陸不動産公正取引協議会 (公社)石川県宅地建物取引業協会
    • 売主:-
    • 売主免許番号:-
    • 関連サイト:-
    資料請求する無料 見学予約する無料

    ※LIFULL HOME'Sの資料請求ページに移動します

    他の物件も見てみる

    最近見た物件
    • 外観
    • 間取り

    • 完成後1年を経過している未入居物件が掲載されている場合があります。
    • 販売住戸が複数の物件は、全ての住戸に該当しない項目もあります。各問い合わせ先にご確認ください。
    • 「建築条件付き土地」とは、一定期間内(概ね3ヶ月程度)に特定の建設会社と建築請負契約を結ぶことを 条件にしている宅地のことです。
    • 建物の内容は、土地購入者の自由意思により決定可能で、土地売買契約後、 建築請負会社と購入した土地に建設する建物について協議することになります。
    • 期間内に建築請負契約が成立しなければ売買契約は白紙となり、支払済みの金銭はすべて返却されます。
    • 「建築条件付き土地」の価格には、建物価格は含まれません。
    • 「建築条件付き土地」の「建物プラン例」は、土地購入者の設計プランの一例であり、プランの採用可否は任意です。
    • 「土地(建築条件なし)」の「建物プラン例」に関して、そのプラン例は特定の建築請負会社によるもので、当該建築請負会社以外で建てた場合、同様のものが同価格で建てられるとは限りません。また、建築請負会社を特定するものではありません。
    • 消費税および地方消費税の対象となる場合は税込み価格が表示されています。
    • 物件の写真やイラスト、CGなどは実際と異なる場合があります。
    • 市区町村の合併などにより、地図が表示されない場合があります。ご了承ください。
    • お客様が入力する個人情報を含むお問い合わせデータは、LIFULL HOME'Sを経由して当該物件情報の取扱会社に転送されます。
    • 不動産購入の検討、契約にあたってはお客様ご自身が情報を確認し、各会社より十分な説明を受け判断してください。
    • 本ページの掲載内容は変更される場合があります。あらかじめご了承ください。
    ページトップへ